Информационная система
«Ёшкин Кот»

Скачать базу одним архивом
Скачать обновления
История создания базы
Карта сайта

Скачать Типовой проект 903-2-37.91 Альбом 7. Автоматизация. Пожарная сигнализация

Дата актуализации: 10.08.2017

Типовой проект 903-2-37.91

Альбом 7. Автоматизация. Пожарная сигнализация

Обозначение: Типовой проект 903-2-37.91
Обозначение англ: 903-2-37.91
Статус:не определен законодательством
Название рус.:Альбом 7. Автоматизация. Пожарная сигнализация
Дата добавления в базу:01.10.2014
Дата актуализации:05.05.2017
Дата введения:22.01.1992
Оглавление:Содержание альбома
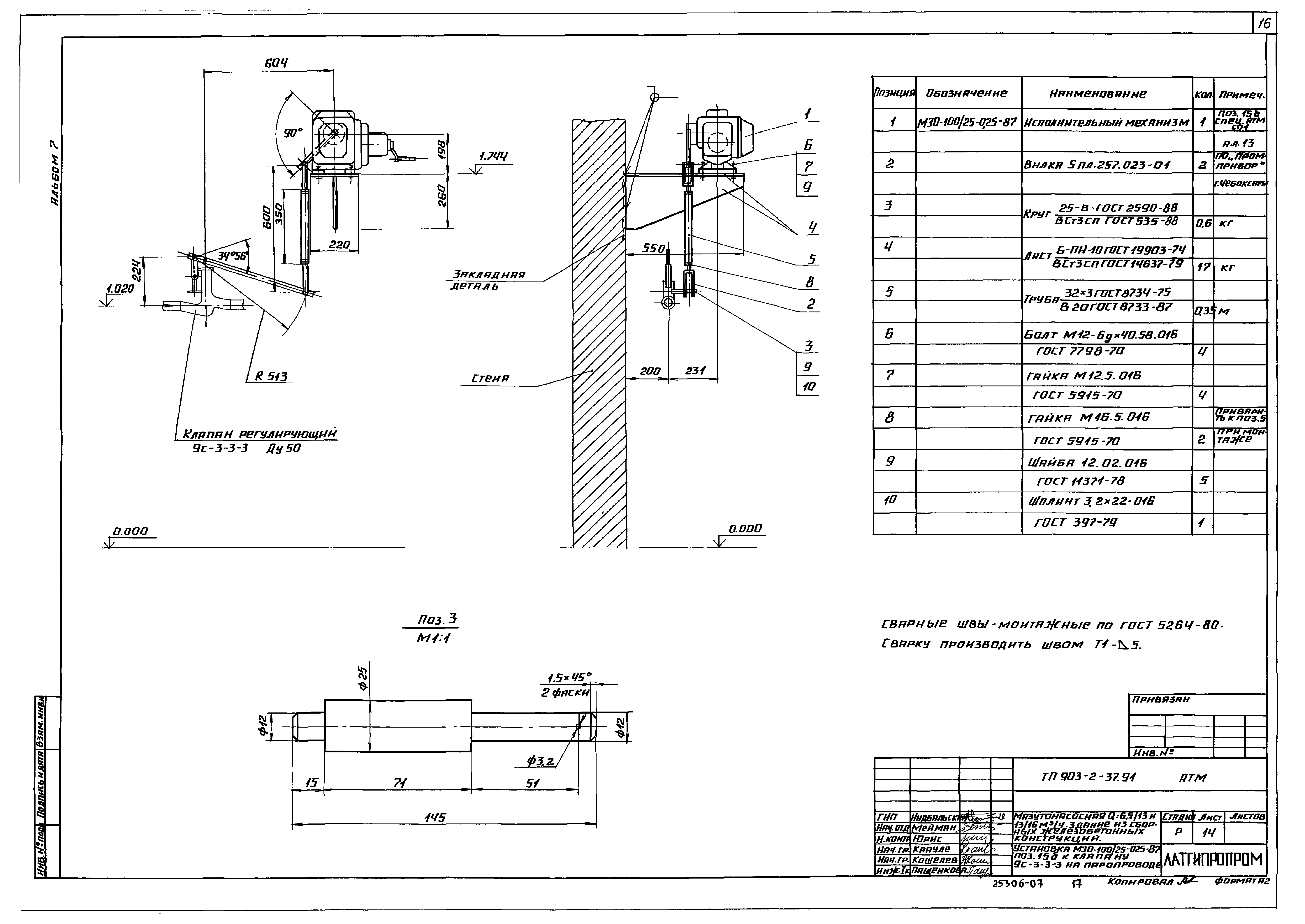
Автоматизация АТМ
   Общие данные
   Схема автоматизации
   Схема электрическая принципиальная регулятора температуры мазута
   Схема электрическая принципиальная технологической сигнализации
   Схема электрическая принципиальная питания
   Схема внешних проводок
   Схема подключения внешних проводок
   Приточная система П1. Схемы автоматизации и внешних проводок
   Приточная система П1. Схема электрическая принципиальная управления
   План расположения
   Установка МЭО250/25-0,25-87 поз. 13б к клапану 6с-9-1 на паропроводе
   Установка МЭО100/25-0,25-87 поз. 14б к клапану 9с-3-3-3 на паропроводе
   Установка МЭО100/25-0,25-87 поз. 15б к клапану 9с-3-3-3 на паропроводе
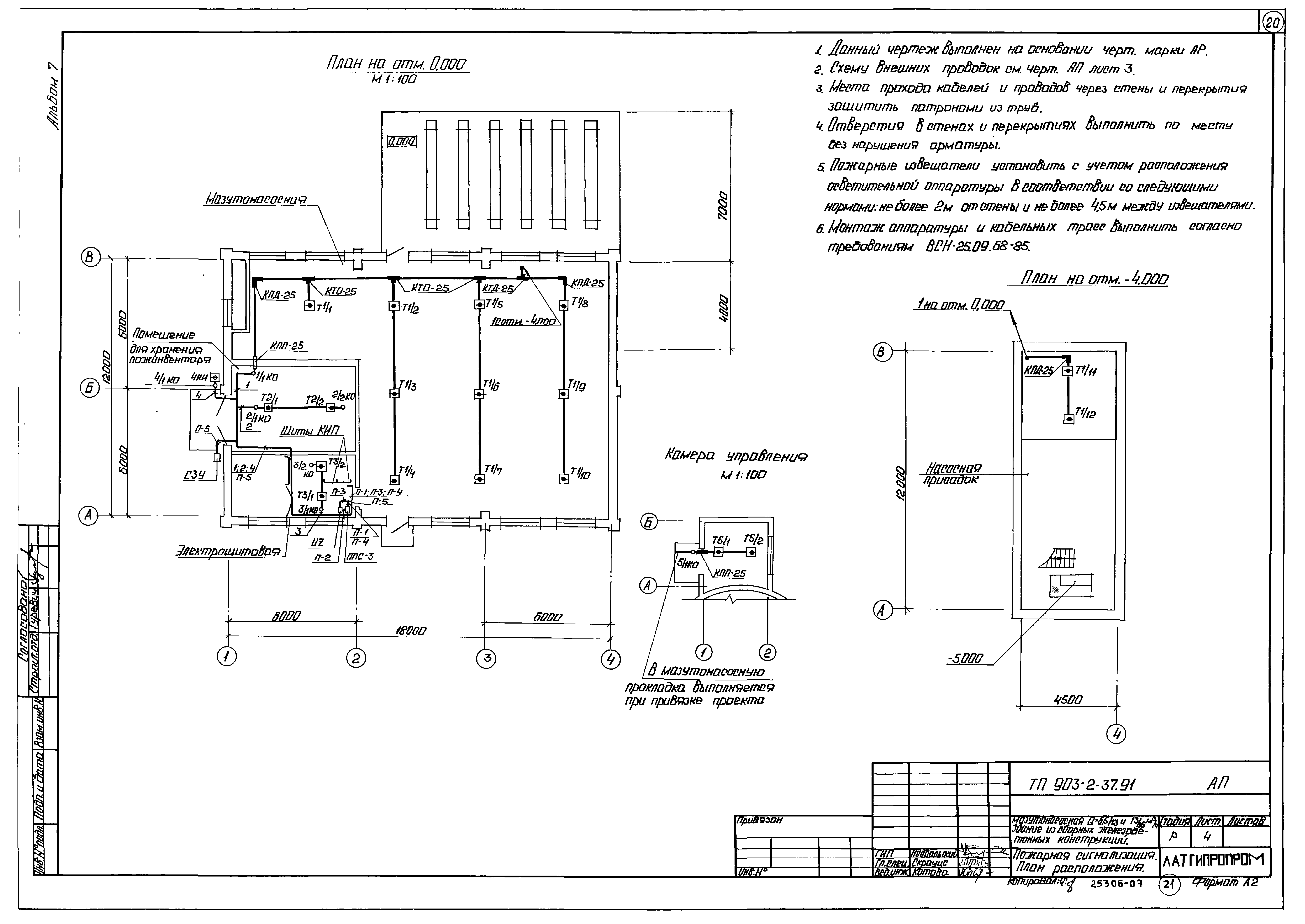
Пожарная сигнализация АП
   Общие данные
   Пожарная сигнализация. Схема электрическая принципиальная
   Пожарная сигнализация. Схема внешних проводок
   Пожарная сигнализация. План расположения
Разработан: Латгипропром
Утверждён:22.01.1992 ГПКНИИ Сантехниипроект (30)
Расположен в:Техническая документация Строительство Справочные документы Типовые строительные конструкции, изделия и узлы Общероссийский строительный каталог Промышленные предприятия, здания и сооружения Здания и сооружения санитарно-технические Теплоснабжение Установка для снабжения котельных жидким топливом
Типовой проект 903-2-37.91Типовой проект 903-2-37.91Типовой проект 903-2-37.91Типовой проект 903-2-37.91Типовой проект 903-2-37.91Типовой проект 903-2-37.91Типовой проект 903-2-37.91Типовой проект 903-2-37.91Типовой проект 903-2-37.91Типовой проект 903-2-37.91Типовой проект 903-2-37.91Типовой проект 903-2-37.91Типовой проект 903-2-37.91Типовой проект 903-2-37.91Типовой проект 903-2-37.91Типовой проект 903-2-37.91Типовой проект 903-2-37.91Типовой проект 903-2-37.91Типовой проект 903-2-37.91Типовой проект 903-2-37.91Типовой проект 903-2-37.91

© 2013 Ёшкин Кот :-) Карта сайта