Информационная система
«Ёшкин Кот»

Скачать базу одним архивом
Скачать обновления
История создания базы
Карта сайта

Скачать Типовой проект 903-1-274.89 Альбом 7. Часть 2. Конструкции железобетонные. Конструкции деревянные

Дата актуализации: 10.08.2017

Типовой проект 903-1-274.89

Альбом 7. Часть 2. Конструкции железобетонные. Конструкции деревянные

Обозначение: Типовой проект 903-1-274.89
Обозначение англ: 903-1-274.89
Статус:не определен законодательством
Название рус.:Альбом 7. Часть 2. Конструкции железобетонные. Конструкции деревянные
Дата добавления в базу:01.10.2014
Дата актуализации:05.05.2017
Дата введения:27.09.1989
Оглавление:Чертежи основного комплекта марки КЖ
   Общие данные
   Фундаменты здания. Схема расположения фундаментов и фундаментных балок
   Фундаменты здания. Таблица расчетных нагрузок
   Фундаменты здания. Узлы I - III
   Фундаменты здания. Узлы IV - VI
   Фундаменты здания. Узлы VII - IX
   Фундаменты здания Фм1 - Фм5; Фм3-1; Фм5-1
   Схемы расположения колонн и балок покрытия
   Узлы I - III
   Схема расположения плит покрытия
   Схемы расположения плит перекрытия и закладных изделий на отм. 3.000; 4.200
   Канал в помещении ПСУ. Узлы I, II
   Канал в помещении ПСУ. Сечения 1-1 - 5-5. Ум4
   Канал в помещении ПСУ. Монолитные участки Ум1 - Ум3
   Плита Пм1 перекрытия на отм. 4.200
   Плита Пм1 перекрытия на отм. 4.200. Армирование
   Схемы расположения стеновых панелей
   Схемы расположения стеновых панелей. Фрагмент 1 - 13
   Спецификация к схеме расположения стеновых панелей
   Схема расположения панелей перегородок
   Схема расположения панелей перегородок. Узлы I, II
   Схема расположения фундаментов под оборудование, каналов, приямков и закладных изделий
   Подземное хозяйство котельной. Сечения 1-1 - 11-11
   Подземное хозяйство котельной. Фундамент ФОм1. Приямок ПРм1. Опорные подушки ОПм1 - ОПм8
   Канал шлакозолоудаления ЛТМ1. План. Сечение 1-1 - 6-6
   Канал шлакозолоудаления ЛТМ1. Узлы I - V
   Канал шлакозолоудаления ЛТМ1. Схема армирования
   Подземное хозяйство (наружное). Схема расположения каналов и фундаментов под оборудование для топлива каменные угли
   Подземное хозяйство (наружное). Схема расположения каналов и фундаментов под оборудование для топлива бурые угли
   Подземное хозяйство (наружное). Фундаменты ФО1, ФО2, ФОм2, ФОм2а, ФОм3, ФОм4
   Подземное хозяйство (пружинное). Фундаменты ФО3 - ФО10
   Продувочный колодец
   Схема расположения элементов фундаментов эстакады
   Схема расположения плит покрытия тамбура приемо-дробильного устройства
   Приемно-дробильное устройство. Планы. Сечение 1-1 - 3-3
   Приемно-дробильное устройство. Узлы I - IV. Схемы расчетных нагрузок
   Приемно-дробильное устройство. РЕН1. Схема армирования
   Приемно-дробильное устройство. РЕН1. Схема расположения выпусков из стен
   Приемно-дробильное устройство. РКн1. Перекрытия на отм. 1.500
   Фундаменты склада угля. Схема расположения фундаментов и фундаментных балок
   Фундаменты склада угля. Узлы I - III
   Фундаменты склада угля и эстакады Фм6 - Фм9
   Склад угля. Схемы расположения колонн
   Склад угля. Схемы расположения плит ограждения
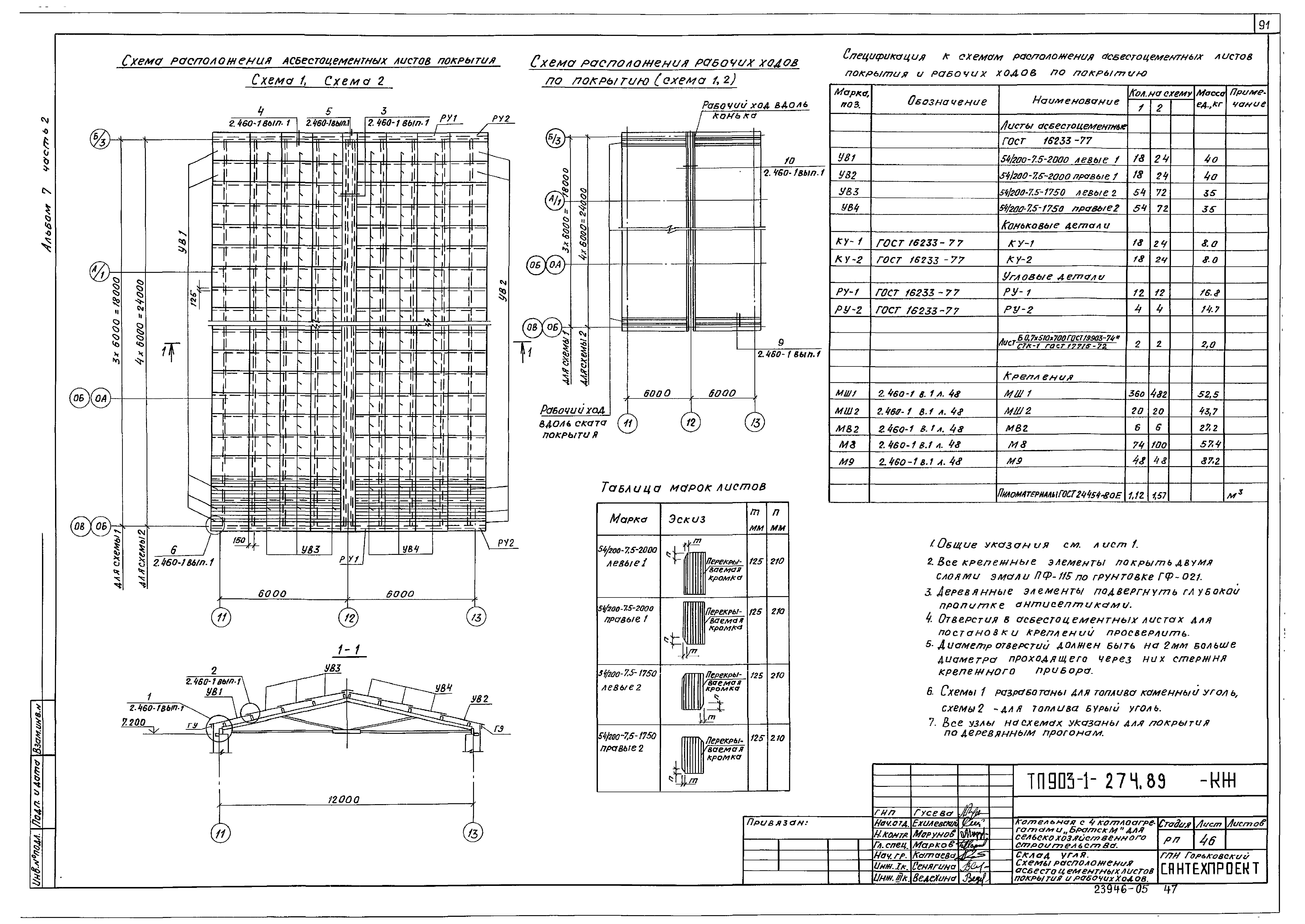
   Склад угля. Схемы расположения асбестоцементных листов покрытия и рабочих ходов
   Склад угля. Схемы расположения асбестоцементных листов стен
   Схема молниезащиты
Чертежи основного комплекта марки КД
   Общие данные
   Схемы расположения ферм и связей
   Схемы расположения прогонов кровли
   Схемы расположения прогонов стен
   Узлы I - V
   Узлы VI; VII
   Узлы VIII - X
   Прогоны кровли. Марки МПК-1-1 - МПК-1-3
   Прогоны кровли. Марки МПК-2-1 - МПК-2-3
   Прогоны ПС1 - ПС12; ПК4; ПК5. Связь СВ1
   Ларь деревянный ЛД
Разработан: Сантехпроект
Утверждён:27.09.1989 ГПКНИИ Сантехниипроект (11)
Расположен в:Техническая документация Строительство Справочные документы Типовые строительные конструкции, изделия и узлы Общероссийский строительный каталог Промышленные предприятия, здания и сооружения Здания и сооружения санитарно-технические Теплоснабжение Котельные установки Котельные для объектов сельского хозяйства Топливо - каменные и бурые угли
Типовой проект 903-1-274.89Типовой проект 903-1-274.89Типовой проект 903-1-274.89Типовой проект 903-1-274.89Типовой проект 903-1-274.89Типовой проект 903-1-274.89Типовой проект 903-1-274.89Типовой проект 903-1-274.89Типовой проект 903-1-274.89Типовой проект 903-1-274.89Типовой проект 903-1-274.89Типовой проект 903-1-274.89Типовой проект 903-1-274.89Типовой проект 903-1-274.89Типовой проект 903-1-274.89Типовой проект 903-1-274.89Типовой проект 903-1-274.89Типовой проект 903-1-274.89Типовой проект 903-1-274.89Типовой проект 903-1-274.89Типовой проект 903-1-274.89Типовой проект 903-1-274.89Типовой проект 903-1-274.89Типовой проект 903-1-274.89Типовой проект 903-1-274.89Типовой проект 903-1-274.89Типовой проект 903-1-274.89Типовой проект 903-1-274.89Типовой проект 903-1-274.89Типовой проект 903-1-274.89Типовой проект 903-1-274.89Типовой проект 903-1-274.89Типовой проект 903-1-274.89Типовой проект 903-1-274.89Типовой проект 903-1-274.89Типовой проект 903-1-274.89Типовой проект 903-1-274.89Типовой проект 903-1-274.89Типовой проект 903-1-274.89Типовой проект 903-1-274.89Типовой проект 903-1-274.89Типовой проект 903-1-274.89Типовой проект 903-1-274.89Типовой проект 903-1-274.89Типовой проект 903-1-274.89Типовой проект 903-1-274.89Типовой проект 903-1-274.89Типовой проект 903-1-274.89Типовой проект 903-1-274.89Типовой проект 903-1-274.89Типовой проект 903-1-274.89Типовой проект 903-1-274.89Типовой проект 903-1-274.89Типовой проект 903-1-274.89Типовой проект 903-1-274.89Типовой проект 903-1-274.89Типовой проект 903-1-274.89Типовой проект 903-1-274.89Типовой проект 903-1-274.89Типовой проект 903-1-274.89

© 2013 Ёшкин Кот :-) Карта сайта