Информационная система
«Ёшкин Кот»

Скачать базу одним архивом
Скачать обновления
История создания базы
Карта сайта

Скачать Типовой проект 903-1-268.89 Альбом 3. Металлоконструкции технологические. Рабочие чертежи (из ТП 903-1-269.89)

Дата актуализации: 10.08.2017

Типовой проект 903-1-268.89

Альбом 3. Металлоконструкции технологические. Рабочие чертежи (из ТП 903-1-269.89)

Обозначение: Типовой проект 903-1-268.89
Обозначение англ: 903-1-268.89
Статус:не определен законодательством
Название рус.:Альбом 3. Металлоконструкции технологические. Рабочие чертежи (из ТП 903-1-269.89)
Дата добавления в базу:01.10.2014
Дата актуализации:05.05.2017
Дата введения:04.04.1989
Оглавление:Содержание
Д20А.948.000 Короб с предохранительным клапаном
Д20А.948.001 Секция
Д20А.948.003 Стенка
Д20А.948.000СБ Короб с предохранительным клапаном
Д20А.948.004 Стенка
Д20А.948.005 Стенка
Д20А.948.006 Стенка
Д20А.948.008 Фланец
Д20А.948.007 Фланец
Д20А.949.000 Короб
Д20А.949.001 Стенка
Д20А.949.000СБ Короб
Д20А.949.002 Стенка
Д20А.949.004 Ребро
Д20А.949.006 Фланец
Д20А.949.007 Дно
Д20А.949.008 Стенка
Д20А.949.009 Пластина
Д20А.950.000 Короб
Д20А.950.001 Стенка
Д20А.950.000СБ Короб
Д20А.950.002 Стенка
Д20А.950.003 Фланец
Д20А.950.004 Переход
Д20А.951.000 Короб
Д20А.951.000СБ Короб
Д20А.951.003 Фланец
Д20А.951.001 Переход
Д20А.952.000 Устройство ограждающее
Д20А.952.001 Стенка
Д20А.952.000СБ Устройство ограждающее
Д20А.952.010 Короб
Д20А.952.006 Стенка
Д20А.952.010СБ Короб
Д20А.952.007 Крышка
Д20А.952.020 Подставка
Д20А.952.020СБ Подставка
Д20А.952.008 Косынка
Д20А.952.013 Связь
Д20А.962.000 Газоход
Д20А.962.001 Сектор
Д20А.962.007 Труба
Д20А.962.000СБ Газоход
Д20А.962.002 Сектор
Д20А.962.003 Переход
Д20А.962.004 Труба
Д20А.962.005 Труба
Д20А.962.008 Труба
Д20А.962.009 Сектор
Д20А.962.011 Сектор
Д20А.962.012 Труба
Д20А.963.000 Газоход
Д20А.963.002 Труба
Д20А.963.001 Переход
Д20А.963.000СБ Газоход
Д20А.964.000СБ Газоход
Д20А.964.000 Газоход
Д20А.964.002 Труба
Д20Б.038.001 Обечайка
Д20А.964.003 Переход
Д20Б.038.000 Панель герметизирующая
Д20Б.038.000СБ Панель герметизирующая
Д20Б.038.002 Стенка
Д20Б.038.003 Стенка
Д22А.038.000 Люк
Д22А.038.000СБ Люк
Д22А.038.001 Прокладка
Д22А.038.010 Крышка
Д22А.038.010СБ Крышка
Д22А.038.002 Ручка
Д22А.038.003 Крышка
Д22А.038.020 Горловина
Д22А.038.020СБ Горловина
Д22А.038.004 Фланец
Д22А.038.006 Седло
Д22А.039.000 Заслонка
Д22А.039.000СБ Заслонка
Д22А.039.001 Фиксатор
Д22А.039.002 Подшипник
Д22А.039.003 Ось
Д22А.039.004 Крышка сальника
Д22А.039.005 Крышка
Д22А.039.006 Прокладка
Д22А.039.007 Ось
Д22А.039.008 Подшипник
Д22А.039.009 Указатель
Д22А.039.011 Шпилька
Д22А.039.012 Прокладка
Д22А.039.010 Сектор
Д22А.039.010СБ Сектор
Д22А.039.014 Сектор
Д22А.039.015 Втулка
Д22А.039.020 Кронштейн
Д22А.039.016 Пластина
Д22А.039.017 Втулка
Д22А.039.030 Лопатка
Д22А.039.018 Лопатка
Д22А.039.030СБ Лопатка
Д22А.039.019 Втулка
Д22А.039.040 Корпус
Д22А.039.040СБ Корпус
Д22А.039.021 Стенка
Д22А.039.023 Ограничитель
Д22А.040.000 Шибер
Д22А.040.000СБ Шибер
Д22А.040.001 Шибер
Д22А.040.010 Направляющая
Д22А.040.002 Винт
Д22А.040.010СБ Направляющая
Д22А.040.003 Рамка
Д22А.040.004 Рамка
Д22Е.019.000 Насадка сбросного устройства
Д22Е.019.000СБ Насадка сбросного устройства
Д22Е.019.001 Короб
Д22Е.019.002 Ребро
Д22Е.019.004 Рассекатель
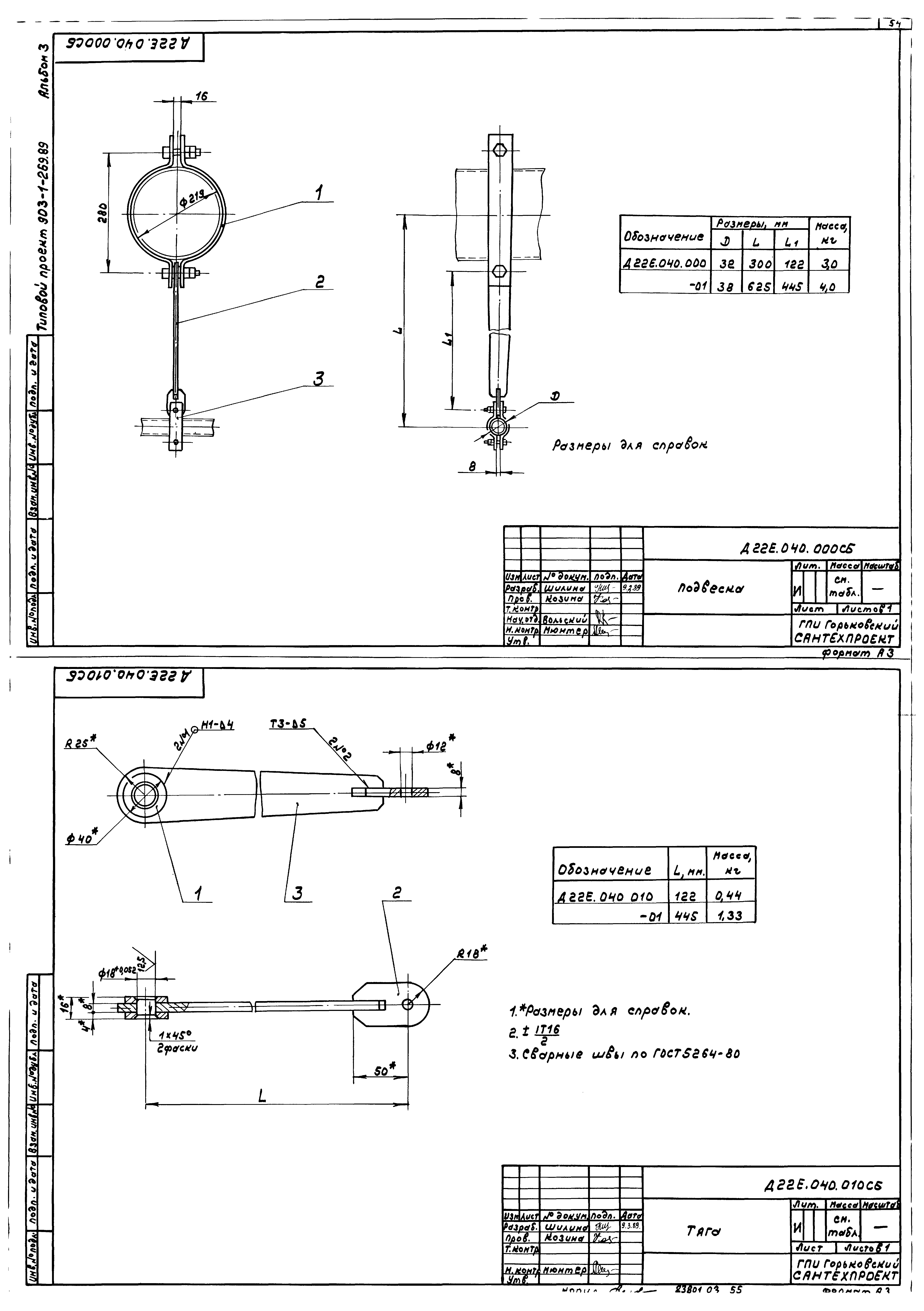
Д22Е.032.000 Подвеска
Д22Е.032.000СБ Подвеска
Д22Е.032.010 Тяга
Д22Е.032.010СБ Тяга
Д22Е.032.001 Тяга
Д22Е.033.000 Подвеска
Д22Е.033.001 Швеллер
Д22Е.033.000СБ Подвеска
Д22Е.033.002 Тяга
Д22Е.033.003 Хомут
Д22Е.034.000 Подвеска
Д22Е.034.000СБ Подвеска
Д22Е.035.000 Помост
Д22Е.035.003 Связь
Д22Е.035.000СБ Помост
Д22Е.036.000 Подставка
Д22Е.036.000СБ Подставка
Д22Е.036.001 Труба
Д22Е.036.003 Лапа
Д22Е.039.000 Крепление трубопровода к трубопроводу
Д22Е.039.000СБ Крепление трубопровода к трубопроводу
Д22Е.039.001 Полухомут
Д22Е.039.002 Полухомут
Д22Е.040.000 Подвеска
Д22Е.040.010 Тяга
Д22Е.040.000СБ Подвеска
Д22Е.040.010СБ Тяга
Д22Е.040.002 Серьга
Д22Е.040.003 Тяга
Д22Е.041.000 Подвеска
Д22Е.041.000СБ Подвеска
Д22Е.041.002 Балка
Д22Е.042.000 Подвеска
Д22Е.042.000СБ Подвеска
Д22Е.042.001 Швеллер
Д22Е.043.000 Подвеска
Д22Е.043.000СБ Подвеска
Д22Е.041.001 Тяга
Д22Е.043.002 Хомут
Д22Е.043.001 Балка
Д22Е.046.000 Гидрозатвор
Д22Е.046.000СБ Гидрозатвор
Д22Е.046.001 Заглушка
Д22Е.046.010 Корпус
Д22Е.046.010СБ Корпус
Д22Е.046.002 Патрубок
Д22Е.046.003 Патрубок
Д22Е.049.000 Подставка под счетчик
Д22Е.049.000СБ Подставка под счетчик
Д22Е.049.001 Уголок
Д22Е.050.000 Тройник сбросного устройства
Д22Е.050.000СБ Тройник сбросного устройства
Д22Е.050.001 Труба
Д22Е.050.002 Патрубок
Д22Е.050.003 Втулка
Д22Е.000.001 Помост переходной
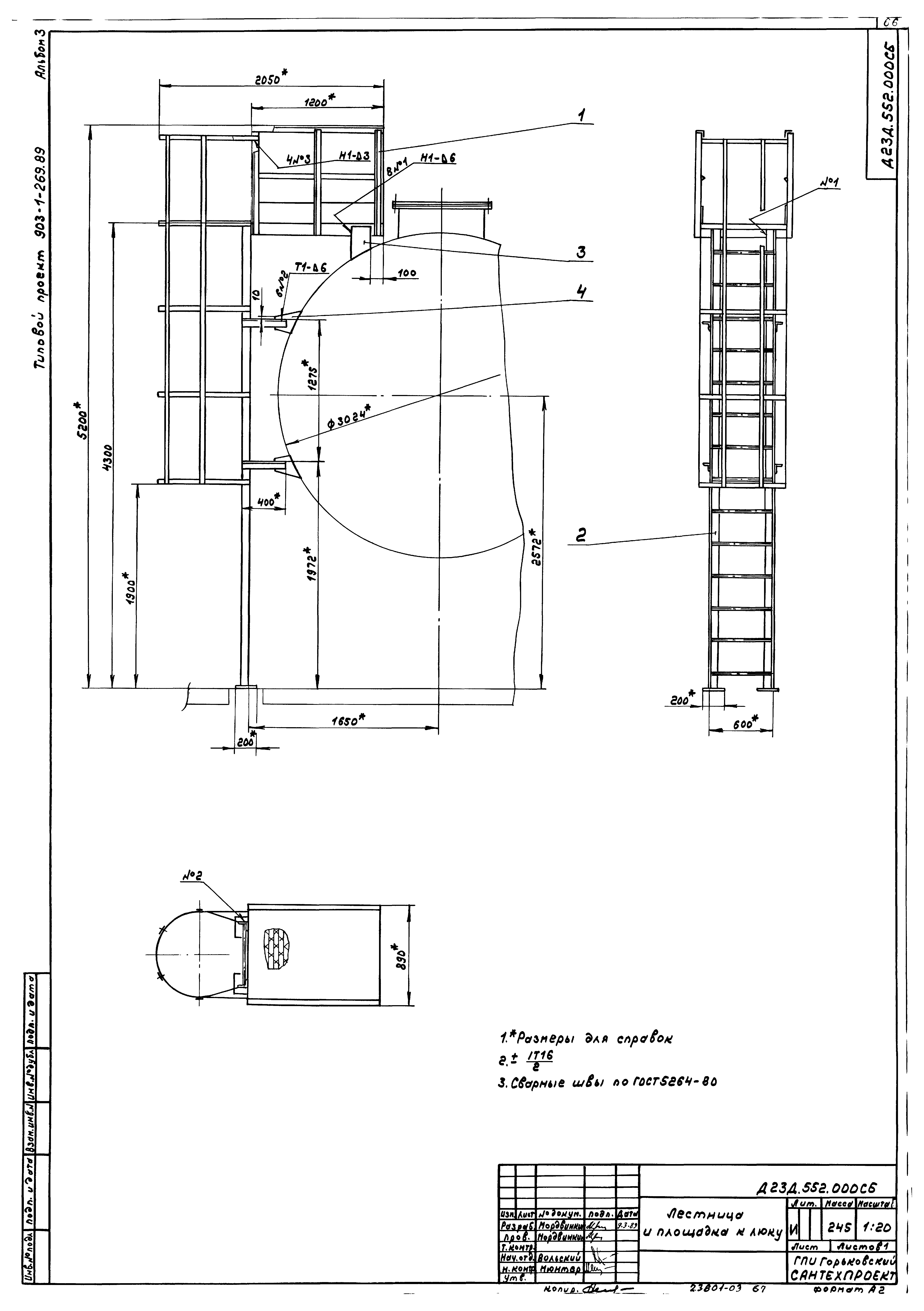
Д23Д.552.000 Лестница и площадка к люку
Д23Д.552.001 Ребро
Д23Д.552.002 Ребро
Д23Д.552.008 Связь
Д23Д.552.000СБ Лестница и площадка к люку
Д23Д.552.010 Площадка
Д23Д.552.010СБ Площадка
Д23Д.552.020СБ Лестница
Д23Д.552.020 Лестница
Д23Д.552.012 Пояс
Д23Д.563.000 Опора
Д23Д.563.000СБ Опора
Д23Д.563.003 Пластина
Д23Д.564.000 Опора
Д23Д.564.000СБ Опора
Д23Д.565.000 Опора
Д23Д.565.000СБ Опора
Разработан: Горьковский Сантехпроект
Утверждён:04.04.1989 Главоргпроект Госстроя СССР (13)
Расположен в:Техническая документация Строительство Справочные документы Типовые строительные конструкции, изделия и узлы Общероссийский строительный каталог Промышленные предприятия, здания и сооружения Здания и сооружения санитарно-технические Теплоснабжение Котельные установки Закрытые системы теплоснабжения Топливо - газ
Типовой проект 903-1-268.89Типовой проект 903-1-268.89Типовой проект 903-1-268.89Типовой проект 903-1-268.89Типовой проект 903-1-268.89Типовой проект 903-1-268.89Типовой проект 903-1-268.89Типовой проект 903-1-268.89Типовой проект 903-1-268.89Типовой проект 903-1-268.89Типовой проект 903-1-268.89Типовой проект 903-1-268.89Типовой проект 903-1-268.89Типовой проект 903-1-268.89Типовой проект 903-1-268.89Типовой проект 903-1-268.89Типовой проект 903-1-268.89Типовой проект 903-1-268.89Типовой проект 903-1-268.89Типовой проект 903-1-268.89Типовой проект 903-1-268.89Типовой проект 903-1-268.89Типовой проект 903-1-268.89Типовой проект 903-1-268.89Типовой проект 903-1-268.89Типовой проект 903-1-268.89Типовой проект 903-1-268.89Типовой проект 903-1-268.89Типовой проект 903-1-268.89Типовой проект 903-1-268.89Типовой проект 903-1-268.89Типовой проект 903-1-268.89Типовой проект 903-1-268.89Типовой проект 903-1-268.89Типовой проект 903-1-268.89Типовой проект 903-1-268.89Типовой проект 903-1-268.89Типовой проект 903-1-268.89Типовой проект 903-1-268.89Типовой проект 903-1-268.89Типовой проект 903-1-268.89Типовой проект 903-1-268.89Типовой проект 903-1-268.89Типовой проект 903-1-268.89Типовой проект 903-1-268.89Типовой проект 903-1-268.89Типовой проект 903-1-268.89Типовой проект 903-1-268.89Типовой проект 903-1-268.89Типовой проект 903-1-268.89Типовой проект 903-1-268.89Типовой проект 903-1-268.89Типовой проект 903-1-268.89Типовой проект 903-1-268.89Типовой проект 903-1-268.89Типовой проект 903-1-268.89Типовой проект 903-1-268.89Типовой проект 903-1-268.89Типовой проект 903-1-268.89Типовой проект 903-1-268.89Типовой проект 903-1-268.89Типовой проект 903-1-268.89Типовой проект 903-1-268.89Типовой проект 903-1-268.89Типовой проект 903-1-268.89Типовой проект 903-1-268.89Типовой проект 903-1-268.89Типовой проект 903-1-268.89Типовой проект 903-1-268.89Типовой проект 903-1-268.89Типовой проект 903-1-268.89Типовой проект 903-1-268.89

© 2013 Ёшкин Кот :-) Карта сайта