Информационная система
«Ёшкин Кот»

Скачать базу одним архивом
Скачать обновления
История создания базы
Карта сайта

Скачать Типовой проект 902-5-55.88 Альбом 4. Задание заводу-изготовителю на ЩСУ

Дата актуализации: 10.08.2017

Типовой проект 902-5-55.88

Альбом 4. Задание заводу-изготовителю на ЩСУ

Обозначение: Типовой проект 902-5-55.88
Обозначение англ: 902-5-55.88
Статус:не определен законодательством
Название рус.:Альбом 4. Задание заводу-изготовителю на ЩСУ
Дата добавления в базу:01.10.2014
Дата актуализации:05.05.2017
Дата введения:26.10.1988
Оглавление:Содержание
Перечень комплектных устройств
Щит ЩСУ. Технические данные аппаратов
Щит ЩСУ. Чертеж общего вида
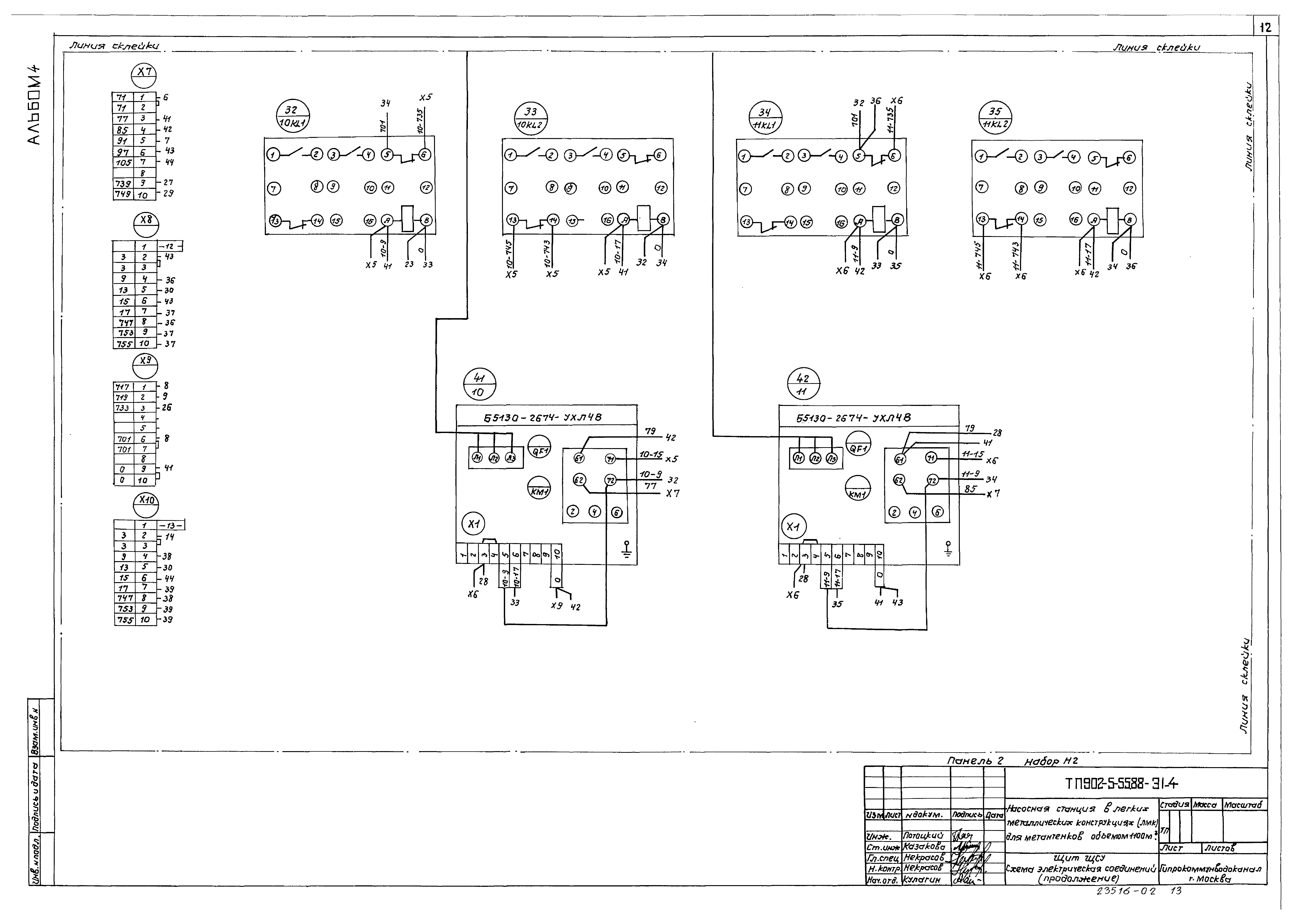
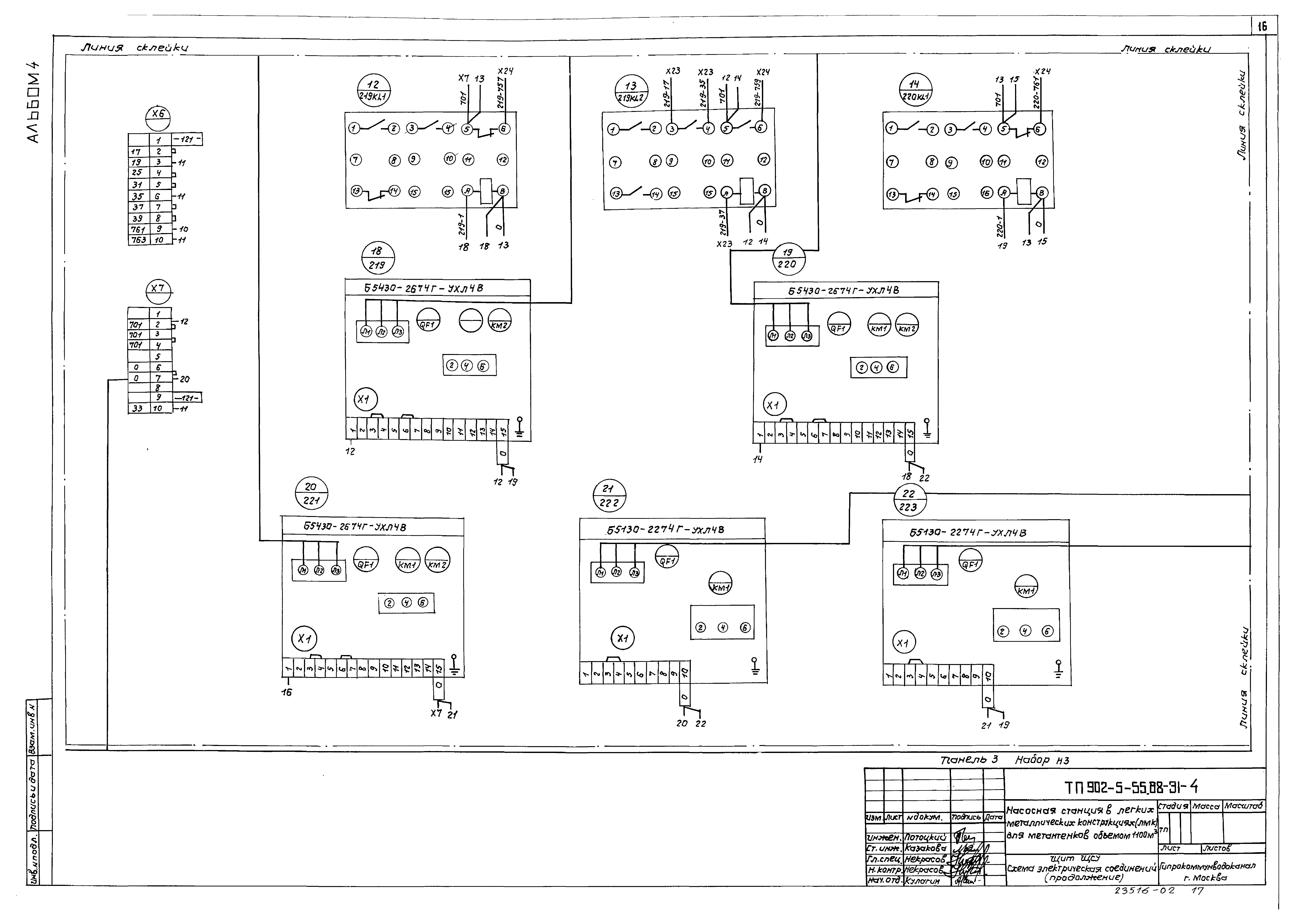
Щит ЩСУ. Схемы электрических соединений
Щит ЩСУ. Перечень надписей
Разработан: Гипрокоммунводоканал Минжилкомхоза РСФСР
Утверждён:26.10.1988 МЖКХ РСФСР (275)
Расположен в:Техническая документация Строительство Справочные документы Типовые строительные конструкции, изделия и узлы Общероссийский строительный каталог Промышленные предприятия, здания и сооружения Здания и сооружения санитарно-технические Канализация Сооружения для очистки производственных сточных вод Сооружения для обработки осадка
Типовой проект 902-5-55.88Типовой проект 902-5-55.88Типовой проект 902-5-55.88Типовой проект 902-5-55.88Типовой проект 902-5-55.88Типовой проект 902-5-55.88Типовой проект 902-5-55.88Типовой проект 902-5-55.88Типовой проект 902-5-55.88Типовой проект 902-5-55.88Типовой проект 902-5-55.88Типовой проект 902-5-55.88Типовой проект 902-5-55.88Типовой проект 902-5-55.88Типовой проект 902-5-55.88Типовой проект 902-5-55.88Типовой проект 902-5-55.88Типовой проект 902-5-55.88Типовой проект 902-5-55.88Типовой проект 902-5-55.88Типовой проект 902-5-55.88Типовой проект 902-5-55.88Типовой проект 902-5-55.88

© 2013 Ёшкин Кот :-) Карта сайта