Информационная система
«Ёшкин Кот»

Скачать базу одним архивом
Скачать обновления
История создания базы
Карта сайта

Скачать Типовой проект 902-5-55.88 Альбом 2. Архитектурные решения. Конструкции железобетонные. Конструкции металлические (из ТП 902-5-56.88)

Дата актуализации: 10.08.2017

Типовой проект 902-5-55.88

Альбом 2. Архитектурные решения. Конструкции железобетонные. Конструкции металлические (из ТП 902-5-56.88)

Обозначение: Типовой проект 902-5-55.88
Обозначение англ: 902-5-55.88
Статус:не определен законодательством
Название рус.:Альбом 2. Архитектурные решения. Конструкции железобетонные. Конструкции металлические (из ТП 902-5-56.88)
Дата добавления в базу:01.10.2014
Дата актуализации:05.05.2017
Дата введения:26.10.1988
Оглавление:Содержание альбома
Чертежи основного комплекта марки АР
   Общие данные
   План на отм. 0.000. Разрезы 1-1, 2-2
   Фасады 1 - 4; 4 - 1; А - В; В - А
   Схема расположения сборных перегородок
   Элемент плана. Детали 1, 2
Чертежи основного комплекта марки КЖ
   Общие данные
   Схема расположения фундаментов и схема расположения закладных изделий
   Схема расположения фундаментов. Фрагменты. Фундаменты ФОм1 и ФОм2
   Фундаменты Ф1 и Ф2. Схемы расположения плит на отм. 2.700 и 3.300
   Схема расположения элементов воздухозаборной камеры
Чертежи основного комплекта марки КМ
   Общие данные
   Схема расположения элементов каркаса и путей подвесного транспорта. Разрезы 1-1, 2-2
   Разрезы 3-3…5-5. Монтажные узлы "1", "2"
   Монтажные узлы "3"… "5"
   Монтажные узлы "6"... "10"
   Схема расположения элементов покрытия. Разрезы 1-1…3-3
   Разрез 4-4. Монтажные узлы "11"…"16"
   Схемы расположения стеновых панелей. План и схема по оси "А"
   Схемы расположения стеновых панелей по осям "В", "1", "4". Разрез 1-1
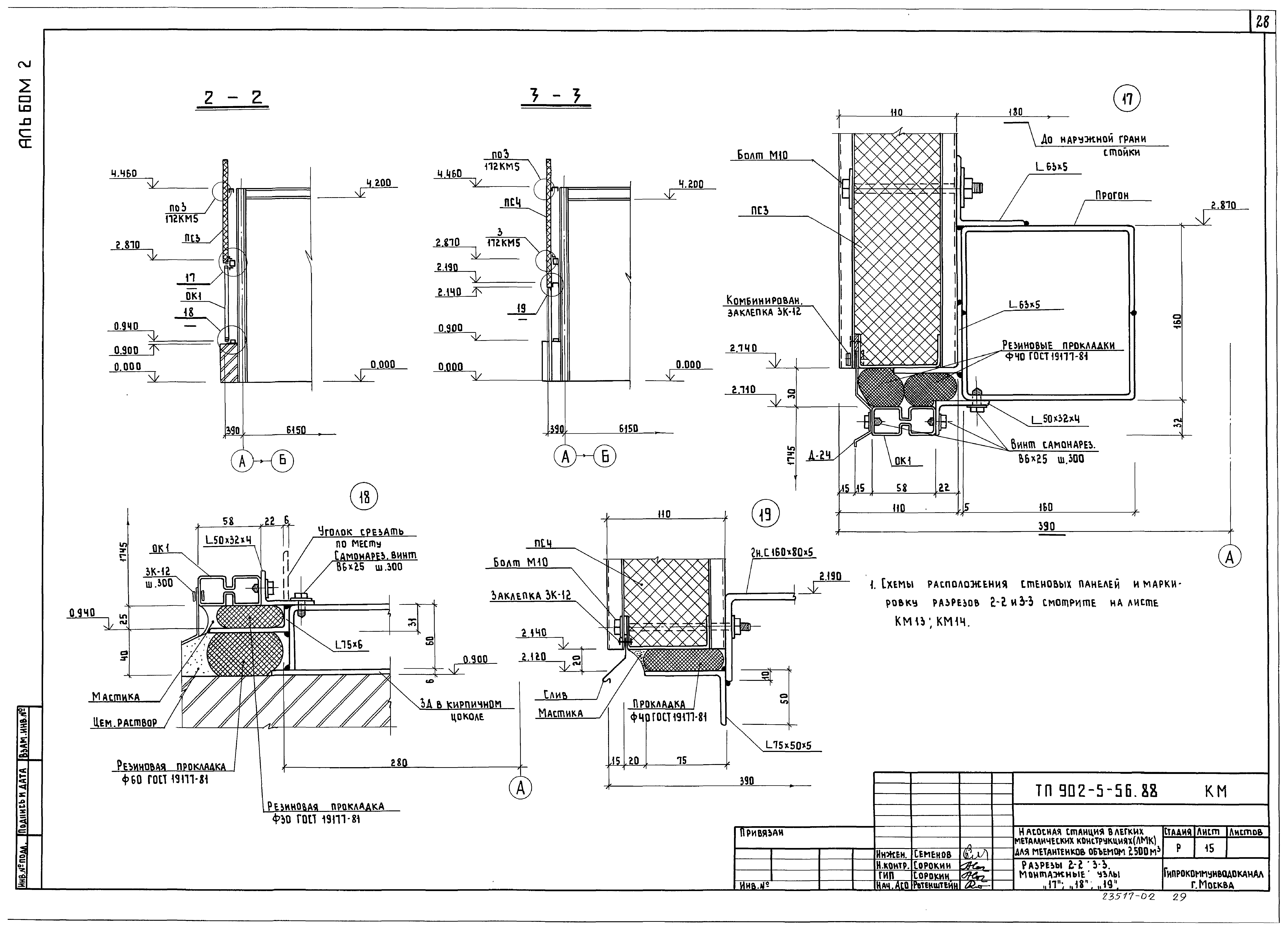
   Разрезы 2-2, 3-3. Монтажные узлы "17", "18", "19"
   Схемы расположения элементов фахверка по осям "А"…"В". Разрезы 1-1, 2-2
   Схемы расположения элементов фахверка по осям "1"…"4". Разрезы 3-3…4-4
   Монтажные узлы "20"…"24"
Разработан: Гипрокоммунводоканал Минжилкомхоза РСФСР
Утверждён:26.10.1988 МЖКХ РСФСР (275)
Расположен в:Техническая документация Строительство Справочные документы Типовые строительные конструкции, изделия и узлы Общероссийский строительный каталог Промышленные предприятия, здания и сооружения Здания и сооружения санитарно-технические Канализация Сооружения для очистки производственных сточных вод Сооружения для обработки осадка
Типовой проект 902-5-55.88Типовой проект 902-5-55.88Типовой проект 902-5-55.88Типовой проект 902-5-55.88Типовой проект 902-5-55.88Типовой проект 902-5-55.88Типовой проект 902-5-55.88Типовой проект 902-5-55.88Типовой проект 902-5-55.88Типовой проект 902-5-55.88Типовой проект 902-5-55.88Типовой проект 902-5-55.88Типовой проект 902-5-55.88Типовой проект 902-5-55.88Типовой проект 902-5-55.88Типовой проект 902-5-55.88Типовой проект 902-5-55.88Типовой проект 902-5-55.88Типовой проект 902-5-55.88Типовой проект 902-5-55.88Типовой проект 902-5-55.88Типовой проект 902-5-55.88Типовой проект 902-5-55.88Типовой проект 902-5-55.88Типовой проект 902-5-55.88Типовой проект 902-5-55.88Типовой проект 902-5-55.88Типовой проект 902-5-55.88Типовой проект 902-5-55.88Типовой проект 902-5-55.88Типовой проект 902-5-55.88Типовой проект 902-5-55.88

© 2013 Ёшкин Кот :-) Карта сайта