Информационная система
«Ёшкин Кот»

Скачать базу одним архивом
Скачать обновления
История создания базы
Карта сайта

Скачать Типовой проект 902-5-56.88 Альбом 3. Силовое электрооборудование. Технологический контроль

Дата актуализации: 10.08.2017

Типовой проект 902-5-56.88

Альбом 3. Силовое электрооборудование. Технологический контроль

Обозначение: Типовой проект 902-5-56.88
Обозначение англ: 902-5-56.88
Статус:не определен законодательством
Название рус.:Альбом 3. Силовое электрооборудование. Технологический контроль
Дата добавления в базу:01.10.2014
Дата актуализации:05.05.2017
Дата введения:26.10.1988
Оглавление:Содержание
Чертежи основного комплекта марки ЭМ
   Общие данные
   Схема электрическая принципиальная однолинейная 380/220 В
   Насос 1(2, 3). Схема электрическая принципиальная
   Насос 1(2, 3). Схема электрическая принципиальная (вариант для объема 1100 куб. м)
   Насос 1(2, 3). Схема электрическая принципиальная (вариант для объема 2500 куб. м)
   Вентиль 4(5, 6). Схема электрическая принципиальная
   Схема электрическая принципиальная АВР вентиляции
   Приточная система П1. Схема электрическая принципиальная
   Вытяжная система В1. Схема электрическая принципиальная
   Приточная система П2. Схема электрическая принципиальная
   Схема электрическая принципиальная аварийно-предупредительной сигнализации
   Щит ЩСУ. Схема подключений
   Схема электрическая подключений отдельно стоящего оборудования
   Кабельный журнал. Потребность кабелей и проводов
   Расположение электрооборудования и прокладка кабелей
   Прокладка магистралей зануления
   Электроосвещение. План
Прилагаемые документы основного комплекта марки ЭМ
   Щит ЩСУ. Эскиз общего вида
   Пост ПМУ1. Общий вид
   Пост ПМУ1. Схема соединений
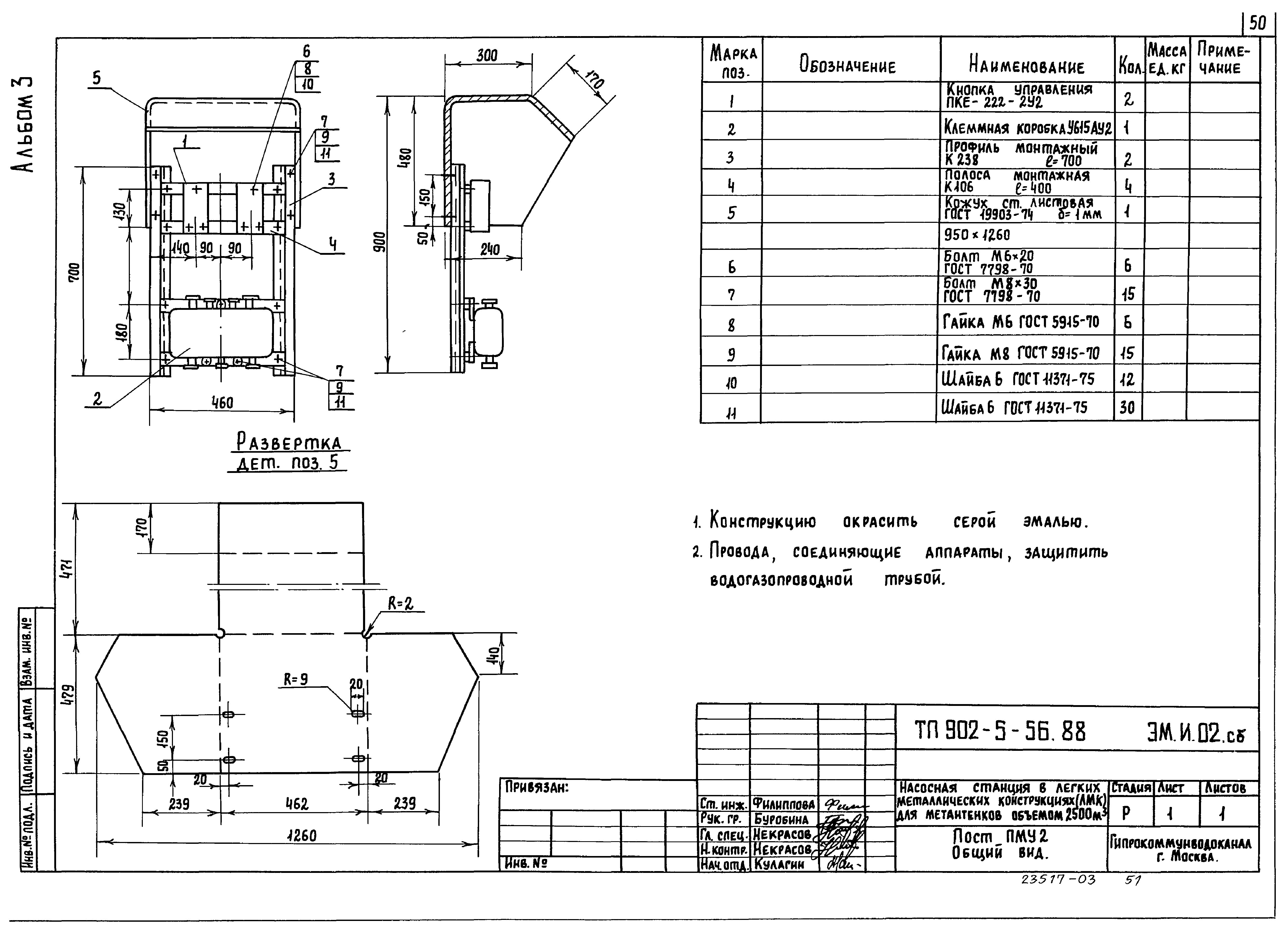
   Пост ПМУ2. Общий вид
   Пост ПМУ2. Схема соединений
   Пост ПМУ3. Общий вид
   Пост ПМУ3. Схема соединений
   Пост ПМУ (5ПМУ, 6ПМУ). Общий вид
   Пост ПМУ (5ПМУ, 6ПМУ). Схема соединений
   Ведомость электромонтажных конструкций и деталей, подлежащих изготовлению в МЭЗ; ведомость изделий и материалов для изготовления электромонтажных конструкций и деталей в МЭЗ
Чертежи основного комплекта марки АТХ
   Общие данные
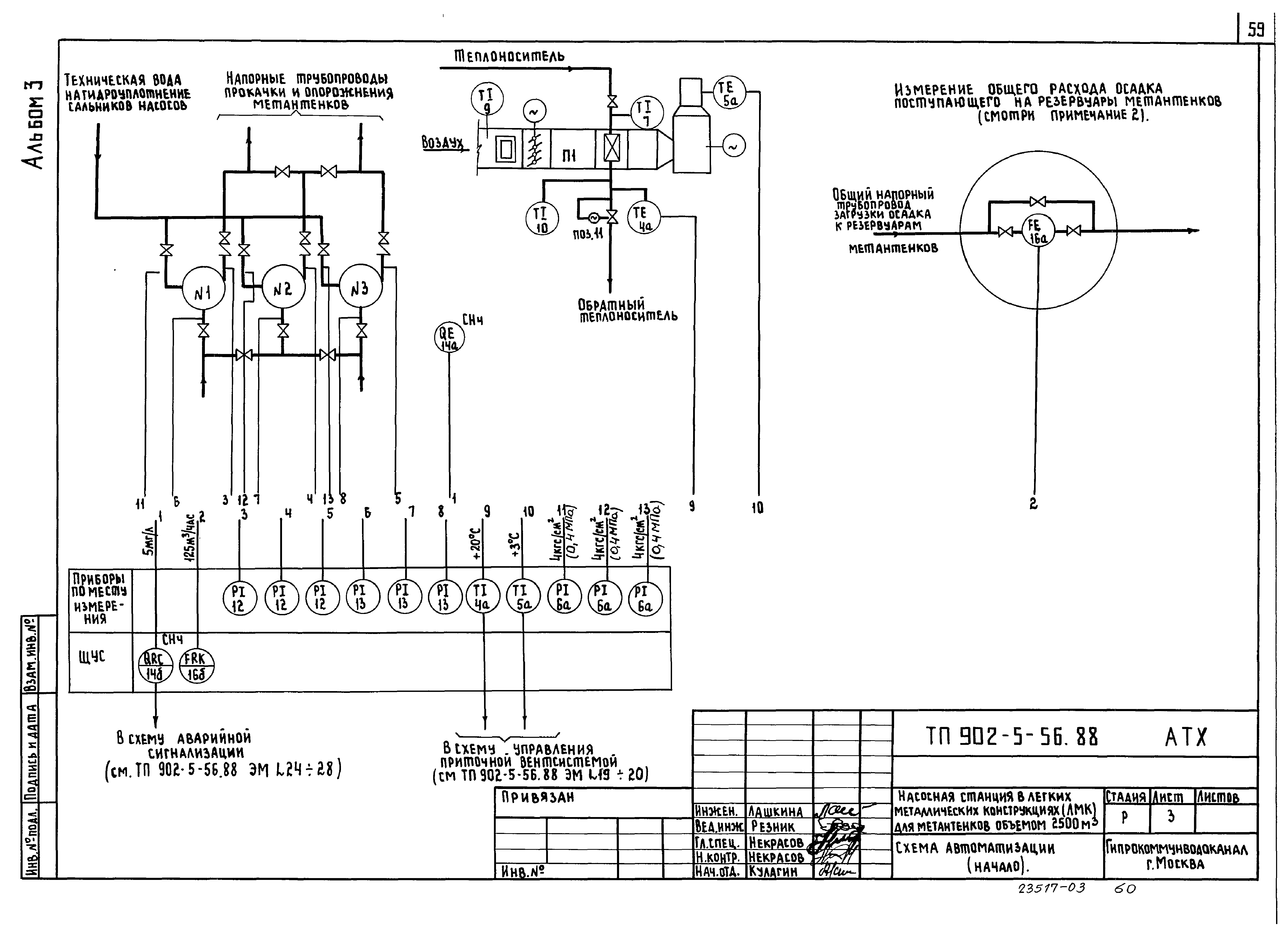
   Схема автоматизации
   Схема электрическая принципиальная питания приборов
   Схема внешних электрических и трубных проводок
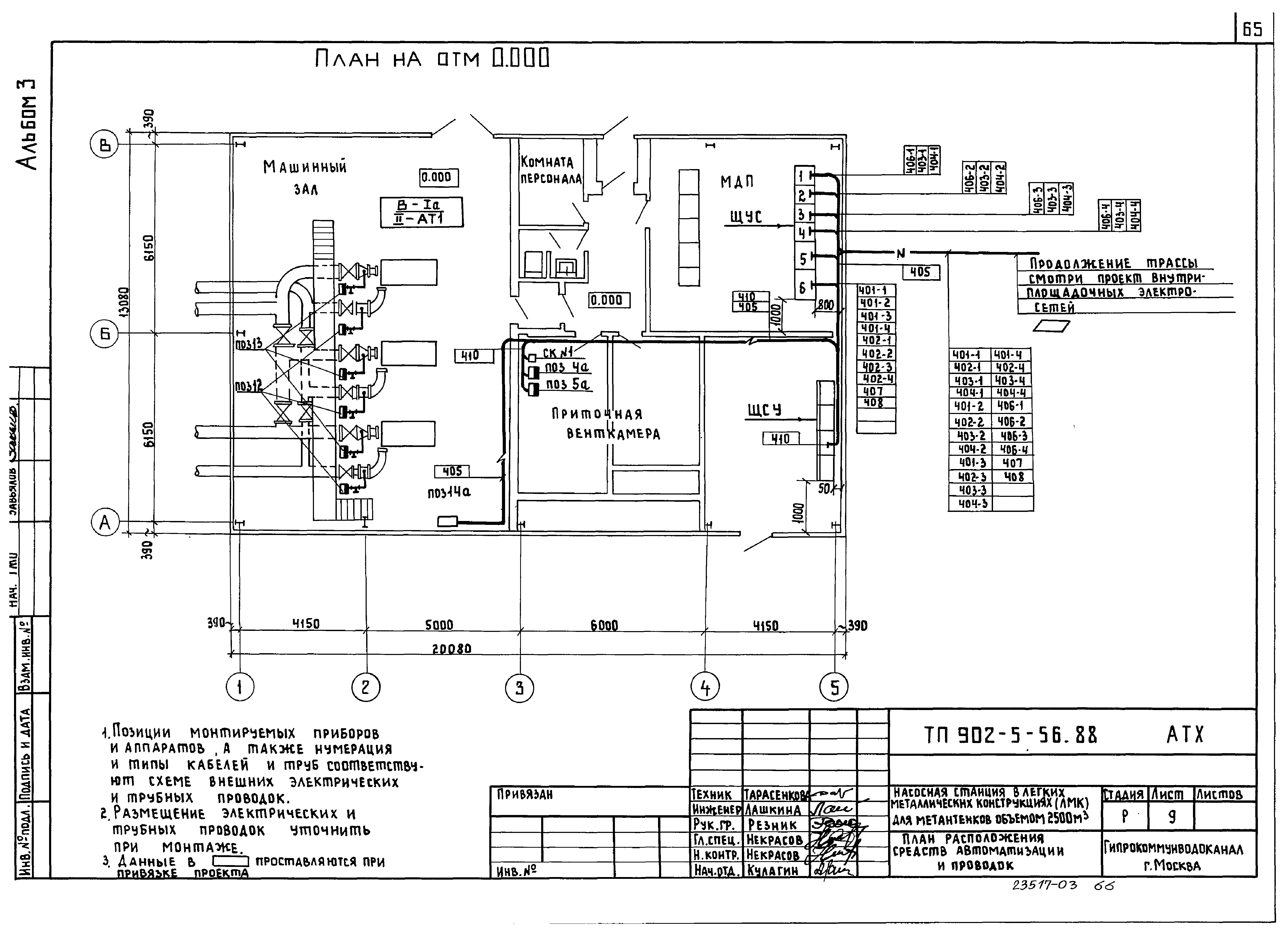
   План расположения средств автоматизации и проводов
   Щит ЩУС. Схема подключения
Разработан: Гипрокоммунводоканал Минжилкомхоза РСФСР
Утверждён:26.10.1988 МЖКХ РСФСР (275)
Расположен в:Техническая документация Строительство Справочные документы Типовые строительные конструкции, изделия и узлы Общероссийский строительный каталог Промышленные предприятия, здания и сооружения Здания и сооружения санитарно-технические Канализация Сооружения для очистки производственных сточных вод Сооружения для обработки осадка
Типовой проект 902-5-56.88Типовой проект 902-5-56.88Типовой проект 902-5-56.88Типовой проект 902-5-56.88Типовой проект 902-5-56.88Типовой проект 902-5-56.88Типовой проект 902-5-56.88Типовой проект 902-5-56.88Типовой проект 902-5-56.88Типовой проект 902-5-56.88Типовой проект 902-5-56.88Типовой проект 902-5-56.88Типовой проект 902-5-56.88Типовой проект 902-5-56.88Типовой проект 902-5-56.88Типовой проект 902-5-56.88Типовой проект 902-5-56.88Типовой проект 902-5-56.88Типовой проект 902-5-56.88Типовой проект 902-5-56.88Типовой проект 902-5-56.88Типовой проект 902-5-56.88Типовой проект 902-5-56.88Типовой проект 902-5-56.88Типовой проект 902-5-56.88Типовой проект 902-5-56.88Типовой проект 902-5-56.88Типовой проект 902-5-56.88Типовой проект 902-5-56.88Типовой проект 902-5-56.88Типовой проект 902-5-56.88Типовой проект 902-5-56.88Типовой проект 902-5-56.88Типовой проект 902-5-56.88Типовой проект 902-5-56.88Типовой проект 902-5-56.88Типовой проект 902-5-56.88Типовой проект 902-5-56.88Типовой проект 902-5-56.88Типовой проект 902-5-56.88Типовой проект 902-5-56.88Типовой проект 902-5-56.88Типовой проект 902-5-56.88Типовой проект 902-5-56.88Типовой проект 902-5-56.88Типовой проект 902-5-56.88Типовой проект 902-5-56.88Типовой проект 902-5-56.88Типовой проект 902-5-56.88Типовой проект 902-5-56.88Типовой проект 902-5-56.88Типовой проект 902-5-56.88Типовой проект 902-5-56.88Типовой проект 902-5-56.88Типовой проект 902-5-56.88Типовой проект 902-5-56.88Типовой проект 902-5-56.88Типовой проект 902-5-56.88Типовой проект 902-5-56.88Типовой проект 902-5-56.88Типовой проект 902-5-56.88Типовой проект 902-5-56.88Типовой проект 902-5-56.88Типовой проект 902-5-56.88Типовой проект 902-5-56.88Типовой проект 902-5-56.88Типовой проект 902-5-56.88Типовой проект 902-5-56.88Типовой проект 902-5-56.88Типовой проект 902-5-56.88

© 2013 Ёшкин Кот :-) Карта сайта