| ||||||||||||||||||||||||
Скачать Типовые проектные решения 820-04-19.85 Альбом VI. Железобетонные конструкции водобойных колодцев и водобойных стенок. Монолитный и сборно-монолитный вариантыДата актуализации: 10.08.2017
|
| Обозначение: | Типовые проектные решения 820-04-19.85 |
| Обозначение англ: | 820-04-19.85 |
| Статус: | cправочные материалы, мп, тпр |
| Название рус.: | Альбом VI. Железобетонные конструкции водобойных колодцев и водобойных стенок. Монолитный и сборно-монолитный варианты |
| Дата добавления в базу: | 01.10.2014 |
| Дата актуализации: | 05.05.2017 |
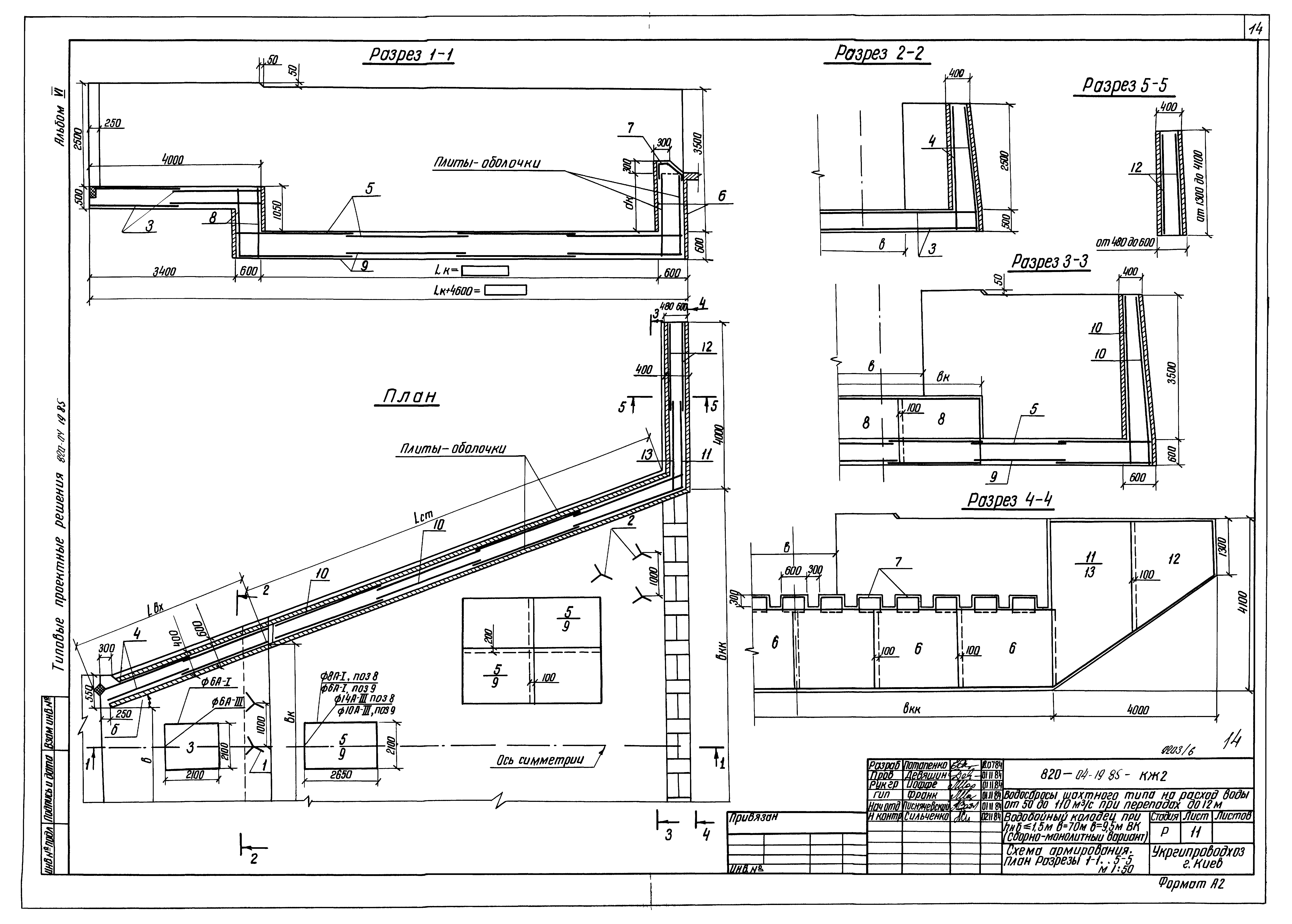
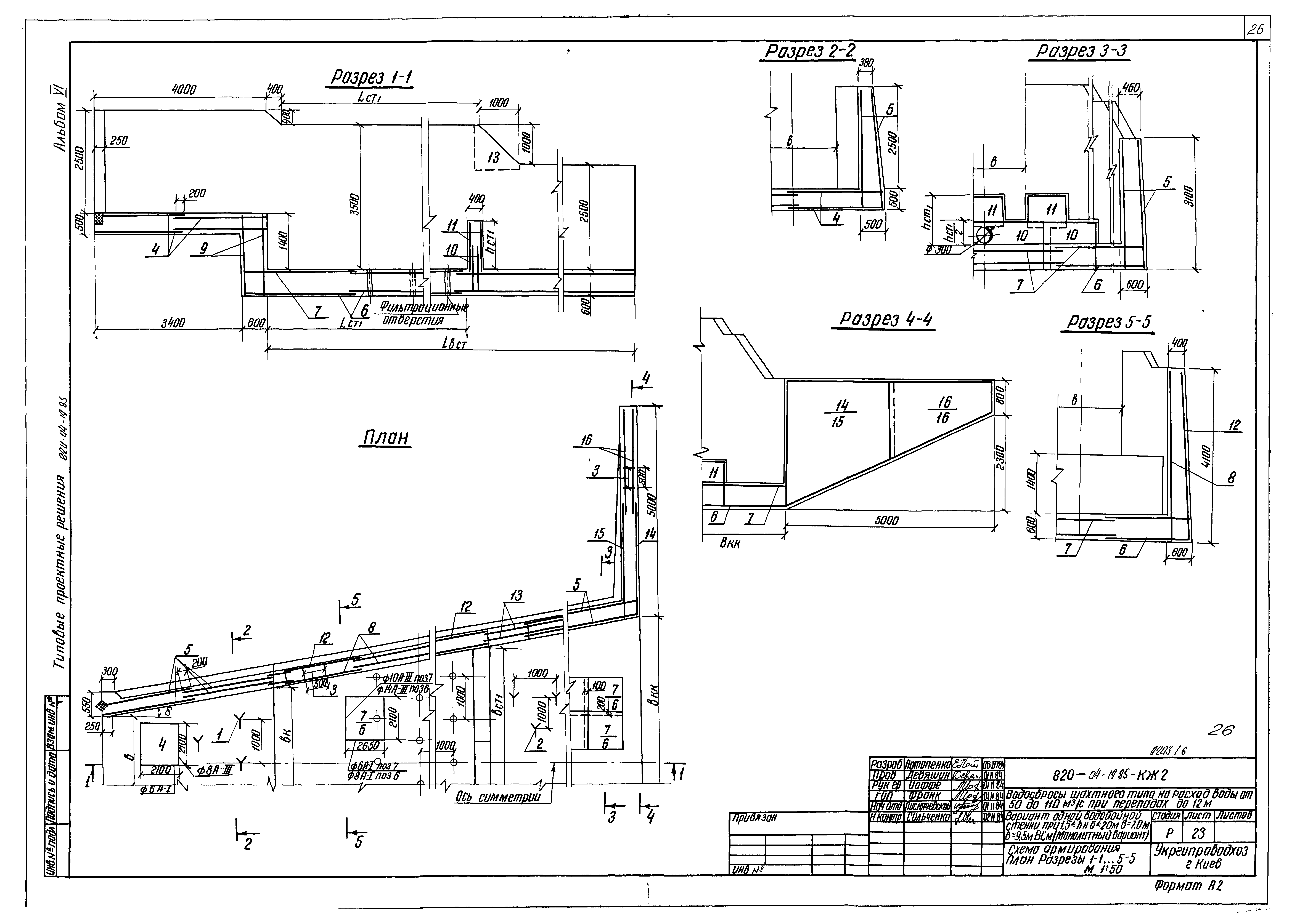
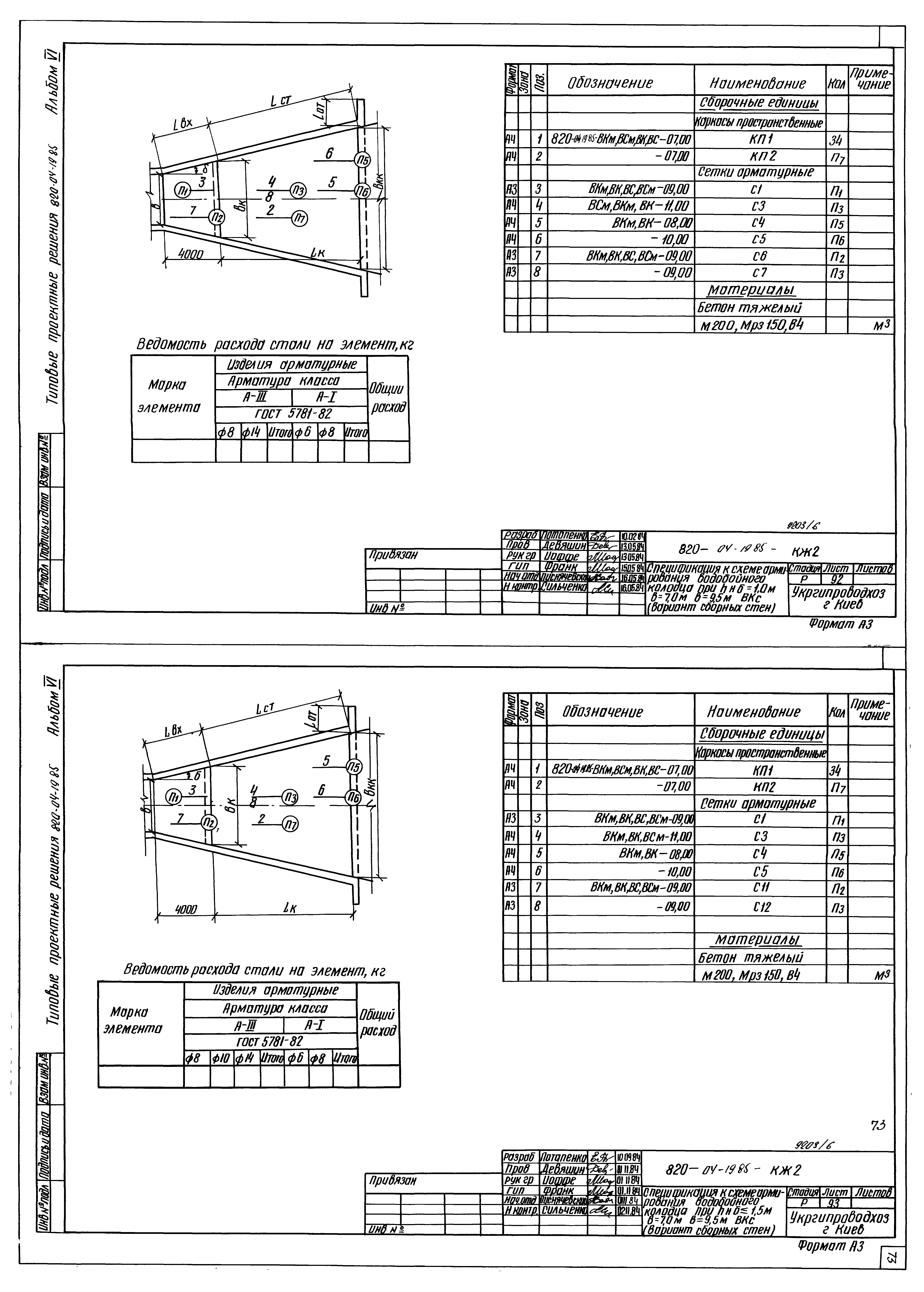
| Оглавление: | Общие данные Водобойный колодец при hнб =< 1,0 м; в = 7,0 м; в = 9,5 м. ВКм (монолитный вариант). Схема армирования. План. Разрезы 1-1…5-5 Водобойный колодец при hнб =< 1,5 м; в = 7,0 м; в = 9,5 м. ВКм (монолитный вариант). Схема армирования. План. Разрезы 1-1…5-5 Водобойный колодец при hнб =< 2,0 м; в = 7,0 м; в = 9,5 м. ВКм (монолитный вариант). Схема армирования. План. Разрезы 1-1…5-5 Водобойный колодец. Схема раскладки плит-оболочек. План. Разрезы 1-1…5-5 Водобойный колодец. Ведомость привязки плит-оболочек при строительстве водобойных колодцев Водобойный колодец при hнб =< 1,0 м; в = 7,0 м; в = 9,5 м. ВК (сборно-монолитный вариант). Схема армирования. План. Разрезы 1-1…5-5 Водобойный колодец при hнб =< 1,5 м; в = 7,0 м; в = 9,5 м. ВК (сборно-монолитный вариант). Схема армирования. План. Разрезы 1-1…5-5 Водобойный колодец при hнб =< 2,0 м; в = 7,0 м; в = 9,5 м. ВК (сборно-монолитный вариант). Схема армирования. План. Разрезы 1-1…5-5 Водобойные стенки. Номограммы для определения размеров и количества водобойных стенок при в = 7,0 м. План. Разрезы 1-1…3-3 Водобойные стенки. Номограммы для определения размеров и количества водобойных стенок при в = 9,5 м. План. Разрезы 1-1…3-3 Вариант трех водобойных стенок при hнб = 1,0 м; в = 7,0 м; в = 9,5 м. ВСм (монолитный вариант). Схема армирования. План. Разрезы 1-1…5-5 Вариант трех водобойных стенок при 1,0 м < hнб =< 1,5 м; в = 7,0 м; в = 9,5 м. ВСм (монолитный вариант). Схема армирования. План. Разрезы 1-1…5-5 Вариант трех водобойных стенок при 1,5 м < hнб =< 2,0 м; в = 7,0 м; в = 9,5 м. ВСм (монолитный вариант). Схема армирования. План. Разрезы 1-1…5-5 Вариант двух водобойных стенок при hнб = 1,0 м; в = 7,0 м; в = 9,5 м. ВСм (монолитный вариант). Схема армирования. План. Разрезы 1-1…5-5 Вариант двух водобойных стенок при 1,0 м < hнб =< 1,5 м; в = 7,0 м; в = 9,5 м. ВСм (монолитный вариант). Схема армирования. План. Разрезы 1-1…5-5 Вариант двух водобойных стенок при 1,5 м < hнб =< 2,0 м; в = 7,0 м; в = 9,5 м. ВСм (монолитный вариант). Схема армирования. План. Разрезы 1-1…5-5 Вариант одной водобойной стенки при hнб = 1,0 м; в = 7,0 м; в = 9,5 м. ВСм (монолитный вариант). Схема армирования. План. Разрезы 1-1…5-5 Вариант одной водобойной стенки при 1,0 м < hнб =< 1,5 м; в = 7,0 м; в = 9,5 м. ВСм (монолитный вариант). Схема армирования. План. Разрезы 1-1…5-5 Вариант одной водобойной стенки при 1,5 м < hнб =< 2,0 м; в = 7,0 м; в = 9,5 м. ВСм (монолитный вариант). Схема армирования. План. Разрезы 1-1…5-5 Водобойные стенки. Схема раскладки плит-оболочек. План. Разрезы 1-1…5-5 Водобойные стенки. Ведомость привязки плит-оболочек при строительстве водобойных колодцев Вариант трех водобойных стенок при hнб =1,0 м; в = 7,0 м; в = 9,5 м. ВС (сборно-монолитный вариант). Схема армирования. План. Разрезы 1-1…5-5 Вариант трех водобойных стенок при 1,0 м < hнб =< 1,5 м; в = 7,0 м; в = 9,5 м. ВС (сборно-монолитный вариант). Схема армирования. План. Разрезы 1-1…5-5 Вариант трех водобойных стенок при 1,5 м < hнб =< 2,0 м; в = 7,0 м; в = 9,5 м. ВС (сборно-монолитный вариант). Схема армирования. План. Разрезы 1-1…5-5 Вариант двух водобойных стенок при hнб = 1,0 м; в = 7,0 м; в = 9,5 м. ВС (сборно-монолитный вариант). Схема армирования. План. Разрезы 1-1…5-5 Вариант двух водобойных стенок при 1,0 м < hнб =< 1,5 м; в = 7,0 м; в = 9,5 м. ВС (сборно-монолитный вариант). Схема армирования. План. Разрезы 1-1…5-5 Вариант двух водобойных стенок при 1,5 м < hнб =< 2,0 м; в = 7,0 м; в = 9,5 м. ВС (сборно-монолитный вариант). Схема армирования. План. Разрезы 1-1…5-5 Вариант одной водобойной стенки при hнб = 1,0 м; в = 7,0 м; в = 9,5 м. ВС (сборно-монолитный вариант). Схема армирования. План. Разрезы 1-1…5-5 Вариант одной водобойной стенки при 1,0 м < hнб =< 1,5 м; в = 7,0 м; в = 9,5 м. ВС (сборно-монолитный вариант). Схема армирования. План. Разрезы 1-1…5-5 Вариант одной водобойной стенки при 1,5 м < hнб =< 2,0 м; в = 7,0 м; в = 9,5 м. ВС (сборно-монолитный вариант). Схема армирования. План. Разрезы 1-1…5-5 Водобойный колодец (вариант сборных стен). Схема раскладки стеновых блоков марки СБ. План. Разрезы 1-1…5-5 Водобойный колодец (вариант сборных стен). Ведомость привязки стеновых блоков СБ при строительстве водобойных колодцев Водобойный колодец при hнб = 1,0 м; в = 7,0 м; в = 9,5 м. ВКс (вариант сборных стен). Схема армирования. План. Разрезы 1-1…5-5 Водобойный колодец при hнб =< 1,5 м; в = 7,0 м; в = 9,5 м. ВКс (вариант сборных стен). Схема армирования. План. Разрезы 1-1…5-5 Водобойный колодец при hнб =< 2,0 м; в = 7,0 м; в = 9,5 м. ВКс (вариант сборных стен). Схема армирования. План. Разрезы 1-1…5-5 Водобойные стенки (вариант сборных стен). Схема раскладки стеновых блоков марки СБ. План. Разрезы 1-1…5-5 Водобойные стенки (вариант сборных стен). Ведомость привязки стеновых блоков СБ при строительстве водобойных колодцев Вариант трех водобойных стенок при hнб = 1,0 м; в = 7,0 м; в = 9,5 м. ВСс (вариант сборных стен). Схема армирования. План. Разрезы 1-1…5-5 Вариант трех водобойных стенок при 1,0 м < hнб =< 1,5 м; в = 7,0 м; в = 9,5 м. ВСс (вариант сборных стен). Схема армирования. План. Разрезы 1-1…5-5 Вариант трех водобойных стенок при 1,5 м < hнб =< 2,0 м; в = 7,0 м; в = 9,5 м. ВСс (вариант сборных стен). Схема армирования. План. Разрезы 1-1…5-5 Вариант водобойных колодцев. Номограммы для определения количества сеток при hнб = 1,0 м; hнб = 1,5 м Вариант водобойных колодцев. Номограммы для определения количества сеток при hнб =< 2,0 м Вариант водобойных стенок. Номограммы для определения количества сеток при hнб = 1,0 м; 1,0 м < hнб =< 1,5 м Вариант водобойных стенок. Номограммы для определения количества сеток при 1,5 м < hнб =< 2,0 м Спецификация к схеме армирования водобойного колодца при hнб = 1,0 м; в = 7,0 м; в = 9,5 м. ВКм (монолитный вариант) Спецификация к схеме армирования водобойного колодца при hнб =< 1,5 м; в = 7,0 м; в = 9,5 м. ВКм (монолитный вариант) Спецификация к схеме армирования водобойного колодца при hнб =< 2,0 м; в = 7,0 м; в = 9,5 м. ВКм (монолитный вариант) Спецификация к схеме армирования водобойного колодца при hнб = 1,0 м; в = 7,0 м; в = 9,5 м. ВК (сборно-монолитный вариант) Спецификация к схеме армирования водобойного колодца при hнб =< 1,5 м; в = 7,0 м; в = 9,5 м. ВК (сборно-монолитный вариант) Спецификация к схеме армирования водобойного колодца при hнб =< 2,0 м; в = 7,0 м; в = 9,5 м. ВК (сборно-монолитный вариант) Спецификация к схеме армирования трех водобойных стенок при hнб = 1,0 м; в = 7,0 м. ВСм (монолитный вариант) Спецификация к схеме армирования трех водобойных стенок при hнб = 1,0 м; в = 9,5 м. ВСм (монолитный вариант) Спецификация к схеме армирования трех водобойных стенок при 1,0 м < hнб =< 1,5 м; в = 7,0 м. ВСм (монолитный вариант) Спецификация к схеме армирования трех водобойных стенок при 1,0 м < hнб =< 1,5 м; в = 9,5 м. ВСм (монолитный вариант) Спецификация к схеме армирования трех водобойных стенок при 1,5 м < hнб =< 2,0 м; в = 7,0 м. ВСм (монолитный вариант) Спецификация к схеме армирования трех водобойных стенок при 1,5 м < hнб =< 2,0 м; в = 9,5 м. ВСм (монолитный вариант) Спецификация к схеме армирования двух водобойных стенок при hнб = 1,0 м; в = 7,0 м. ВСм (монолитный вариант) Спецификация к схеме армирования двух водобойных стенок при hнб = 1,0 м; в = 9,5 м. ВСм (монолитный вариант) Спецификация к схеме армирования двух водобойных стенок при 1,0 м < hнб =< 1,5 м; в = 7,0 м. ВСм (монолитный вариант) Спецификация к схеме армирования двух водобойных стенок при 1,0 м < hнб =< 1,5 м; в = 9,5 м. ВСм (монолитный вариант) Спецификация к схеме армирования двух водобойных стенок при 1,5 м < hнб =< 2,0 м; в = 7,0 м. ВСм (монолитный вариант) Спецификация к схеме армирования двух водобойных стенок при 1,5 м < hнб =< 2,0 м; в = 9,5 м. ВСм (монолитный вариант) Спецификация к схеме армирования одной водобойной стенки при hнб = 1,0 м; в = 7,0 м. ВСм (монолитный вариант) Спецификация к схеме армирования одной водобойной стенки при hнб = 1,0 м; в = 9,5 м. ВСм (монолитный вариант) Спецификация к схеме армирования одной водобойной стенки при 1,0 м < hнб =< 1,5 м; в = 7,0 м. ВСм (монолитный вариант) Спецификация к схеме армирования одной водобойной стенки при 1,0 м < hнб =< 1,5 м; в = 9,5 м. ВСм (монолитный вариант) Спецификация к схеме армирования одной водобойной стенки при 1,5 м < hнб =< 2,0 м; в = 7,0 м. ВСм (монолитный вариант) Спецификация к схеме армирования одной водобойной стенки при 1,5 м < hнб =< 2,0 м; в = 9,5 м. ВСм (монолитный вариант) Спецификация к схеме армирования трех водобойных стенок при hнб = 1,0 м; в = 7,0 м. ВС (сборно-монолитный вариант) Спецификация к схеме армирования трех водобойных стенок при hнб = 1,0 м; в = 9,5 м. ВС (сборно-монолитный вариант) Спецификация к схеме армирования трех водобойных стенок при 1,0 м < hнб =< 1,5 м; в = 7,0 м. ВС (сборно-монолитный вариант) Спецификация к схеме армирования трех водобойных стенок при 1,0 м < hнб =< 1,5 м; в = 9,5 м. ВС (сборно-монолитный вариант) Спецификация к схеме армирования трех водобойных стенок при 1,5 м < hнб =< 2,0 м; в = 7,0 м. ВС (сборно-монолитный вариант) Спецификация к схеме армирования трех водобойных стенок при 1,5 м < hнб =< 2,0 м; в = 9,5 м. ВС (сборно-монолитный вариант) Спецификация к схеме армирования двух водобойных стенок при hнб = 1,0 м; в = 7,0 м. ВС (сборно-монолитный вариант) Спецификация к схеме армирования двух водобойных стенок при hнб = 1,0 м; в = 9,5 м. ВС (сборно-монолитный вариант) Спецификация к схеме армирования двух водобойных стенок при 1,0 м < hнб =< 1,5 м; в = 7,0 м. ВС (сборно-монолитный вариант) Спецификация к схеме армирования двух водобойных стенок при 1,0 м < hнб =< 1,5 м; в = 9,5 м. ВС (сборно-монолитный вариант) Спецификация к схеме армирования двух водобойных стенок при 1,5 м < hнб =< 2,0 м; в = 7,0 м. ВС (сборно-монолитный вариант) Спецификация к схеме армирования двух водобойных стенок при 1,5 м < hнб =< 2,0 м; в = 9,5 м. ВС (сборно-монолитный вариант) Спецификация к схеме армирования одной водобойной стенки при hнб = 1,0 м; в = 7,0 м. ВС (сборно-монолитный вариант) Спецификация к схеме армирования одной водобойной стенки при hнб = 1,0 м; в = 9,5 м. ВС (сборно-монолитный вариант) Спецификация к схеме армирования одной водобойной стенки при 1,0 м < hнб =< 1,5 м; в = 7,0 м. ВС (сборно-монолитный вариант) Спецификация к схеме армирования одной водобойной стенки при 1,0 м < hнб =< 1,5 м; в = 9,5 м. ВС (сборно-монолитный вариант) Спецификация к схеме армирования одной водобойной стенки при 1,5 м < hнб =< 2,0 м; в = 7,0 м. ВС (сборно-монолитный вариант) Спецификация к схеме армирования одной водобойной стенки при 1,5 м < hнб =< 2,0 м; в = 9,5 м. ВС (сборно-монолитный вариант) Спецификация к схеме армирования водобойного колодца при hнб = 1,0 м; в = 7,0 м; в = 9,5 м. ВКс (вариант сборных стен) Спецификация к схеме армирования водобойного колодца при hнб =< 1,5 м; в = 7,0 м; в = 9,5 м. ВКс (вариант сборных стен) Спецификация к схеме армирования водобойного колодца при hнб =< 2,0 м; в = 7,0 м; в = 9,5 м. ВКс (вариант сборных стен) Спецификация к схеме армирования трех водобойных стенок при hнб = 1,0 м; в = 7,0 м. ВСс (вариант сборных стен) Спецификация к схеме армирования трех водобойных стенок при hнб = 1,0 м; в = 9,5 м. ВСс (вариант сборных стен) Спецификация к схеме армирования трех водобойных стенок при 1,0 м < hнб =< 1,5 м; в = 7,0 м. ВСс (вариант сборных стен) Спецификация к схеме армирования трех водобойных стенок при 1,0 м < hнб =< 1,5 м; в = 9,5 м. ВСс (вариант сборных стен) Спецификация к схеме армирования трех водобойных стенок при 1,5 м < hнб =< 2,0 м; в = 7,0 м. ВСс (вариант сборных стен) Спецификация к схеме армирования трех водобойных стенок при 1,5 м < hнб =< 2,0 м; в = 9,5 м. ВСс (вариант сборных стен) Каркас плоский КР1 Каркас плоский КР2 Каркас плоский КР3 Каркас плоский КР4 Каркас плоский КР5 Каркас плоский КР6 Каркас пространственный КП (КП1, КП2) Сетка арматурная С (С4, С8) Сетка арматурная С (С1, С2, С6, С7, С11, С18, С12) Сетка арматурная С5 Сетка арматурная С3 Сетка арматурная С (С9, С10, С16, С17) Сетка арматурная С13 Сетка арматурная С14 Сетка арматурная С19 Сетка арматурная С20 Сетка арматурная С (С21…С23, С15) Сетка арматурная С (С24, С35) Сетка арматурная С34 Сетка арматурная С (С25, С27…С33, С36) Сетка арматурная С (С26, С37…С39) Сетка арматурная С41 Сетка арматурная С40 Сетка арматурная С (С44…С47) Сетка арматурная С (С42, С43) Сетка арматурная С (С49, С48) Сетка арматурная С (С50…С52) Сетка арматурная С (С53, С54) Сетка арматурная С60 Сетка арматурная С (С55…С59) |
| Разработан: | Укргипроводхоз Минводхоза СССР |
| Утверждён: | 29.04.1985 Минводхоз СССР (USSR Minvodkhoz 434) |
| Расположен в: |






















































































