Скачать Типовой проект 411-2-187.88 Альбом 1. Общая пояснительная записка. Технологические решенияДата актуализации: 10.08.2017 Типовой проект 411-2-187.88
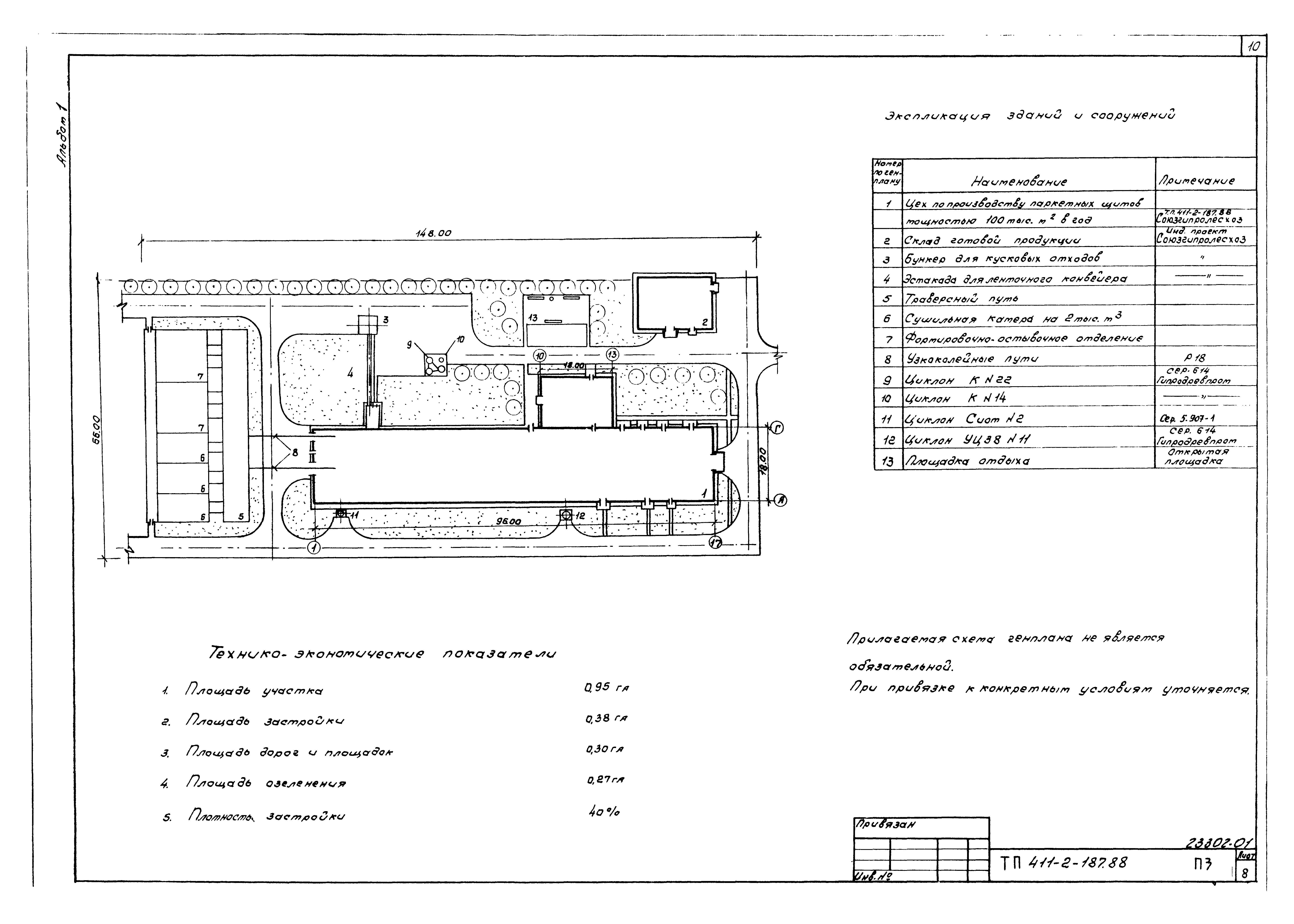
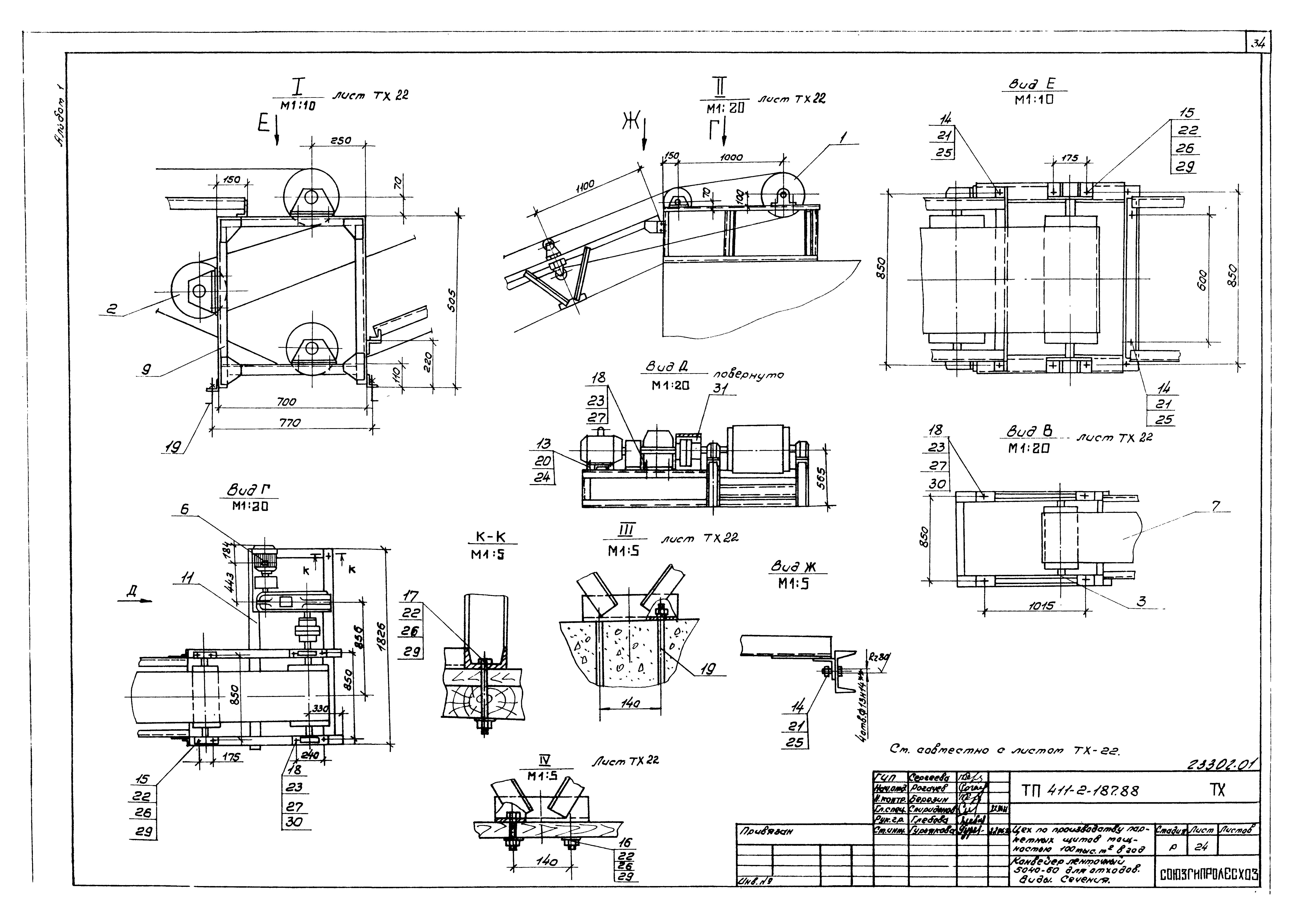
Альбом 1. Общая пояснительная записка. Технологические решенияОбозначение: | Типовой проект 411-2-187.88 | Обозначение англ: | 411-2-187.88 | Статус: | не определен законодательством | Название рус.: | Альбом 1. Общая пояснительная записка. Технологические решения | Дата добавления в базу: | 01.10.2014 | Дата актуализации: | 05.05.2017 | Дата введения: | 27.06.1988 | Оглавление: | Содержание Пояснительная записка Технологические решения Общие данные Описание технологического процесса План расположения технологического оборудования в осях 1 - 9 План расположения технологического оборудования в осях 9 - 17 Расположение технологического оборудования. Разрез 1-1, 2-2 Перечень технологического оборудования План расположения оборудования буфета на 12 посадочных мест Разводка сжатого воздуха. План. Спецификация потребителей Схема разводки сжатого воздуха. Узлы Околопрессовая механизация. Монтажный чертеж Конвейер ленточный 4025-40 длиной 6,5 м. Общий вид Конвейер ленточный 4025-40 длиной 6,5 м. Сечения. Спецификация Конвейер ленточный 4025-40 длиной 6,5 м. Кронштейн. Станина Конвейер ленточный 4025-40. Станина. Рама под натяжное устройство Конвейер ленточный 4025-40 длиной 3,8 м. Общий вид Конвейер ленточный 4025-40 длиной 3,8 м. Спецификация. Сечения Конвейер ленточный 4025-40 длиной 6,5; 3,8 м. Кронштейн Конвейер ленточный 4025-40 длиной 6,5; 3,8 м. Рама привода Конвейер ленточный 5040-60 для отходов. Общий вид Конвейер ленточный 5040-60 для отходов. Спецификация. Сечения Конвейер ленточный 5040-60 для отходов. Виды. Сечения Конвейер ленточный 5040-60 для отходов. Станина Конвейер ленточный 5040-60 для отходов. Рама привода Конвейер ленточный 5040-60 для отходов. Рама привода. Детали Конвейер ленточный 5040-60 для отходов. Станина наклонная Конвейер ленточный 5040-60 для отходов. Рама оборотного устройства Механизм закрывания бункера для кусковых отходов Технология пароснабжения. План на отм. 0.000. Схема. Узел управления №2 | Разработан: | Союзгипролесхоз
| Утверждён: | 20.06.1988 Госкомлес СССР (USSR Goskomles 16)
| Издан: | ЦИТП Госстроя СССР (CITP, Gosstroy (USSR) 1989 г. )
| Расположен в: |
|
                                         
|