| 
 | ||||||||||||||||||||||||||||
| 
 Скачать Альбом ПП 16-22 Альбом 2-07. Вертикальные упорыДата актуализации: 10.08.2017
 | 
| Обозначение: |  Альбом ПП 16-22 | 
| Обозначение англ: |  ПП 16-22 | 
| Статус: | не определен законодательством | 
| Название рус.: | Альбом 2-07. Вертикальные упоры | 
| Дата добавления в базу: | 01.10.2014 | 
| Дата актуализации: | 05.05.2017 | 
| Дата введения: | 19.01.2006 | 
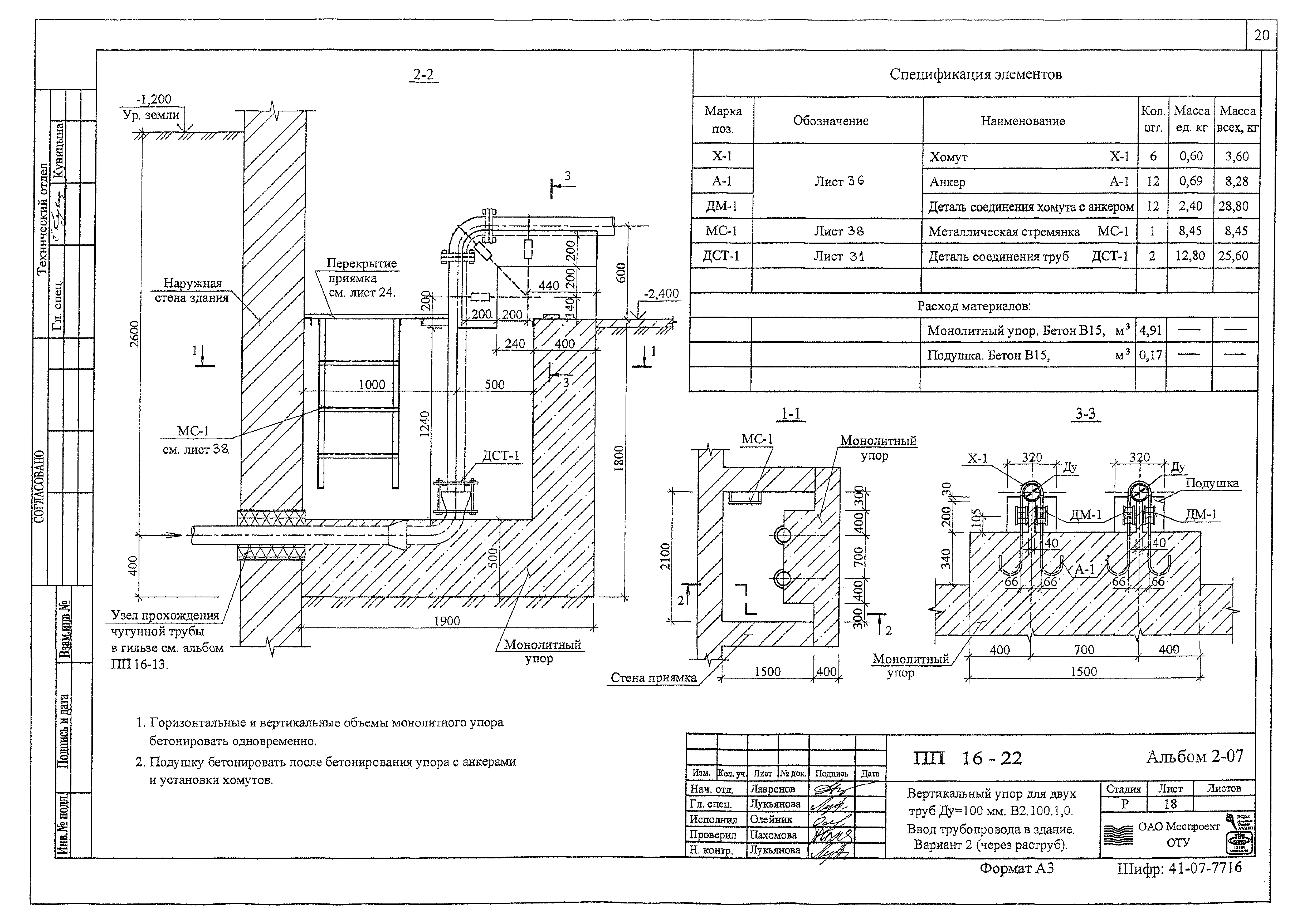
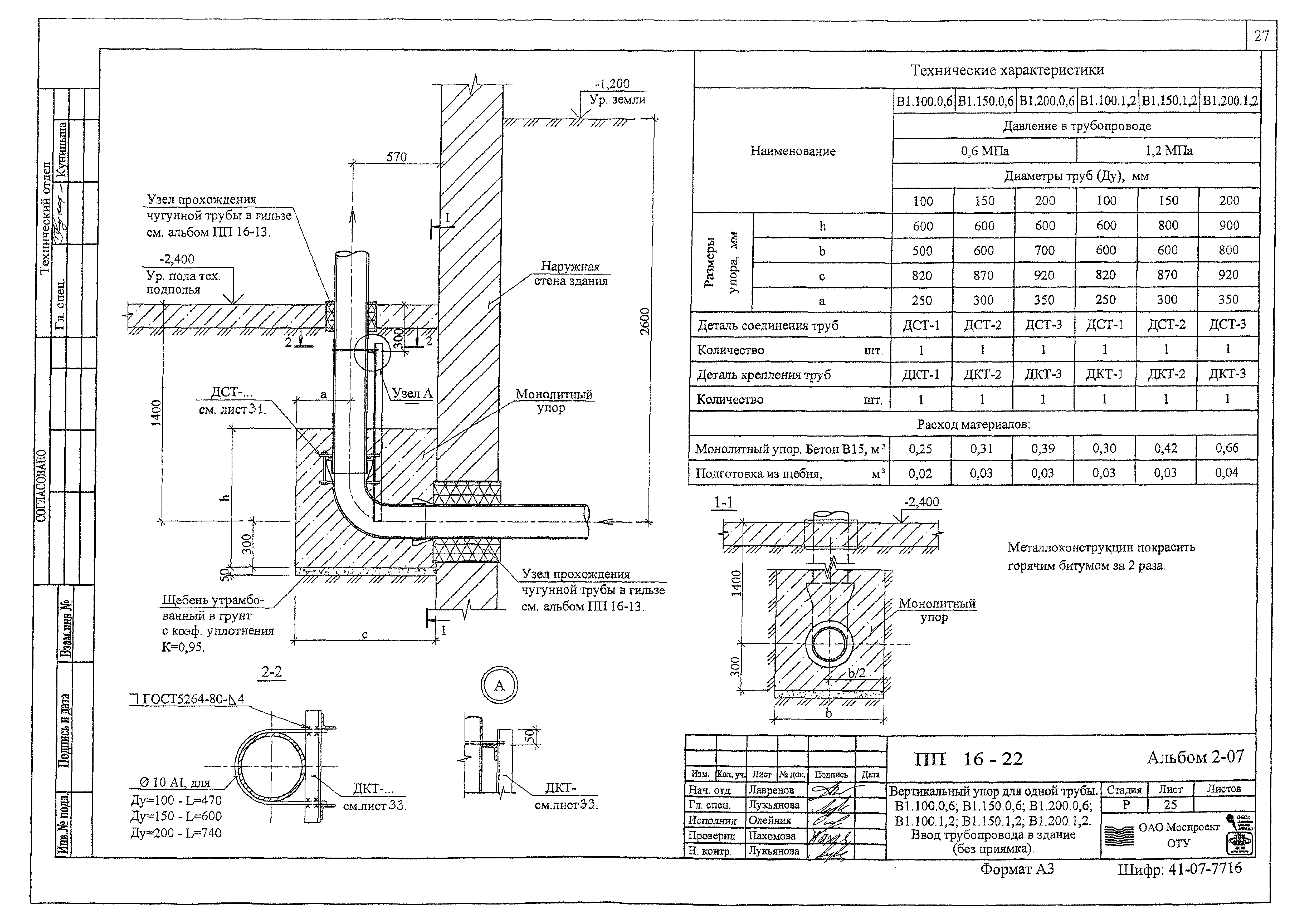
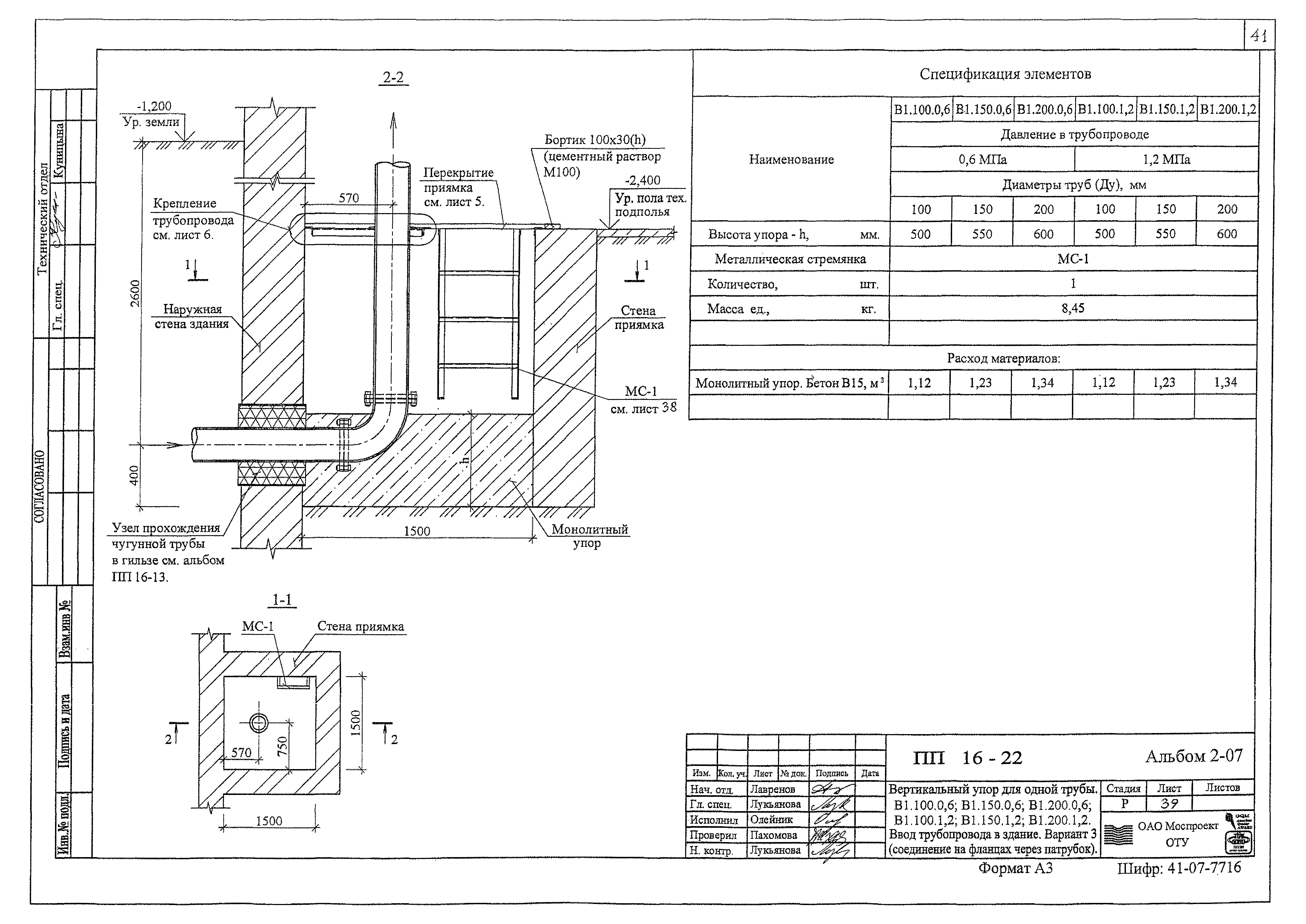
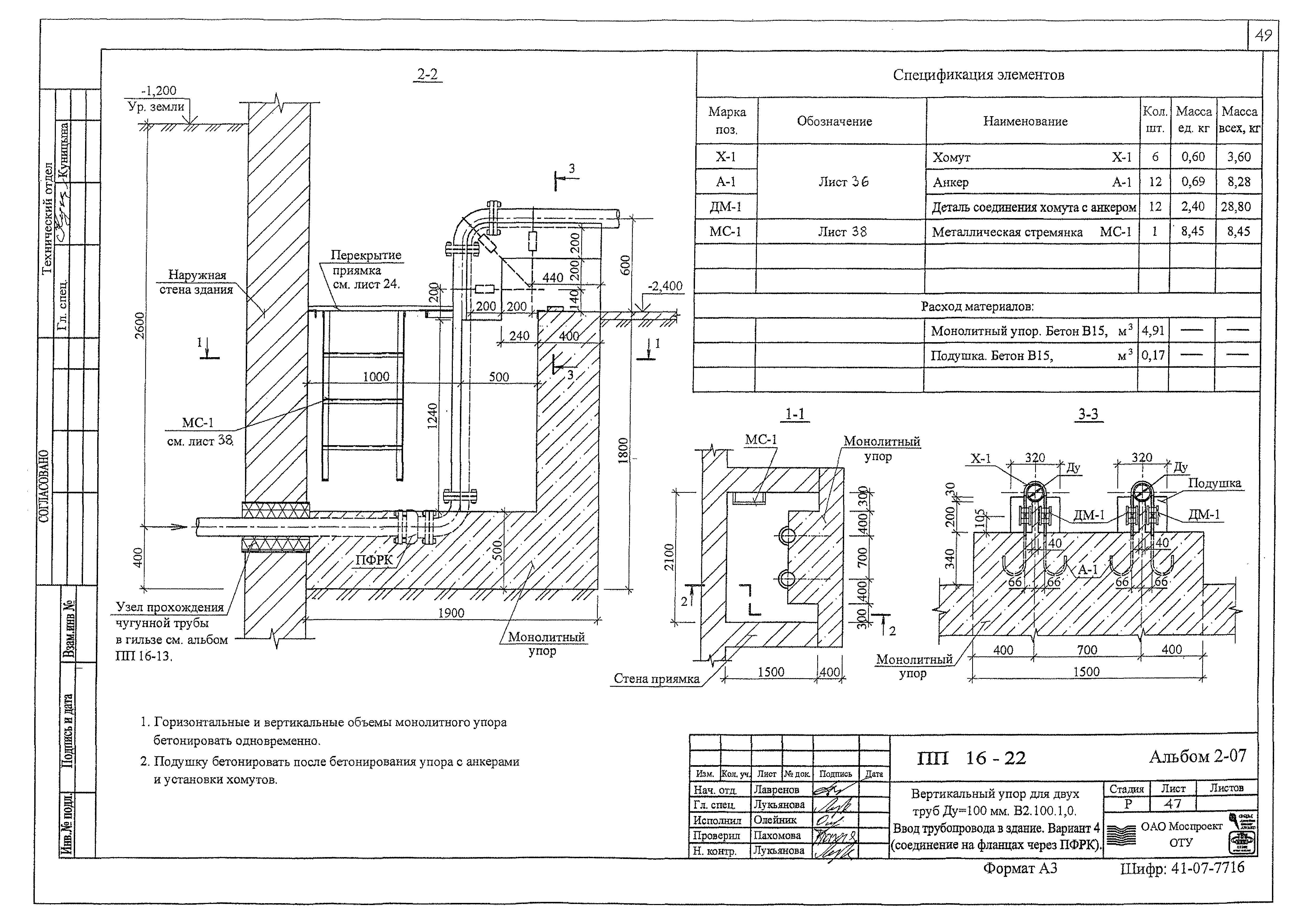
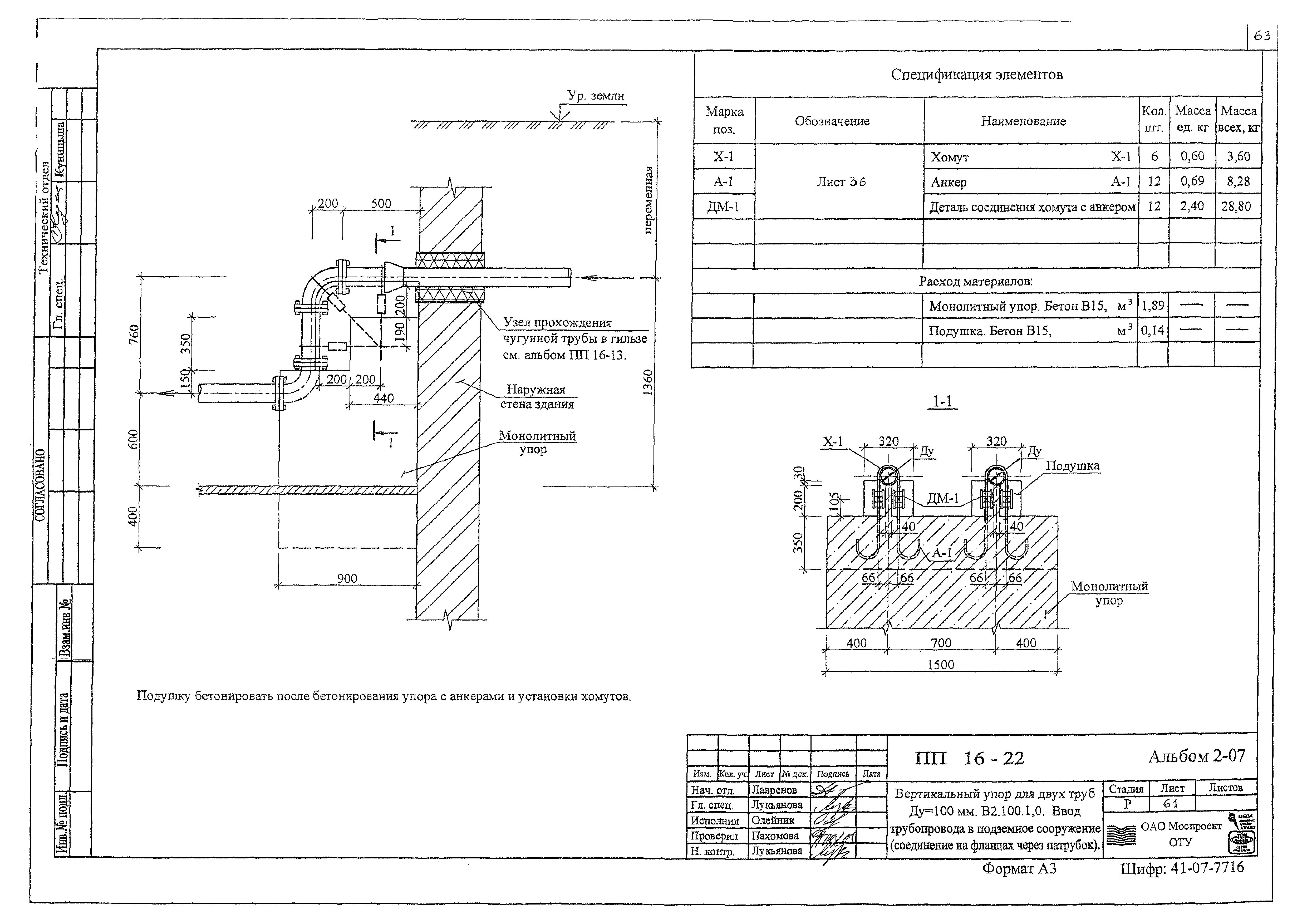
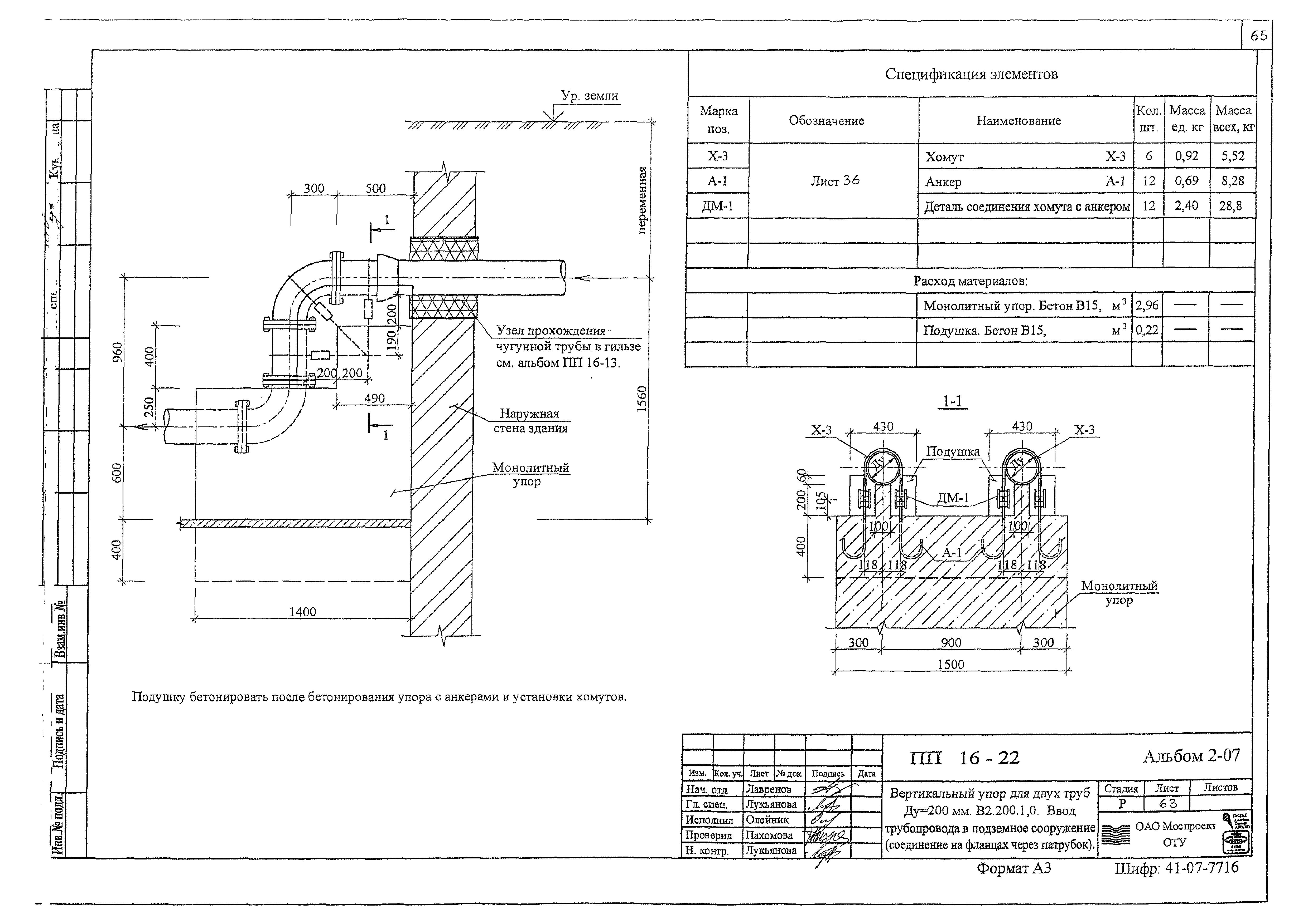
| Оглавление: | Общие данные Ввод трубопровода в здание. Вариант 1 (через раструб) Вертикальный упор для одной трубы Вертикальный упор для двух труб Ввод трубопровода в здание. Вариант 2 (через раструб) Вертикальный упор для двух труб Ввод трубопровода в ЦТП, ИТП (без приямка) Вертикальный упор для одной трубы Вертикальный упор для двух труб Ввод трубопровода в здание (без приямка) Вертикальный упор для двух труб Вертикальный упор для одной трубы Ввод трубопровода в здание. Вариант 3 (соединение на фланцах через патрубок) Вертикальный упор для одной трубы Вертикальный упор для двух труб Ввод трубопровода в здание. Вариант 4 (соединение на фланцах через ПФРК) Ввод трубопровода в ЦТП, ИТП (через раструб) Вертикальный упор для одной трубы Вертикальный упор для двух труб Ввод трубопровода в ЦТП, ИТП (соединение на фланцах через патрубок) Вертикальный упор для одной трубы Вертикальный упор для двух труб Ввод трубопровода в подземное сооружение (соединение на фланцах через патрубок) Вертикальный упор для одной трубы Вертикальный упор для двух труб | 
| Разработан: | ОАО Моспроект | 
| Утверждён: | 19.01.2006 ОАО Моспроект (Mosproject OAO 11) | 
| Принят: | 18.08.2006 Мосводопровод | 
| Расположен в: | 



































































