Скачать Типовой проект 411-2-191.88 Альбом 4. Силовое электрооборудование. Осветительное электрооборудование. Связь и сигнализация. Автоматизация отопления и вентиляции. Автоматизация водопровода и канализацииДата актуализации: 10.08.2017 Типовой проект 411-2-191.88
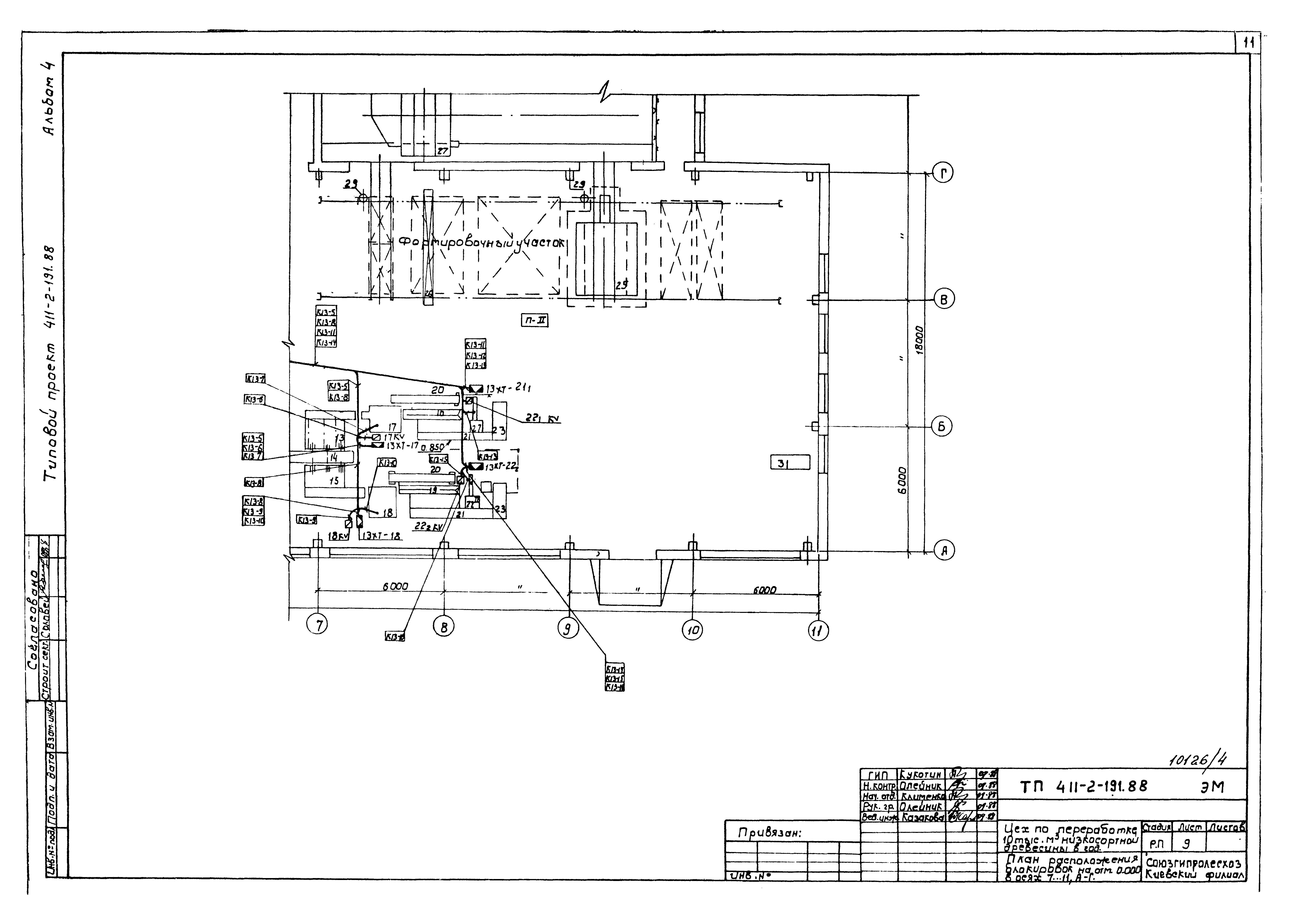
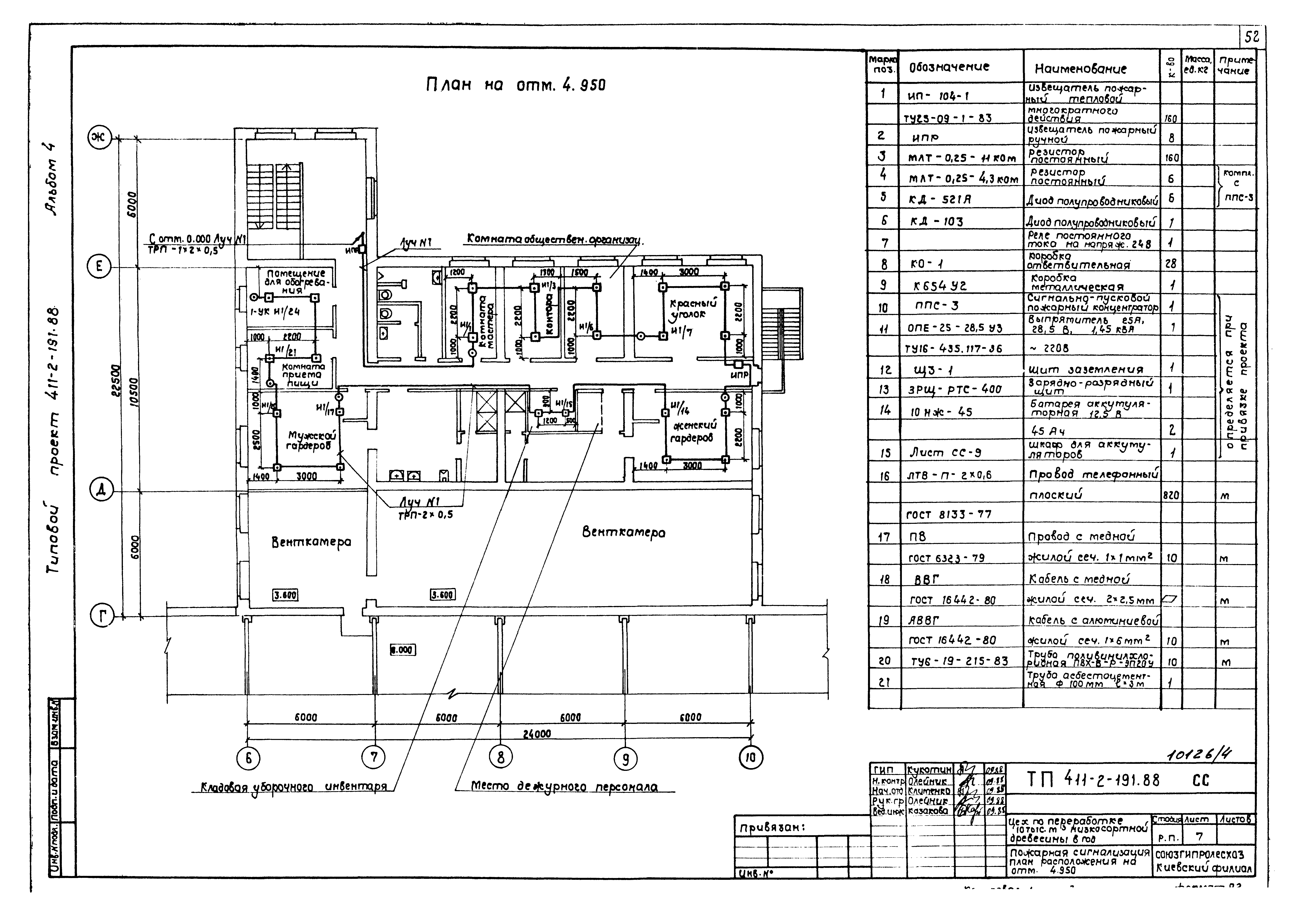
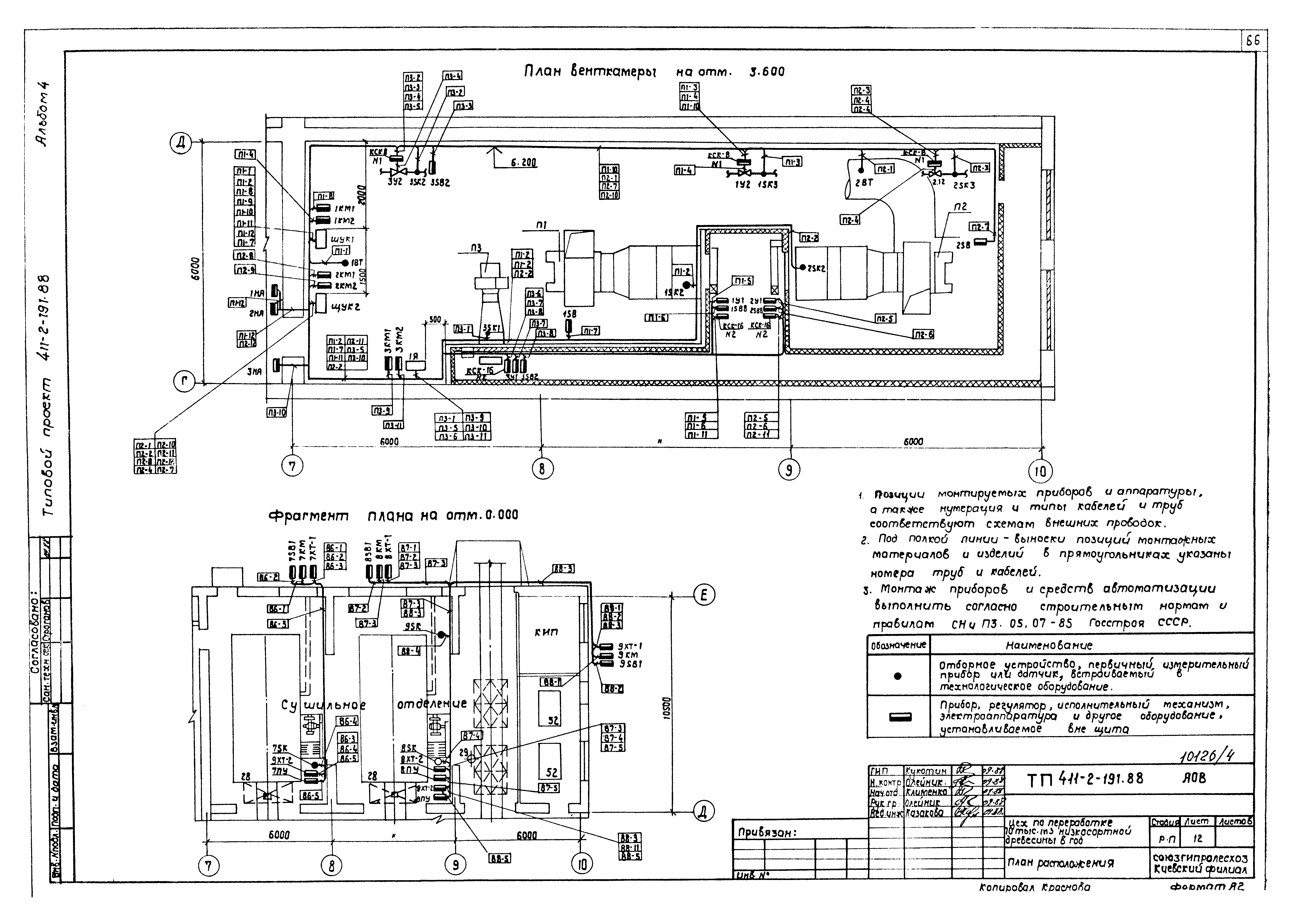
Альбом 4. Силовое электрооборудование. Осветительное электрооборудование. Связь и сигнализация. Автоматизация отопления и вентиляции. Автоматизация водопровода и канализацииОбозначение: | Типовой проект 411-2-191.88 | Обозначение англ: | 411-2-191.88 | Статус: | не определен законодательством | Название рус.: | Альбом 4. Силовое электрооборудование. Осветительное электрооборудование. Связь и сигнализация. Автоматизация отопления и вентиляции. Автоматизация водопровода и канализации | Дата добавления в базу: | 01.10.2014 | Дата актуализации: | 05.05.2017 | Дата введения: | 20.09.1988 | Оглавление: | Содержание альбома Силовое электрооборудование Общие данные План расположения на отм. 0.000 в осях 1 - 7 и А - Г План расположения на отм. 0.000 в осях 1 - 11 и А - Г План расположения на отм. 0.000 в осях 6 - 10 и Г - Е План расположения на отм. 3.600 в осях 6 - 10 и Г - Д. План кровли. Молниезащита. Заземление крышных вентиляторов. Электрощитовая на отм. 0.000 План расположения блокировок на отм. 0.000 в осях 1 - 7 и А - Г План расположения блокировок на отм. 0.000 в осях 7 - 11 и А - Г Принципиальная схема распределительной сети 1ШР, 3ШР Принципиальная схема распределительной сети 2ШР Принципиальная схема распределительной сети 4ШР Принципиальная схема распределительной сети 5ШР Принципиальная схема распределительной сети 6ШР Принципиальная схема распределительной сети 7ШР Принципиальная схема распределительной сети 8ШР Принципиальная схема распределительной сети 9ШР Принципиальная схема распределительной сети 10ШР Принципиальная схема распределительной сети 11ШР Принципиальная схема распределительной сети 12ШР Принципиальная схема питающей сети Схемы электропроводок поз. 1, 2, 10, 28 Отключение вентсистемы при пожаре. Схема электрическая принципиальная управления. Схема подключений Вентсистема В4, В5. Схема электрическая принципиальная управления Пневмотранспорт ПТ1, ПТ2. Схема электрическая принципиальная управления Агрегат Р1, Р2, Р3, Р4. Схема электрическая принципиальная управления Транспортер поз. 54. Лесорама поз. 4. Схема электрическая принципиальная управления Ленточные конвейеры поз. 55, 56. Схема электрическая принципиальная управления Пожарная задвижка. Схема электрическая принципиальная управления Вентсистема В4, В5. Схема подключений Пожарная задвижка. Схема подключений Пневмотранспорт ПТ1, Пт2. Ящик 2Я. Схема подключений Агрегаты Р1, Р2, Р3, Р4. Ящик 3Я. Схема подключений Транспортер поз. 54. Лесорама поз. 4. Ящик 4Я. Схема подключений Ленточные конвейеры поз. 55, 56. Ящик 5Я. Схема подключений Кабельный журнал Электрическое освещение Общие данные План на отм. 0.000 в осях 1 - 7 и А - Г План на отм. 0.000 в осях 7 - 11 и А - Г План на отм. 0.000 в осях 6 - 10 и Г - Ж План на отм. 4.950 в осях 6 - 10 и Г - Ж Связь и сигнализация Общие данные Радиофикация, телефонизация. План расположения на отм. 0.000 Радиофикация, телефонизация. План расположения на отм. 4.950 Пожарная сигнализация. План расположения на отм. 0.000 в осях 1 - 7 и А - Г Пожарная сигнализация. План расположения на отм. 0.000 в осях 7 - 11 и А - Г Пожарная сигнализация. План расположения на отм. 0.000 в осях 6 - 10; 1 - Ж на отм. - 3.300 Пожарная сигнализация. План расположения на отм. 4.950 Схема устройств связи и сигнализации Шкаф для аккумуляторов Автоматизация, отопление и вентиляция Общие данные Приточная система П1 (П2). Схема функциональная Приточная система П3. Схема функциональная Приточная система П1 (П2). Схема электрическая принципиальная управления Приточная система П3. Схема электрическая принципиальная управления Вентсистема В6 (В7, В8). Схема электрическая принципиальная управления Приточная система П1 (П2). Схема внешних проводок Приточная система П3. Схема внешних проводок Вентсистема В6 (В7, В8). Схема внешних проводок Узел управления теплового пункта. Схема функциональная. Схема трубных проводок План расположения Автоматизация водопровода и канализации Общие данные. Функциональная схема. Спецификация материалов и изделий Задвижка канализационной сети. Схема электрическая принципиальная управления Задвижка канализационной сети. Схема соединений внешних проводок | Разработан: | Союзгипролесхоз
| Утверждён: | 19.09.1988 Госкомлес СССР (USSR Goskomles 29)
| Издан: | ЦИТП Госстроя СССР (CITP, Gosstroy (USSR) 1989 г. )
| Расположен в: |
|
                                                                     
|