Информационная система
«Ёшкин Кот»

Скачать базу одним архивом
Скачать обновления
История создания базы
Карта сайта

Скачать Типовой проект 902-5-51.88 Альбом 2. Архитектурные решения. Конструкции железобетонные. Конструкции металлические (из ТП 902-5-52.88)

Дата актуализации: 10.08.2017

Типовой проект 902-5-51.88

Альбом 2. Архитектурные решения. Конструкции железобетонные. Конструкции металлические (из ТП 902-5-52.88)

Обозначение: Типовой проект 902-5-51.88
Обозначение англ: 902-5-51.88
Статус:не определен законодательством
Название рус.:Альбом 2. Архитектурные решения. Конструкции железобетонные. Конструкции металлические (из ТП 902-5-52.88)
Дата добавления в базу:01.10.2014
Дата актуализации:05.05.2017
Дата введения:07.09.1988
Оглавление:Содержание альбома
Архитектурные решения
   Общие данные
   План на отм. 0.000. Разрезы 1-1, 2-2. План отверстий
   Фасады 1 - 2; 2 - 1; А - Б; Б - А
   Детали 1, 2, 3
Конструкции железобетонные
   Общие данные
   Схема расположения фундаментов. Фрагменты. Схема расположения закладных изделий в цоколе
   Схема расположения фундаментов. Фундаменты ФОм1, ФОм2, ФОм3, Ф1
Конструкции металлические
   Общие данные
   Схема расположения элементов каркаса и путей подвесного транспорта
   Монтажные узлы "1"…"5"
   Монтажные узлы "6"…"9"
   Схема расположения прогонов кровли
   Монтажные узлы "10"…"12"
   Схема расположения стеновых панелей
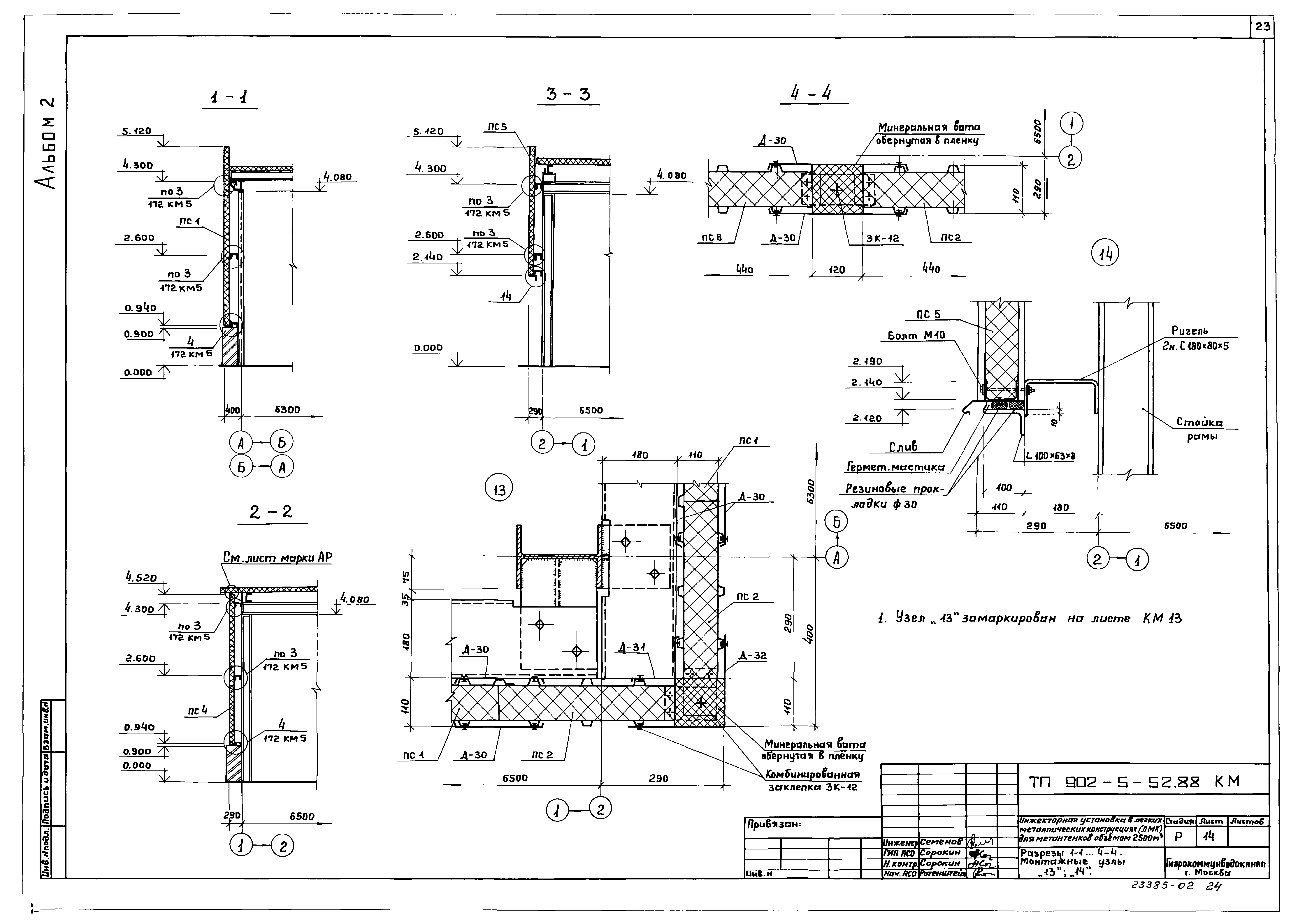
   Разрезы 1-1…4-4. Монтажные узлы "13", "14"
   Схема расположения панелей кровли. Монтажный узел "15"
   Схема расположения элементов фахверков. Разрезы 1-1…4-4
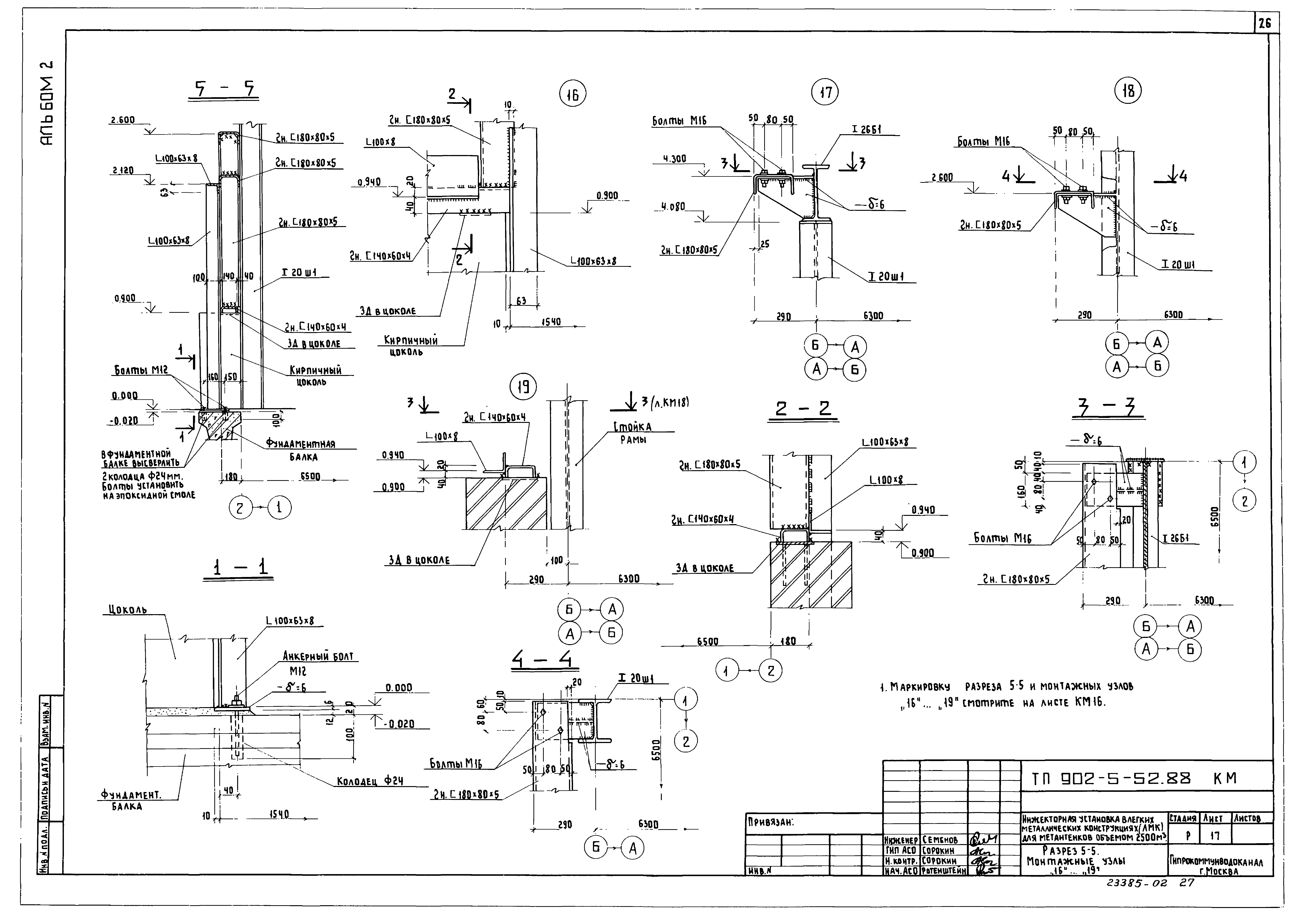
   Разрез 5-5. Монтажные узлы "16"…"19"
   Монтажные узлы "20"…"22"
   Схема расположения элементов площадки МП1. Разрезы. Монтажный узел "23"
Разработан: Гипрокоммунводоканал Минжилкомхоза РСФСР
Утверждён:07.09.1988 МЖКХ РСФСР (232)
Расположен в:Техническая документация Строительство Справочные документы Типовые строительные конструкции, изделия и узлы Общероссийский строительный каталог Промышленные предприятия, здания и сооружения Здания и сооружения санитарно-технические Канализация Сооружения для очистки производственных сточных вод Сооружения для обработки осадка
Типовой проект 902-5-51.88Типовой проект 902-5-51.88Типовой проект 902-5-51.88Типовой проект 902-5-51.88Типовой проект 902-5-51.88Типовой проект 902-5-51.88Типовой проект 902-5-51.88Типовой проект 902-5-51.88Типовой проект 902-5-51.88Типовой проект 902-5-51.88Типовой проект 902-5-51.88Типовой проект 902-5-51.88Типовой проект 902-5-51.88Типовой проект 902-5-51.88Типовой проект 902-5-51.88Типовой проект 902-5-51.88Типовой проект 902-5-51.88Типовой проект 902-5-51.88Типовой проект 902-5-51.88Типовой проект 902-5-51.88Типовой проект 902-5-51.88Типовой проект 902-5-51.88Типовой проект 902-5-51.88Типовой проект 902-5-51.88Типовой проект 902-5-51.88Типовой проект 902-5-51.88Типовой проект 902-5-51.88Типовой проект 902-5-51.88Типовой проект 902-5-51.88

© 2013 Ёшкин Кот :-) Карта сайта