Скачать Типовой проект 902-5-22.86 Альбом I. Технологические, архитектурные, конструктивные, санитарно-технические решенияДата актуализации: 10.08.2017 Типовой проект 902-5-22.86
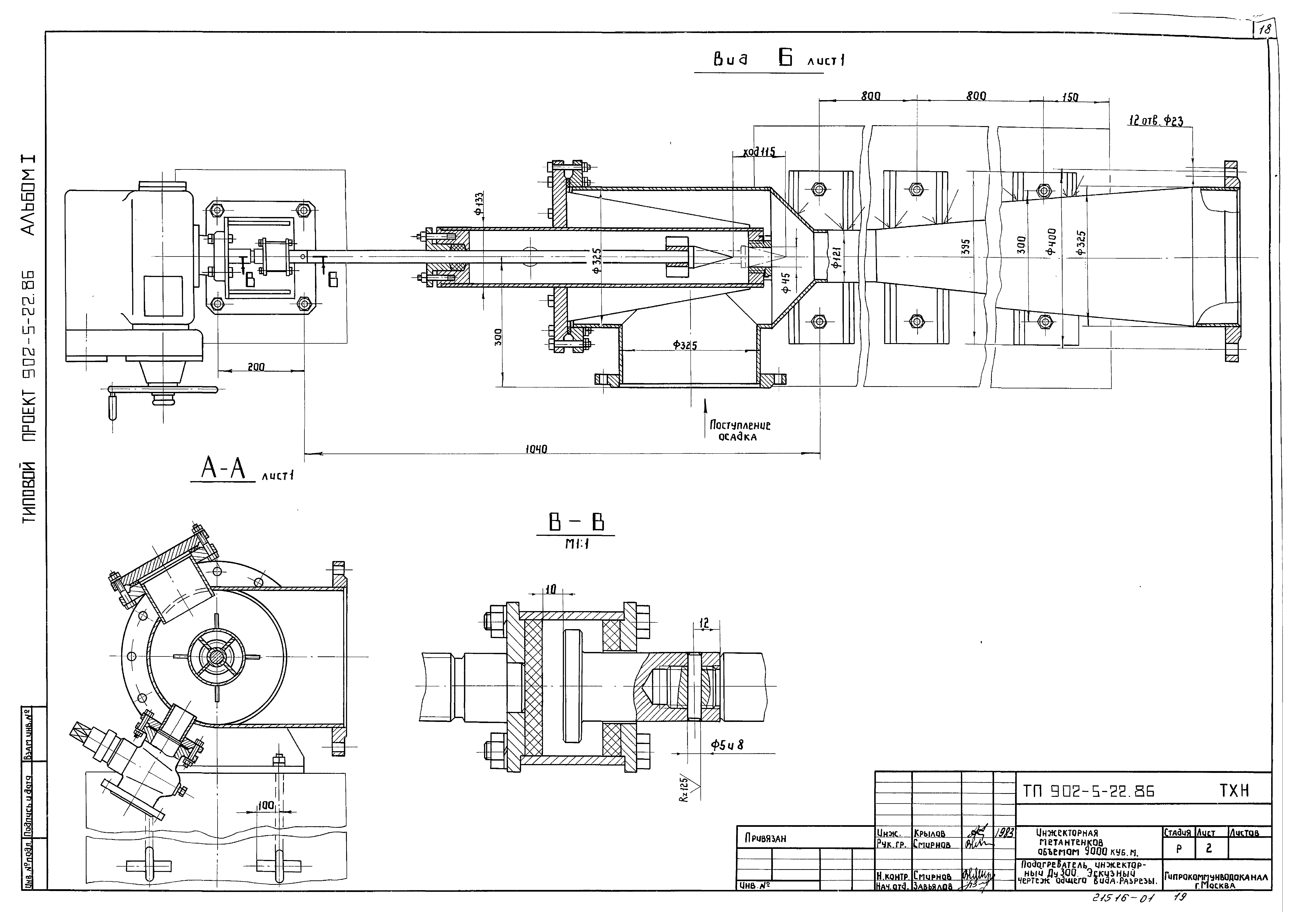
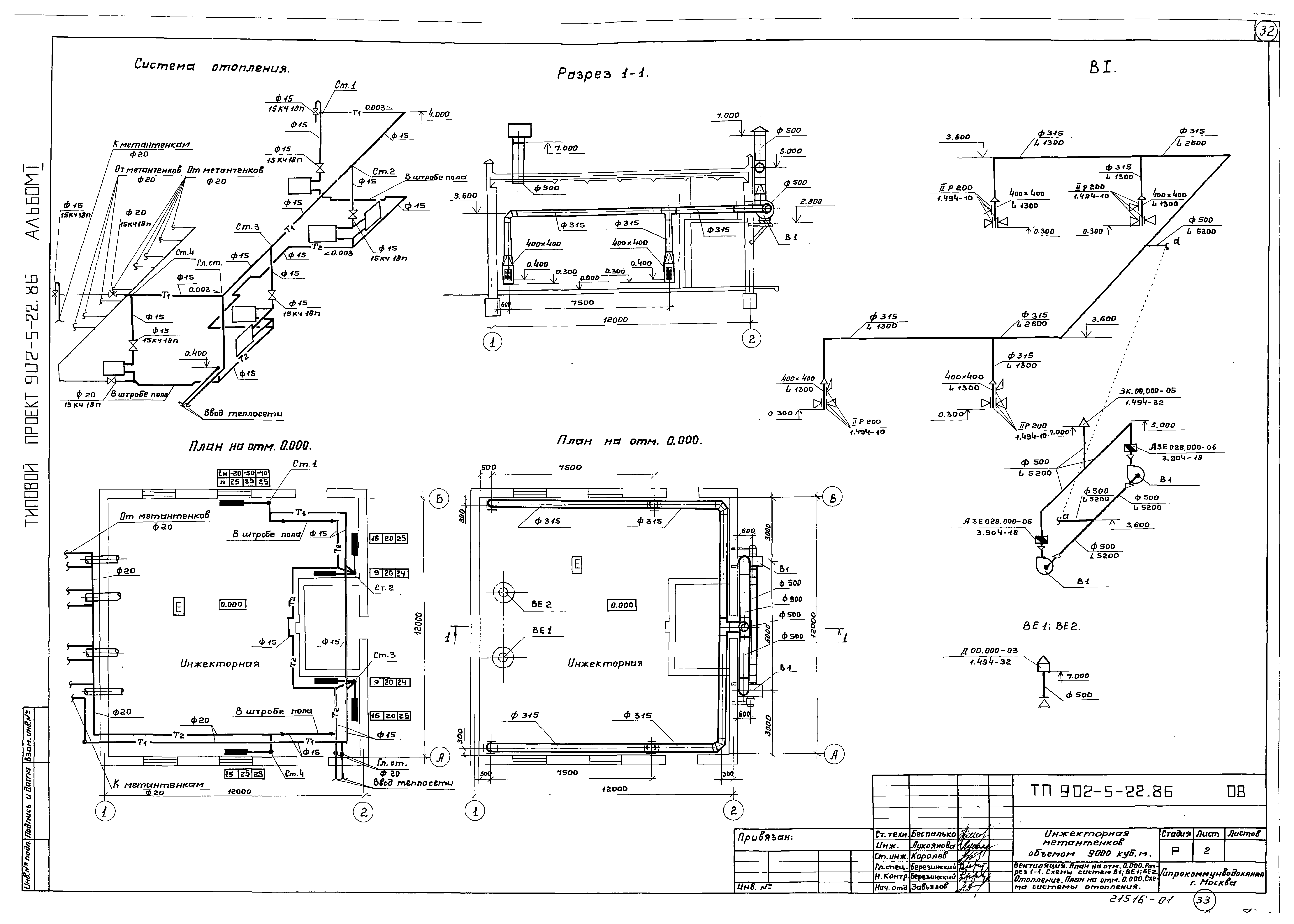
Альбом I. Технологические, архитектурные, конструктивные, санитарно-технические решенияОбозначение: | Типовой проект 902-5-22.86 | Обозначение англ: | 902-5-22.86 | Статус: | не определен законодательством | Название рус.: | Альбом I. Технологические, архитектурные, конструктивные, санитарно-технические решения | Дата добавления в базу: | 01.10.2014 | Дата актуализации: | 05.05.2017 | Дата введения: | 12.03.1986 | Оглавление: | Содержание альбома Пояснительная записка Технологические решения Общие данные Инжекторная №1. План. Разрезы 1-1, 2-2 Инжекторная №1. Схема систем К5.1; К5.2; К5.3; К5.4; К5.5; К5.6; К5.7; Т7 Инжекторная №1. Спецификация систем К5.1; К5.2; К5.3; К5.4; К5.5; К5.6; К5.7; Т7 Инжекторная №2, 3. План. Разрезы 1-1, 2-2 Инжекторная №2, 3. Схема систем К5.1; К5.2; К5.3; К5.4; К5.5; К5.6; К5.7; Т7 Инжекторная №2, 3. Спецификация систем К5.1; К5.2; К5.3; К5.4; К5.5; К5.6; К5.7; Т7 Инжекторная №4. План. Разрезы 1-1, 2-2 Инжекторная №4. Схема систем К5.1; К5.2; К5.3; К5.4; К5.5; К5.6; К5.7; Т7 Инжекторная №4. Спецификация систем К5.1; К5.2; К5.3; К5.4; К5.5; К5.6; К5.7; Т7 Подогреватель инжекторный Ду = 300. Эскизный чертеж общего вида Подогреватель инжекторный Ду = 300. Эскизный чертеж общего вида. Разрезы Архитектурные решения Общие данные План. Разрезы 1-1, 2-2. Ведомости Фасады Конструкции железобетонные Общие данные Схема расположения фундаментов Схема расположения плит покрытия Схема расположения фундаментов под оборудование. Перекрытие на отм. 3.200 Конструкции металлические Общие данные. Техническая спецификация металла Ведомость металлоконструкций по видам профилей Схема расположения путей монорельсов Схема расположения площадок и лестниц Санитарно-технические решения. Отопление и вентиляция Общие данные Вентиляция. План на отм. 0.000. Разрез 1-1. Схемы систем В1, ВЕ1, ВЕ2. Отопление. План на отм. 0.000. Схема системы отопления | Разработан: | Гипрокоммунводоканал Минжилкомхоза РСФСР
| Утверждён: | 04.03.1986 МЖКХ РСФСР (111)
| Расположен в: |
|
                               
|