Информационная система
«Ёшкин Кот»

Скачать базу одним архивом
Скачать обновления
История создания базы
Карта сайта

Скачать Типовой проект 902-3-92.91 Альбом 5. Нетиповые технологические конструкции (из ТП 902-3-94.91)

Дата актуализации: 10.08.2017

Типовой проект 902-3-92.91

Альбом 5. Нетиповые технологические конструкции (из ТП 902-3-94.91)

Обозначение: Типовой проект 902-3-92.91
Обозначение англ: 902-3-92.91
Статус:не определен законодательством
Название рус.:Альбом 5. Нетиповые технологические конструкции (из ТП 902-3-94.91)
Дата добавления в базу:01.10.2014
Дата актуализации:05.05.2017
Дата введения:28.02.1991
Оглавление:Обложка
Титульный лист
Содержание
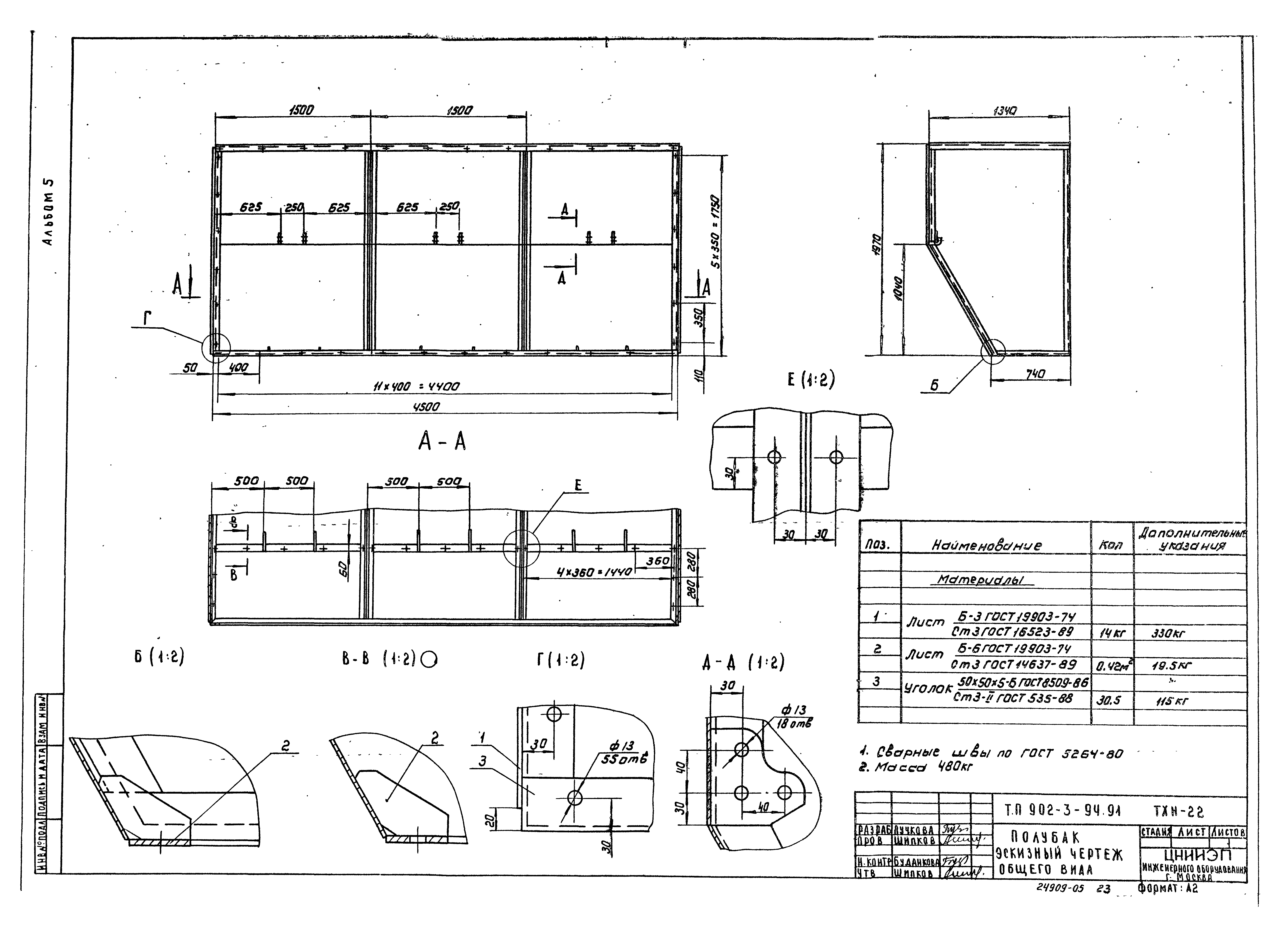
Полубак. Эскизный чертеж общего вида
Корыто. Эскизный чертеж общего вида
Бункер. Эскизный чертеж общего вида
Лоток. Эскизный чертеж общего вида
Скоба. Эскизный чертеж общего вида
Полубак. Эскизный чертеж общего вида
Элемент тонкослойного модуля. Эскизный чертеж общего вида
Корыто. Эскизный чертеж общего вида
Полубак. Эскизный чертеж общего вида
Корыто. Эскизный чертеж общего вида
Полубак. Эскизный чертеж общего вида
Корыто. Эскизный чертеж общего вида
Полубак. Эскизный чертеж общего вида
Корыто. Эскизный чертеж общего вида
Полубак. Эскизный чертеж общего вида
Корыто. Эскизный чертеж общего вида
Полубак. Эскизный чертеж общего вида
Корыто. Эскизный чертеж общего вида
Илоуплотнитель. Эскизный чертеж общего вида
Короб. Эскизный чертеж общего вида
Элемент с ершовой загрузкой. Эскизный чертеж общего вида
Рама. Эскизный чертеж общего вида
Бак дезинфекант. Эскизный чертеж общего вида
Камера иловая. Эскизный чертеж общего вида
Эрлифт циркулирующего вида. Эскизный чертеж общего вида
Эрлифт уплотненного избыточного ила. Эскизный чертеж общего вида
Эрлифт избыточного ила. Эскизный чертеж общего вида
Лоток. Эскизный чертеж общего вида
Элемент с ершовой загрузкой. Эскизный чертеж общего вида
Рама с воздухораспределителем. Эскизный чертеж общего вида
Дегельминтизатор. Эскизный чертеж общего вида
Песколовка. Эскизный чертеж общего вида
Разработан: ЦНИИЭП иженерного оборудования
Утверждён:28.02.1991 Госкомархитектура (24)
Расположен в:Техническая документация Строительство Справочные документы Типовые строительные конструкции, изделия и узлы Общероссийский строительный каталог Промышленные предприятия, здания и сооружения Здания и сооружения санитарно-технические Канализация Сооружения биологической (биохимической) очистки Станции биологической очистки сточных вод
Типовой проект 902-3-92.91Типовой проект 902-3-92.91Типовой проект 902-3-92.91Типовой проект 902-3-92.91Типовой проект 902-3-92.91Типовой проект 902-3-92.91Типовой проект 902-3-92.91Типовой проект 902-3-92.91Типовой проект 902-3-92.91Типовой проект 902-3-92.91Типовой проект 902-3-92.91Типовой проект 902-3-92.91Типовой проект 902-3-92.91Типовой проект 902-3-92.91Типовой проект 902-3-92.91Типовой проект 902-3-92.91Типовой проект 902-3-92.91Типовой проект 902-3-92.91Типовой проект 902-3-92.91Типовой проект 902-3-92.91Типовой проект 902-3-92.91Типовой проект 902-3-92.91Типовой проект 902-3-92.91Типовой проект 902-3-92.91Типовой проект 902-3-92.91Типовой проект 902-3-92.91Типовой проект 902-3-92.91Типовой проект 902-3-92.91Типовой проект 902-3-92.91Типовой проект 902-3-92.91Типовой проект 902-3-92.91Типовой проект 902-3-92.91Типовой проект 902-3-92.91Типовой проект 902-3-92.91Типовой проект 902-3-92.91Типовой проект 902-3-92.91Типовой проект 902-3-92.91Типовой проект 902-3-92.91Типовой проект 902-3-92.91Типовой проект 902-3-92.91Типовой проект 902-3-92.91Типовой проект 902-3-92.91Типовой проект 902-3-92.91Типовой проект 902-3-92.91

© 2013 Ёшкин Кот :-) Карта сайта