Скачать Типовой проект Серия 1-464А Альбом V. Часть 1-м. Изделия заводского изготовления к домам с 14 по 18 серии типовых проектов 1-464А. Железобетонные изделия (панели перекрытия, внутренние стеновые панели и перегородки)Дата актуализации: 10.08.2017 Типовой проект Серия 1-464А
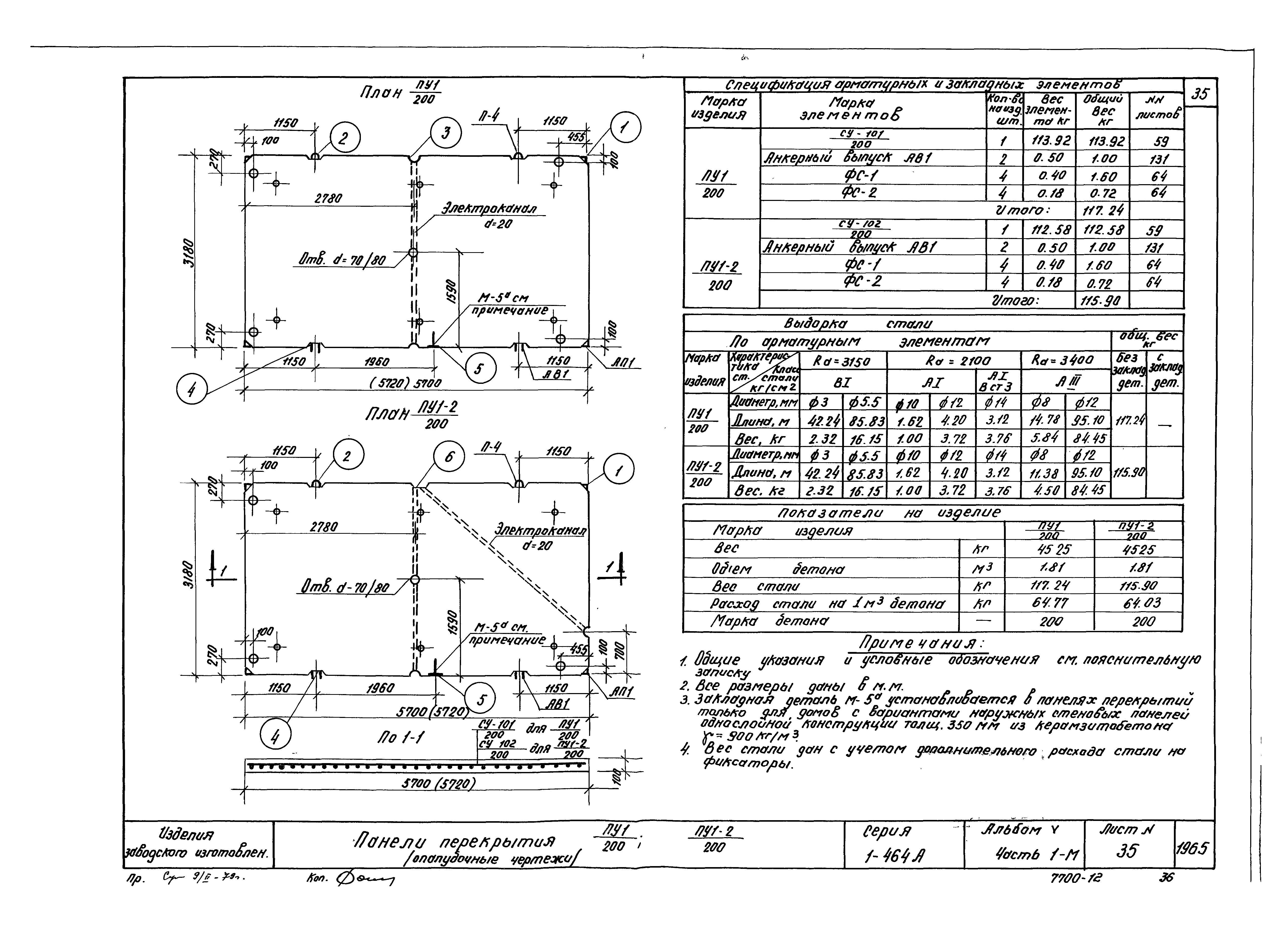
Альбом V. Часть 1-м. Изделия заводского изготовления к домам с 14 по 18 серии типовых проектов 1-464А. Железобетонные изделия (панели перекрытия, внутренние стеновые панели и перегородки)Обозначение: | Типовой проект Серия 1-464А | Обозначение англ: | Серия 1-464А | Статус: | действует | Название рус.: | Альбом V. Часть 1-м. Изделия заводского изготовления к домам с 14 по 18 серии типовых проектов 1-464А. Железобетонные изделия (панели перекрытия, внутренние стеновые панели и перегородки) | Дата добавления в базу: | 01.10.2014 | Дата актуализации: | 05.05.2017 | Оглавление: | Содержание альбома Пояснительная записка Панели перекрытия. Схемы испытания Панели перекрытия (опалубочные чертежи) Панели перекрытия. Арматурные сетки Панели перекрытия. Схема расположения фиксаторов. Арматурные сетки Внутренние стеновые панели Внутренние стеновые панели (цокольные) Внутренние стеновые панели (для транзитных инженерных сетей) Внутренние стеновые панели (цокольные, для транзитных инженерных сетей) Внутренние стеновые панели (цокольные) Внутренние перегородки Внутренние стеновые панели Внутренние стеновые панели. Схемы расположения фиксаторов. Арматурные сетки Сборочные арматурные элементы Узлы железобетонных элементов Закладные детали железобетонных элементов Подъемные и анкерные петли железобетонных элементов Внутренние стеновые панели (цокольные). Опалубочный чертеж Внутренние стеновые панели (цокольные). Арматурная сетка и сборочный арматурный элемент | Разработан: | ЦНИИЭП жилища
| Утверждён: | 01.01.1965 ЦНИИЭП жилища (TsNIIEPzhilishcha )
| Расположен в: |
|
                                                                                                                                     
|