| ||||||||||||||||||||||||||
Скачать Руководство по единой системе подготовки строительного производстваДата актуализации: 10.08.2017 |
| Статус: | cправочные материалы, мп, тпр |
| Название рус.: | Руководство по единой системе подготовки строительного производства |
| Дата добавления в базу: | 01.10.2014 |
| Дата актуализации: | 05.05.2017 |
| Область применения: | Руководство составлено на основе изучения и обобщения передового опыта организации подготовки производства в различных отраслях народного хозяйства СССР. В Руководстве определены состав и содержание работ по организационно-технологической и материально-технической подготовке строительного производства. Руководство предназначено для инженерно-технических работников подрядных строительных организаций, оргтехстроев, проектных институтов и других организаций, участвующих в подготовке строительного производства. |
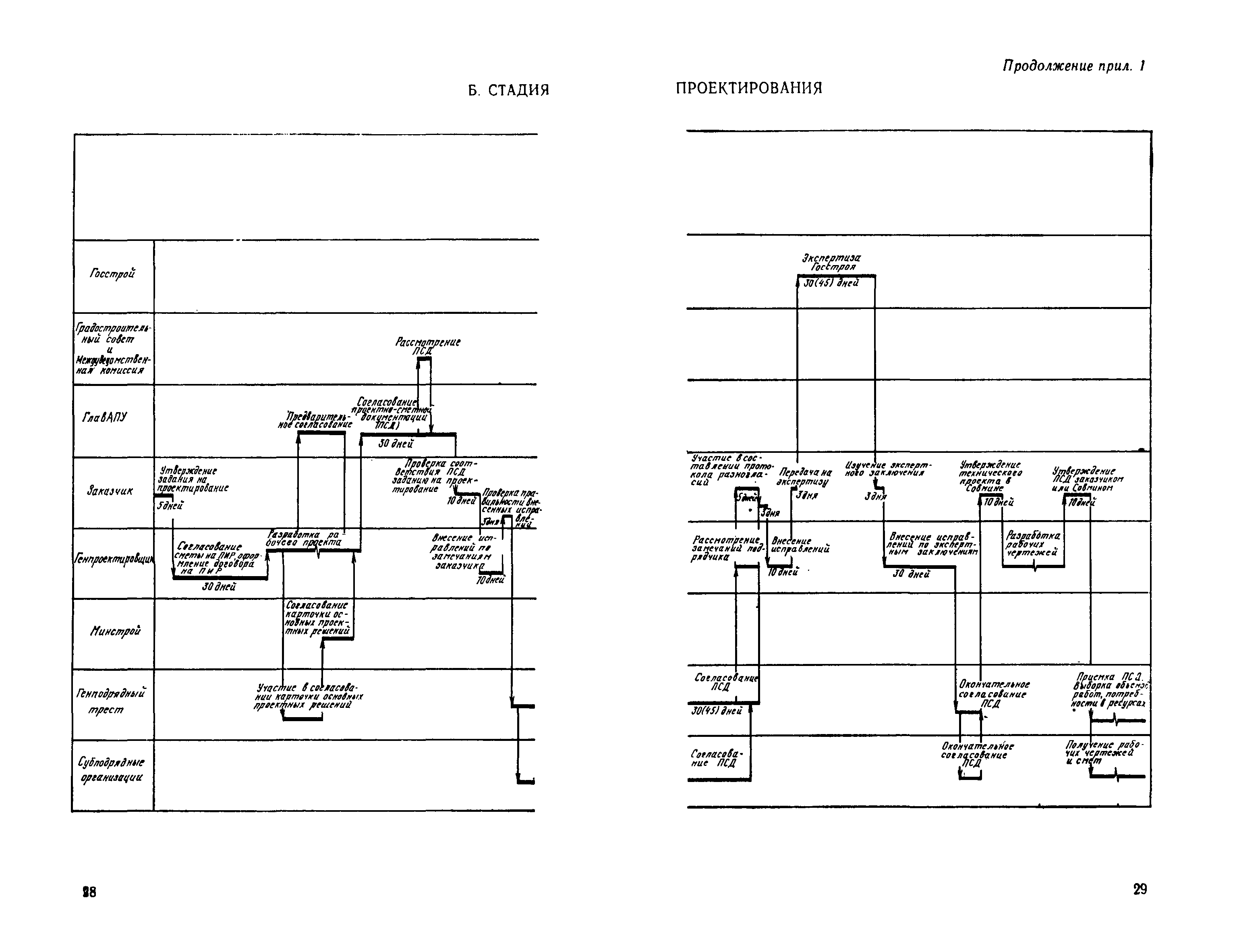
| Оглавление: | Предисловие 1. Общие положения 2. Общая подготовка строительного производства . . 3. Подготовка генподрядных строительных организаций . 4. Подготовка строительства объектов 5. Подготовка строительного производства в особых природно-климатических условиях 6. Организация и функции службы ПСП 7. Информационно-техническое обеспечение ЕСПСП Приложение 1. Схемы подготовки и прохождения проектно-сметной документации (на примере жилищно-гражданского строительства) Приложение 2. Оргструктура службы ПСП в генподрядном строительном тресте |
| Разработан: | ЦНИИОМТП Госстроя СССР |
| Утверждён: | ЦНИИОМТП Госстроя СССР (TsNIIOMTP, USSR Gosstroy ) |
| Издан: | Стройиздат (1979 г. ) |
| Расположен в: | |
| Нормативные ссылки: |






























