Скачать Типовой проект 411-1-120.85 Альбом I. Пояснительная записка. Архитектурно-строительная, санитарно-техническая, электротехническая части, слаботочные устройстваДата актуализации: 10.08.2017 Типовой проект 411-1-120.85
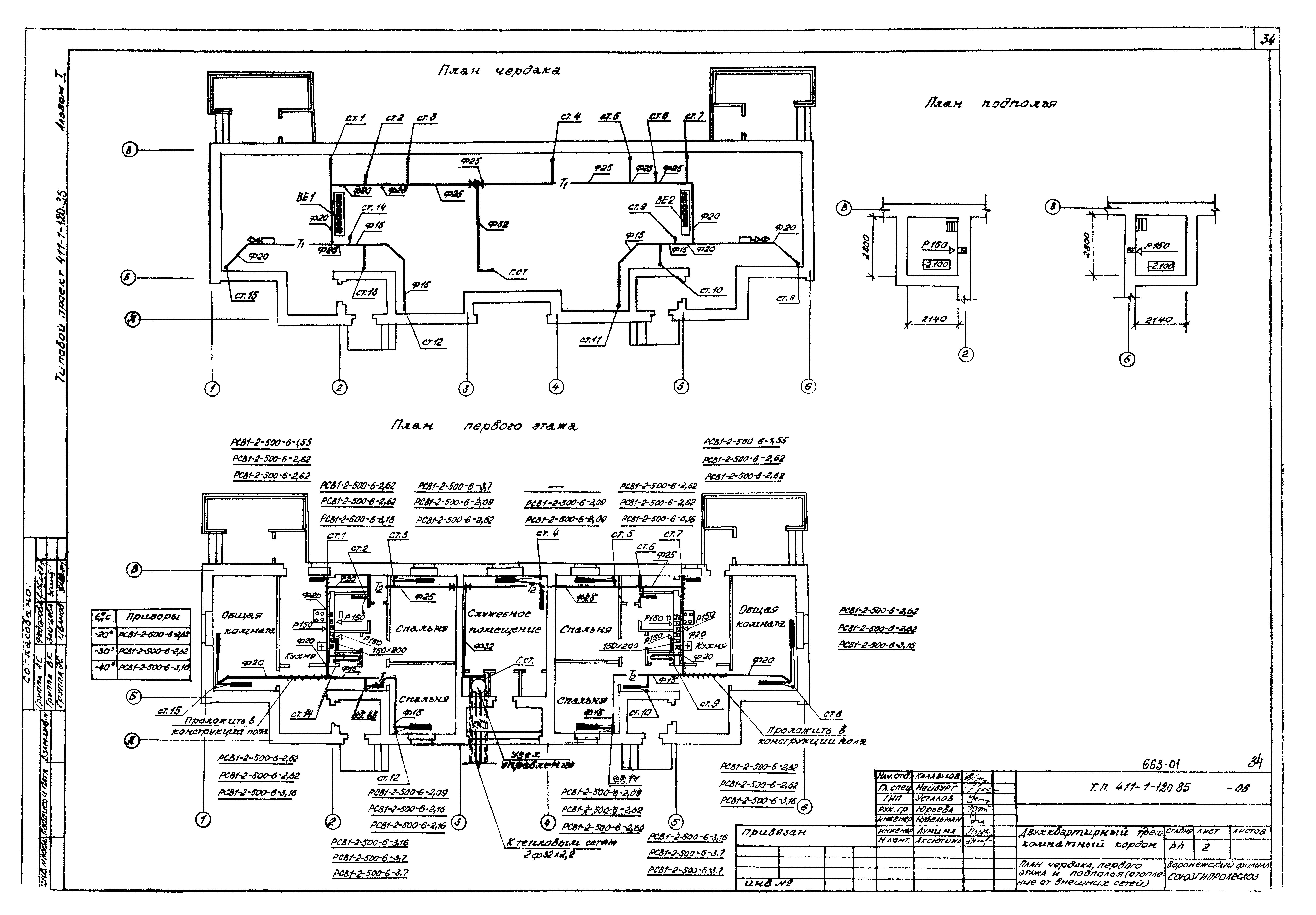
Альбом I. Пояснительная записка. Архитектурно-строительная, санитарно-техническая, электротехническая части, слаботочные устройстваОбозначение: | Типовой проект 411-1-120.85 | Обозначение англ: | 411-1-120.85 | Статус: | не определен законодательством | Название рус.: | Альбом I. Пояснительная записка. Архитектурно-строительная, санитарно-техническая, электротехническая части, слаботочные устройства | Дата добавления в базу: | 01.10.2014 | Дата актуализации: | 05.05.2017 | Дата введения: | 15.05.1984 | Оглавление: | Содержание альбома Пояснительная записка Архитектурно-строительные решения Общие данные План расстановки мебели План на отм. 0.000 Фрагмент 2. План подполья Разрезы 1-1, 2-2 Разрезы 3-3, 4-4 Фасады. Вид А Фасады (вариант при совмещенной крыше) Схемы расположения дымовентиляционных каналов. Фрагмент входа при t = минус 40 градусов Цельсия Планы кровли и полов. Фрагменты 3 и 4. Деталь установки жалюзийных ставень Схема расположения фундаментов. Сечения 1-1…4-4, 6-6 Сечения фундаментов 7-7…17-17 Схемы расположения элементов чердачного перекрытия и перекрытия подполья Схемы расположения плит перекрытия над подпольем, плит покрытия (вариант при совмещенной крыше) Схема расположения стропил Узлы стропил 1…6 Схема расположения асбестоцементных листов. Узлы стропил 7…11 Схемы ограждений террасы и крыльца. Узлы 12…17 Вентиляционный сушильный шкаф СШ1, СШ1н. Антресоль А1, А1н Стремянка. Жалюзийные ставни. Хомуты. Решетка шкафа. Анкер А3 Внутренние водопровод и канализация Общие данные План систем на отм. 0.000. Схемы систем В1, К1, Т3. Горячее водоснабжение от ВПГ-18 План систем на отм. 0.000. Схемы систем В1, К1, Т3. Горячее водоснабжение от водогрейной колонки Отопление и вентиляция Общие данные Планы чердака, первого этажа и подполья (вариант отопления от внешних сетей) Планы чердака, первого этажа и подполья (вариант поквартирного отопления) Схемы трубопроводов отопления от внешних сетей (вариант поквартирного отопления) Газоснабжение Общие данные Планы на отм. 0.000. Схема газопровода Электроосвещение Общие данные Электрическое освещение. План сетей Слаботочные устройства Общие данные Слаботочные сети | Разработан: | Воронежский филиал Союзгипролесхоза
| Утверждён: | 13.12.1984 Гослесхоз СССР (USSR Gosleskhoz 18)
| Расположен в: |
|
                                         
|