Информационная система
«Ёшкин Кот»

Скачать базу одним архивом
Скачать обновления
История создания базы
Карта сайта

Скачать Типовой проект 407-3-576.90 Альбом 2. Архитектурно-строительные решения. Ведомость материалов

Дата актуализации: 10.08.2017

Типовой проект 407-3-576.90

Альбом 2. Архитектурно-строительные решения. Ведомость материалов

Обозначение: Типовой проект 407-3-576.90
Обозначение англ: 407-3-576.90
Статус:не определен законодательством
Название рус.:Альбом 2. Архитектурно-строительные решения. Ведомость материалов
Дата добавления в базу:01.10.2014
Дата актуализации:05.05.2017
Дата введения:19.09.1990
Оглавление:Общие данные
План на отм. 0.000
Разрезы 1-1, 2-2
Фасады
Развернутая монтажная схема
Маркировочная схема стеновых панелей
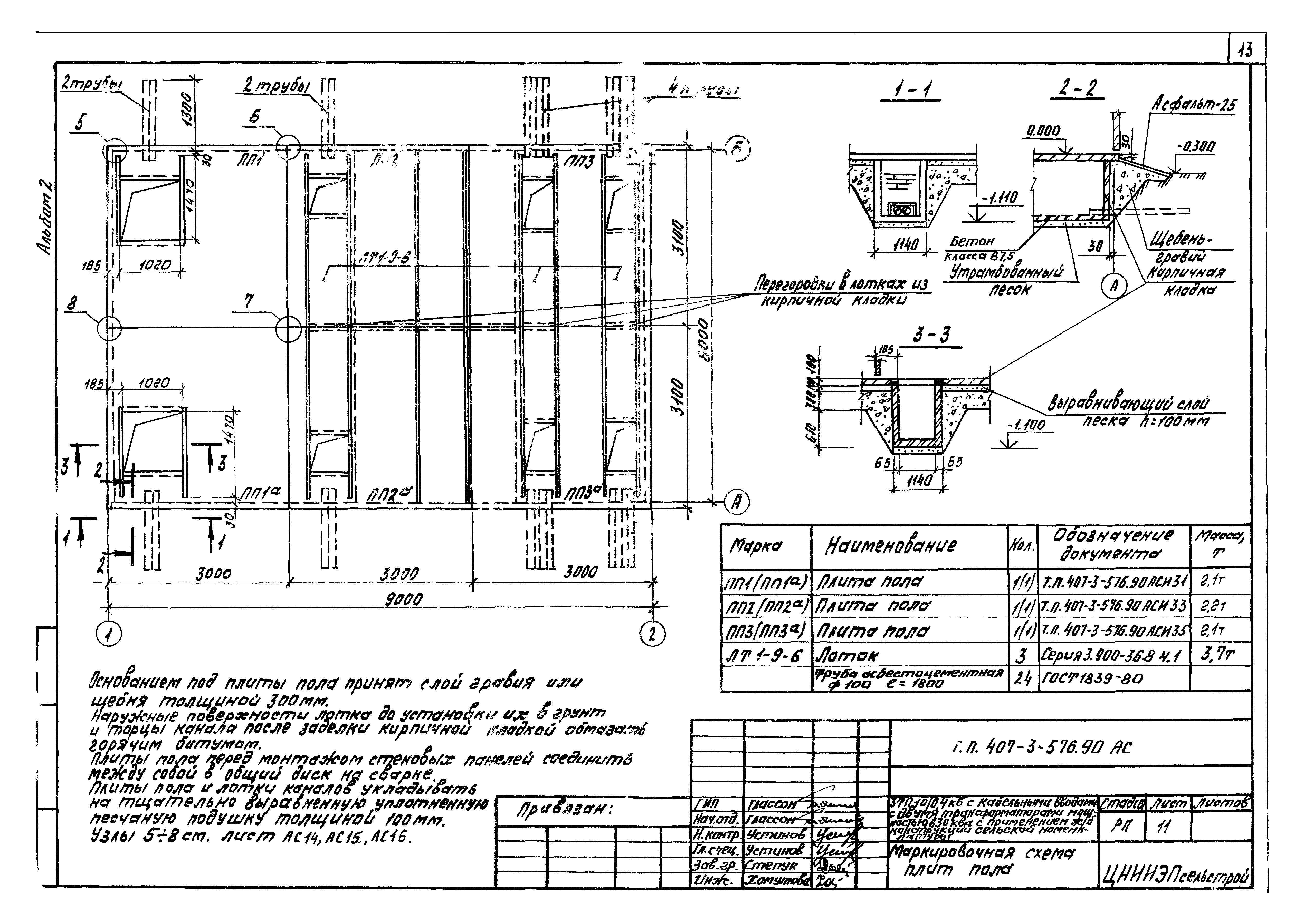
Маркировочная схема плит пола
Маркировочная схема плит покрытия
Узлы 1 - 3
Узлы 4, 5
Узлы 6, 7
Узел 8
Шинный мост
Барьер в камере трансформатора
Ведомость материалов
Разработан: Сельэнергопроект
Утверждён:19.09.1990 Министерство энергетики и электрификации СССР (USSR Ministry of Energy and Electrical Power 112)
Издан: АПП ЦИТП (1991 г. )
Расположен в:Техническая документация Строительство Справочные документы Типовые строительные конструкции, изделия и узлы Общероссийский строительный каталог Промышленные предприятия, здания и сооружения Предприятия, здания и сооружения промышленности и электроэнергетики Электроэнергетика Устройства и подстанции распределительные
Типовой проект 407-3-576.90Типовой проект 407-3-576.90Типовой проект 407-3-576.90Типовой проект 407-3-576.90Типовой проект 407-3-576.90Типовой проект 407-3-576.90Типовой проект 407-3-576.90Типовой проект 407-3-576.90Типовой проект 407-3-576.90Типовой проект 407-3-576.90Типовой проект 407-3-576.90Типовой проект 407-3-576.90Типовой проект 407-3-576.90Типовой проект 407-3-576.90Типовой проект 407-3-576.90Типовой проект 407-3-576.90Типовой проект 407-3-576.90Типовой проект 407-3-576.90Типовой проект 407-3-576.90Типовой проект 407-3-576.90Типовой проект 407-3-576.90Типовой проект 407-3-576.90Типовой проект 407-3-576.90Типовой проект 407-3-576.90

© 2013 Ёшкин Кот :-) Карта сайта