Информационная система
«Ёшкин Кот»

Скачать базу одним архивом
Скачать обновления
История создания базы
Карта сайта

Скачать Типовой проект 901-5-43.87 Альбом IV. Металлические конструкции

Дата актуализации: 10.08.2017

Типовой проект 901-5-43.87

Альбом IV. Металлические конструкции

Обозначение: Типовой проект 901-5-43.87
Обозначение англ: 901-5-43.87
Статус:не определен законодательством
Название рус.:Альбом IV. Металлические конструкции
Дата добавления в базу:01.10.2014
Дата актуализации:05.05.2017
Дата введения:27.05.1986
Оглавление:Общие данные
Техническая спецификация металла
Ведомость металлоконструкций по видам профилей
Схема башни
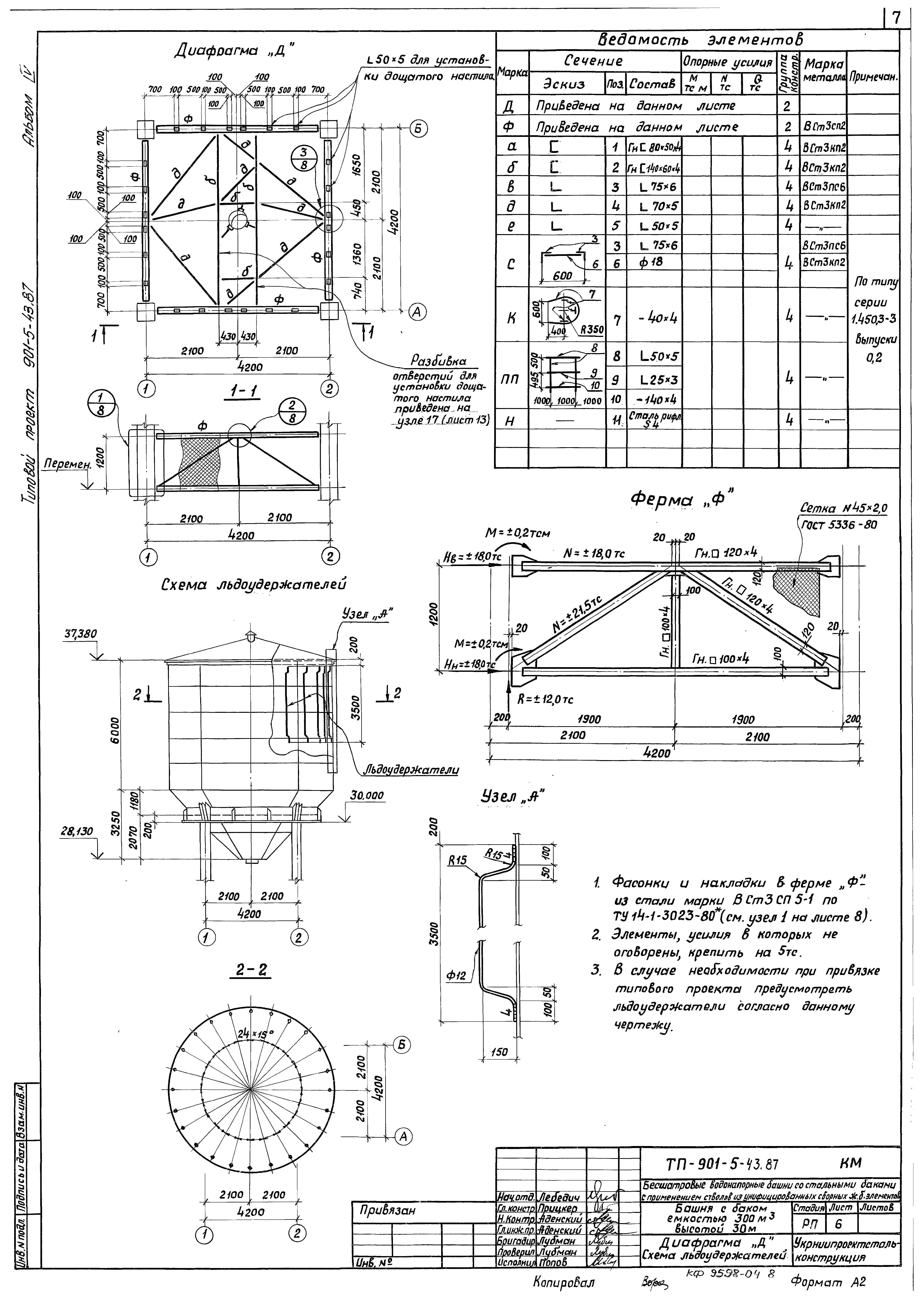
Диафрагма "Д". Схема льдоудержателей
Общий вид бака
Узлы 1 - 3
Узлы 4, 5
Узлы 6 - 9. Шпиль на крышке бака
Узлы 10 - 13
Узлы 14 - 16
Узлы 17, 18
Разработан: Укрводоканалпроект
Утверждён:29.04.1986 Госстрой СССР (Государственный комитет Совета Министров СССР по делам строительства) (USSR Gosstroy А4-25)
Расположен в:Техническая документация Строительство Справочные документы Типовые строительные конструкции, изделия и узлы Общероссийский строительный каталог Промышленные предприятия, здания и сооружения Здания и сооружения санитарно-технические Водоснабжение Водонапорные башни Железобетонные
Типовой проект 901-5-43.87Типовой проект 901-5-43.87Типовой проект 901-5-43.87Типовой проект 901-5-43.87Типовой проект 901-5-43.87Типовой проект 901-5-43.87Типовой проект 901-5-43.87Типовой проект 901-5-43.87Типовой проект 901-5-43.87Типовой проект 901-5-43.87Типовой проект 901-5-43.87Типовой проект 901-5-43.87Типовой проект 901-5-43.87Типовой проект 901-5-43.87Типовой проект 901-5-43.87

© 2013 Ёшкин Кот :-) Карта сайта