Информационная система
«Ёшкин Кот»

Скачать базу одним архивом
Скачать обновления
История создания базы
Карта сайта

Скачать Типовой проект 901-5-43.87 Альбом II. Архитектурно-строительная часть

Дата актуализации: 10.08.2017

Типовой проект 901-5-43.87

Альбом II. Архитектурно-строительная часть

Обозначение: Типовой проект 901-5-43.87
Обозначение англ: 901-5-43.87
Статус:не определен законодательством
Название рус.:Альбом II. Архитектурно-строительная часть
Дата добавления в базу:01.10.2014
Дата актуализации:05.05.2017
Дата введения:27.05.1986
Оглавление:Содержание альбома
Пояснительная записка
Архитектурная часть
   Общие данные, фасад
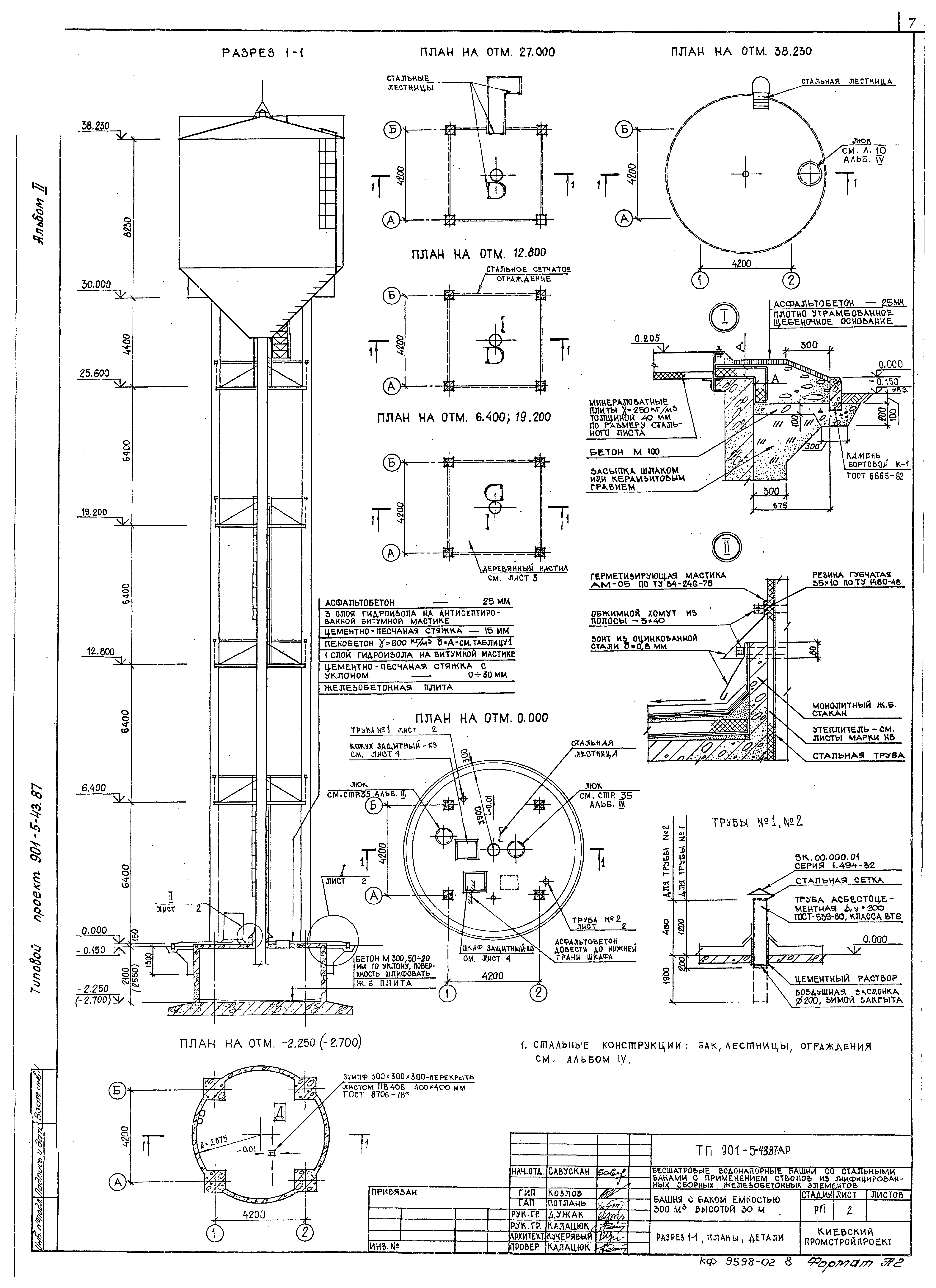
   Разрез 1-1, планы, детали
   Конструкции деревянного настила площадки
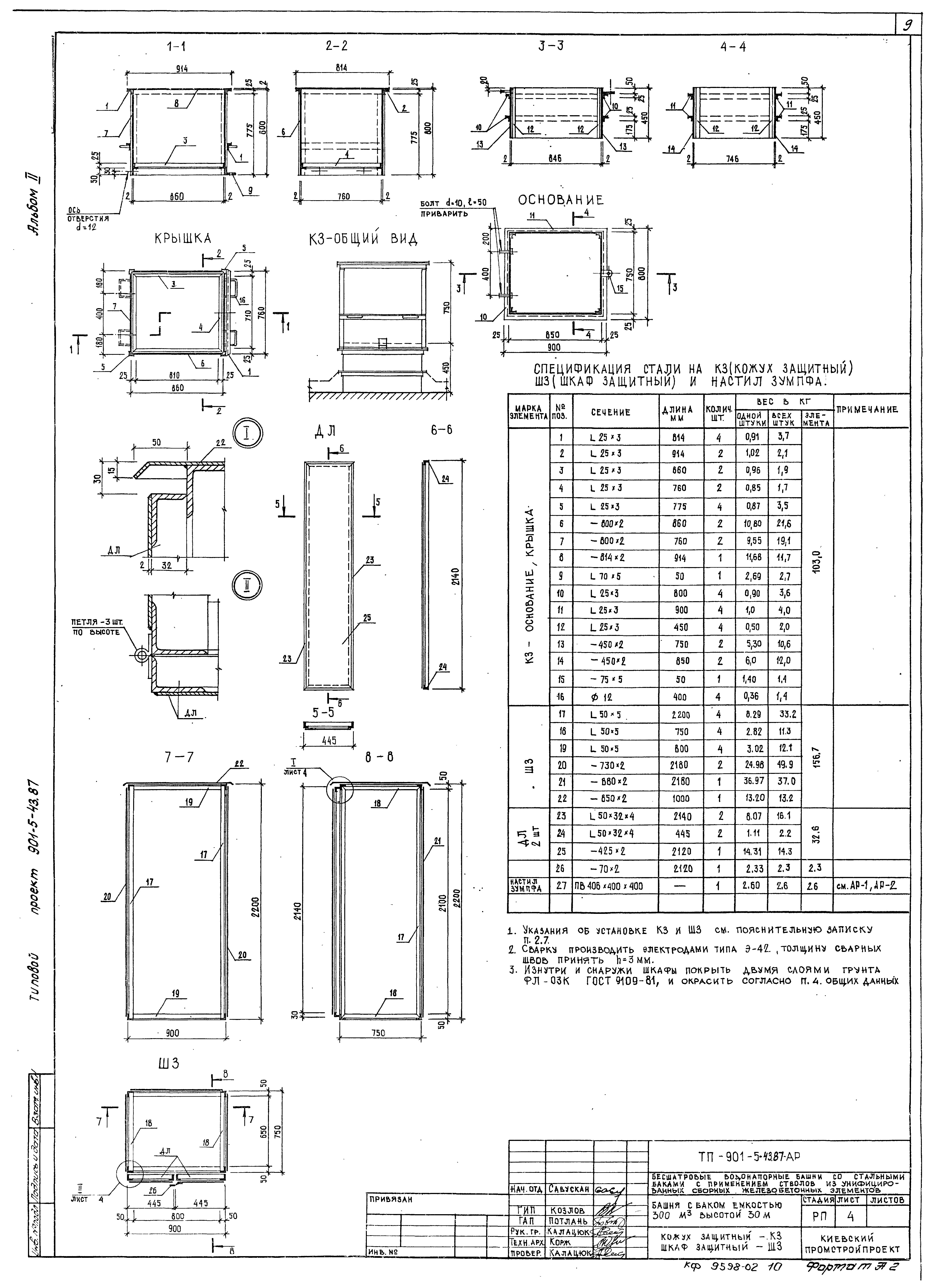
   Кожух защитный - КЗ. Шкаф защитный - ШЗ
Строительная часть
   Общие данные
   Схема расположения элементов башни. Узлы I, II, III, IV
   Фундаменты Фм1 - Фм4. Опалубка. Разрезы 1-1 - 5-5
   Фундаменты Фм1 - Фм4. Плита перекрытия. Разрезы 1-1 - 11-11
   Фундаменты Фм1 - Фм4. Армирование. Разрезы 1-1, 2-2. Узел I
   Фундаменты Фм1, Фм2. Армирование. Разрезы 3-3, 4-4
   Фундаменты Фм1, Фм2. Армирование. Разрезы 5-5, 6-6
   Фундаменты Фм1, Фм2. Армирование. Спецификация
   Фундаменты Фм3, Фм4. Армирование. Разрезы 3-3, 4-4
   Фундаменты Фм3, Фм4. Армирование. Разрезы 5-5, 6-6
   Фундаменты Фм3, Фм4. Армирование. Спецификация
   Фундаменты Фм1 - Фм4. Армирование. Ведомость расхода стали
Чертежи основного комплекта марки ОР
   Основные положения по организации строительства
Разработан: Укрводоканалпроект
Утверждён:29.04.1986 Госстрой СССР (Государственный комитет Совета Министров СССР по делам строительства) (USSR Gosstroy А4-25)
Расположен в:Техническая документация Строительство Справочные документы Типовые строительные конструкции, изделия и узлы Общероссийский строительный каталог Промышленные предприятия, здания и сооружения Здания и сооружения санитарно-технические Водоснабжение Водонапорные башни Железобетонные
Типовой проект 901-5-43.87Типовой проект 901-5-43.87Типовой проект 901-5-43.87Типовой проект 901-5-43.87Типовой проект 901-5-43.87Типовой проект 901-5-43.87Типовой проект 901-5-43.87Типовой проект 901-5-43.87Типовой проект 901-5-43.87Типовой проект 901-5-43.87Типовой проект 901-5-43.87Типовой проект 901-5-43.87Типовой проект 901-5-43.87Типовой проект 901-5-43.87Типовой проект 901-5-43.87Типовой проект 901-5-43.87Типовой проект 901-5-43.87Типовой проект 901-5-43.87Типовой проект 901-5-43.87Типовой проект 901-5-43.87Типовой проект 901-5-43.87Типовой проект 901-5-43.87Типовой проект 901-5-43.87

© 2013 Ёшкин Кот :-) Карта сайта