Информационная система
«Ёшкин Кот»

Скачать базу одним архивом
Скачать обновления
История создания базы
Карта сайта

Скачать Типовой проект 901-5-40.87 Альбом I. Технологическая и электрическая части

Дата актуализации: 10.08.2017

Типовой проект 901-5-40.87

Альбом I. Технологическая и электрическая части

Обозначение: Типовой проект 901-5-40.87
Обозначение англ: 901-5-40.87
Статус:не определен законодательством
Название рус.:Альбом I. Технологическая и электрическая части
Дата добавления в базу:01.10.2014
Дата актуализации:05.05.2017
Дата введения:27.05.1986
Оглавление:Содержание альбома
Пояснительная записка
Чертежи основного комплекта марки НВ
   Общие данные
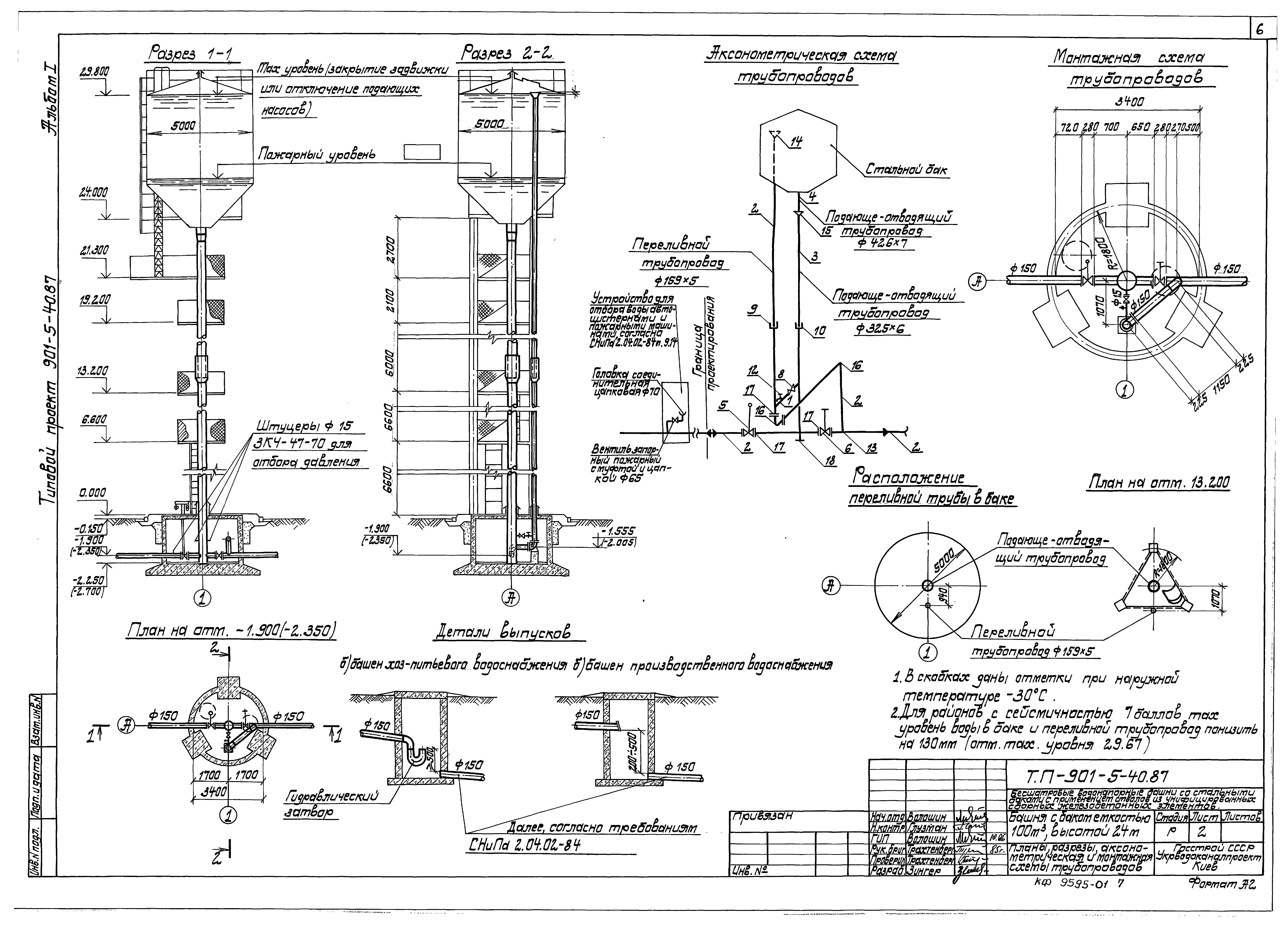
   Планы, разрезы, аксонометрическая и монтажная схема трубопроводов
   Опорное колено
   Клапан-захлопка Ф 150
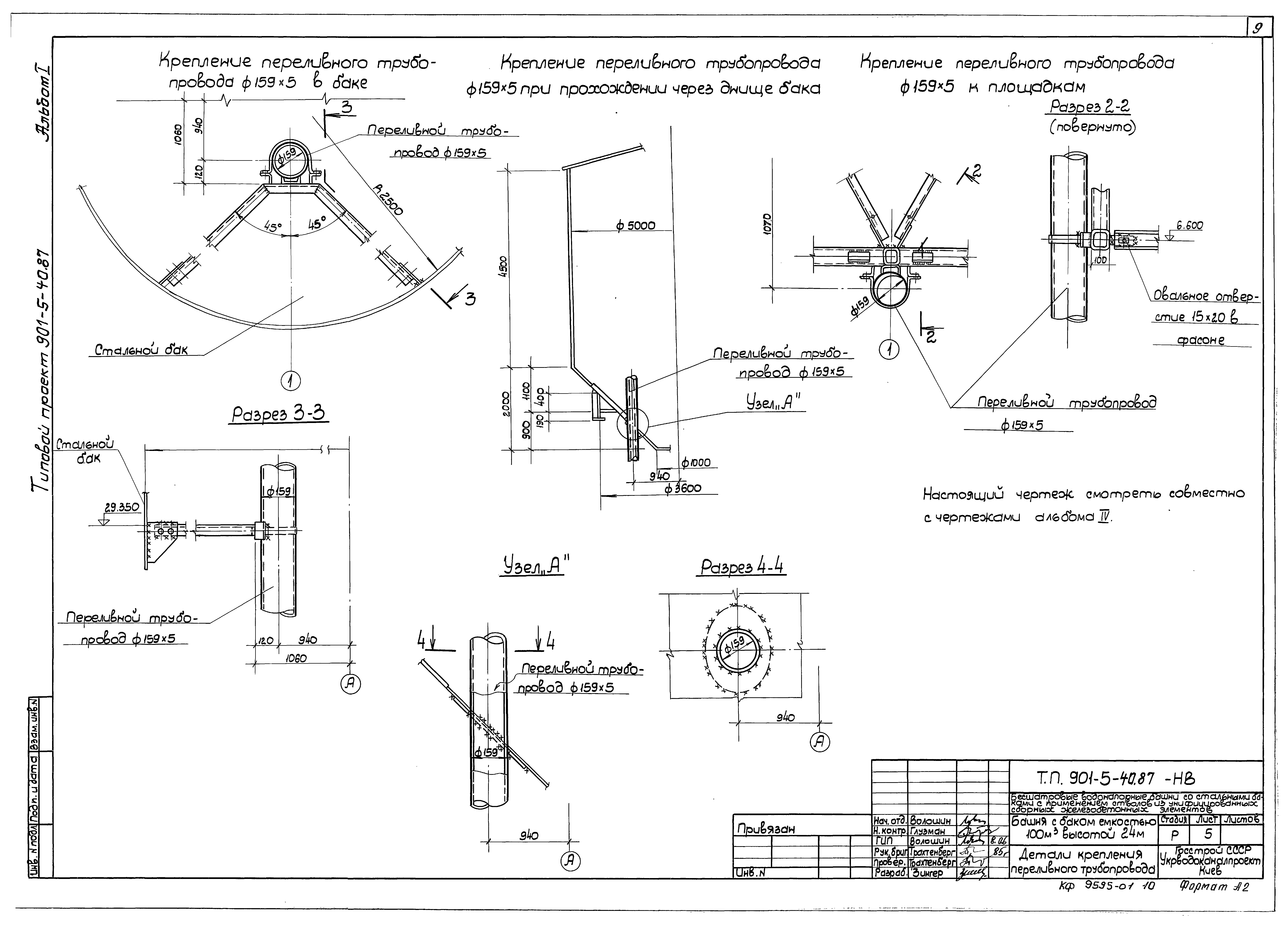
   Детали крепления переливного трубопровода
Чертежи основного комплекта марки ЭЛ
   Общие данные
   Схемы принципиальные однолинейная 380/220 В и электропитания шкафа ШО
   Схема функциональная технологического контроля
   Схема принципиальная управления задвижкой (исполнение 1)
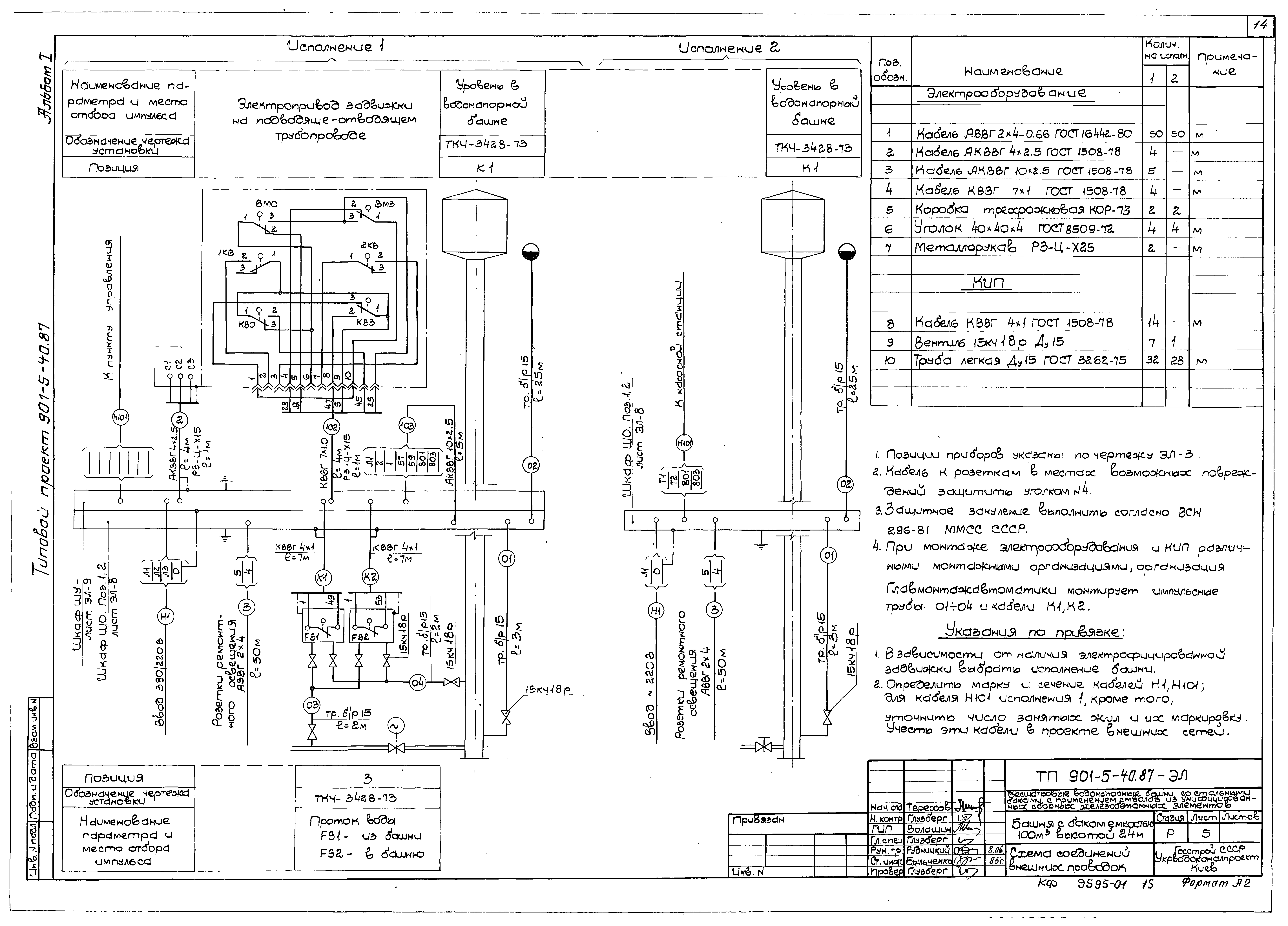
   Схема соединения внешних проводок
   Расположение оборудования и проводок (исполнение 1)
   Расположение оборудования и проводок (исполнение 2)
   Шкаф утепленный, обогреваемый ШО
   Шкаф управления ШУ. Чертеж общего вида
   Шкаф управления ШУ. Таблица технических данных аппаратов
   Шкаф управления ШУ. Таблица перечня надписей
   Шкаф управления ШУ. Схема электрических соединений
Разработан: Укрводоканалпроект
Утверждён:29.04.1986 Госстрой СССР (Государственный комитет Совета Министров СССР по делам строительства) (USSR Gosstroy А4-25)
Расположен в:Техническая документация Строительство Справочные документы Типовые строительные конструкции, изделия и узлы Общероссийский строительный каталог Промышленные предприятия, здания и сооружения Здания и сооружения санитарно-технические Водоснабжение Водонапорные башни Железобетонные
Типовой проект 901-5-40.87Типовой проект 901-5-40.87Типовой проект 901-5-40.87Типовой проект 901-5-40.87Типовой проект 901-5-40.87Типовой проект 901-5-40.87Типовой проект 901-5-40.87Типовой проект 901-5-40.87Типовой проект 901-5-40.87Типовой проект 901-5-40.87Типовой проект 901-5-40.87Типовой проект 901-5-40.87Типовой проект 901-5-40.87Типовой проект 901-5-40.87Типовой проект 901-5-40.87Типовой проект 901-5-40.87Типовой проект 901-5-40.87Типовой проект 901-5-40.87Типовой проект 901-5-40.87Типовой проект 901-5-40.87

© 2013 Ёшкин Кот :-) Карта сайта