Информационная система
«Ёшкин Кот»

Скачать базу одним архивом
Скачать обновления
История создания базы
Карта сайта

Скачать Типовой проект 901-3-285.91 Альбом 3. Часть 2. Конструкции железобетонные

Дата актуализации: 10.08.2017

Типовой проект 901-3-285.91

Альбом 3. Часть 2. Конструкции железобетонные

Обозначение: Типовой проект 901-3-285.91
Обозначение англ: 901-3-285.91
Статус:не определен законодательством
Название рус.:Альбом 3. Часть 2. Конструкции железобетонные
Дата добавления в базу:01.10.2014
Дата актуализации:05.05.2017
Дата введения:29.07.1986
Оглавление:Общие данные
Схема расположения фундаментов, фундаментных балок и подпорных стен
Сечения 1-1…8-8
Сечения 9-9…18-18
Фундаменты 1, 2
Узлы 1, 2. Сечения 19-19; 20-20
Разрезы I-I…III-III
Фундаменты Фм1…Фм3
Фундаменты Фм4, Фм5, Фм13. Опалубочный чертеж
Фундаменты Фм6, Фм7, Фм9, Фм10
Фундаменты Фм8, Фм11, Фм12
Фундаменты Фм1…Фм3. Армирование
Фундаменты Фм4, Фм5. Армирование
Фундаменты Фм6, Фм7, Фм11. Армирование
Фундаменты Фм8…Фм10. Армирование
Фундаменты Фм12, Фм13. Армирование
Фундаменты Фм14…Фм16, Фм25. Опалубочный чертеж. Армирование
Фундаменты Фм17…Фм19. Армирование
Фундаменты Фм20…Фм24, Фм26. Армирование
Фундаменты Фм22…Фм24. Разрезы 5-5 - 9-9
Схема расположения каналов и приямков, сборных ж/б плит над фундаментами и подбетонка под РЕ-1, РЕ-2
Схема расположения каналов и опор под трубопроводы в осях А - Ж; 1 - 3
Схема расположения приямков и бетонных столбиков в осях 1…3 и Д…К
Схема расположения фундаментов под оборудование и опор в осях 4 - 6; А - Б; Г - Л
Схема расположения опор под трубы в осях 4 - 6; Г - Е
Схема расположения каналов, приямков и опор под трубы в осях 4 - 6; И - Л
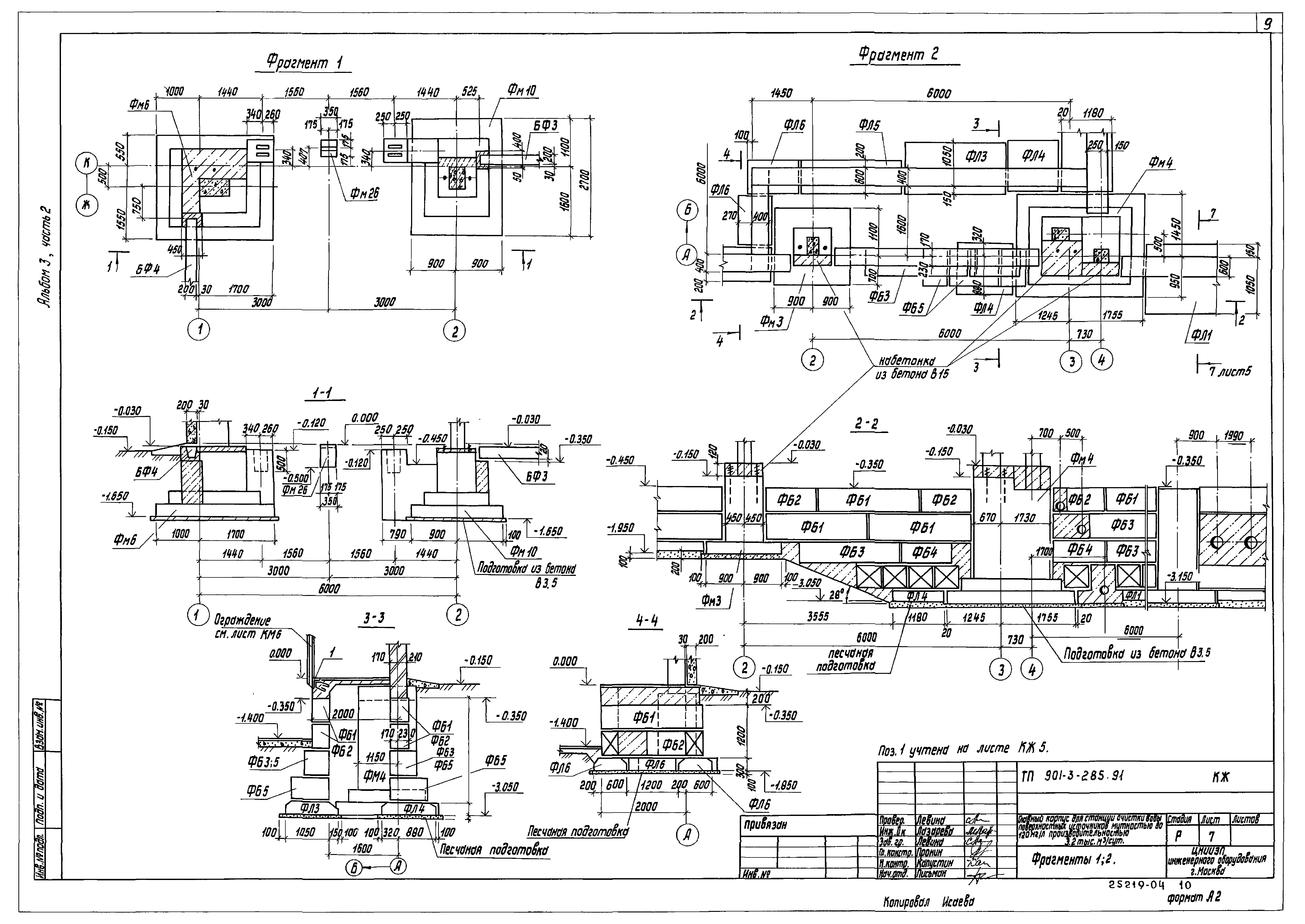
Фундаменты под оборудование ФО1…ФО7. Фрагмент №1
Трансформаторная. План. Сечения
Схема расположения закладных изделий на отм. 0.000 и 3.600. Разрезы 1-1…14-14
Емкости РЕ1 и РЕ2 (фильтры). Схема расположения емкостей. Разрезы 1-1, 2-2
Емкости РЕ1 и РЕ2. Вид 4-4, 5-5, 6-6. Схемы расположения закладных изделий
Емкости РЕ1 и РЕ2. Армирование
Емкости РЕ1 и РЕ2. Армирование. Спецификация
РЕ3. Микрофильтры. Опалубочный чертеж. План. Разрезы 1-1; 8-8…10-10. Узел 2
РЕ3. Микрофильтры. Опалубочный чертеж. Разрезы 2-2…4-4; 7-7
РЕ3. Микрофильтры. Опалубочный чертеж. Планы. Узел 1. Разрезы 5-5, 6-6
РЕ3. Микрофильтры. Армирование. Разрезы 1-1…3-3
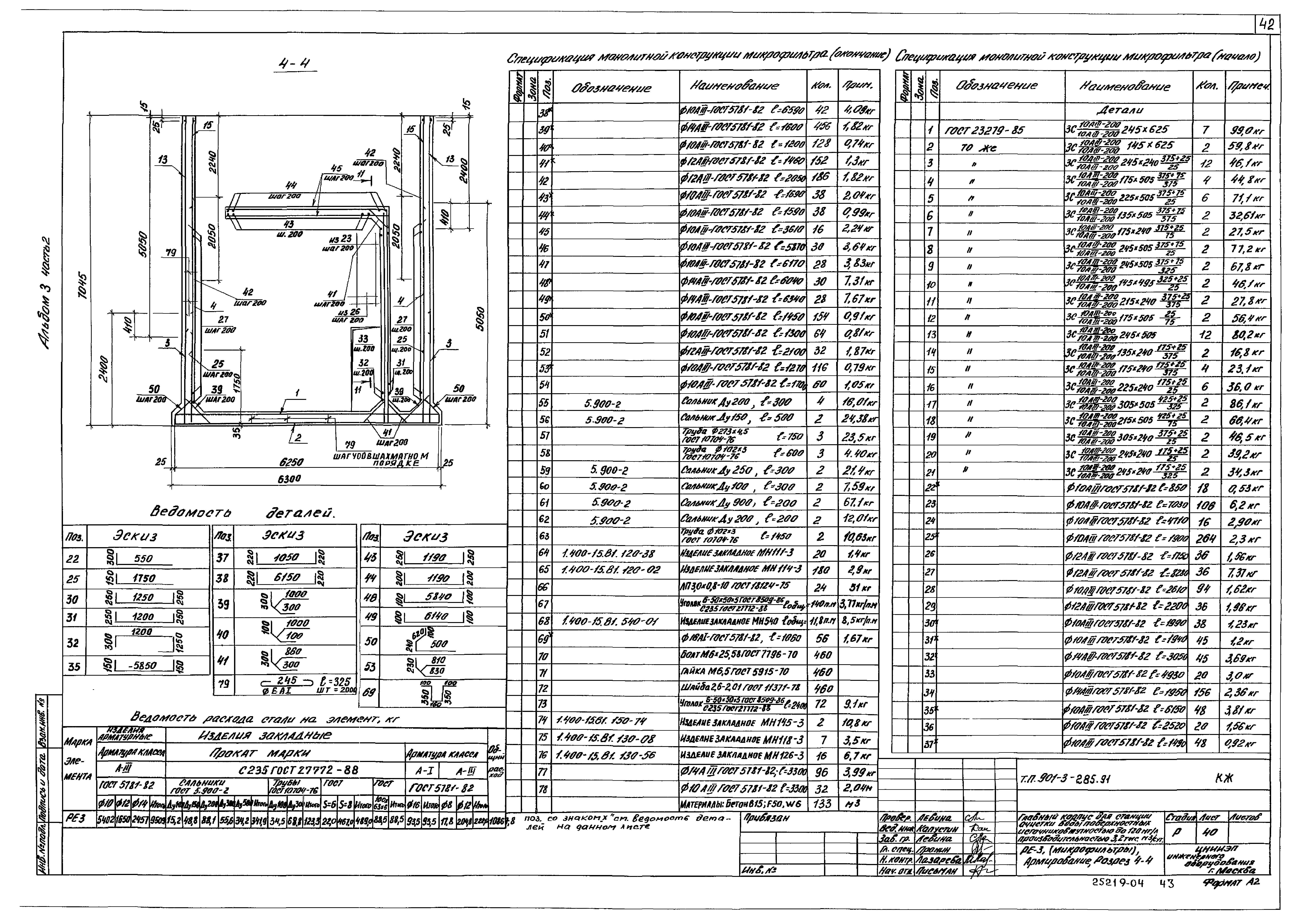
РЕ3. Микрофильтры. Армирование. Разрез 4-4
РЕ3. Микрофильтры. Армирование. Разрез 11-11. Планы
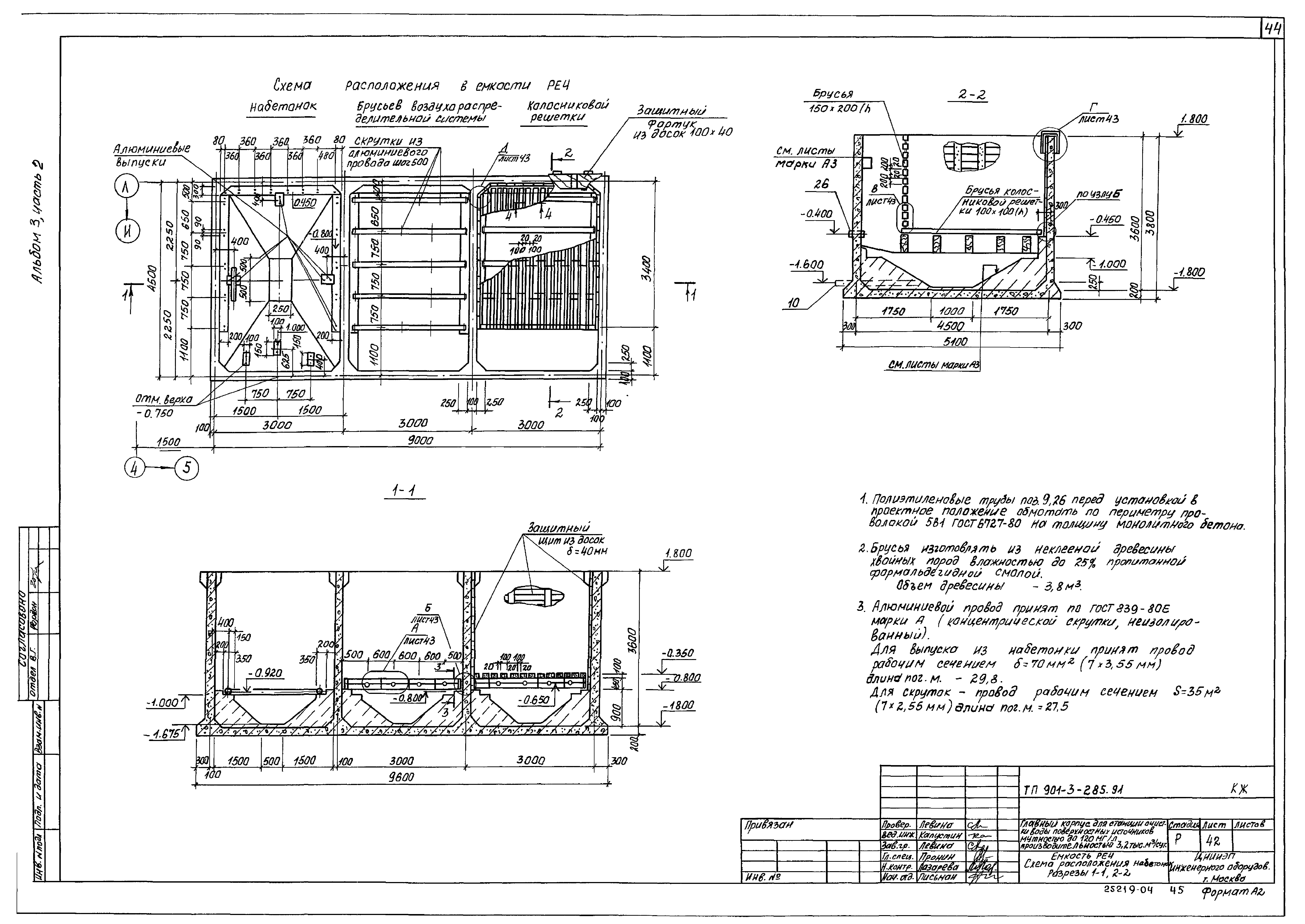
Емкость РЕ-4. Схема расположения набетонок. Разрезы 1-1, 2-2
Емкость РЕ-4. Опалубочный чертеж. Разрезы 3-3, 4-4. Узлы А - Г
Емкость РЕ-4. Армирование
Схемы расположения плит и набетонки в поддоне. Разрезы 1-1, 2-2
Емкость РЕ-5. Опалубочный чертеж
Емкость РЕ-5. Армирование
Схемы расположения колонн, балок и плит покрытия в осях 1 - 3; Д - К. Разрезы 1-1, 2-2
Схемы расположения колонн, балок и плит покрытия в осях 1 - 3; А - Г. Разрезы 1-1, 2-2
Схемы расположения колонн, балок и плит покрытия. Узлы 1 - 6
Схемы расположения колонн, диафрагм жесткости, ригелей на отм. 3.600; 7.200
Схемы расположения колонн, диафрагм жесткости, ригелей. Разрезы 1-1 - 5-5
Схемы расположения плит покрытия на отм. 3.500; 7.100; 0.600
Схемы расположения стеновых панелей по осям "Д", "И", "3", "4"
Схемы расположения стеновых панелей по осям "А", "6", "Л", "1". Сечение 1-1
Схемы расположения лестничных маршей проступей и монолитной площадки МП1
Схемы расположения МП1. Разрезы. Узлы
Схема расположения щитов, плит покрытия и опорных подушек в осях 4 - 6; И - Л
Венткамера
Разработан: ЦНИИЭП иженерного оборудования
Утверждён:29.07.1986 Госгражданстрой (Gosgrazhdanstroy 242)
Расположен в:Техническая документация Строительство Справочные документы Типовые строительные конструкции, изделия и узлы Общероссийский строительный каталог Промышленные предприятия, здания и сооружения Здания и сооружения санитарно-технические Водоснабжение Очистные сооружения Станции очистки воды
Заменяет собой:
  • Типовой проект 901-3-105
Типовой проект 901-3-285.91Типовой проект 901-3-285.91Типовой проект 901-3-285.91Типовой проект 901-3-285.91Типовой проект 901-3-285.91Типовой проект 901-3-285.91Типовой проект 901-3-285.91Типовой проект 901-3-285.91Типовой проект 901-3-285.91Типовой проект 901-3-285.91Типовой проект 901-3-285.91Типовой проект 901-3-285.91Типовой проект 901-3-285.91Типовой проект 901-3-285.91Типовой проект 901-3-285.91Типовой проект 901-3-285.91Типовой проект 901-3-285.91Типовой проект 901-3-285.91Типовой проект 901-3-285.91Типовой проект 901-3-285.91Типовой проект 901-3-285.91Типовой проект 901-3-285.91Типовой проект 901-3-285.91Типовой проект 901-3-285.91Типовой проект 901-3-285.91Типовой проект 901-3-285.91Типовой проект 901-3-285.91Типовой проект 901-3-285.91Типовой проект 901-3-285.91Типовой проект 901-3-285.91Типовой проект 901-3-285.91Типовой проект 901-3-285.91Типовой проект 901-3-285.91Типовой проект 901-3-285.91Типовой проект 901-3-285.91Типовой проект 901-3-285.91Типовой проект 901-3-285.91Типовой проект 901-3-285.91Типовой проект 901-3-285.91Типовой проект 901-3-285.91Типовой проект 901-3-285.91Типовой проект 901-3-285.91Типовой проект 901-3-285.91Типовой проект 901-3-285.91Типовой проект 901-3-285.91Типовой проект 901-3-285.91Типовой проект 901-3-285.91Типовой проект 901-3-285.91Типовой проект 901-3-285.91Типовой проект 901-3-285.91Типовой проект 901-3-285.91Типовой проект 901-3-285.91Типовой проект 901-3-285.91Типовой проект 901-3-285.91Типовой проект 901-3-285.91Типовой проект 901-3-285.91Типовой проект 901-3-285.91Типовой проект 901-3-285.91Типовой проект 901-3-285.91Типовой проект 901-3-285.91Типовой проект 901-3-285.91Типовой проект 901-3-285.91

© 2013 Ёшкин Кот :-) Карта сайта