Информационная система
«Ёшкин Кот»

Скачать базу одним архивом
Скачать обновления
История создания базы
Карта сайта

Скачать Типовой проект 901-3-285.91 Альбом 3. Часть 1. Архитектурные решения. Конструкции металлические. Антикоррозийная защита конструкций. Организация строительства

Дата актуализации: 10.08.2017

Типовой проект 901-3-285.91

Альбом 3. Часть 1. Архитектурные решения. Конструкции металлические. Антикоррозийная защита конструкций. Организация строительства

Обозначение: Типовой проект 901-3-285.91
Обозначение англ: 901-3-285.91
Статус:не определен законодательством
Название рус.:Альбом 3. Часть 1. Архитектурные решения. Конструкции металлические. Антикоррозийная защита конструкций. Организация строительства
Дата добавления в базу:01.10.2014
Дата актуализации:05.05.2017
Дата введения:29.07.1986
Оглавление:Архитектурные решения
   Общие данные
   План на отм. - 2.400; - 1.800; - 1.400; - 0.400; 0.600; 0.000. Фрагмент 1, 2
   План на отм. 2.400; 3.600; 5.800; 6.500; 9.300. Фрагмент 3
   Разрезы 1-1, 2-2, 3-3. Узел IV
   Фасады 1 - 6; 6 - 1; А - Л; Л - А
   План перегородок и отверстий на отм. 0.000 и 3.600. Спецификация сборных перегородок. Ведомость отверстий
   Спецификация элементов заполнения проемов и перемычек. Ведомости перемычек, проемов, дверей и ворот. Узлы I, II, III
   Ведомость отделки помещений. Узлы V - VII
   Планы кровли и полов. Экспликация полов
Антикоррозийная защита
   Общие данные
   План фундаментов под оборудование лотков и емкостей. Разрезы 1-1, 2-2
   Узлы 1 - 4. Деталь пропуска полиэтиленовых труб
   План полов на отм. - 1.800; 0.000 и 0.600
   Ведомость объемов антикоррозийных работ
Конструкции металлические
   Общие данные
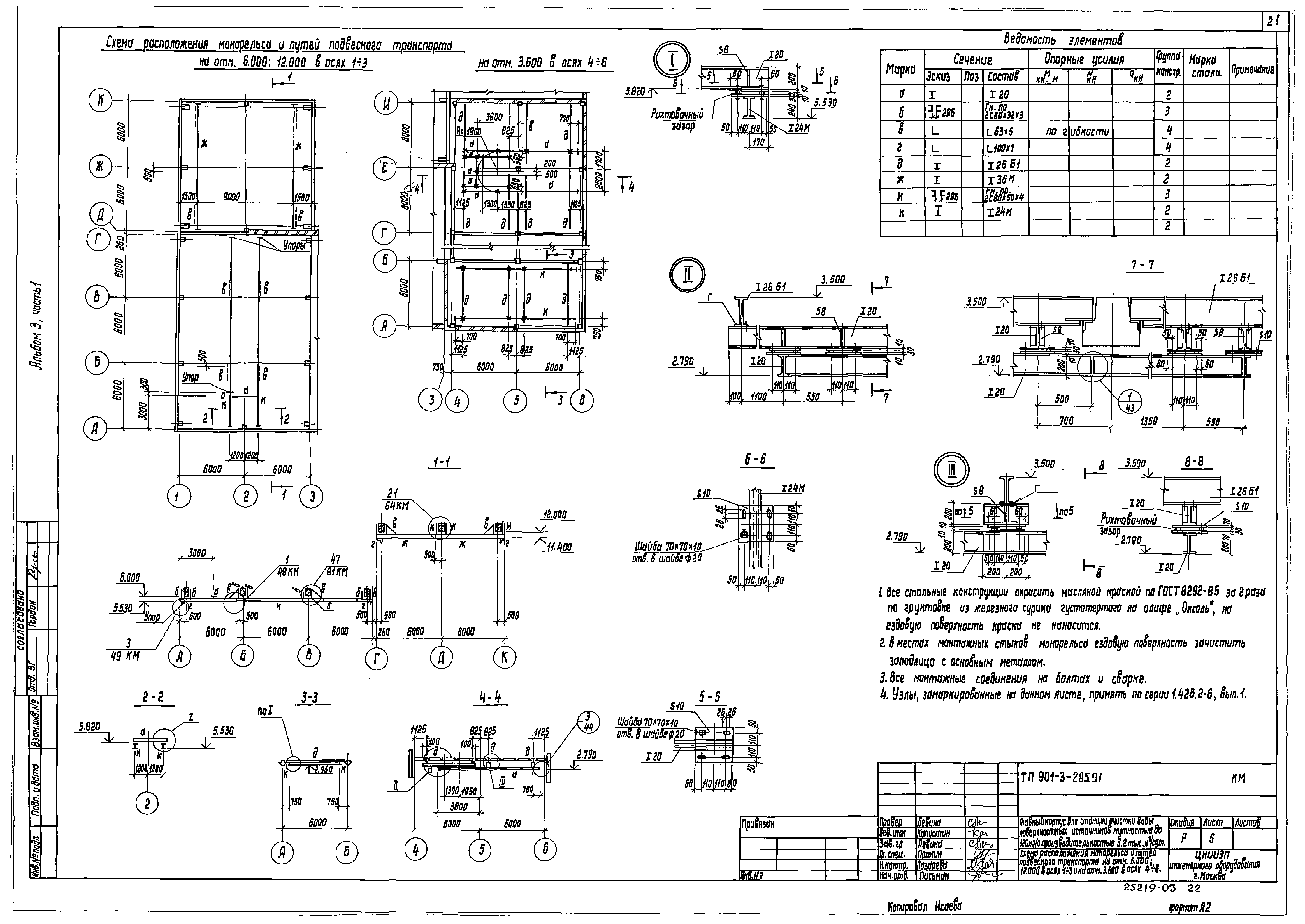
   Схема расположения монорельса и путей подвесного транспорта на отм. 6.000; 12.000 в осях 1 - 3 и на отм. 3.600 в осях 4 - 6
   Схема расположения металлических площадок, лестниц и ограждений на отм. - 1.400 в осях 1 - 4. Разрезы 1-1 - 6-6
   Схема расположения металлических площадок, лестниц и ограждений на отм. - 1.400 в осях 1 - 4. Разрезы 7-7 - 9-9
   Схема расположения металлических площадок, лестниц и ограждений на отм. - 1.400 в осях 1 - 4. Узлы 1 - 7
   Схема расположения металлических балок и площадок на отм. 2.400 в осях 1 - 4. Разрезы 15-15 - 18-18
   Схема расположения металлических балок и площадок на отм. 2.400 в осях 1 - 4. Разрезы 19-19 - 24-24
   Схема расположения металлических балок и площадок на отм. 2.400 в осях 1 - 4. Узлы 8 - 17
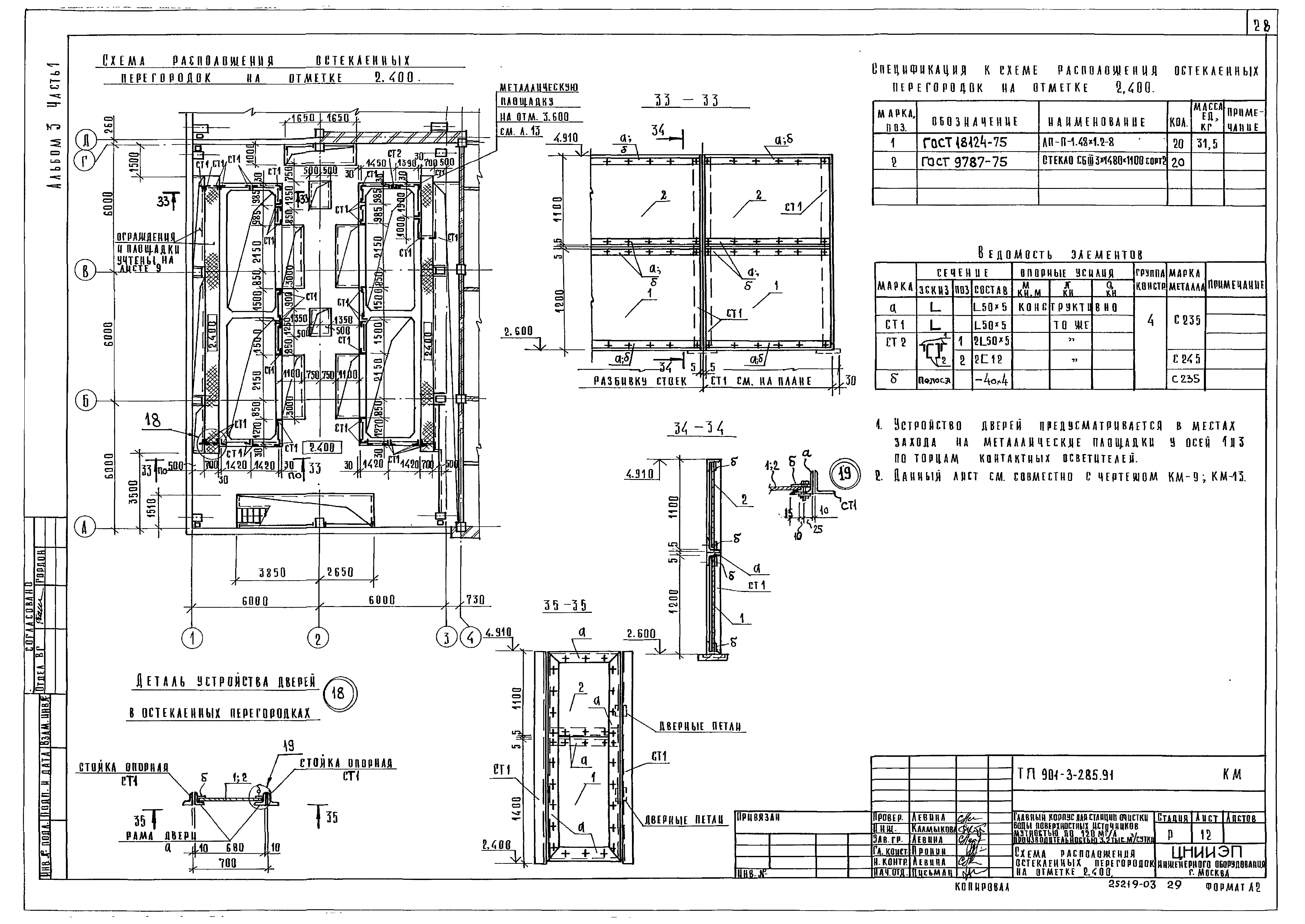
   Схема расположения остекленных перегородок на отм. 2.400
   Схема расположения металлической площадки на отм. 3.600 в осях 2 - 4 у оси "Г"
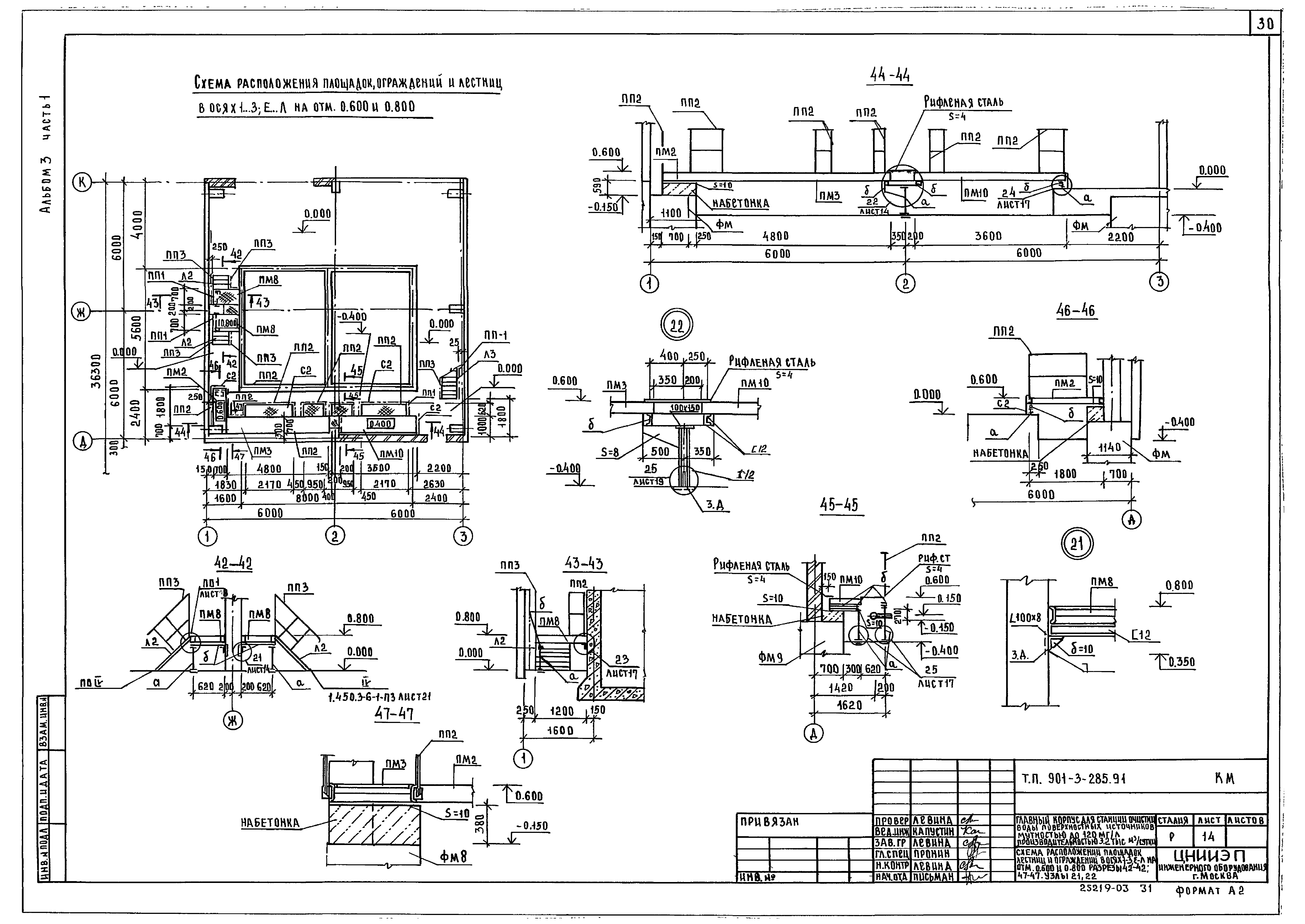
   Схема расположения площадок, лестниц и ограждений в осях 1 - 3; Е - Л на отм. 0.600 и 0.800. Разрезы 42-42 - 47-47. Узлы 21 - 22
   Схема расположения балок на отм. 5.640. Схема расположения площадок в осях 1 - 3; Д - К на отм. 5.800; 6.500. Схема расположения площадок в осях 2 - 3; Д - К на отм. 1.800 и 3.600. Разрез 48-48
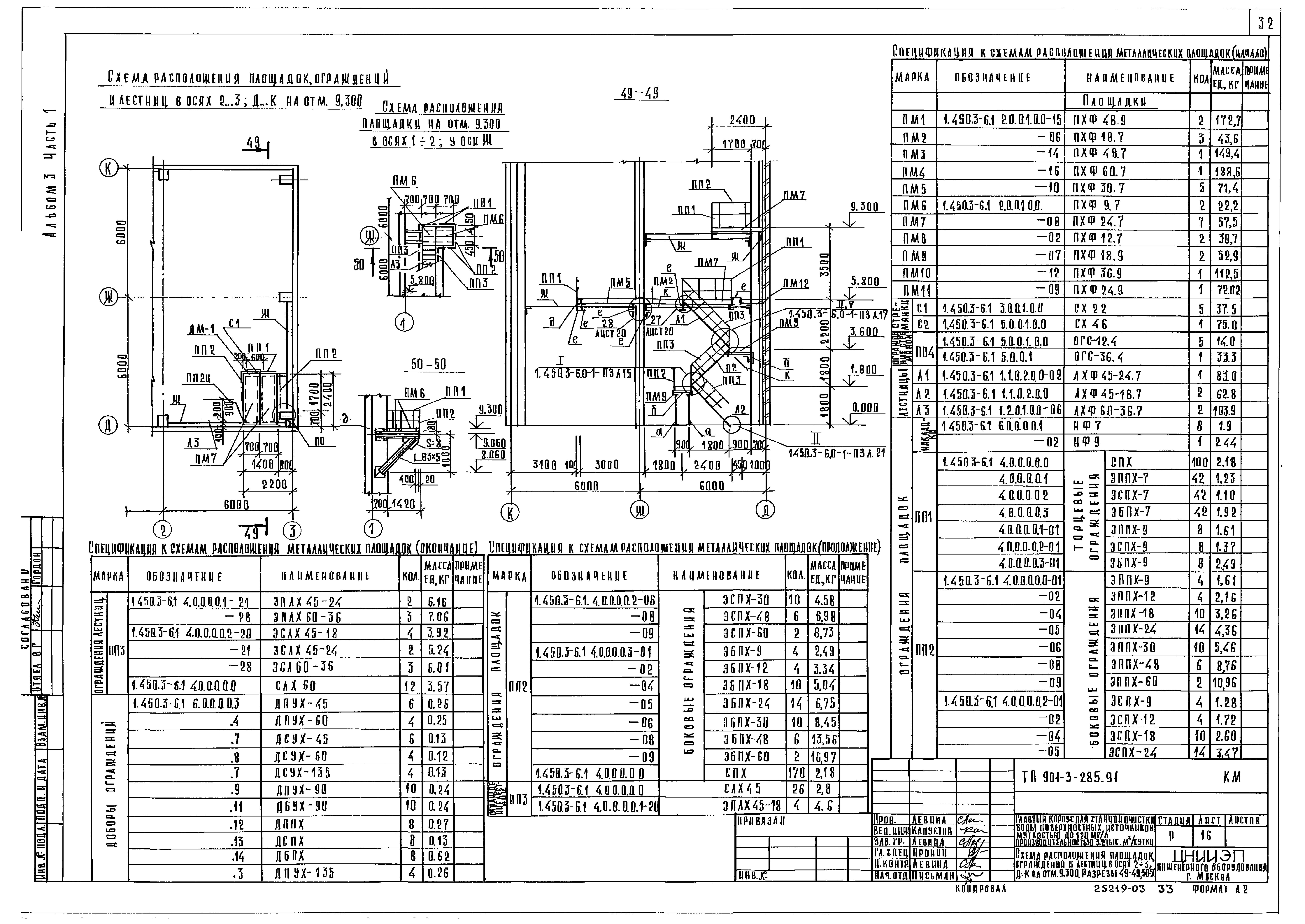
   Схема расположения площадок, ограждений и лестниц в осях 2 - 3; Д - К на отм. 9.300. Разрезы 49-49; 50-50
   Разрезы 51-51 - 58-58. Узлы 23, 24
   Разрезы 59-59 - 68-68
   Разрезы 69-69 - 77-77. Узел 25
   Узлы 26 - 28. Дверца ДН1. Разрезы 78-78 - 82-82, ПП2И
   Схемы расположения металлических площадок, плит и балок под металлические площадки в осях 4 - 6
   Схемы расположения металлических площадок, плит и балок под металлические площадки в осях 4 - 6. Разрезы 83-83 - 92-92
   Схемы расположения металлических площадок, плит и балок под металлические площадки в осях 4 - 6. Узлы 29 - 35. Разрезы 94-94 - 98-98
   Схема расположения пожарных лестниц и площадки на отм. 3.600 в осях "А" - "5"
Организация строительства
   График производства работ
Разработан: ЦНИИЭП иженерного оборудования
Утверждён:29.07.1986 Госгражданстрой (Gosgrazhdanstroy 242)
Расположен в:Техническая документация Строительство Справочные документы Типовые строительные конструкции, изделия и узлы Общероссийский строительный каталог Промышленные предприятия, здания и сооружения Здания и сооружения санитарно-технические Водоснабжение Очистные сооружения Станции очистки воды
Заменяет собой:
  • Типовой проект 901-3-105
Типовой проект 901-3-285.91Типовой проект 901-3-285.91Типовой проект 901-3-285.91Типовой проект 901-3-285.91Типовой проект 901-3-285.91Типовой проект 901-3-285.91Типовой проект 901-3-285.91Типовой проект 901-3-285.91Типовой проект 901-3-285.91Типовой проект 901-3-285.91Типовой проект 901-3-285.91Типовой проект 901-3-285.91Типовой проект 901-3-285.91Типовой проект 901-3-285.91Типовой проект 901-3-285.91Типовой проект 901-3-285.91Типовой проект 901-3-285.91Типовой проект 901-3-285.91Типовой проект 901-3-285.91Типовой проект 901-3-285.91Типовой проект 901-3-285.91Типовой проект 901-3-285.91Типовой проект 901-3-285.91Типовой проект 901-3-285.91Типовой проект 901-3-285.91Типовой проект 901-3-285.91Типовой проект 901-3-285.91Типовой проект 901-3-285.91Типовой проект 901-3-285.91Типовой проект 901-3-285.91Типовой проект 901-3-285.91Типовой проект 901-3-285.91Типовой проект 901-3-285.91Типовой проект 901-3-285.91Типовой проект 901-3-285.91Типовой проект 901-3-285.91Типовой проект 901-3-285.91Типовой проект 901-3-285.91Типовой проект 901-3-285.91Типовой проект 901-3-285.91Типовой проект 901-3-285.91Типовой проект 901-3-285.91Типовой проект 901-3-285.91

© 2013 Ёшкин Кот :-) Карта сайта