| ||||||||||||||||||||||||||
Скачать Типовые проектные решения 901-3-0289.92 Альбом 1. Пояснительная записка. Технология производства. Силовое электрооборудование. Автоматизация технологии производстваДата актуализации: 10.08.2017
|
| Обозначение: | Типовые проектные решения 901-3-0289.92 |
| Обозначение англ: | 901-3-0289.92 |
| Статус: | cправочные материалы, мп, тпр |
| Название рус.: | Альбом 1. Пояснительная записка. Технология производства. Силовое электрооборудование. Автоматизация технологии производства |
| Дата добавления в базу: | 01.10.2014 |
| Дата актуализации: | 05.05.2017 |
| Дата введения: | 19.05.1992 |
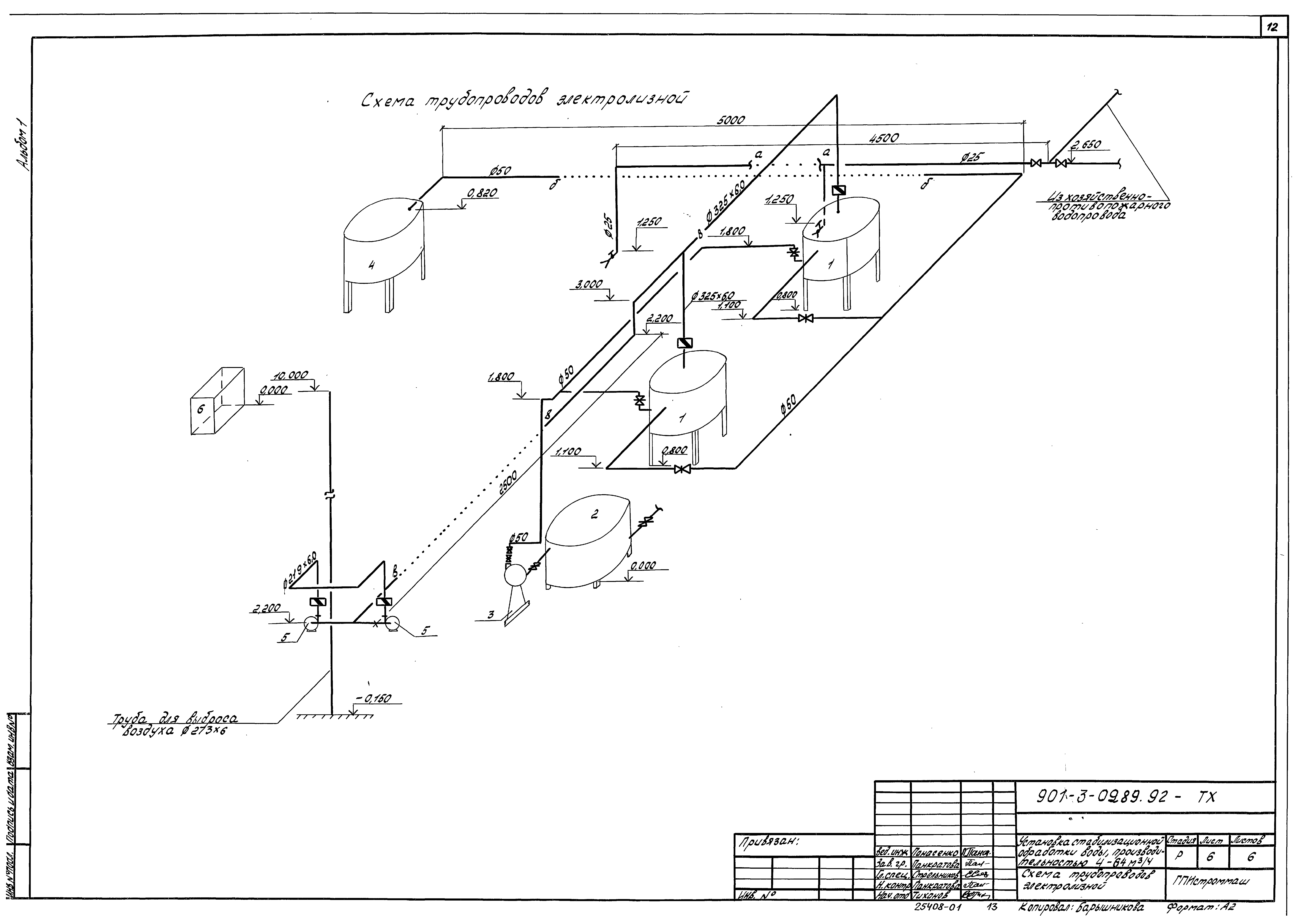
| Оглавление: | Пояснительная записка Строительное задание Технология производства Общие данные План на отм. 0.000 Разрезы 1-1, 2-2, 3-3 Технологическая схема дозирования кислоты. Разрезы 1-1, 4-4, 5-5, 6-6 Технологическая схема дозирования реагентов Схема трубопроводов электролизной Нестандартизированное оборудование ТХ.Н Поддон Силовое электрооборудование Общие данные Распределительная сеть 380/220 В. Схема принципиальная Схема подключения электрооборудования Схема подключения электрооборудования. Кабельный журнал Размещение электрооборудования и прокладка кабелей Автоматизация технологии производства Общие данные Дозаторная реагентов. Схема автоматизации Дозаторная серной кислоты. Схема автоматизации Насосы-дозаторы М9, М10. Мешалка М7. Схема электрическая принципиальная Насосы-дозаторы М14,1; М14.2. Вентиль М15. Схема электрическая принципиальная Контроль уровней установки по обработке воды. Схема электрическая принципиальная Дозаторная реагентов. Схема соединения внешних проводок Дозаторная серной кислоты. Схема соединений внешних проводок План расположения средств автоматизации Нестандартизированное оборудование АТХ.Н Щит автоматизации. Общий вид |
| Разработан: | ГПИ Строммаш |
| Утверждён: | 17.03.1992 МО Строммаш (10) |
| Расположен в: |































