Информационная система
«Ёшкин Кот»

Скачать базу одним архивом
Скачать обновления
История создания базы
Карта сайта

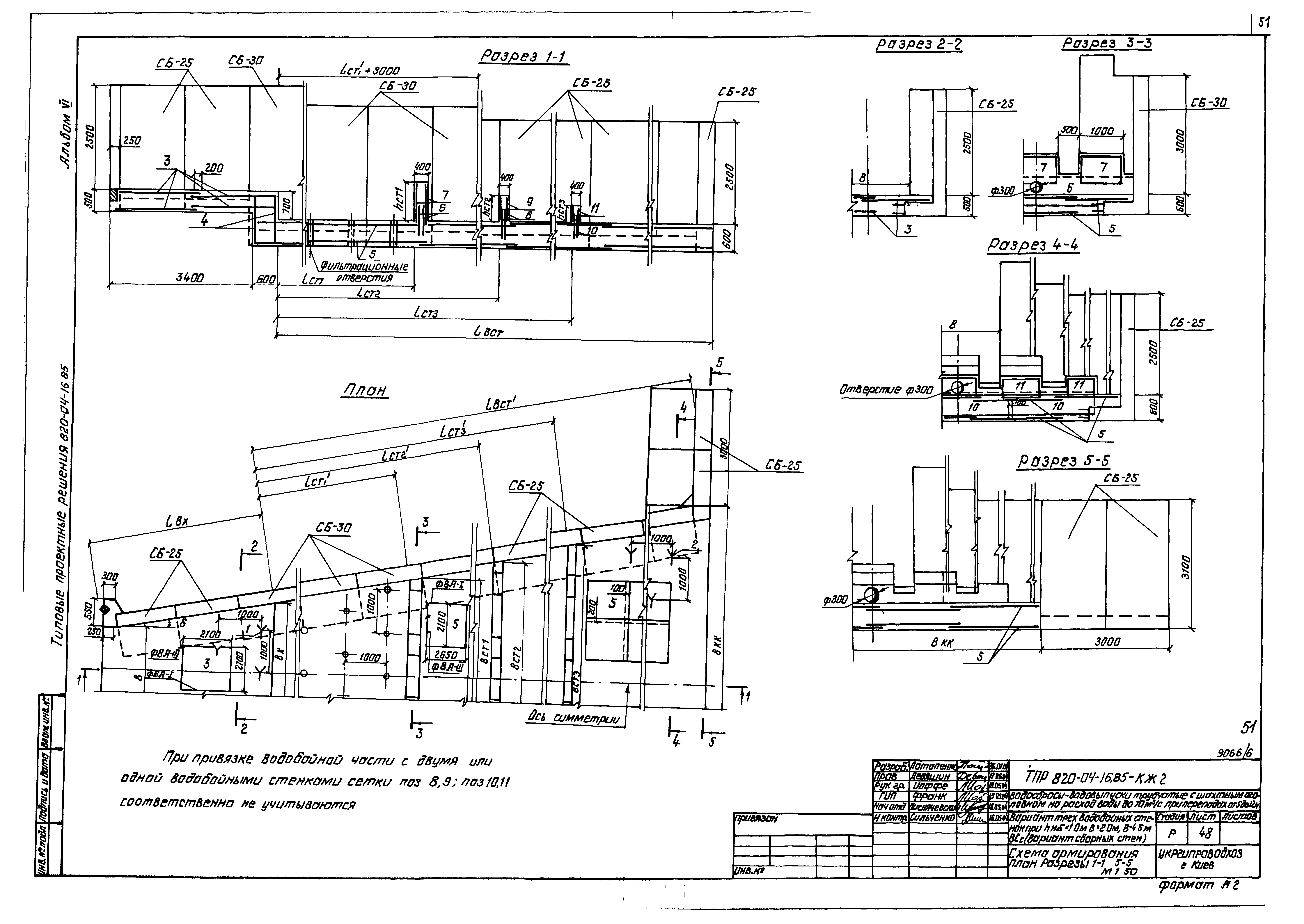
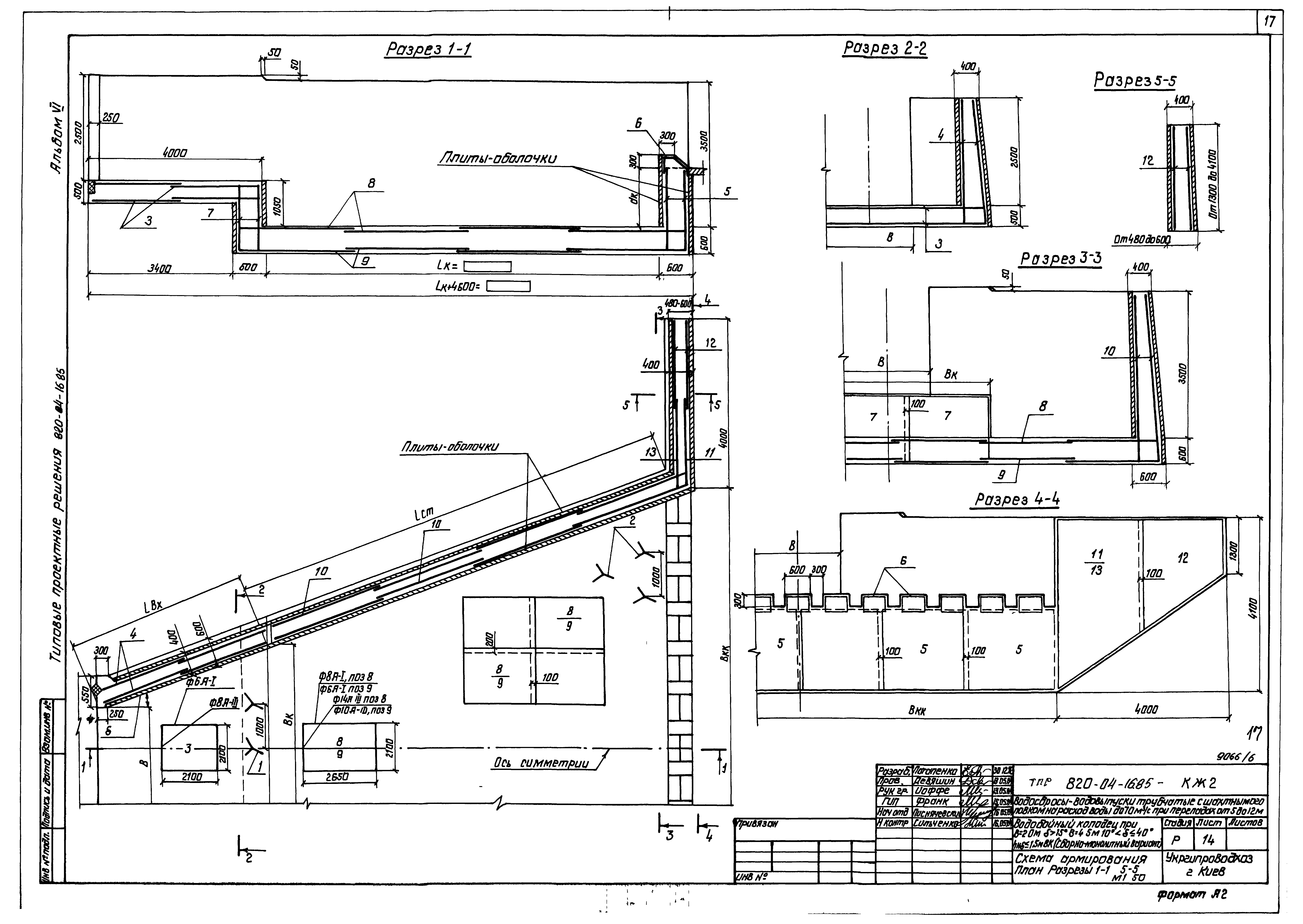
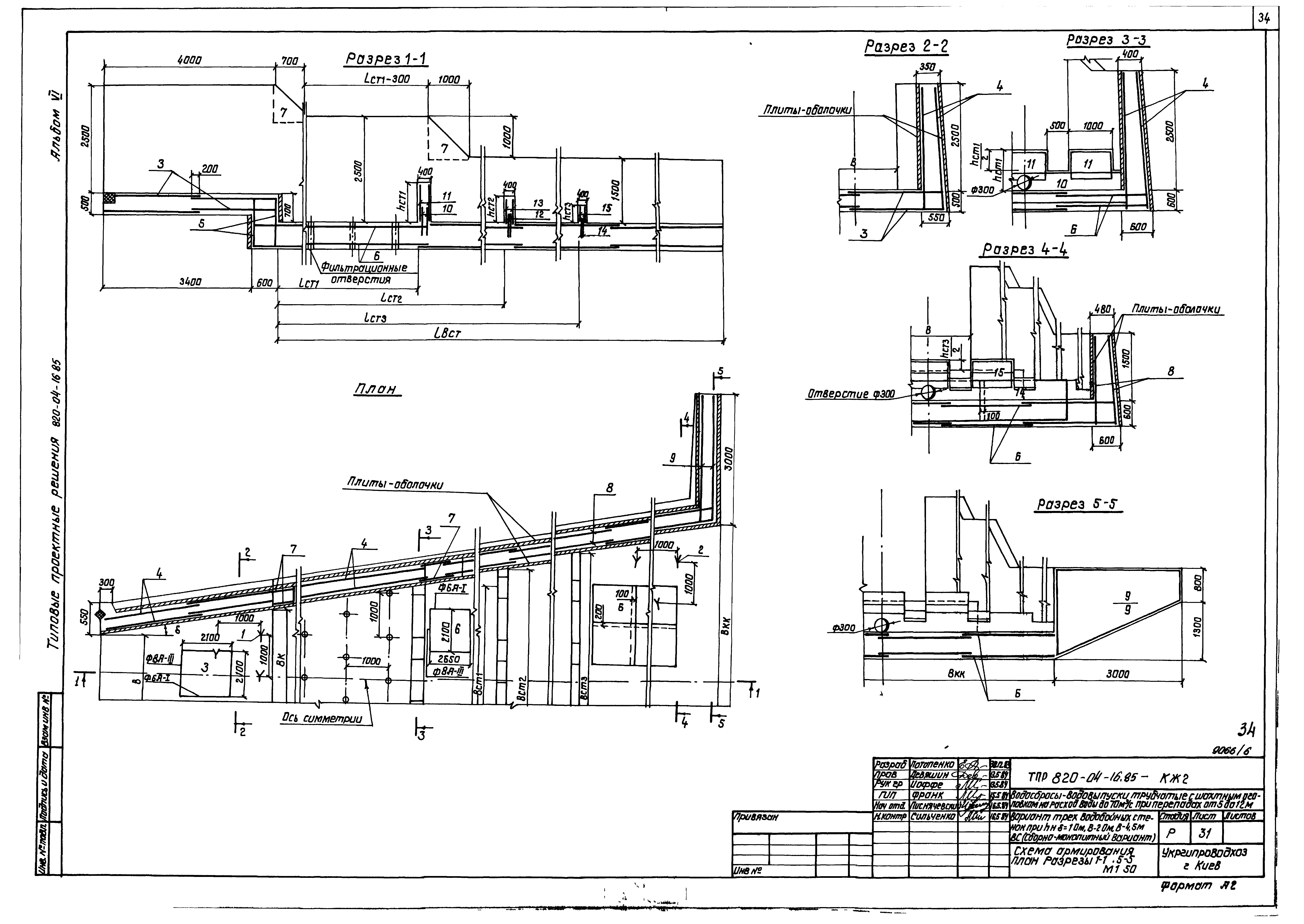
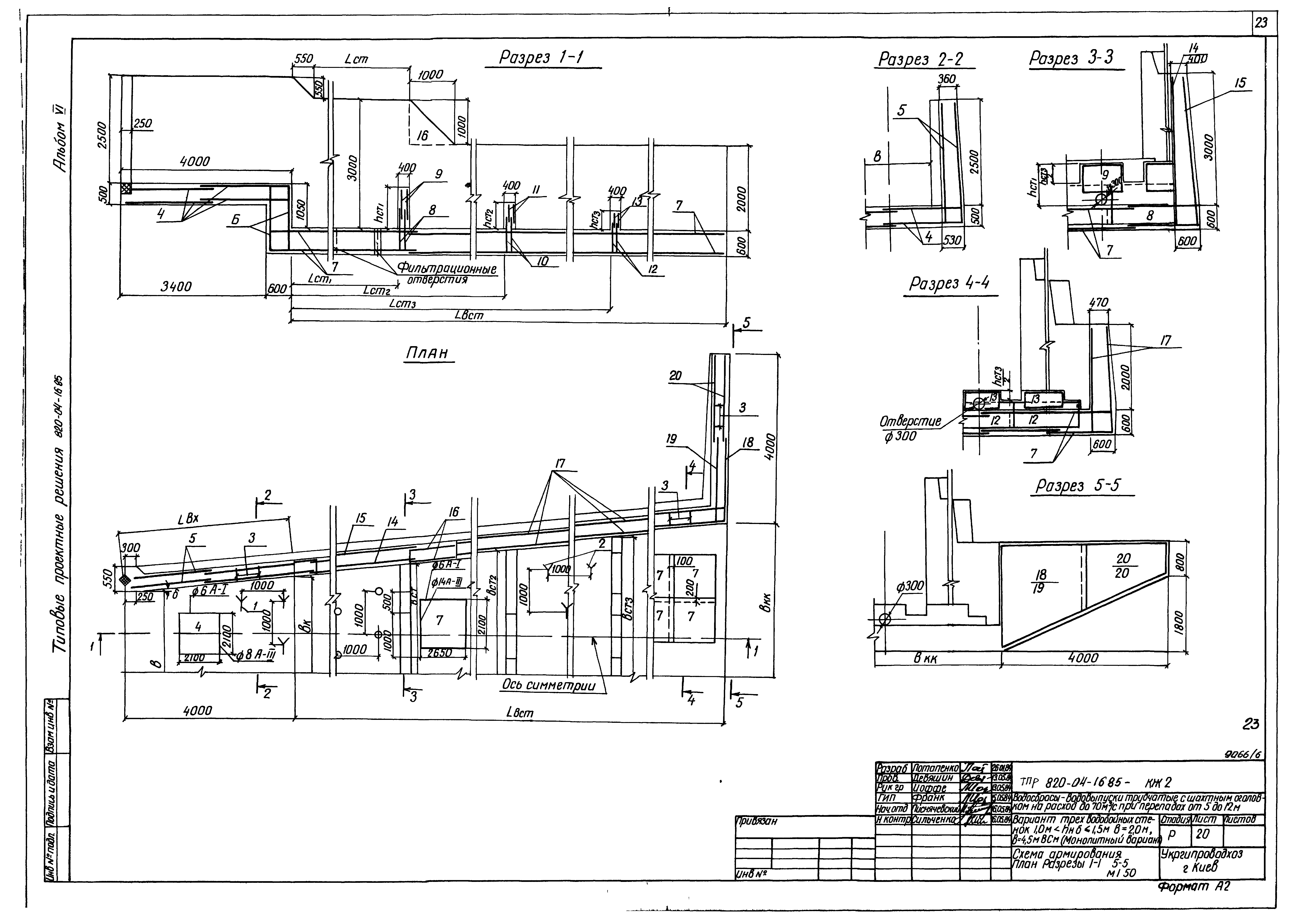
Скачать Типовые проектные решения 820-04-16.85 Альбом VI. Железобетонные конструкции водобойных колодцев и водобойных стенок. Монолитный и сборно-монолитный варианты

Дата актуализации: 10.08.2017

Типовые проектные решения 820-04-16.85

Альбом VI. Железобетонные конструкции водобойных колодцев и водобойных стенок. Монолитный и сборно-монолитный варианты

Обозначение: Типовые проектные решения 820-04-16.85
Обозначение англ: 820-04-16.85
Статус:cправочные материалы, мп, тпр
Название рус.:Альбом VI. Железобетонные конструкции водобойных колодцев и водобойных стенок. Монолитный и сборно-монолитный варианты
Дата добавления в базу:01.10.2014
Дата актуализации:05.05.2017
Дата введения:14.01.1985
Разработан: Укргипроводхоз Минводхоза СССР
Утверждён:14.01.1985 Минводхоз СССР (USSR Minvodkhoz 608)
Издан: ЦИТП Госстроя СССР (CITP, Gosstroy (USSR) 1988 г. )
Расположен в:Техническая документация Строительство Справочные документы Типовые строительные конструкции, изделия и узлы Общероссийский строительный каталог Промышленные предприятия, здания и сооружения Здания и сооружения санитарно-технические Водоснабжение Системы и сооружения мелиоративные Каналы и сооружения на каналах Плотины и сооружения водосбросные
Типовые проектные решения 820-04-16.85Типовые проектные решения 820-04-16.85Типовые проектные решения 820-04-16.85Типовые проектные решения 820-04-16.85Типовые проектные решения 820-04-16.85Типовые проектные решения 820-04-16.85Типовые проектные решения 820-04-16.85Типовые проектные решения 820-04-16.85Типовые проектные решения 820-04-16.85Типовые проектные решения 820-04-16.85Типовые проектные решения 820-04-16.85Типовые проектные решения 820-04-16.85Типовые проектные решения 820-04-16.85Типовые проектные решения 820-04-16.85Типовые проектные решения 820-04-16.85Типовые проектные решения 820-04-16.85Типовые проектные решения 820-04-16.85Типовые проектные решения 820-04-16.85Типовые проектные решения 820-04-16.85Типовые проектные решения 820-04-16.85Типовые проектные решения 820-04-16.85Типовые проектные решения 820-04-16.85Типовые проектные решения 820-04-16.85Типовые проектные решения 820-04-16.85Типовые проектные решения 820-04-16.85Типовые проектные решения 820-04-16.85Типовые проектные решения 820-04-16.85Типовые проектные решения 820-04-16.85Типовые проектные решения 820-04-16.85Типовые проектные решения 820-04-16.85Типовые проектные решения 820-04-16.85Типовые проектные решения 820-04-16.85Типовые проектные решения 820-04-16.85Типовые проектные решения 820-04-16.85Типовые проектные решения 820-04-16.85Типовые проектные решения 820-04-16.85Типовые проектные решения 820-04-16.85Типовые проектные решения 820-04-16.85Типовые проектные решения 820-04-16.85Типовые проектные решения 820-04-16.85Типовые проектные решения 820-04-16.85Типовые проектные решения 820-04-16.85Типовые проектные решения 820-04-16.85Типовые проектные решения 820-04-16.85Типовые проектные решения 820-04-16.85Типовые проектные решения 820-04-16.85Типовые проектные решения 820-04-16.85Типовые проектные решения 820-04-16.85Типовые проектные решения 820-04-16.85Типовые проектные решения 820-04-16.85Типовые проектные решения 820-04-16.85Типовые проектные решения 820-04-16.85Типовые проектные решения 820-04-16.85Типовые проектные решения 820-04-16.85Типовые проектные решения 820-04-16.85Типовые проектные решения 820-04-16.85Типовые проектные решения 820-04-16.85Типовые проектные решения 820-04-16.85Типовые проектные решения 820-04-16.85Типовые проектные решения 820-04-16.85Типовые проектные решения 820-04-16.85Типовые проектные решения 820-04-16.85Типовые проектные решения 820-04-16.85Типовые проектные решения 820-04-16.85Типовые проектные решения 820-04-16.85Типовые проектные решения 820-04-16.85Типовые проектные решения 820-04-16.85Типовые проектные решения 820-04-16.85Типовые проектные решения 820-04-16.85Типовые проектные решения 820-04-16.85Типовые проектные решения 820-04-16.85Типовые проектные решения 820-04-16.85Типовые проектные решения 820-04-16.85Типовые проектные решения 820-04-16.85Типовые проектные решения 820-04-16.85Типовые проектные решения 820-04-16.85Типовые проектные решения 820-04-16.85Типовые проектные решения 820-04-16.85Типовые проектные решения 820-04-16.85Типовые проектные решения 820-04-16.85Типовые проектные решения 820-04-16.85Типовые проектные решения 820-04-16.85Типовые проектные решения 820-04-16.85Типовые проектные решения 820-04-16.85Типовые проектные решения 820-04-16.85Типовые проектные решения 820-04-16.85Типовые проектные решения 820-04-16.85Типовые проектные решения 820-04-16.85Типовые проектные решения 820-04-16.85Типовые проектные решения 820-04-16.85Типовые проектные решения 820-04-16.85Типовые проектные решения 820-04-16.85Типовые проектные решения 820-04-16.85Типовые проектные решения 820-04-16.85

© 2013 Ёшкин Кот :-) Карта сайта