Информационная система
«Ёшкин Кот»

Скачать базу одним архивом
Скачать обновления
История создания базы
Карта сайта

Скачать Типовой проект 411-2-170.86 Альбом VII. Часть 1. Чертежи нестандартизированного оборудования

Дата актуализации: 10.08.2017

Типовой проект 411-2-170.86

Альбом VII. Часть 1. Чертежи нестандартизированного оборудования

Обозначение: Типовой проект 411-2-170.86
Обозначение англ: 411-2-170.86
Статус:не определен законодательством
Название рус.:Альбом VII. Часть 1. Чертежи нестандартизированного оборудования
Дата добавления в базу:01.10.2014
Дата актуализации:05.05.2017
Дата введения:25.07.1986
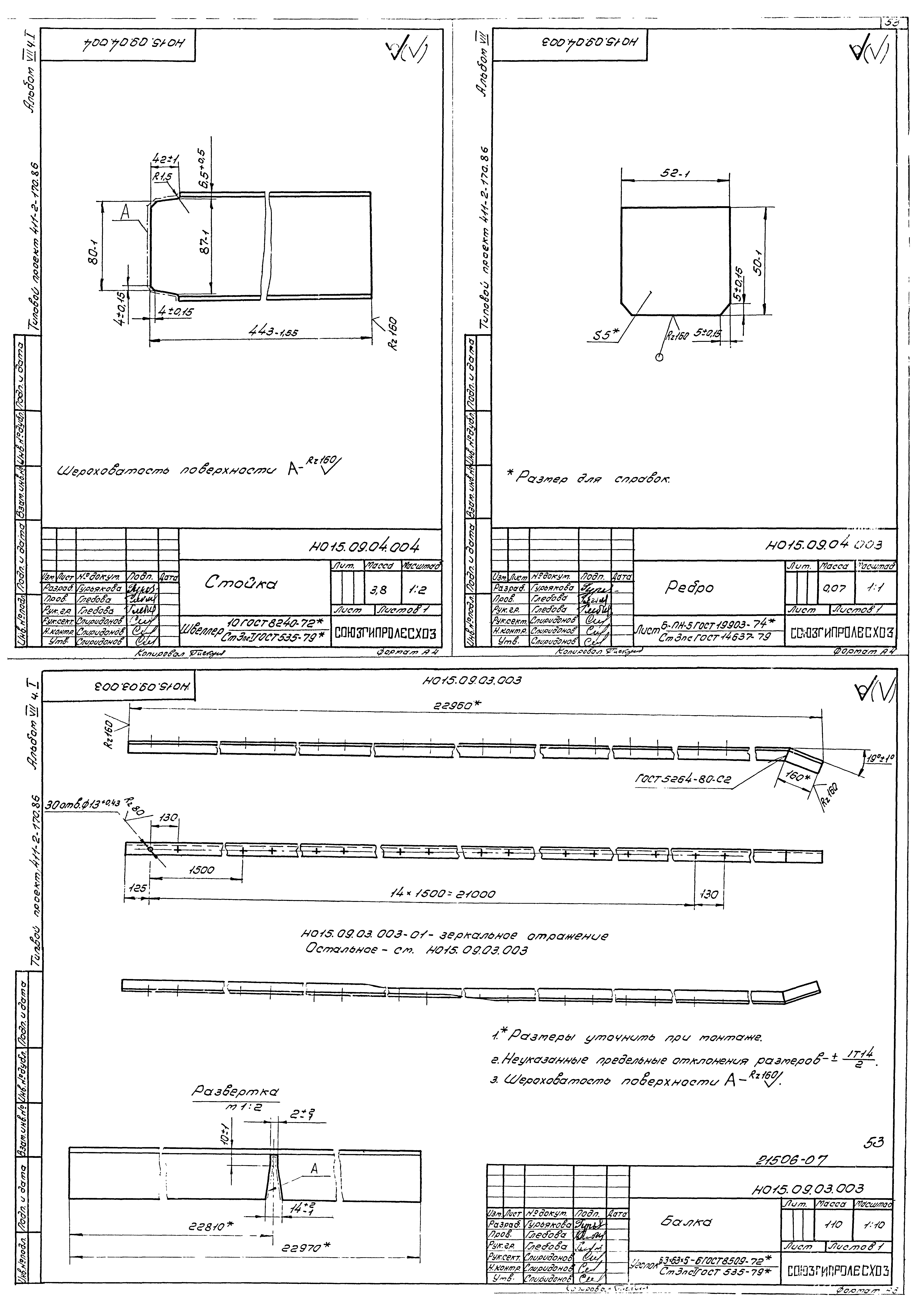
Оглавление:НО15.02.00.000 Этажерка
НО15.02.01.000 Поддон
НО15.02.02.000 Опора
НО15.02.00.000СБ Этажерка. Сборочный чертеж
НО15.02.00.001 Балка
НО15.02.00.002 Косынка
НО15.02.01.000СБ Поддон. Сборочный чертеж
НО15.02.02.000СБ Опора. Сборочный чертеж
НО15.03.00.000 Кассета
НО15.11.01.006 Платик
НО15.03.01.000 Траверса
НО15.03.02.000 Каркас
НО15.03.00.000СБ Кассета. Сборочный чертеж
НО15.03.00.001 Планка
НО15.03.00.002 Ось
НО15.03.02.004 Втулка
НО15.03.02.005 Платик
НО15.03.01.001 Скоба
НО15.03.01.002 Балка
НО15.03.01.005 Косынка
НО15.03.02.001 Ручка
НО15.03.01.000СБ Траверса. Сборочный чертеж
НО15.03.01.003 Стенка
НО15.03.01.004 Бобышка
НО15.03.02.000СБ Каркас. Сборочный чертеж
НО15.03.02.100 Опора
НО15.04.01.003 Балка
НО15.03.02.100СБ Опора. Сборочный чертеж
НО15.03.02.002 Бобышка
НО15.03.02.003 Стенка
НО15.04.00.000 Тележка
НО15.04.01.000 Рама
НО15.05.01.000 Станина
НО15.05.02.000 Станина
НО15.04.00.000СБ Тележка. Сборочный чертеж
НО15.04.00.001 Ось
НО15.04.00.002 Оседержатель
НО15.04.00.003 Крышка
НО15.04.00.004 Каток
НО15.04.01.000СБ Рама. Сборочный чертеж
НО15.02.01.001 Поддон
НО15.12.06.001 Стойка
НО15.05.00.000 Стол роликовый
НО15.05.01.007 Опора
НО15.05.00.000СБ Стол роликовый. Сборочный чертеж
НО15.05.01.000СБ Станина. Сборочный чертеж
НО15.05.01.005 Опора
НО15.05.01.006 Опора
НО15.05.02.000СБ Станина. Сборочный чертеж
НО15.07.00.000 Рольганг приводной
НО15.07.01.000 Привод
НО15.07.00.000СБ Рольганг приводной. Сборочный чертеж
НО15.07.01.000СБ Привод. Сборочный чертеж
НО15.07.01.003 Шайба
НО15.07.01.101 Балка
НО15.07.01.001 Звездочка
НО15.07.01.100СБ Рама. Сборочный чертеж
НО15.07.00.002 Ось
НО15.07.00.003 Крышка
НО15.07.01.002 Кожух
НО15.07.03.006 Крышка
НО15.07.02.000СБ Ограждение. Сборочный чертеж
НО15.07.02.001 Ограждение
НО15.07.02.002 Стойка
НО15.07.01.100 Рама
НО15.11.01.006 Платик
НО15.07.03.000 Ролик
НО15.07.03.000СБ Ролик. Сборочный чертеж
НО15.07.03.003 Крышка
НО15.07.03.004 Корпус
НО15.07.02.000 Ограждение
НО15.07.03.100 Каток
НО15.07.03.103 Диск
НО15.07.03.104 Труба
НО15.07.03.100СБ Каток. Сборочный чертеж
НО15.07.04.001 Косынка
НО15.07.03.001 Крышка
НО15.07.03.002 Кольцо
НО15.07.03.101 Ось
НО15.07.04.000 Рама
НО15.07.04.002 Косынка
НО15.07.05.000 Упор
НО15.07.05.002 Опора
НО15.07.04.000СБ Рама. Сборочный чертеж
НО15.07.03.005 Звездочка
НО15.07.04.003 Раскос
НО15.07.04.004 Втулка
НО15.07.00.001 Звездочка
НО15.07.05.000СБ Упор. Сборочный чертеж
НО15.07.05.001 Ось
НО15.08.00.000 Зонт вытяжной
НО15.08.01.000 Секция
НО15.08.02.000 Секция
НО15.08.03.000 Патрубок
НО15.08.00.000СБ Зонт вытяжной. Сборочный чертеж
НО15.08.01.000СБ Секция. Сборочный чертеж
НО15.08.01.001 Балка
НО15.08.01.002 Стенка
НО15.08.02.000СБ Секция. Сборочный чертеж
НО15.08.02.001 Балка
НО15.08.02.004 Балка
НО15.04.01.002 Ручка
НО15.04.01.004 Косынка
НО15.08.00.001 Ухо
НО15.08.02.002 Стенка
НО15.08.03.000СБ Патрубок. Сборочный чертеж
НО15.08.03.001 Крышка
НО15.08.03.002 Патрубок
НО15.09.01.000 Станина
НО15.09.02.000 Рама
НО15.09.01.000СБ Станина. Сборочный чертеж
НО15.09.01.001 Опора
НО15.09.01.003 Связь
НО15.09.02.000СБ Рама. Сборочный чертеж
НО15.09.01.002 Стойка
НО15.09.02.001 Косынка
НО15.09.02.002 Косынка
НО15.09.02.003 Балка
НО15.07.04.001 Связь
НО15.09.02.004 Стойка
НО15.09.03.001 Опора
НО15.09.03.002 Косынка
НО15.09.03.000 Станина наклонная
НО15.09.04.000 Рама привода
НО15.09.03.000СБ Станина наклонная. Сборочный чертеж
НО15.09.03.003 Балка
НО15.09.04.003 Ребро
НО15.09.04.004 Стойка
НО15.09.04.000СБ Рама привода. Сборочный чертеж
НО15.09.04.001 Косынка
НО15.09.04.006 Стойка
Разработан: Союзгипролесхоз
Утверждён:18.12.1985 Гослесхоз СССР (USSR Gosleskhoz 23)
Расположен в:Техническая документация Строительство Справочные документы Типовые строительные конструкции, изделия и узлы Общероссийский строительный каталог Промышленные предприятия, здания и сооружения Предприятия, здания и сооружения промышленности и электроэнергетики Промышленность деревообрабатывающая Здания общего назначения
Заменяет собой:
  • Типовой проект 411-2-111
Типовой проект 411-2-170.86Типовой проект 411-2-170.86Типовой проект 411-2-170.86Типовой проект 411-2-170.86Типовой проект 411-2-170.86Типовой проект 411-2-170.86Типовой проект 411-2-170.86Типовой проект 411-2-170.86Типовой проект 411-2-170.86Типовой проект 411-2-170.86Типовой проект 411-2-170.86Типовой проект 411-2-170.86Типовой проект 411-2-170.86Типовой проект 411-2-170.86Типовой проект 411-2-170.86Типовой проект 411-2-170.86Типовой проект 411-2-170.86Типовой проект 411-2-170.86Типовой проект 411-2-170.86Типовой проект 411-2-170.86Типовой проект 411-2-170.86Типовой проект 411-2-170.86Типовой проект 411-2-170.86Типовой проект 411-2-170.86Типовой проект 411-2-170.86Типовой проект 411-2-170.86Типовой проект 411-2-170.86Типовой проект 411-2-170.86Типовой проект 411-2-170.86Типовой проект 411-2-170.86Типовой проект 411-2-170.86Типовой проект 411-2-170.86Типовой проект 411-2-170.86Типовой проект 411-2-170.86Типовой проект 411-2-170.86Типовой проект 411-2-170.86Типовой проект 411-2-170.86Типовой проект 411-2-170.86Типовой проект 411-2-170.86Типовой проект 411-2-170.86Типовой проект 411-2-170.86Типовой проект 411-2-170.86Типовой проект 411-2-170.86Типовой проект 411-2-170.86Типовой проект 411-2-170.86Типовой проект 411-2-170.86Типовой проект 411-2-170.86Типовой проект 411-2-170.86Типовой проект 411-2-170.86Типовой проект 411-2-170.86Типовой проект 411-2-170.86Типовой проект 411-2-170.86Типовой проект 411-2-170.86Типовой проект 411-2-170.86Типовой проект 411-2-170.86Типовой проект 411-2-170.86Типовой проект 411-2-170.86

© 2013 Ёшкин Кот :-) Карта сайта