Информационная система
«Ёшкин Кот»

Скачать базу одним архивом
Скачать обновления
История создания базы
Карта сайта

Скачать Типовой проект Серия 97 97.89-ИЖ2.1-3. Выпуск 2. Панели внутренних стен

Дата актуализации: 10.08.2017

Типовой проект Серия 97

97.89-ИЖ2.1-3. Выпуск 2. Панели внутренних стен

Обозначение: Типовой проект Серия 97
Обозначение англ: Серия 97
Статус:не определен законодательством
Название рус.:97.89-ИЖ2.1-3. Выпуск 2. Панели внутренних стен
Дата добавления в базу:01.10.2014
Дата актуализации:05.05.2017
Дата введения:01.08.1990
Оглавление:Содержание
Техническое описание
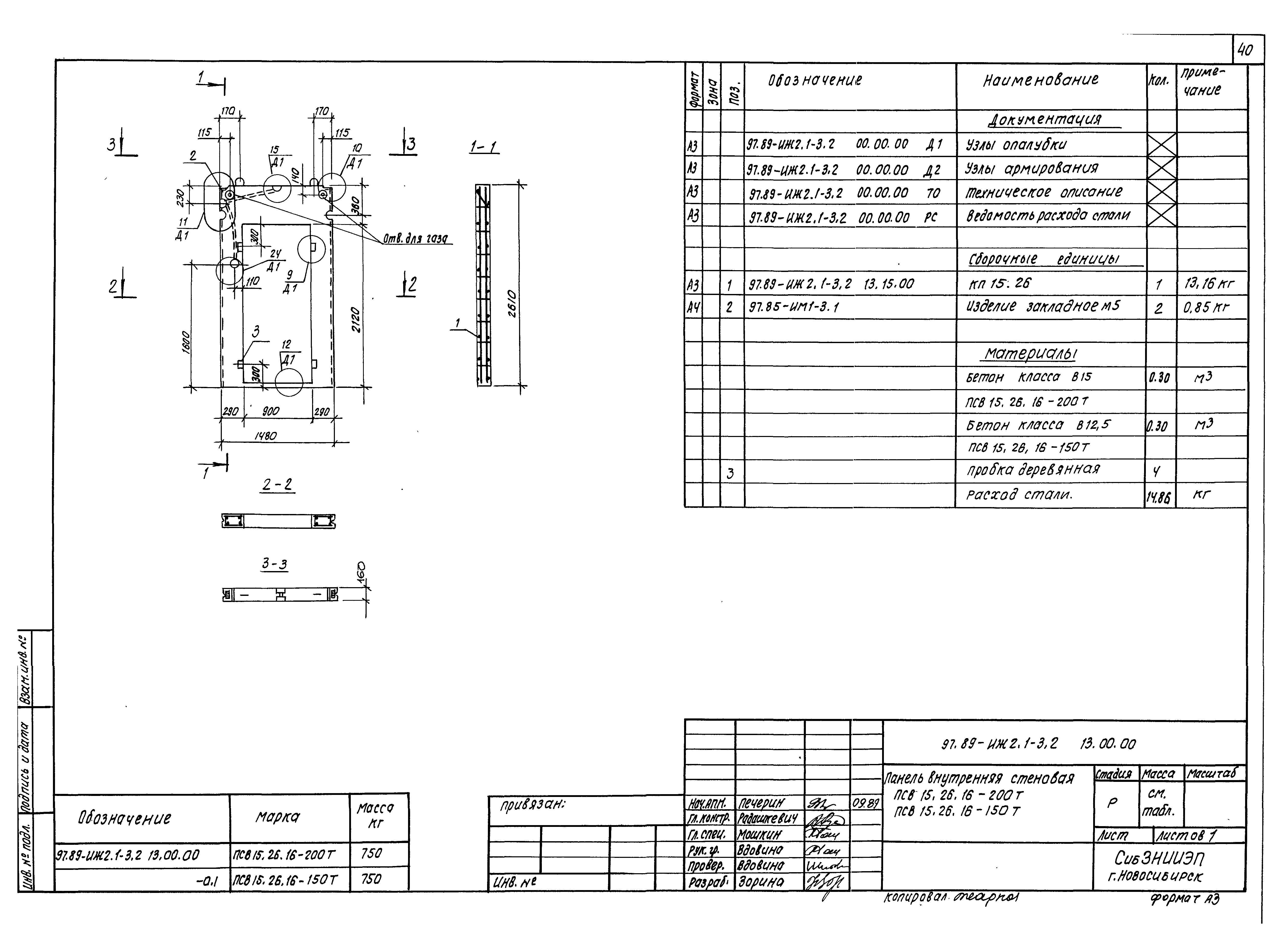
Номенклатура изделий
Панель внутренняя стеновая. Каркас пространственный
Панель внутренняя цокольная. Каркас пространственный
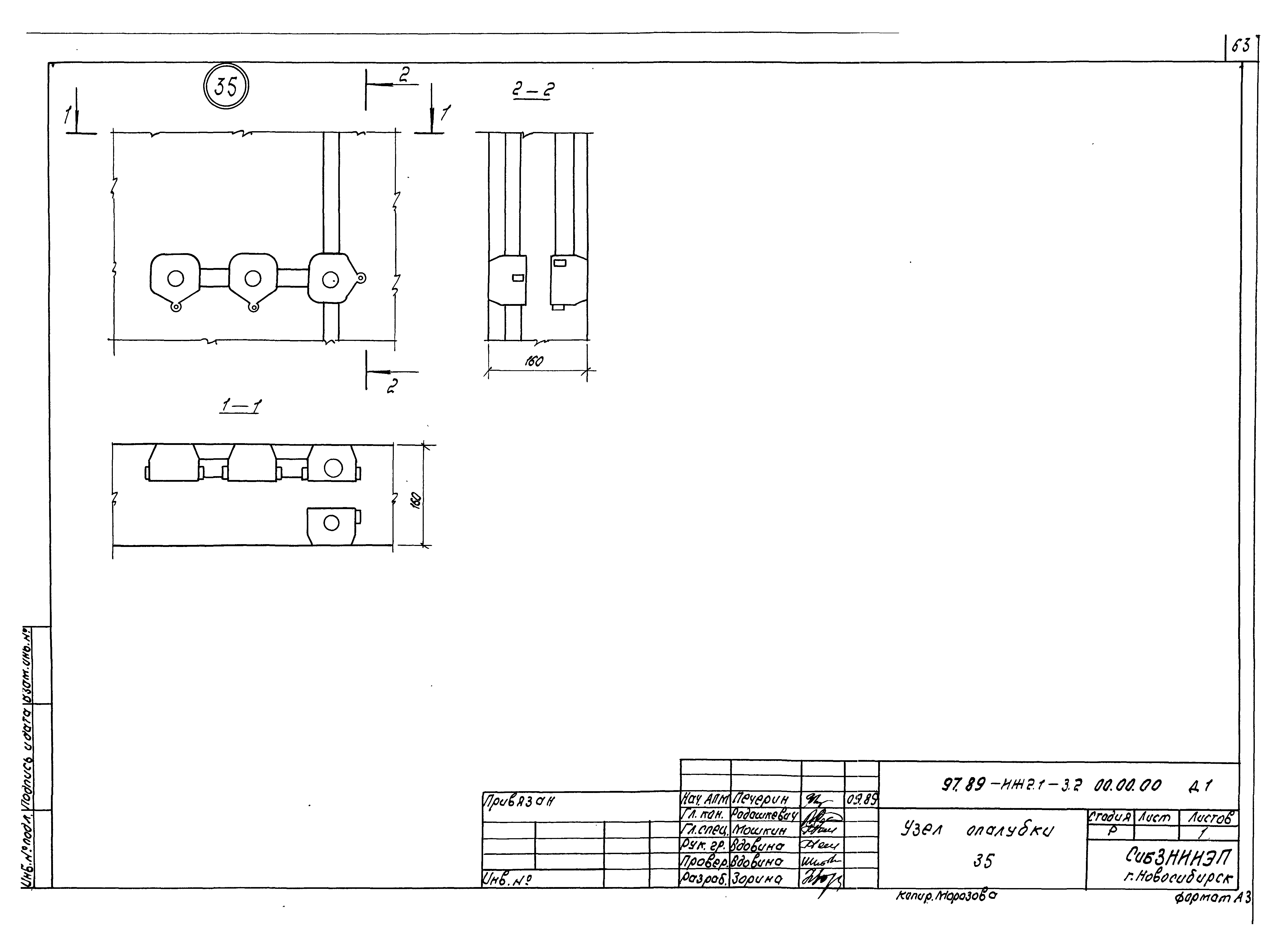
Узлы опалубки
Шпонки
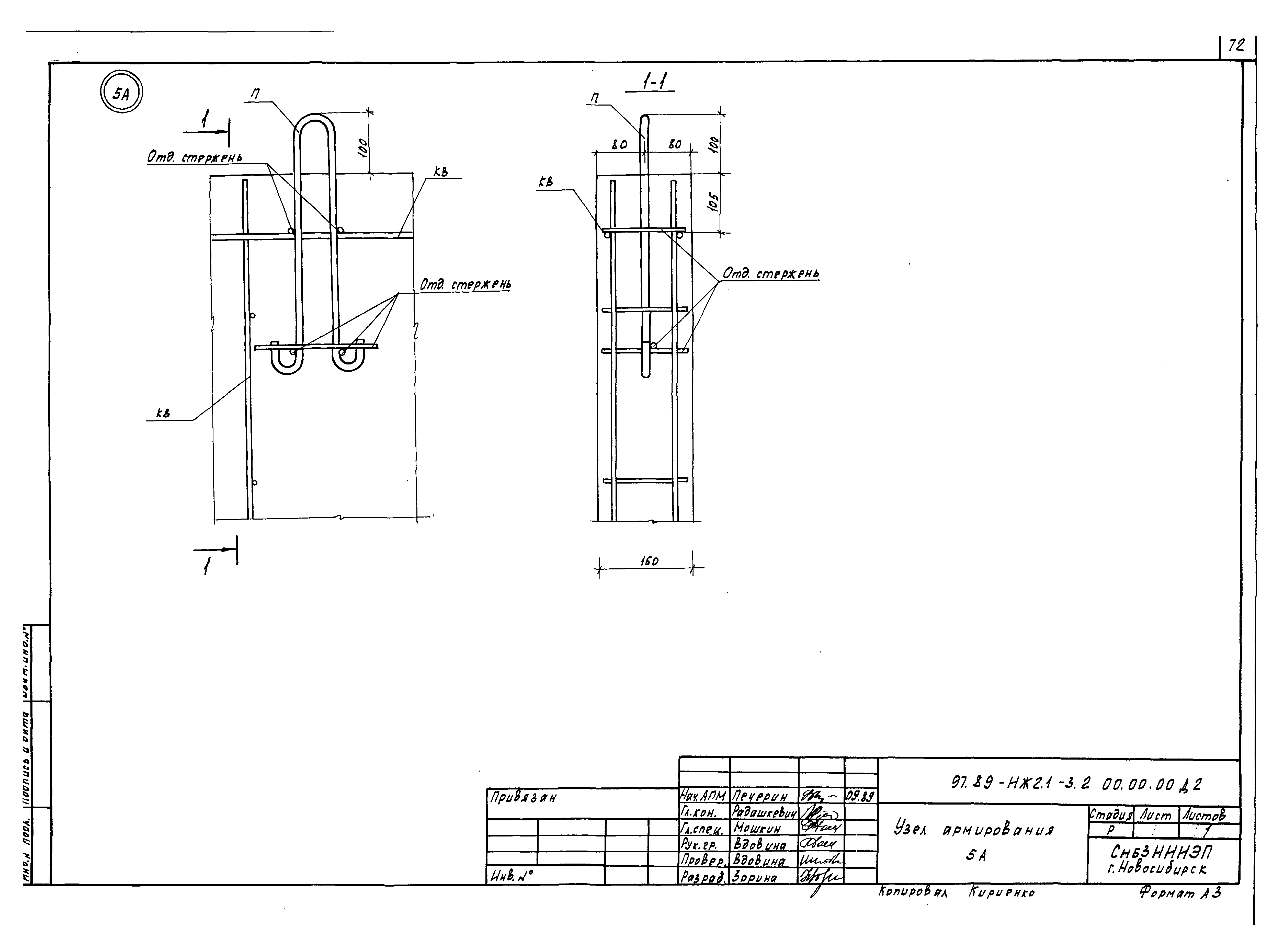
Узлы армирования
Каркасы
Стеклосетки
Трубы полиэтиленовые
Ведомость расхода стали
Разработан: СибЗНИИЭП
Утверждён:01.08.1990 СибЗНИИЭП
Принят: НИИЖБ Госстроя СССР (NIIZhB, USSR Gosstroy )
Расположен в:Техническая документация Строительство Справочные документы Типовые строительные конструкции, изделия и узлы Общероссийский строительный каталог Жилые здания для строительства в городах и поселках городского типа Обычные условия Жилые дома панельные Серия 97
Типовой проект Серия 97Типовой проект Серия 97Типовой проект Серия 97Типовой проект Серия 97Типовой проект Серия 97Типовой проект Серия 97Типовой проект Серия 97Типовой проект Серия 97Типовой проект Серия 97Типовой проект Серия 97Типовой проект Серия 97Типовой проект Серия 97Типовой проект Серия 97Типовой проект Серия 97Типовой проект Серия 97Типовой проект Серия 97Типовой проект Серия 97Типовой проект Серия 97Типовой проект Серия 97Типовой проект Серия 97Типовой проект Серия 97Типовой проект Серия 97Типовой проект Серия 97Типовой проект Серия 97Типовой проект Серия 97Типовой проект Серия 97Типовой проект Серия 97Типовой проект Серия 97Типовой проект Серия 97Типовой проект Серия 97Типовой проект Серия 97Типовой проект Серия 97Типовой проект Серия 97Типовой проект Серия 97Типовой проект Серия 97Типовой проект Серия 97Типовой проект Серия 97Типовой проект Серия 97Типовой проект Серия 97Типовой проект Серия 97Типовой проект Серия 97Типовой проект Серия 97Типовой проект Серия 97Типовой проект Серия 97Типовой проект Серия 97Типовой проект Серия 97Типовой проект Серия 97Типовой проект Серия 97Типовой проект Серия 97Типовой проект Серия 97Типовой проект Серия 97Типовой проект Серия 97Типовой проект Серия 97Типовой проект Серия 97Типовой проект Серия 97Типовой проект Серия 97Типовой проект Серия 97Типовой проект Серия 97Типовой проект Серия 97Типовой проект Серия 97Типовой проект Серия 97Типовой проект Серия 97Типовой проект Серия 97Типовой проект Серия 97Типовой проект Серия 97Типовой проект Серия 97Типовой проект Серия 97Типовой проект Серия 97Типовой проект Серия 97Типовой проект Серия 97Типовой проект Серия 97Типовой проект Серия 97Типовой проект Серия 97Типовой проект Серия 97Типовой проект Серия 97Типовой проект Серия 97Типовой проект Серия 97Типовой проект Серия 97Типовой проект Серия 97Типовой проект Серия 97Типовой проект Серия 97Типовой проект Серия 97Типовой проект Серия 97Типовой проект Серия 97Типовой проект Серия 97Типовой проект Серия 97Типовой проект Серия 97Типовой проект Серия 97Типовой проект Серия 97Типовой проект Серия 97Типовой проект Серия 97Типовой проект Серия 97Типовой проект Серия 97Типовой проект Серия 97Типовой проект Серия 97

© 2013 Ёшкин Кот :-) Карта сайта