Информационная система
«Ёшкин Кот»

Скачать базу одним архивом
Скачать обновления
История создания базы
Карта сайта

Скачать Типовой проект 3.501-30/75 Выпуск 5. Пролетное строение L = 77,0 м. Рабочие чертежи

Дата актуализации: 10.08.2017

Типовой проект 3.501-30/75

Выпуск 5. Пролетное строение L = 77,0 м. Рабочие чертежи

Обозначение: Типовой проект 3.501-30/75
Обозначение англ: 3.501-30/75
Статус:заменен
Название рус.:Выпуск 5. Пролетное строение L = 77,0 м. Рабочие чертежи
Дата добавления в базу:01.10.2014
Дата актуализации:05.05.2017
Дата введения:01.09.1988
Оглавление:Титульный лист
Состав проекта L = 77,0 м. Условные обозначения
Пояснительная записка L = 77,0 м
Паспорт пролетного строения L = 77,0 м
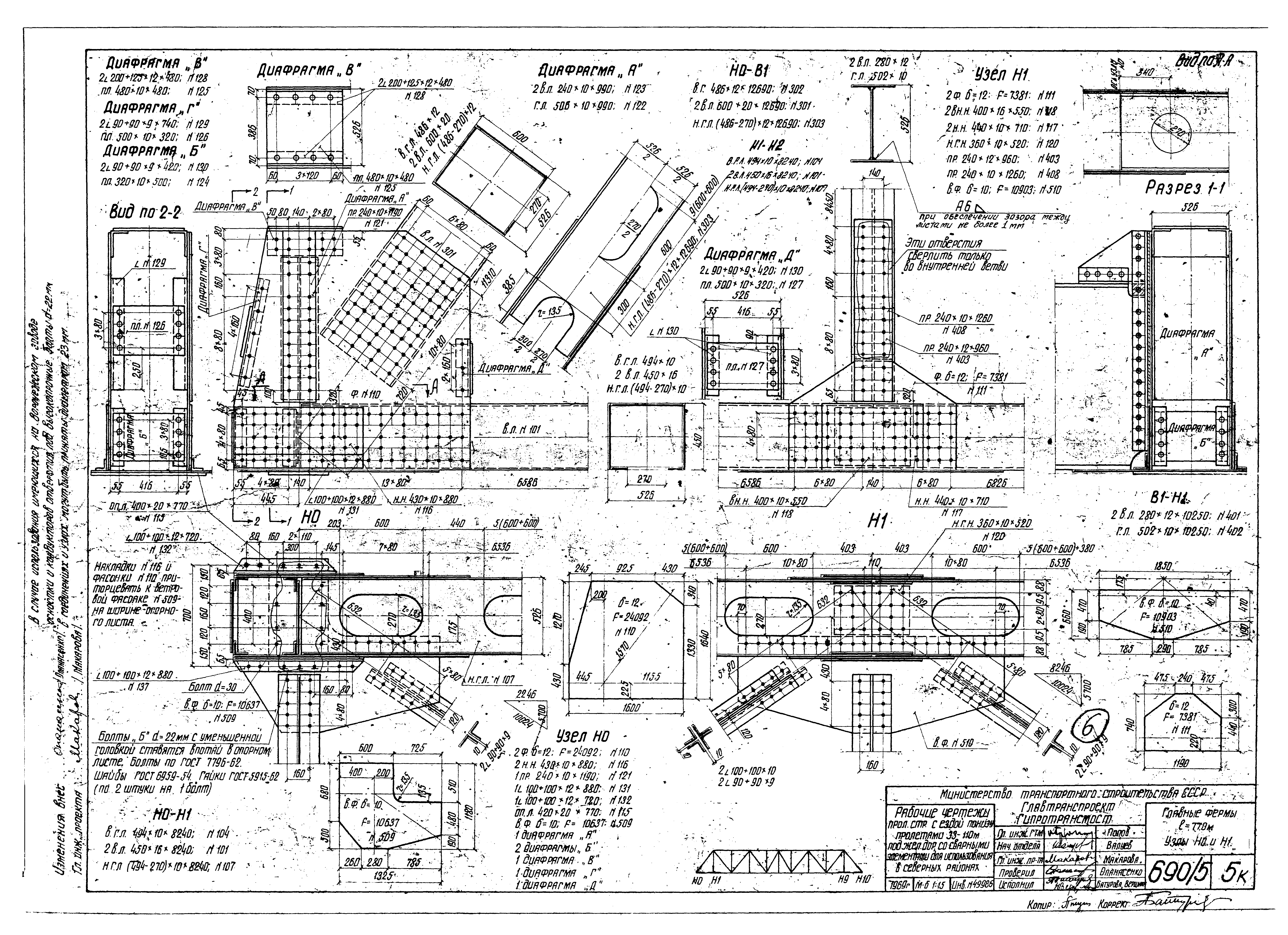
Главные фермы L = 77,0 м. Узлы Н0 и Н1
Главные фермы L = 77,0 м. Узлы Н2 и Н3
Главные фермы L = 77,0 м. Узлы Н4 и Н5
Главные фермы L = 77,0 м. Узел В1
Главные фермы L = 77,0 м. Узел В2 и поперечные связи
Главные фермы L = 77,0 м. Узел В3
Главные фермы L = 77,0 м. Узлы В4 и В5
Конструкция трубчатой распорки и портального заполнения L = 77,0 м
Конструкция продольной балки L = 77,0 м, d = 8,25 м
Конструкция продольной балки L = 77,0 м, d = 5,5 м
Конструкция поперечных балок L = 77,0 м
Конструкция диафрагмы L = 77,0 м
Конструкция нижних продольных связей L = 77,0 м
Конструкция верхних продольных связей L = 77,0 м
Конструкция мостового полотна L = 77,0 м
Конструкция мостового полотна L = 77,0 м. Детали
Конструкция плит тротуаров L = 77,0 м, d = 8,25 м
Конструкция плит тротуаров L = 77,0 м, d = 5,5 м
Конструкция плит убежищ L = 77,0 м
Технология изготовления коробчатых сечений L = 77,0 м
Спецификация металла L = 77,0 м. Пояса
Спецификация металла L = 77,0 м. Раскосы, подвески, стойки
Спецификация металла L = 77,0 м. Продольные связи главных ферм
Спецификация металла L = 77,0 м. Поперечные связи главных ферм
Спецификация металла L = 77,0 м. Балки проезжей части
Спецификация металла L = 77,0 м. Мостовое полотно
Расчетные усилия элементов главных ферм L = 77,0 м
Сечения элементов главных ферм L = 77,0 м
Стыки элементов главных ферм L = 77,0 м
Прикрепления элементов главных ферм L = 77,0 м
Расчет связей главных ферм L = 77,0 м
Прогиб. Строительный подъем L = 77,0 м
Расчет проезжей части без учета совместной работы L = 77,0 м
Пространственный расчет пролетного строения L = 77,0 м
Общий вид смотровых приспособлений L = 77,0 м
Пути катания нижней смотровой тележки L = 77,0 м
Лестница по опорному раскосу. Узел Н0
Лестница по опорному раскосу. Узел В1 и ход по верхнему поясу
Нижняя смотровая тележка. Общий вид
Нижняя смотровая тележка. Металлоконструкции
Нижняя смотровая тележка. Детали. Спецификация металла
Переносная балка для самоподъемной люльки
Самоподъемная люлька. Общий вид
Самоподъемная люлька. Монтажные элементы
Спецификация металла смотровых приспособлений для пролетных строений обычного исполнения
Разработан: Гипротрансмост
Утверждён:08.10.1969 МПС (Ministry of Railroads П-27/93)
Расположен в:Техническая документация Строительство Справочные документы Типовые строительные конструкции, изделия и узлы Общероссийский строительный каталог Строительные конструкции, изделия и узлы зданий и сооружений для всех видов строительства Конструкции и изделия сооружений и оборудования зданий Надземные сооружения Конструкции и сооружения транспорта Пролетные строения мостов, мосты и путепроводы
Чем заменён:
Типовой проект 3.501-30/75Типовой проект 3.501-30/75Типовой проект 3.501-30/75Типовой проект 3.501-30/75Типовой проект 3.501-30/75Типовой проект 3.501-30/75Типовой проект 3.501-30/75Типовой проект 3.501-30/75Типовой проект 3.501-30/75Типовой проект 3.501-30/75Типовой проект 3.501-30/75Типовой проект 3.501-30/75Типовой проект 3.501-30/75Типовой проект 3.501-30/75Типовой проект 3.501-30/75Типовой проект 3.501-30/75Типовой проект 3.501-30/75Типовой проект 3.501-30/75Типовой проект 3.501-30/75Типовой проект 3.501-30/75Типовой проект 3.501-30/75Типовой проект 3.501-30/75Типовой проект 3.501-30/75Типовой проект 3.501-30/75Типовой проект 3.501-30/75Типовой проект 3.501-30/75Типовой проект 3.501-30/75Типовой проект 3.501-30/75Типовой проект 3.501-30/75Типовой проект 3.501-30/75Типовой проект 3.501-30/75Типовой проект 3.501-30/75Типовой проект 3.501-30/75Типовой проект 3.501-30/75Типовой проект 3.501-30/75Типовой проект 3.501-30/75Типовой проект 3.501-30/75Типовой проект 3.501-30/75Типовой проект 3.501-30/75Типовой проект 3.501-30/75Типовой проект 3.501-30/75Типовой проект 3.501-30/75Типовой проект 3.501-30/75Типовой проект 3.501-30/75Типовой проект 3.501-30/75Типовой проект 3.501-30/75Типовой проект 3.501-30/75Типовой проект 3.501-30/75Типовой проект 3.501-30/75Типовой проект 3.501-30/75Типовой проект 3.501-30/75Типовой проект 3.501-30/75Типовой проект 3.501-30/75Типовой проект 3.501-30/75Типовой проект 3.501-30/75Типовой проект 3.501-30/75Типовой проект 3.501-30/75Типовой проект 3.501-30/75Типовой проект 3.501-30/75

© 2013 Ёшкин Кот :-) Карта сайта