Скачать Типовой проект 1Лг-504Д-5 Альбом 0. Чертежи нулевого цикла работ АСО. Ленточные и свайные фундаментыДата актуализации: 10.08.2017 Типовой проект 1Лг-504Д-5
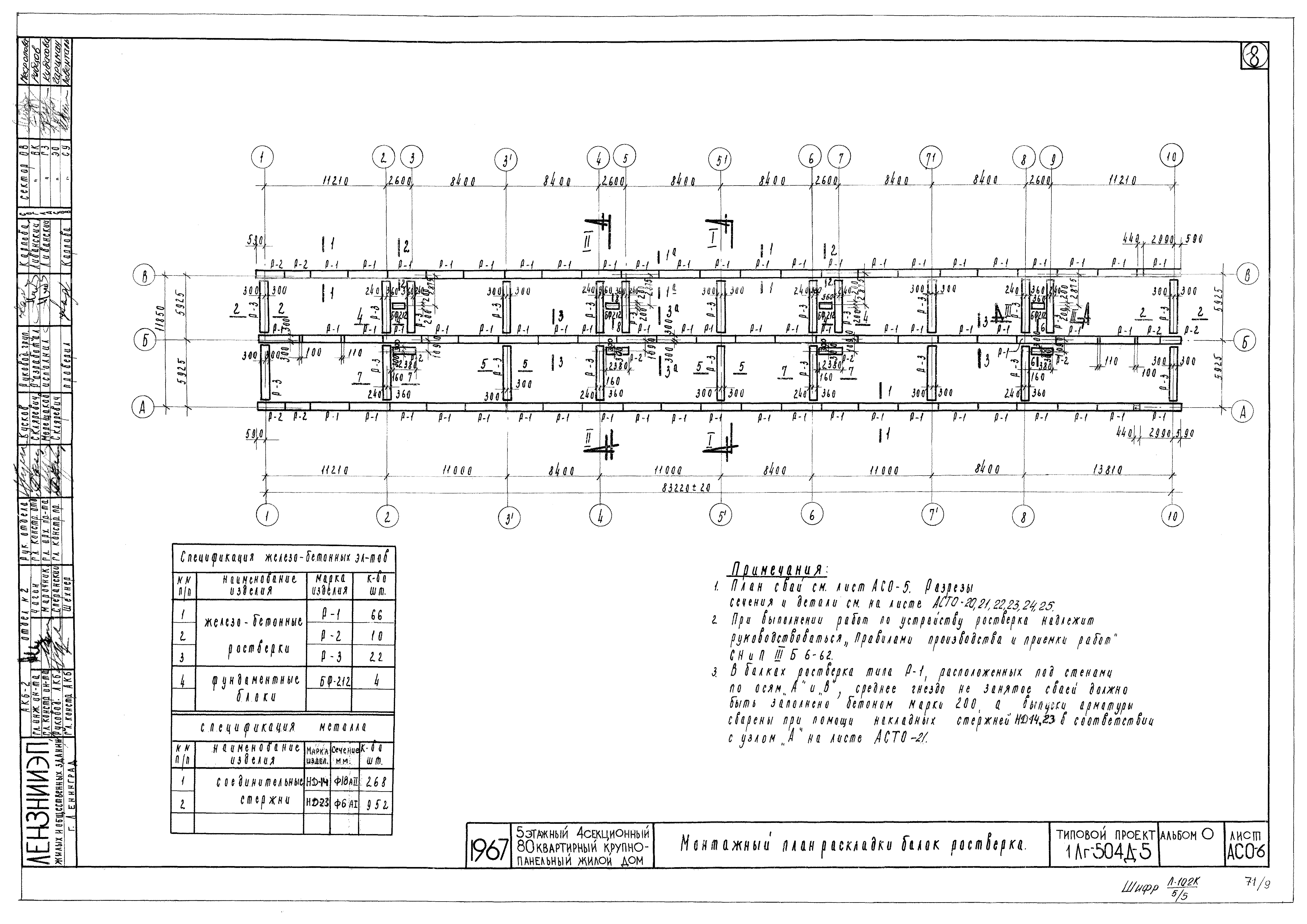
Альбом 0. Чертежи нулевого цикла работ АСО. Ленточные и свайные фундаментыОбозначение: | Типовой проект 1Лг-504Д-5 | Обозначение англ: | 1Лг-504Д-5 | Статус: | cправочные материалы, мп, тпр | Название рус.: | Альбом 0. Чертежи нулевого цикла работ АСО. Ленточные и свайные фундаменты | Дата добавления в базу: | 01.10.2014 | Дата актуализации: | 05.05.2017 | Дата введения: | 28.12.1967 | Оглавление: | Содержание альбома Монтажный чертеж стен фундаментов и план технического подполья Монтажный план перекрытия над техническим подпольем Комплектовочная ведомость сборных, бетонных, железобетонных, металлических, столярных изделий Ленточные фундаменты План ленточных фундаментов Свайные фундаменты План свай Монтажный план раскладки балок ростверков | Разработан: | ЛенЗНИИЭП
| Утверждён: | 28.12.1967 ЛенЗНИИЭП (LenZNIIEP 158)
| Издан: | ЛЕНЗНИИЭП (1967 г. )
| Расположен в: |
|
       
|