Информационная система
«Ёшкин Кот»

Скачать базу одним архивом
Скачать обновления
История создания базы
Карта сайта

Скачать Типовой проект 902-2-454.88 Альбом 2. Технология производства. Архитектурные решения. Конструкции железобетонные. Конструкции металлические. Отопление и вентиляция. Внутренний водопровод и канализация. Силовое электрооборудование. Электрическое освещение. Автоматизация. Связь и сигнализация. Организация строительства

Дата актуализации: 10.08.2017

Типовой проект 902-2-454.88

Альбом 2. Технология производства. Архитектурные решения. Конструкции железобетонные. Конструкции металлические. Отопление и вентиляция. Внутренний водопровод и канализация. Силовое электрооборудование. Электрическое освещение. Автоматизация. Связь и сигнализация. Организация строительства

Обозначение: Типовой проект 902-2-454.88
Обозначение англ: 902-2-454.88
Статус:не определен законодательством
Название рус.:Альбом 2. Технология производства. Архитектурные решения. Конструкции железобетонные. Конструкции металлические. Отопление и вентиляция. Внутренний водопровод и канализация. Силовое электрооборудование. Электрическое освещение. Автоматизация. Связь и сигнализация. Организация строительства
Дата добавления в базу:01.10.2014
Дата актуализации:05.05.2017
Дата введения:15.06.1988
Оглавление:Содержание альбома
Технологические решения
   Общие данные
   План на отм. 0.000. Разрезы 1-1; 2-2. Экспликация помещений
   Схема трубопроводов 1В3, 2В3, И16. Узел А. Экспликация оборудования
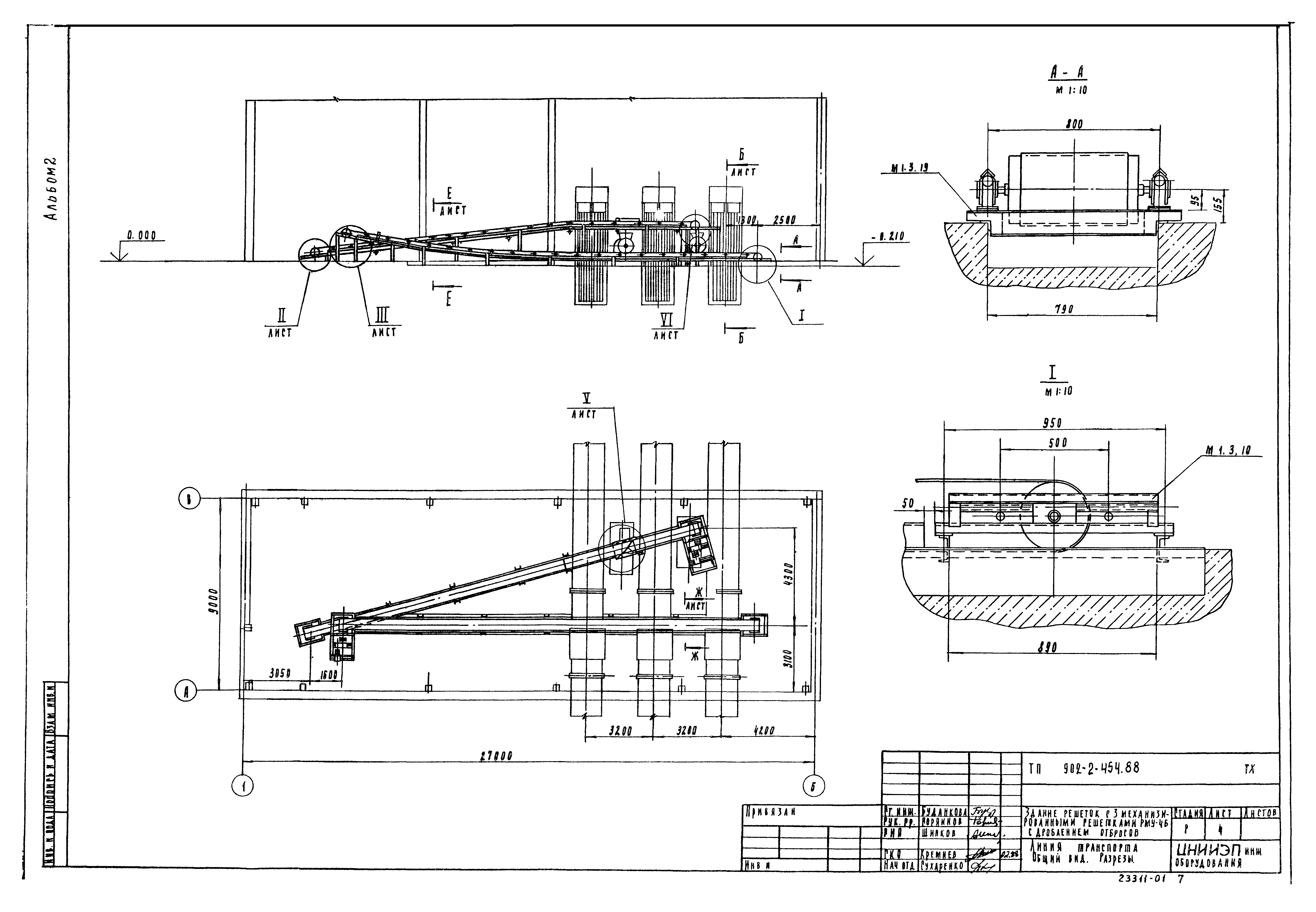
   Линия транспорта. Общий вид. Разрезы. Выносной элемент
   Линия транспорта. Разрез. Схема. Выносной элемент
   Линия транспорта. Виды. Выносной элемент
   Линия транспорта. Разрезы
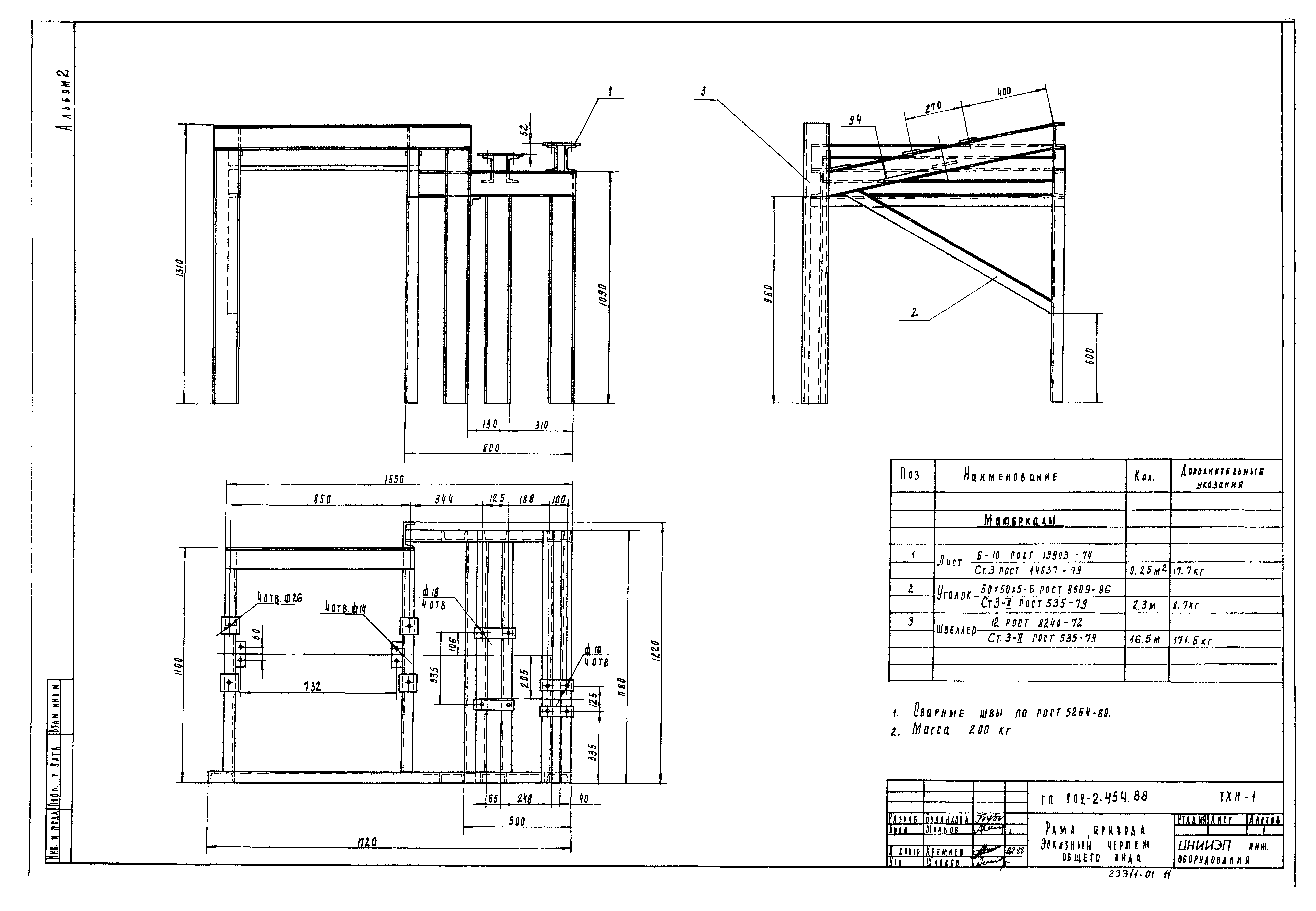
   Рама привода. Эскизный чертеж общего вида
   Рама, натяжки. Эскизный чертеж общего вида
   Течка. Эскизный чертеж общего вида
   Затвор щитовой 1500х2000. Эскизный чертеж общего вида
Архитектурные решения
   Общие данные
   Планы на отм. 0.000; 3.300
   Разрезы 1-1; 2-2. Спецификация элементов заполнения проемов. Ведомость проемов ворот и дверей. Ведомость и спецификация перемычек
   Фасады 1 - 6; 6 - 1; А - В; В - А
   Планы кровли и полов. Экспликация полов. Ведомость отделки помещений
Конструкции железобетонные
   Общие данные
   Схема расположения фундаментов и фундаментальных балок
   Фундаменты Ф1 - Ф6. Опалубочный чертеж. Армирование
   Фундаменты Ф7 - Ф8. Опалубочный чертеж. Армирование
   Схема расположения каналов и фундаментов под оборудование
   Монолитный канал КЛ1. Опалубочный чертеж. Армирование ФО1
   Схема расположения колонн и балок покрытия
   Схемы расположения плит покрытия и перекрытий. Венткамера
   Схемы расположения стеновых панелей
Конструкции металлические
   Общие данные. Ведомость металлоконструкций по видам профилей
   Техническая спецификация стали
   Схема расположения пути подвесного крана. Схема расположения лестницы и площадки на отм. 3.300
Отопление и вентиляция
   Общие данные
   Планы на отм. 0.000; 3.300
   Схема системы отопления. Схемы вентиляции П1; В1; ВЕ1. Узел управления
   Установка систем П1, В1. Схема системы теплоснабжения
   Конфузор. Переход
Внутренний водопровод и канализация
   Общие данные. Внутренний водопровод и канализация. План на отм. 0.000. Схемы В1; Т3; К1
Силовое электрооборудование
   Общие данные
   Схема электрическая принципиальная распределительной сети ~ 380/220 В
   Схема электрическая принципиальная управления дробилкой М1(М2). Схема подключения электрооборудования. Ящик ЯУ1(ЯУ2)
   Схема электрическая принципиальная управления приводом решетки М3(М4, М5)
   Схема электрическая принципиальная управления приводом конвейера М6(М7)
   Схема подключения электрооборудования. Ящик ЯУ6, 7
   Схема подключения электрооборудования. Шкаф Ш8 задвижек насосов песколовок
   Схема подключения электрооборудования. Ящик Я8 задвижек насосов песколовок
   Схема подключения электрооборудования. Ящик ЯП-1. Пускатели КМВ-1, КМН3-1
   Кабельный журнал
   Сводка кабелей и проводов, учтенных кабельным журналом
   Размещение электрооборудования и прокладка кабеля. Планы на отм. 0.000 и 3.300
   Размещение электрооборудования и прокладка кабеля. Спецификация
Электрическое освещение
   Общие данные. Электрическое освещение. Планы на отм. 0.000 и 3.300
Автоматизация
   Общие данные
   Схемы автоматизации
   Схема внешних проводок
   Размещение приборов технологического контроля и прокладка кабеля. План на отм. 0.000 и 3.300
Связь и сигнализация
   Общие данные. План на отм. 0.000 с сетями связи и сигнализации. Скелетная схема
Организация строительства
   Схема стройгенплана
   График производства работ
Разработан: ЦНИИЭП иженерного оборудования
Утверждён:15.06.1988 Госкомархитектура (171)
Издан: ЦИТП Госстроя СССР (CITP, Gosstroy (USSR) 1989 г. )
Расположен в:Техническая документация Строительство Справочные документы Типовые строительные конструкции, изделия и узлы Общероссийский строительный каталог Промышленные предприятия, здания и сооружения Здания и сооружения санитарно-технические Канализация Сооружения механической очистки Здания решеток
Заменяет собой:
Типовой проект 902-2-454.88Типовой проект 902-2-454.88Типовой проект 902-2-454.88Типовой проект 902-2-454.88Типовой проект 902-2-454.88Типовой проект 902-2-454.88Типовой проект 902-2-454.88Типовой проект 902-2-454.88Типовой проект 902-2-454.88Типовой проект 902-2-454.88Типовой проект 902-2-454.88Типовой проект 902-2-454.88Типовой проект 902-2-454.88Типовой проект 902-2-454.88Типовой проект 902-2-454.88Типовой проект 902-2-454.88Типовой проект 902-2-454.88Типовой проект 902-2-454.88Типовой проект 902-2-454.88Типовой проект 902-2-454.88Типовой проект 902-2-454.88Типовой проект 902-2-454.88Типовой проект 902-2-454.88Типовой проект 902-2-454.88Типовой проект 902-2-454.88Типовой проект 902-2-454.88Типовой проект 902-2-454.88Типовой проект 902-2-454.88Типовой проект 902-2-454.88Типовой проект 902-2-454.88Типовой проект 902-2-454.88Типовой проект 902-2-454.88Типовой проект 902-2-454.88Типовой проект 902-2-454.88Типовой проект 902-2-454.88Типовой проект 902-2-454.88Типовой проект 902-2-454.88Типовой проект 902-2-454.88Типовой проект 902-2-454.88Типовой проект 902-2-454.88Типовой проект 902-2-454.88Типовой проект 902-2-454.88Типовой проект 902-2-454.88Типовой проект 902-2-454.88Типовой проект 902-2-454.88Типовой проект 902-2-454.88Типовой проект 902-2-454.88Типовой проект 902-2-454.88Типовой проект 902-2-454.88Типовой проект 902-2-454.88Типовой проект 902-2-454.88Типовой проект 902-2-454.88Типовой проект 902-2-454.88Типовой проект 902-2-454.88Типовой проект 902-2-454.88Типовой проект 902-2-454.88Типовой проект 902-2-454.88Типовой проект 902-2-454.88Типовой проект 902-2-454.88

© 2013 Ёшкин Кот :-) Карта сайта