Информационная система
«Ёшкин Кот»

Скачать базу одним архивом
Скачать обновления
История создания базы
Карта сайта

Скачать Типовой проект 901-1-95.88 Альбом IV. Строительные изделия (надземная часть)

Дата актуализации: 10.08.2017

Типовой проект 901-1-95.88

Альбом IV. Строительные изделия (надземная часть)

Обозначение: Типовой проект 901-1-95.88
Обозначение англ: 901-1-95.88
Статус:не определен законодательством
Название рус.:Альбом IV. Строительные изделия (надземная часть)
Дата добавления в базу:01.10.2014
Дата актуализации:05.05.2017
Дата введения:05.07.1988
Оглавление:901-1-95.88-КЖИ1-ДО Ведомость листов выпуска
901-1-95.88-КЖИ1-ТТ Технические требования на изготовление сборных железобетонных арматурных и закладных изделий
901-1-95.88-КЖИ1-1К84-4-1 Колонна 1К84-4-1
901-1-95.88-КЖИ1-1К84-4-2 Колонна 1К84-4-2
901-1-95.88-КЖИ1-1К84-4-3 Колонна 1К84-4-3
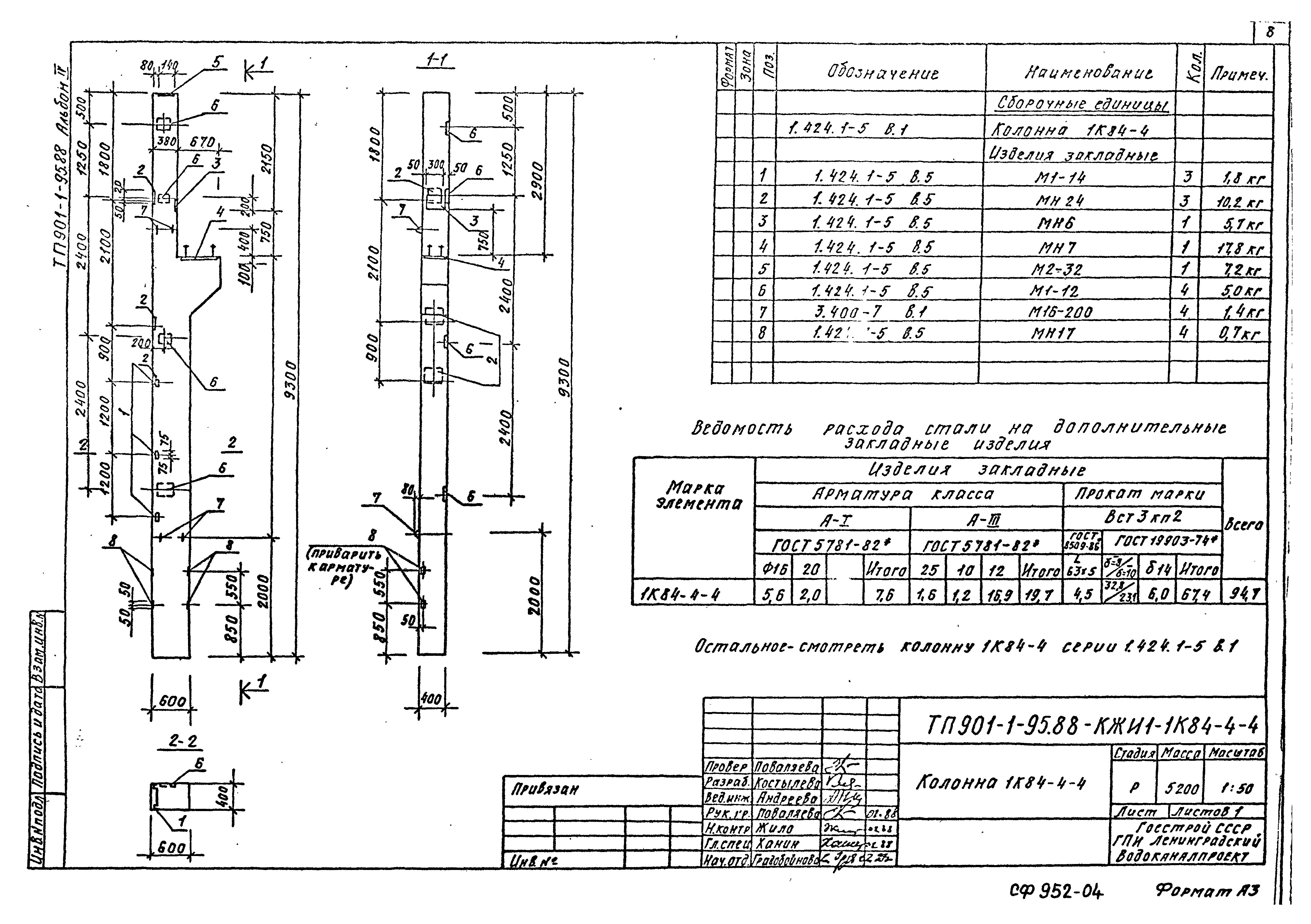
901-1-95.88-КЖИ1-1К84-4-4 Колонна 1К84-4-4
901-1-95.88-КЖИ1-1К84-4-5 Колонна 1К84-4-5
901-1-95.88-КЖИ1-1К84-4-6 Колонна 1К84-4-6
901-1-95.88-КЖИ1-1К84-4-7 Колонна 1К84-4-7
901-1-95.88-КЖИ1-1К84-4-8 Колонна 1К84-4-8
901-1-95.88-КЖИ1-7КФ97-1-1 Колонна 7КФ97-1-1
901-1-95.88-КЖИ1-7КФ97-1-2 Колонна 7КФ97-1-2
901-1-95.88-КЖИ1-1БДР12-1АIVт-1 Балка 1БДР12-1АIVт-1
901-1-95.88-КЖИ1-1БДР12-1АIVт-2 Балка 1БДР12-1АIVт-2
901-1-95.88-КЖИ1-2ПВ6-5АIVт-4-1-5ОППН-40П Плита 2ПВ6-5АIVт-4-1-5ОППН-40П
901-1-95.88-КЖИ1-2ПВ6-5АIVт-1-5ОППН-40П Плита 2ПВ6-5АIVт-1-5ОППН-40П
901-1-95.88-КЖИ1-2ПВ6-5АIVт-2-5ОППН-40П Плита 2ПВ6-5АIVт-2-5ОППН-40П
901-1-95.88-КЖИ1-2ПВ6-3АIVт-4-1-5ОППН-40П Плита 2ПВ6-3АIVт-4-1-5ОППН-40П
901-1-95.88-КЖИ1-2ПС15.12.2.0-Я.74; ПС30.12.20-6Я-75 Панели простенков 2ПС15.12.2.0-Я.74; ПС30.12.20-6Я-75
901-1-95.88-КЖИ1-П23д-3-1 Плита П23д-3-1
901-1-95.88-КЖИ1-ОП1 Опорная подушка ОП1
901-1-95.88-КЖИ1-Б1 Балка Б1
901-1-95.88-КЖИ1-С1 Сетка арматурная С1
901-1-95.88-КЖИ1-С2 Сетка арматурная С2
901-1-95.88-КЖИ1-С3 Сетка арматурная С3
901-1-95.88-КЖИ1-С4 Сетка арматурная С4
901-1-95.88-КЖИ1-С5 Сетка арматурная С5
901-1-95.88-КЖИ1-С6 Сетка арматурная С6
901-1-95.88-КЖИ1-С7 Сетка арматурная С7
901-1-95.88-КЖИ1-С8 Сетка арматурная С8
901-1-95.88-КЖИ1-С9 Сетка арматурная С9
901-1-95.88-КЖИ1-С10 Сетка арматурная С10
901-1-95.88-КЖИ1-С11 Сетка арматурная С11
901-1-95.88-КЖИ1-С12 Сетка арматурная С12
901-1-95.88-КЖИ1-С13 Сетка арматурная С13
901-1-95.88-КЖИ1-С14 Сетка арматурная С14
901-1-95.88-КЖИ1-С15 Сетка арматурная С15
901-1-95.88-КЖИ1-С16 Сетка арматурная С16
901-1-95.88-КЖИ1-С17 Сетка арматурная С17
901-1-95.88-КЖИ1-С18 Сетка арматурная С18
901-1-95.88-КЖИ1-С19 Сетка арматурная С19
901-1-95.88-КЖИ1-С20 Сетка арматурная С20
901-1-95.88-КЖИ1-С21 Сетка арматурная С21
901-1-95.88-КЖИ1-С22 Сетка арматурная С22
901-1-95.88-КЖИ1-С23 Сетка арматурная С23
901-1-95.88-КЖИ1-С24 Сетка арматурная С24
901-1-95.88-КЖИ1-С25 Сетка арматурная С25
901-1-95.88-КЖИ1-С26 Сетка арматурная С26
901-1-95.88-КЖИ1-С27 Сетка арматурная С27
901-1-95.88-КЖИ1-С28 Сетка арматурная С28
901-1-95.88-КЖИ1-С29 Сетка арматурная С29
901-1-95.88-КЖИ1-С30 Сетка арматурная С30
901-1-95.88-КЖИ1-С31 Сетка арматурная С31
901-1-95.88-КЖИ1-Узлы А, Б, В, Г, Д Узлы А, Б, В, Г, Д
901-1-95.88-КЖИ1-МС1 Изделие соединительное МС1
901-1-95.88-КЖИ1-К1 Крюк К1
901-1-95.88-КЖИ1-РШ1 Решетка РШ1
901-1-95.88-КЖИ1-РШ2 Решетка РШ2
901-1-95.88-КЖИ1-РШ3 Решетка РШ3
901-1-95.88-КЖИ1-М1 Изделие закладное М1
901-1-95.88-КЖИ1-М2 Изделие закладное М2
901-1-95.88-КЖИ1-М3 Изделие закладное М3
901-1-95.88-КЖИ1-М4 Изделие закладное М4
901-1-95.88-КЖИ1-М5 Изделие закладное М5
901-1-95.88-КЖИ1-М6 Изделие закладное М6
901-1-95.88-КЖИ1-М7 Изделие закладное М7
901-1-95.88-КЖИ1-ЩП1 Щит ЩП1
901-1-95.88-КЖИ1-ЩП2 Щит ЩП2
901-1-95.88-КЖИ1-ЩП3 Щит ЩП3
901-1-95.88-КЖИ1-ЩП4 Щит ЩП4
901-1-95.88-КЖИ1-ЩП5 Щит ЩП5
901-1-95.88-КЖИ1-ЩП6 Щит ЩП6
901-1-95.88-КЖИ1-ЩП7 Щит ЩП7
901-1-95.88-КЖИ1-ЩП8 Щит ЩП8
901-1-95.88-КЖИ1-ЩП9 Щит ЩП9
901-1-95.88-КЖИ1-ЩП10 Щит ЩП10
901-1-95.88-КЖИ1-ЩП11 Щит ЩП11
901-1-95.88-КЖИ1-ЩП12 Щит ЩП12
901-1-95.88-КЖИ1-ЩП13 Щит ЩП13
901-1-95.88-КЖИ1-ЩП14 Щит ЩП14
Разработан: Ленинградский Водоканалпроект
Утверждён:06.04.1988 Госстрой СССР (Государственный комитет Совета Министров СССР по делам строительства) (USSR Gosstroy 25)
Издан: ЦИТП Госстроя СССР (CITP, Gosstroy (USSR) 1988 г. )
Расположен в:Техническая документация Строительство Справочные документы Типовые строительные конструкции, изделия и узлы Общероссийский строительный каталог Промышленные предприятия, здания и сооружения Здания и сооружения санитарно-технические Водоснабжение Водозаборные сооружения
Типовой проект 901-1-95.88Типовой проект 901-1-95.88Типовой проект 901-1-95.88Типовой проект 901-1-95.88Типовой проект 901-1-95.88Типовой проект 901-1-95.88Типовой проект 901-1-95.88Типовой проект 901-1-95.88Типовой проект 901-1-95.88Типовой проект 901-1-95.88Типовой проект 901-1-95.88Типовой проект 901-1-95.88Типовой проект 901-1-95.88Типовой проект 901-1-95.88Типовой проект 901-1-95.88Типовой проект 901-1-95.88Типовой проект 901-1-95.88Типовой проект 901-1-95.88Типовой проект 901-1-95.88Типовой проект 901-1-95.88Типовой проект 901-1-95.88Типовой проект 901-1-95.88Типовой проект 901-1-95.88Типовой проект 901-1-95.88Типовой проект 901-1-95.88Типовой проект 901-1-95.88Типовой проект 901-1-95.88Типовой проект 901-1-95.88Типовой проект 901-1-95.88Типовой проект 901-1-95.88Типовой проект 901-1-95.88Типовой проект 901-1-95.88Типовой проект 901-1-95.88Типовой проект 901-1-95.88Типовой проект 901-1-95.88Типовой проект 901-1-95.88Типовой проект 901-1-95.88Типовой проект 901-1-95.88Типовой проект 901-1-95.88Типовой проект 901-1-95.88Типовой проект 901-1-95.88Типовой проект 901-1-95.88Типовой проект 901-1-95.88Типовой проект 901-1-95.88Типовой проект 901-1-95.88Типовой проект 901-1-95.88Типовой проект 901-1-95.88Типовой проект 901-1-95.88Типовой проект 901-1-95.88Типовой проект 901-1-95.88Типовой проект 901-1-95.88Типовой проект 901-1-95.88

© 2013 Ёшкин Кот :-) Карта сайта