Информационная система
«Ёшкин Кот»

Скачать базу одним архивом
Скачать обновления
История создания базы
Карта сайта

Скачать Типовой проект 708-76.93 Альбом 12. Эскизные чертежи общих видов нетиповых конструкций (из ТП 708-75.93)

Дата актуализации: 10.08.2017

Типовой проект 708-76.93

Альбом 12. Эскизные чертежи общих видов нетиповых конструкций (из ТП 708-75.93)

Обозначение: Типовой проект 708-76.93
Обозначение англ: 708-76.93
Статус:не определен законодательством
Название рус.:Альбом 12. Эскизные чертежи общих видов нетиповых конструкций (из ТП 708-75.93)
Дата добавления в базу:01.10.2014
Дата актуализации:05.05.2017
Дата введения:06.12.1993
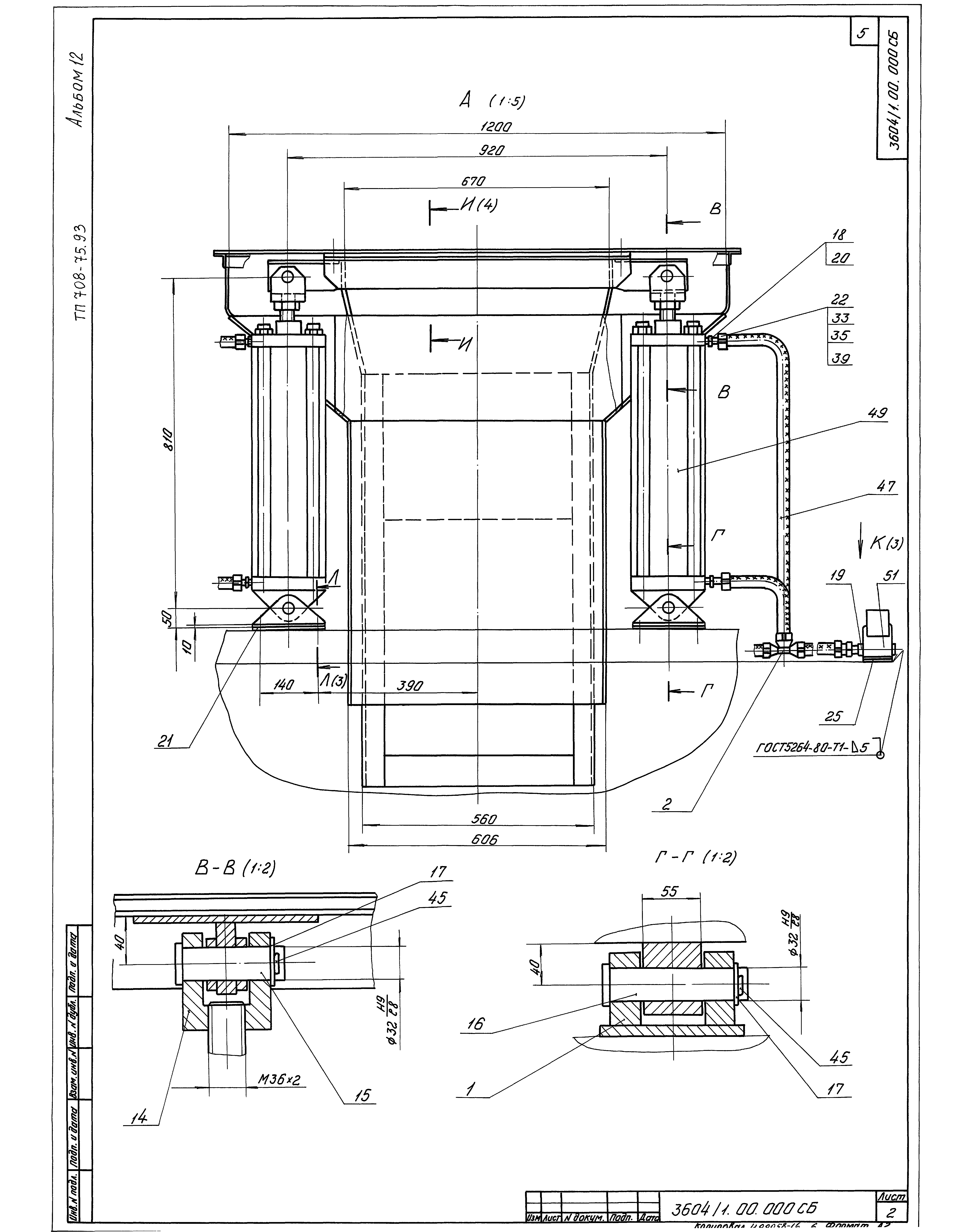
Оглавление:3604/1.00.000 Рукав приемный
3604/1.00.000СБ Рукав приемный
3604/2.00.000 Затвор шиберный ручной
3604/2.01.000 Затвор
3604/2.00.010 Цепь
3604/2.00.000СБ Затвор шиберный ручной
3604/3.00.000 Переключатель цементопроводов
3604/3.00.000ВО Переключатель цементопроводов
3604/4.00.000 Переключатель цементопроводов
3604/4.00.000ВО Переключатель цементопроводов
3604/5.00.000 Осадитель цемента
3604/5.00.100 Осадитель
3604/5.00.002 Прокладка
3604/5.00.004 Прокладка
3604/5.00.000СБ Осадитель цемента
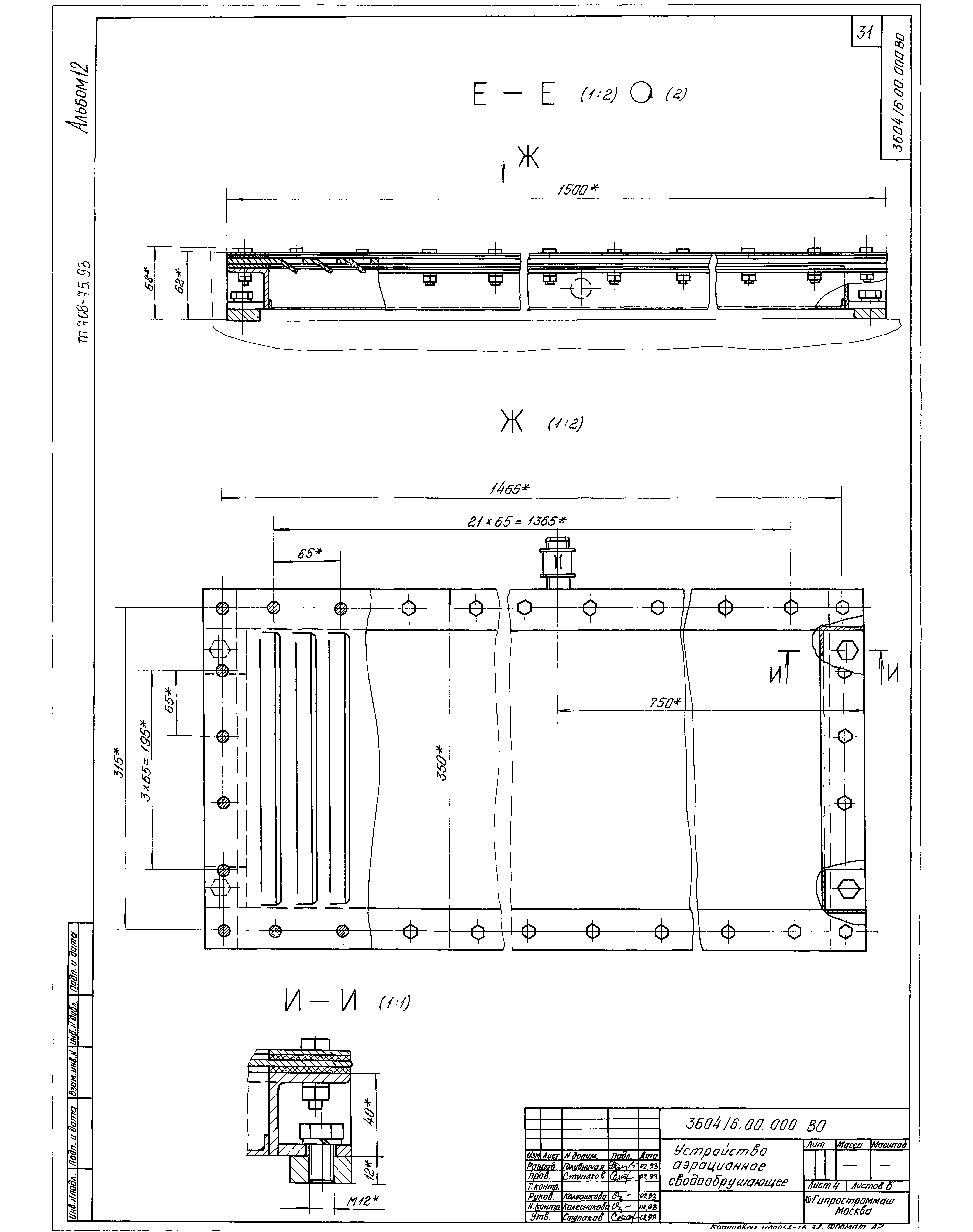
3604/6.00.000 Устройство аэрационное сводообрушающее
3604/6.00.000ВО Устройство аэрационное сводообрушающее
3604/7.00.000 Переключатель двухходовой
3604/7.00.000ВО Переключатель двухходовой
Разработан: Гипростроммаш
Проектный институт №2
Утверждён:30.11.1993 Главпроект Госстроя России (9-3-1/254)
Расположен в:Техническая документация Строительство Справочные документы Типовые строительные конструкции, изделия и узлы Общероссийский строительный каталог Промышленные предприятия, здания и сооружения Предприятия, здания и сооружения складские Склады строительных материалов и изделий
Типовой проект 708-76.93Типовой проект 708-76.93Типовой проект 708-76.93Типовой проект 708-76.93Типовой проект 708-76.93Типовой проект 708-76.93Типовой проект 708-76.93Типовой проект 708-76.93Типовой проект 708-76.93Типовой проект 708-76.93Типовой проект 708-76.93Типовой проект 708-76.93Типовой проект 708-76.93Типовой проект 708-76.93Типовой проект 708-76.93Типовой проект 708-76.93Типовой проект 708-76.93Типовой проект 708-76.93Типовой проект 708-76.93Типовой проект 708-76.93Типовой проект 708-76.93Типовой проект 708-76.93Типовой проект 708-76.93Типовой проект 708-76.93Типовой проект 708-76.93Типовой проект 708-76.93Типовой проект 708-76.93Типовой проект 708-76.93Типовой проект 708-76.93Типовой проект 708-76.93Типовой проект 708-76.93Типовой проект 708-76.93Типовой проект 708-76.93Типовой проект 708-76.93Типовой проект 708-76.93Типовой проект 708-76.93Типовой проект 708-76.93Типовой проект 708-76.93Типовой проект 708-76.93

© 2013 Ёшкин Кот :-) Карта сайта