Информационная система
«Ёшкин Кот»

Скачать базу одним архивом
Скачать обновления
История создания базы
Карта сайта

Скачать Типовой проект 416-7-326.90 Альбом 2. Отопление и вентиляция. Внутренние водопровод и канализация. Силовое электрооборудование. Электрическое освещение. Связь и сигнализация. Автоматизация санитарно-технических систем

Дата актуализации: 10.08.2017

Типовой проект 416-7-326.90

Альбом 2. Отопление и вентиляция. Внутренние водопровод и канализация. Силовое электрооборудование. Электрическое освещение. Связь и сигнализация. Автоматизация санитарно-технических систем

Обозначение: Типовой проект 416-7-326.90
Обозначение англ: 416-7-326.90
Статус:не определен законодательством
Название рус.:Альбом 2. Отопление и вентиляция. Внутренние водопровод и канализация. Силовое электрооборудование. Электрическое освещение. Связь и сигнализация. Автоматизация санитарно-технических систем
Дата добавления в базу:01.10.2014
Дата актуализации:05.05.2017
Дата введения:24.05.1990
Оглавление:Содержание
Отопление и вентиляция
   Общие данные
   План на отм. 0.000
   План на отм. 3.300
   Схема системы отопления
   Схемы систем П1, П2, В1, В2, ВЕ1 - ВЕ5
   Схема систем теплоснабжения установок П1, П2. Узел управления
   Установки систем П1, П2, В1, В2, ВЕ1
Нестандартизированное оборудование
   Содержание, зонт прямоугольный, переходы к АПР
Внутренний водопровод и канализация
   Общие данные
   План на отм. 0.000 с сечениями систем В1, Т3, К1, К2
   План на отм. 3.300 с сечениями систем В1, Т3, К1, К2
   Схемы систем В1, Т3, К1, К2
Силовое электрооборудование
   Общие данные
   План расположения 1 этажа. Элемент плана расположения 2 этажа
   Схема электрическая принципиальная распределительной сети ШР-1
   Схема электрическая принципиальная распределительной и питающей сети ШР-2, ВРУ-1
   Задание МЭЗ
   Опросный лист на ВРУ-1-26-66 УХЛ4
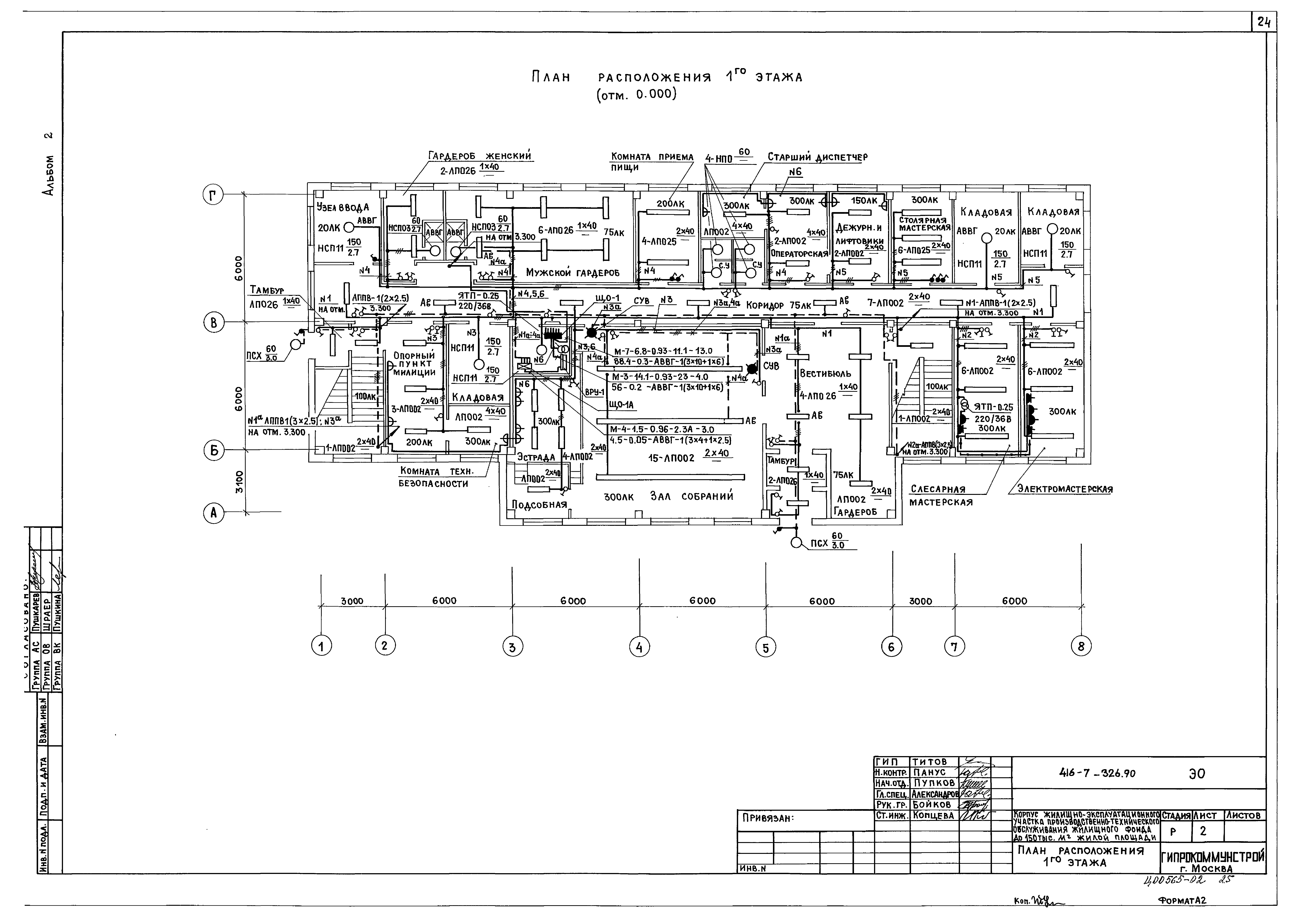
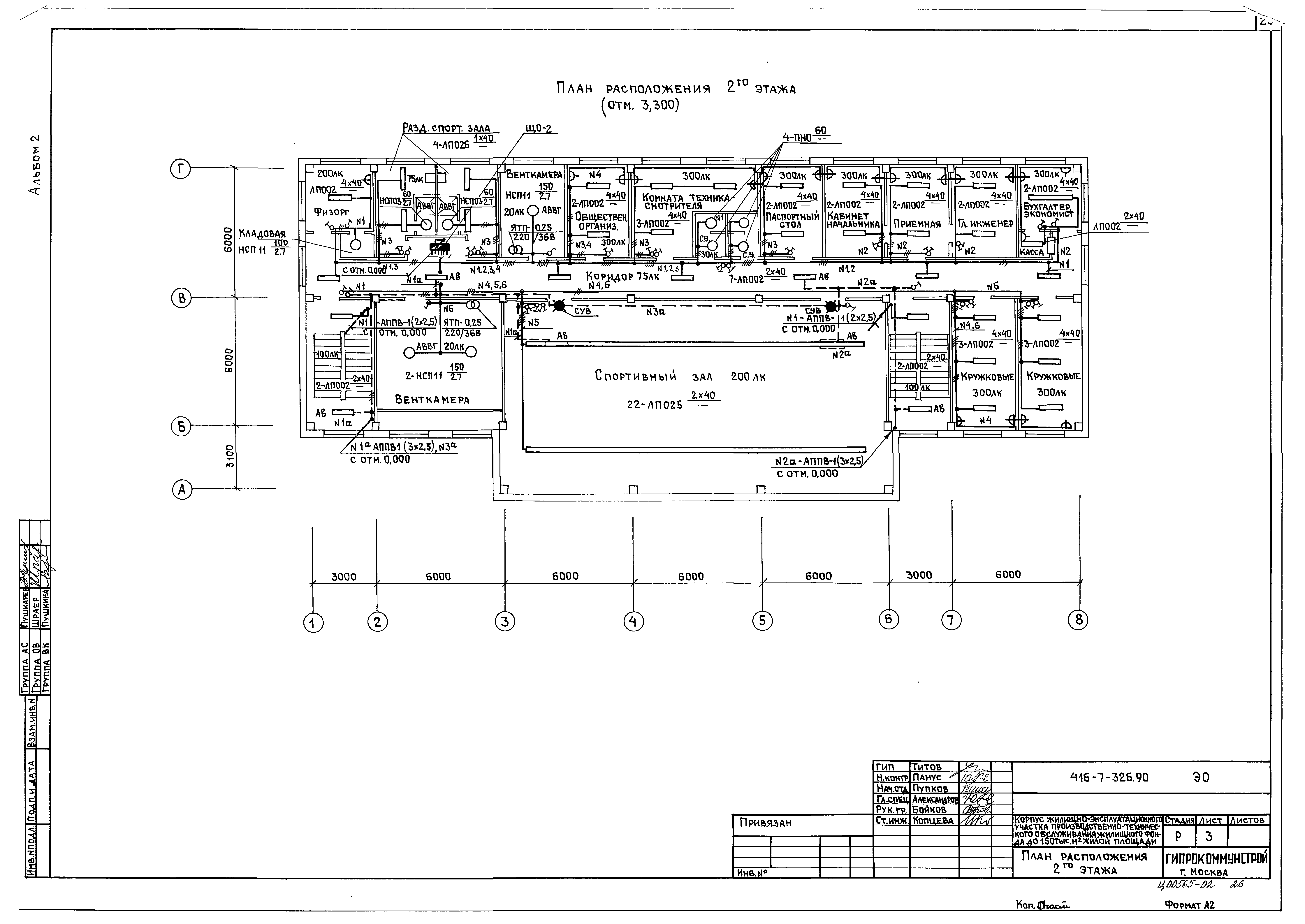
Электрическое освещение
   Общие данные
   План расположения 1 этажа
   План расположения 2 этажа
Связь и сигнализация
   Общие данные
   План расположения сетей связи на 1 этаже
   План расположения сетей связи на 2 этаже
   План расположения сети пожарной сигнализации на 1 этаже
   План расположения сети пожарной сигнализации на 2 этаже
Автоматизация санитарно-технических систем
   Общие данные
   Приточная система П1(П2). Схема автоматизации
   Приточная система П1(П2). Схема электрическая принципиальная управления
   Приточная система П1(П2). Схема электрическая принципиальная регулирования
   Приточная система П1(П2). Схема соединений внешних проводок
   Отключение вентсистем при пожаре. Схемы электрическая принципиальная и соединений внешних проводок
   План расположения
   Щит автоматизации П1(П2). Эскиз общего вида
   Щит сигнализации. Эскиз общего вида
Разработан: Гипрокоммунстрой
Утверждён:24.05.1990 Минжилкомхоз РСФСР (Russian Federation Minzhilkomkhoz 102)
Расположен в:Техническая документация Строительство Справочные документы Типовые строительные конструкции, изделия и узлы Общероссийский строительный каталог Промышленные предприятия, здания и сооружения Предприятия, здания и сооружения промышленности и электроэнергетики Ремонтные предприятия. Административно-бытовые, производственные и вспомогательные здания и сооружения промышленных предприятий Ремонтные предприятия, производственные и вспомогательные здания и сооружения
Типовой проект 416-7-326.90Типовой проект 416-7-326.90Типовой проект 416-7-326.90Типовой проект 416-7-326.90Типовой проект 416-7-326.90Типовой проект 416-7-326.90Типовой проект 416-7-326.90Типовой проект 416-7-326.90Типовой проект 416-7-326.90Типовой проект 416-7-326.90Типовой проект 416-7-326.90Типовой проект 416-7-326.90Типовой проект 416-7-326.90Типовой проект 416-7-326.90Типовой проект 416-7-326.90Типовой проект 416-7-326.90Типовой проект 416-7-326.90Типовой проект 416-7-326.90Типовой проект 416-7-326.90Типовой проект 416-7-326.90Типовой проект 416-7-326.90Типовой проект 416-7-326.90Типовой проект 416-7-326.90Типовой проект 416-7-326.90Типовой проект 416-7-326.90Типовой проект 416-7-326.90Типовой проект 416-7-326.90Типовой проект 416-7-326.90Типовой проект 416-7-326.90Типовой проект 416-7-326.90Типовой проект 416-7-326.90Типовой проект 416-7-326.90Типовой проект 416-7-326.90Типовой проект 416-7-326.90Типовой проект 416-7-326.90Типовой проект 416-7-326.90Типовой проект 416-7-326.90Типовой проект 416-7-326.90Типовой проект 416-7-326.90

© 2013 Ёшкин Кот :-) Карта сайта