Информационная система
«Ёшкин Кот»

Скачать базу одним архивом
Скачать обновления
История создания базы
Карта сайта

Скачать Типовой проект 416-7-326.90 Альбом 1. Пояснительная записка. Архитектурные решения. Конструкции железобетонные

Дата актуализации: 10.08.2017

Типовой проект 416-7-326.90

Альбом 1. Пояснительная записка. Архитектурные решения. Конструкции железобетонные

Обозначение: Типовой проект 416-7-326.90
Обозначение англ: 416-7-326.90
Статус:не определен законодательством
Название рус.:Альбом 1. Пояснительная записка. Архитектурные решения. Конструкции железобетонные
Дата добавления в базу:01.10.2014
Дата актуализации:05.05.2017
Дата введения:24.05.1990
Оглавление:Пояснительная записка
Архитектурные решения
   Общие данные
   План 1 этажа
   План 2 этажа. Деталь 1, 2
   Разрезы 1-1, 2-2
   Фасады 1 - 8; 8 - 1
   Фасады Г - А; А - Г. Схема заполнения оконных проемов. Спецификация сборных элементов
   План кровли вентшахты 1 - 5. Кассовое окно КО1, сечение 1-1, 2-2, узел 1. Спецификация на кассовое окно
   План 1 этажа с гипсобетонными перегородками. План полов. Спецификация гипсобетонных перегородок
   План 2 этажа с гипсобетонными перегородками. План полов. Ведомость перемычек и спецификация перемычек
   Ведомость отделки помещений. Экспликация полов
   План эстрады. Разрезы 1-1, 2-2, 3-3. Фасад. Узел 1. Сечение А-А. Спецификация на эстраду
   Поэтажные планы с расстановки технологического оборудования и привязкой подводов коммуникаций
Конструкции железобетонные
   Общие данные
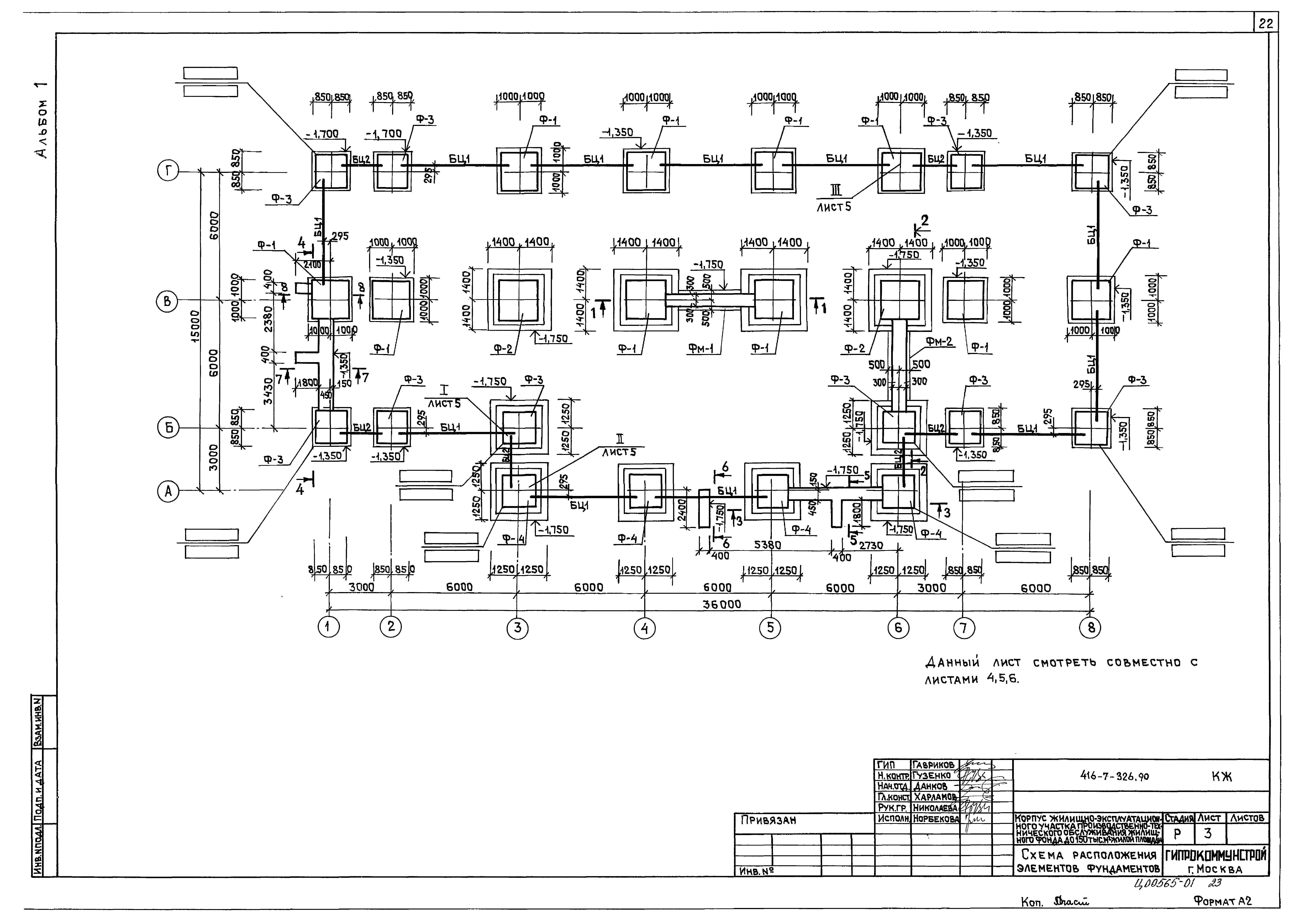
   Схема расположения элементов фундаментов
   Спецификация к схеме фундаментов. Нагрузки на фундаменты
   Элементы плана I - III
   Сечения фундаментов 1-1 - 8-8
   Монолитные фундаменты Фм1, Фм2
   Схема расположения элементов каркаса 1 этажа
   Схема расположения элементов каркаса 2 этажа
   Схема расположения элементов каркаса спортзала. Сечение 4-4
   Сечения 1-1, 2-2, 3-3
   Схемы расположения элементов лестниц в осях "1 - 2" и "6 - 7". Спецификация
   Схема расположения элементов перекрытия над 1 этажом
   Схема расположения элементов покрытия над 2 этажом
   Схема расположения элементов покрытия спортзала
   Сечения 1-1 - 7-7. Монолитный участок Му-1
   Схемы расположения стеновых панелей по осям "А" и "Б"
   Схемы расположения стеновых панелей по осям "В" и "Г"
   Схемы расположения стеновых панелей по осям "1", "3", "Б" и "В"
   Спецификация к схемам расположения стеновых панелей
   Схема расположения элементов подземного хозяйства
   Схемы расположения приямков ПР-1 и ПР-2. Сечение а-а
Разработан: Гипрокоммунстрой
Утверждён:24.05.1990 Минжилкомхоз РСФСР (Russian Federation Minzhilkomkhoz 102)
Расположен в:Техническая документация Строительство Справочные документы Типовые строительные конструкции, изделия и узлы Общероссийский строительный каталог Промышленные предприятия, здания и сооружения Предприятия, здания и сооружения промышленности и электроэнергетики Ремонтные предприятия. Административно-бытовые, производственные и вспомогательные здания и сооружения промышленных предприятий Ремонтные предприятия, производственные и вспомогательные здания и сооружения
Типовой проект 416-7-326.90Типовой проект 416-7-326.90Типовой проект 416-7-326.90Типовой проект 416-7-326.90Типовой проект 416-7-326.90Типовой проект 416-7-326.90Типовой проект 416-7-326.90Типовой проект 416-7-326.90Типовой проект 416-7-326.90Типовой проект 416-7-326.90Типовой проект 416-7-326.90Типовой проект 416-7-326.90Типовой проект 416-7-326.90Типовой проект 416-7-326.90Типовой проект 416-7-326.90Типовой проект 416-7-326.90Типовой проект 416-7-326.90Типовой проект 416-7-326.90Типовой проект 416-7-326.90Типовой проект 416-7-326.90Типовой проект 416-7-326.90Типовой проект 416-7-326.90Типовой проект 416-7-326.90Типовой проект 416-7-326.90Типовой проект 416-7-326.90Типовой проект 416-7-326.90Типовой проект 416-7-326.90Типовой проект 416-7-326.90Типовой проект 416-7-326.90Типовой проект 416-7-326.90Типовой проект 416-7-326.90Типовой проект 416-7-326.90Типовой проект 416-7-326.90Типовой проект 416-7-326.90Типовой проект 416-7-326.90Типовой проект 416-7-326.90Типовой проект 416-7-326.90Типовой проект 416-7-326.90Типовой проект 416-7-326.90Типовой проект 416-7-326.90Типовой проект 416-7-326.90Типовой проект 416-7-326.90

© 2013 Ёшкин Кот :-) Карта сайта