Скачать Типовой проект 294-6-10 Альбом II. Санитарно-технические чертежи, электрооборудование, автоматика, слаботочные устройстваДата актуализации: 10.08.2017 Типовой проект 294-6-10
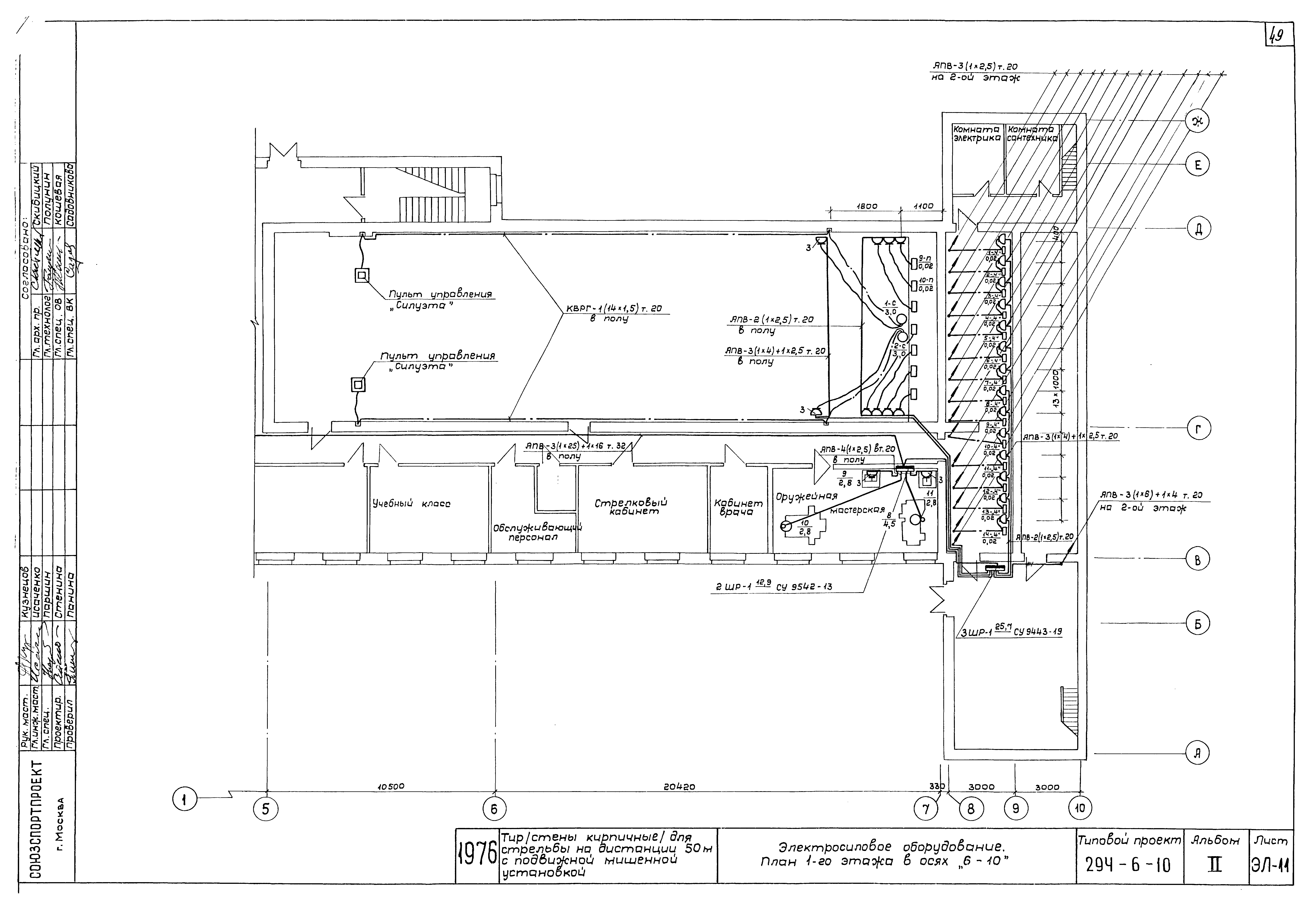
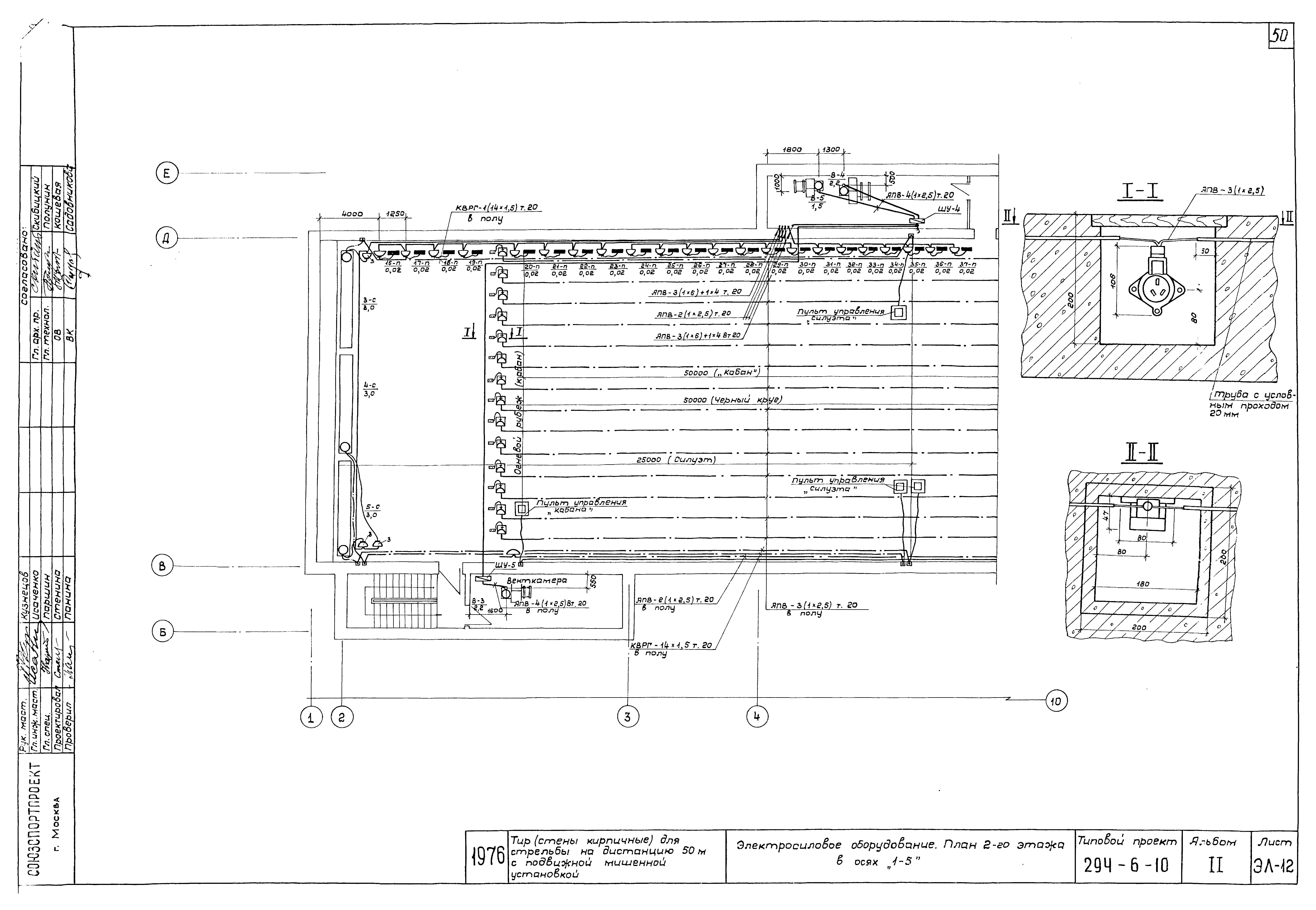
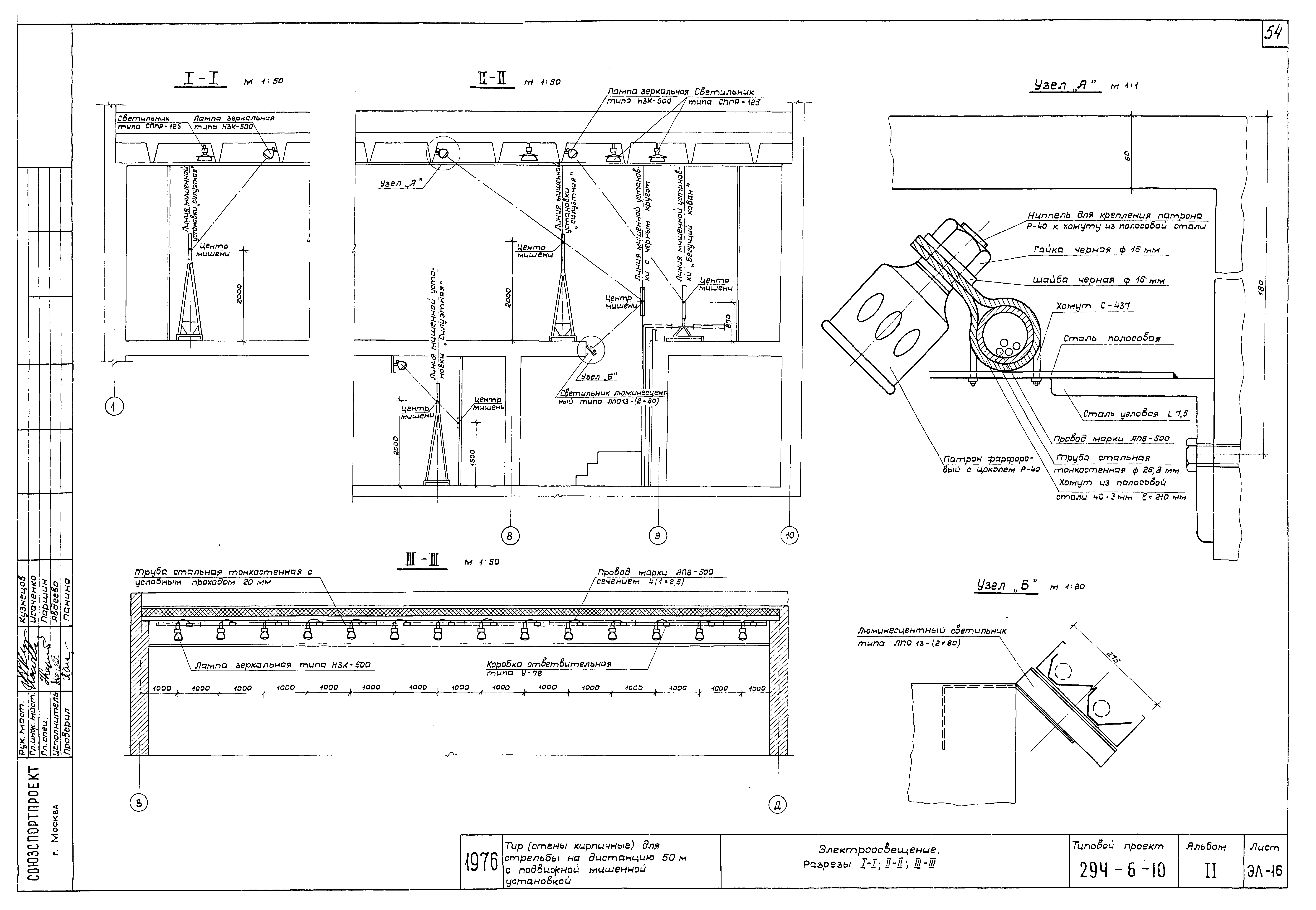
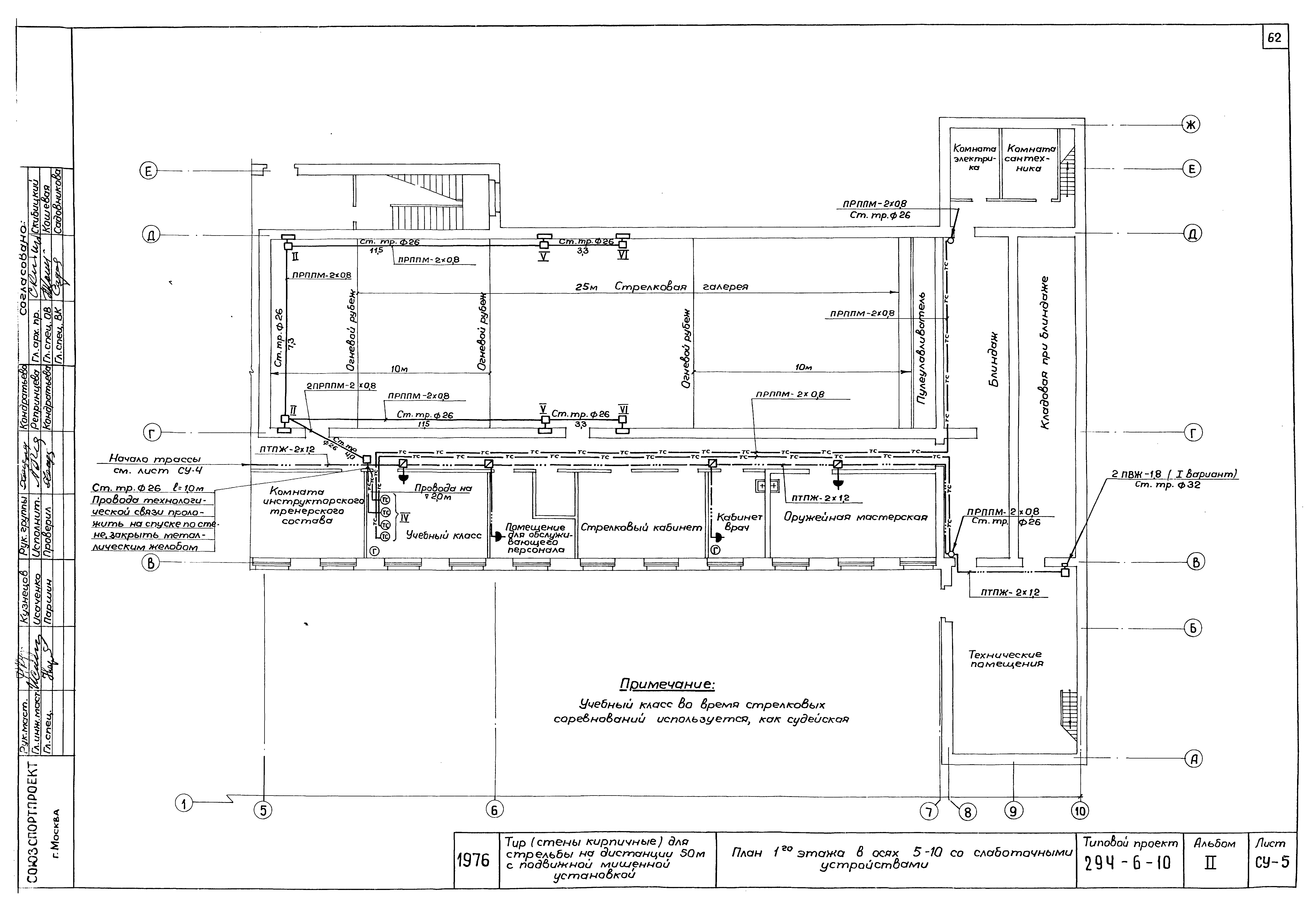
Альбом II. Санитарно-технические чертежи, электрооборудование, автоматика, слаботочные устройстваОбозначение: | Типовой проект 294-6-10 | Обозначение англ: | 294-6-10 | Статус: | не определен законодательством | Название рус.: | Альбом II. Санитарно-технические чертежи, электрооборудование, автоматика, слаботочные устройства | Дата добавления в базу: | 01.10.2014 | Дата актуализации: | 05.05.2017 | Дата введения: | 29.03.1978 | Оглавление: | Состав проекта Чертежи основного комплекта марки ОВ Состав части проекта марки ОВ. Типовые чертежи, применяемые в проекте. Условные обозначения Пояснения к проекту. Основные показатели проекта Характеристика вентиляционного оборудования Сводная спецификация оборудования и материалов систем вентиляции Сводная спецификация оборудования и материалов системы отопления и теплового узла Сводная спецификация оборудования и материалов теплового узла и теплоснабжения калориферов Отопление. План 1-го этажа в осях "1 - 5" (теплоноситель - вода 115 - 70 градусов Цельсия) Отопление. План 1-го этажа в осях "6 - 10" (теплоноситель - вода 115 - 70 градусов Цельсия) Отопление. План 2-го этажа в осях "1 - 5" (теплоноситель - вода 115 - 70 градусов Цельсия) Отопление. План 2-го этажа в осях "6 - 10" (теплоноситель - вода 115 - 70 градусов Цельсия) Схема отопления в осях "1 - 5" (теплоноситель - вода 115 - 70 градусов Цельсия) Схема отопления в осях "6 - 10" (теплоноситель - вода 115 - 70 градусов Цельсия) Отопление. План 1-го этажа в осях "1 - 5" (теплоноситель - вода 95 - 70 градусов Цельсия) Отопление. План 1-го этажа в осях "6 - 10" (теплоноситель - вода 95 - 70 градусов Цельсия) Отопление. План 2-го этажа в осях "1 - 5" (теплоноситель - вода 95 - 70 градусов Цельсия) Отопление. План 2-го этажа в осях "6 - 10" (теплоноситель - вода 95 - 70 градусов Цельсия) Схема отопления в осях "1 - 5" (теплоноситель - вода 95 - 70 градусов Цельсия) Схема отопления в осях "6 - 10" (теплоноситель - вода 95 - 70 градусов Цельсия) Вентиляция. План 1-го этажа в осях "1 - 5" Вентиляция. План 1-го этажа в осях "6 - 10" Вентиляция. План 2-го этажа в осях "1 - 10" Схемы систем П1, В2 Схемы систем П2, В5 Схемы систем В1, В3, В4 Установки систем П1, П2, В1, В2 Установки систем В3 Установки систем В4, В5 План теплового узла (теплоноситель - вода 150 - 70 градусов Цельсия). План теплового пункта (теплоноситель - вода 95 - 70 градусов Цельсия). Спецификация материалов и оборудования Тепловой узел, схема (теплоноситель - вода 150 - 70 градусов Цельсия). Тепловой пункт, схема (теплоноситель - вода 95 - 70 градусов Цельсия). Спецификация материалов и оборудования Схема теплоснабжения калориферов (основное решение 150 - 70 градусов Цельсия, tн = минус 30 градусов Цельсия). Узел установки регулирующего клапана. Опоры под водоподогреватели Чертежи основного комплекта марки ВК Водоснабжение и канализация. Заглавный лист. Состав части проекта. Пояснительная записка. Спецификация материалов Водоснабжение и канализация. План 1-го этажа в осях "1 - 5" Водоснабжение и канализация. План 1-го этажа в осях "6 - 10" Водоснабжение и канализация. План 2-го этажа в осях "1 - 5" Водоснабжение и канализация. План 2-го этажа в осях "6 - 10" Схемы сети холодного и горячего водоснабжения и сети хозяйственно-бытовой канализации Чертежи основного комплекта марки ЭЛ Содержание части проекта. Условные обозначения Пояснительная записка Спецификация на электрооборудование и материалы для монтажа электроосвещения Спецификация на силовое электрооборудование и материалы Схема магистральных сетей Электроосвещение. План 1-го этажа в осях "1 - 5" Электроосвещение. План 1-го этажа в осях "6 - 10" Электроосвещение. План 2-го этажа в осях "1 - 5" Электроосвещение. План 2-го этажа в осях "6 - 10" Электросиловое оборудование. План 1-го этажа в осях "1 - 5" Электросиловое оборудование. План 1-го этажа в осях "6 - 10" Электросиловое оборудование. План 2-го этажа в осях "1 - 5" Электросиловое оборудование. План 2-го этажа в осях "6 - 10" Расчетная схема групповой силовой сети. Щит 1ШР-1 Расчетная схема групповой силовой сети. Щит 2ШР-1, 3ШР-1 Электроосвещение. Разрезы I-I; II-II; III-III Установка штепсельной розетки А-700 в коробке У995 Установка штепсельного разъема в коробке КП-4 Кабель соединительный с двумя штепсельными разъемами. Кнопочный пост управления КМ3-2 и штепсельная вилка У-95-6А Чертежи основного комплекта марки СУ Слаботочные устройства. Содержание части проекта. Пояснения к проекту Слаботочные устройства. Спецификация. Пояснения к проекту Скелетные схемы План 1-го этажа в осях "1 - 5" со слаботочными устройствами План 1-го этажа в осях "6 - 10" со слаботочными устройствами План 2-го этажа в осях "1 - 5" со слаботочными устройствами План 2-го этажа в осях "6 - 10" со слаботочными устройствами Чертежи основного комплекта марки КА Автоматизация сантехсистем. Заглавный лист Приточные системы П-1 - П-2. Принципиальная технологическая схема автоматизации Приточные системы П-1 - П-2. Принципиальная электрическая схема регулирования Приточные системы П-1 - П-2. Принципиальная электрическая схема управления Приточные системы П-1 - П-2. Общий вид щита автоматизации Приточные системы П-1 - П-2. Монтажно-коммутационная схема щита автоматизации Приточные системы П-1 - П-2. Схема внешних соединений Приточные системы П-1 - П-2. Трассы внешних соединений | Разработан: | Союзспортпроект Спорткомитета СССР
| Утверждён: | 02.12.1976 Госгражданстрой (Gosgrazhdanstroy 264)
| Расположен в: |
|
                                                                       
|