Информационная система
«Ёшкин Кот»

Скачать базу одним архивом
Скачать обновления
История создания базы
Карта сайта

Скачать Типовой проект 902-3-89.90 Альбом 2. Технологические решения. Отопление и вентиляция. Генеральные планы. Электротехнические решения

Дата актуализации: 10.08.2017

Типовой проект 902-3-89.90

Альбом 2. Технологические решения. Отопление и вентиляция. Генеральные планы. Электротехнические решения

Обозначение: Типовой проект 902-3-89.90
Обозначение англ: 902-3-89.90
Статус:не определен законодательством
Название рус.:Альбом 2. Технологические решения. Отопление и вентиляция. Генеральные планы. Электротехнические решения
Дата добавления в базу:01.10.2014
Дата актуализации:05.05.2017
Дата введения:09.10.1990
Оглавление:Содержание альбома
Технологические решения
   Общие данные
   Схема расположения установки. Схемы использования и сброса очищенной воды. Резервуар очищенной воды
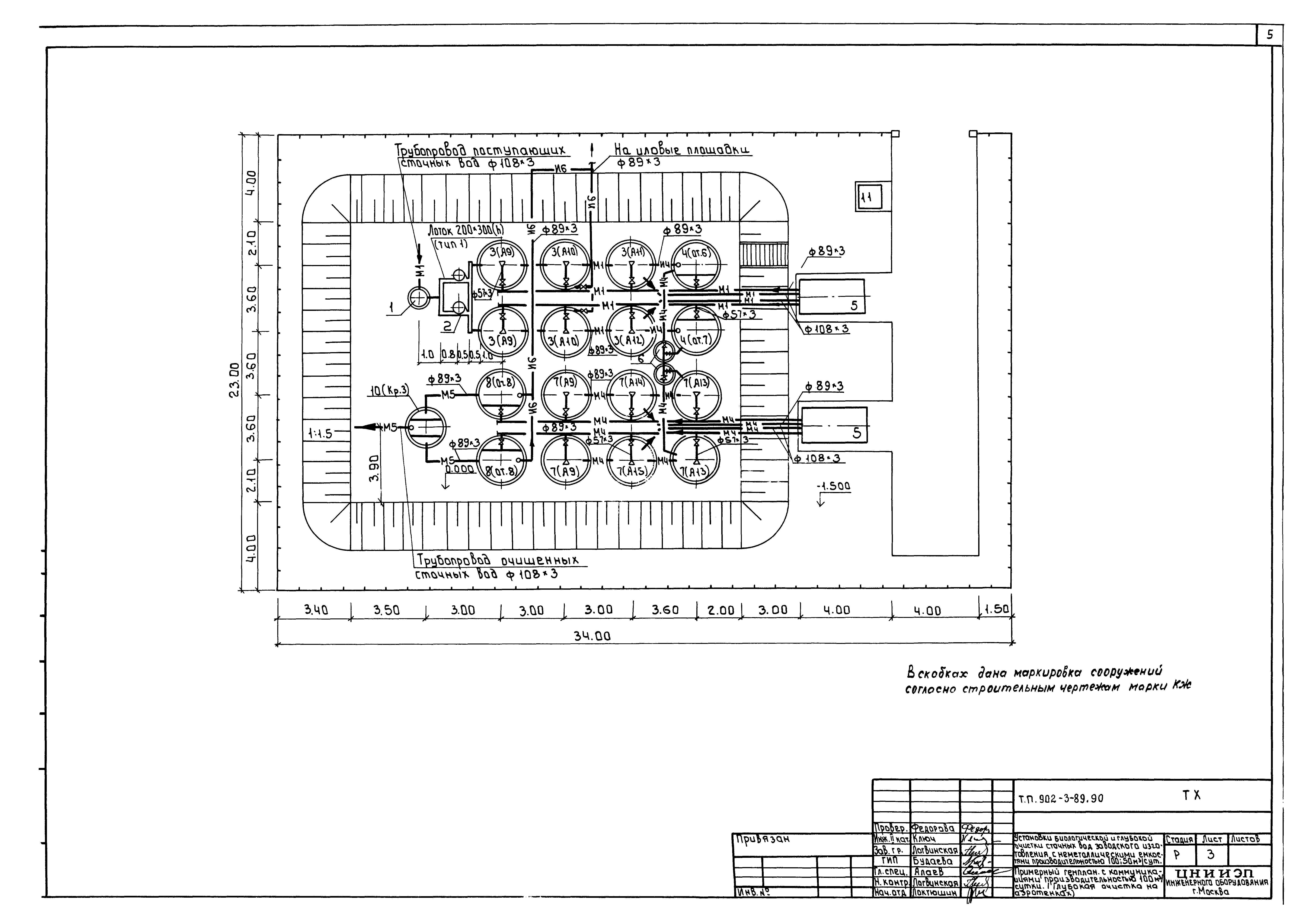
   Примерный генплан с коммуникациями производительностью 100 куб. м/сутки (глубокая очистка на аэротенках)
   Примерный генплан с коммуникациями производительностью 50 куб. м/сутки (глубокая очистка на аэротенках)
   Примерный генплан с коммуникациями производительностью 100 куб. м/сутки (глубокая очистка на подземных фильтрах)
   Примерный генплан с коммуникациями производительностью 50 куб. м/сутки (глубокая очистка на подземных фильтрах)
   Схема движения воды
   Аксонометрическая схема для установки производительностью 100 куб. м/сутки
   Аксонометрическая схема для установки производительностью 50 куб. м/сутки
   Аэротенк. Отстойник. Планы. Разрезы 1-1, 2-2, 3-3, 4-4
   Контактный резервуар. Камера переключений. Планы. Разрезы 1-1, 2-2, 3-3, 4-4
   Блок контейнер. План. Разрез 1-1. Пример решения иловых площадок. Таблицы колодцев
   Подземные фильтры. План. Разрез 1-1, 2-2
   Эжектор. Эскизный чертеж общего вида
   Решетка. Эскизный чертеж общего вида
   Песколовка Ф 500 мм. Эскизный чертеж общего вида
   Затопленная загрузка. Эскизный чертеж общего вида
   Лоток. Эскизный чертеж общего вида
   Бачок дезинфектанта. Эскизный чертеж общего вида
   Рама эжектора. Эскизный чертеж общего вида
Отопление и вентиляция
   Общие данные. План на отм. 0.000. Схема системы отопления. Схема системы ВЕ-1
Генеральные планы
   Примерный генплан М1:200 (глубокая очистка на аэротенках)
   Примерный генплан М1:200 (глубокая очистка на подземных фильтрах)
Электротехнические решения
   Общие данные. Схема электрическая принципиальная распределительной сети 380/220 В
   Схема электрическая принципиальная управления насосами
   Схема подключения электрооборудования
   Кабельный журнал. План расположения электрооборудования и прокладка кабеля
Организация строительства
   Схема стройгенплана
   График производства работ на производительность 100 куб. м/сутки
   График производства работ на производительность 50 куб. м/сутки
Разработан: ЦНИИЭП иженерного оборудования
Утверждён:09.10.1990 Госгражданстрой (Gosgrazhdanstroy 167)
Расположен в:Техническая документация Строительство Справочные документы Типовые строительные конструкции, изделия и узлы Общероссийский строительный каталог Промышленные предприятия, здания и сооружения Здания и сооружения санитарно-технические Канализация Сооружения биологической (биохимической) очистки Станции биологической очистки сточных вод
Заменяет собой:
Типовой проект 902-3-89.90Типовой проект 902-3-89.90Типовой проект 902-3-89.90Типовой проект 902-3-89.90Типовой проект 902-3-89.90Типовой проект 902-3-89.90Типовой проект 902-3-89.90Типовой проект 902-3-89.90Типовой проект 902-3-89.90Типовой проект 902-3-89.90Типовой проект 902-3-89.90Типовой проект 902-3-89.90Типовой проект 902-3-89.90Типовой проект 902-3-89.90Типовой проект 902-3-89.90Типовой проект 902-3-89.90Типовой проект 902-3-89.90Типовой проект 902-3-89.90Типовой проект 902-3-89.90Типовой проект 902-3-89.90Типовой проект 902-3-89.90Типовой проект 902-3-89.90Типовой проект 902-3-89.90Типовой проект 902-3-89.90Типовой проект 902-3-89.90Типовой проект 902-3-89.90Типовой проект 902-3-89.90Типовой проект 902-3-89.90Типовой проект 902-3-89.90Типовой проект 902-3-89.90Типовой проект 902-3-89.90Типовой проект 902-3-89.90Типовой проект 902-3-89.90Типовой проект 902-3-89.90

© 2013 Ёшкин Кот :-) Карта сайта