Информационная система
«Ёшкин Кот»

Скачать базу одним архивом
Скачать обновления
История создания базы
Карта сайта

Скачать Типовой проект 705-6-2с.83 Альбом I. Конструкции металлические

Дата актуализации: 10.08.2017

Типовой проект 705-6-2с.83

Альбом I. Конструкции металлические

Обозначение: Типовой проект 705-6-2с.83
Обозначение англ: 705-6-2с.83
Статус:действует
Название рус.:Альбом I. Конструкции металлические
Дата добавления в базу:01.10.2014
Дата актуализации:05.05.2017
Оглавление:Общие данные
Техническая спецификация металла
Общий вид резервуара
Днище
Стенка
Схема расположения щитов крыши
Щит крыши
Схема расположения люков
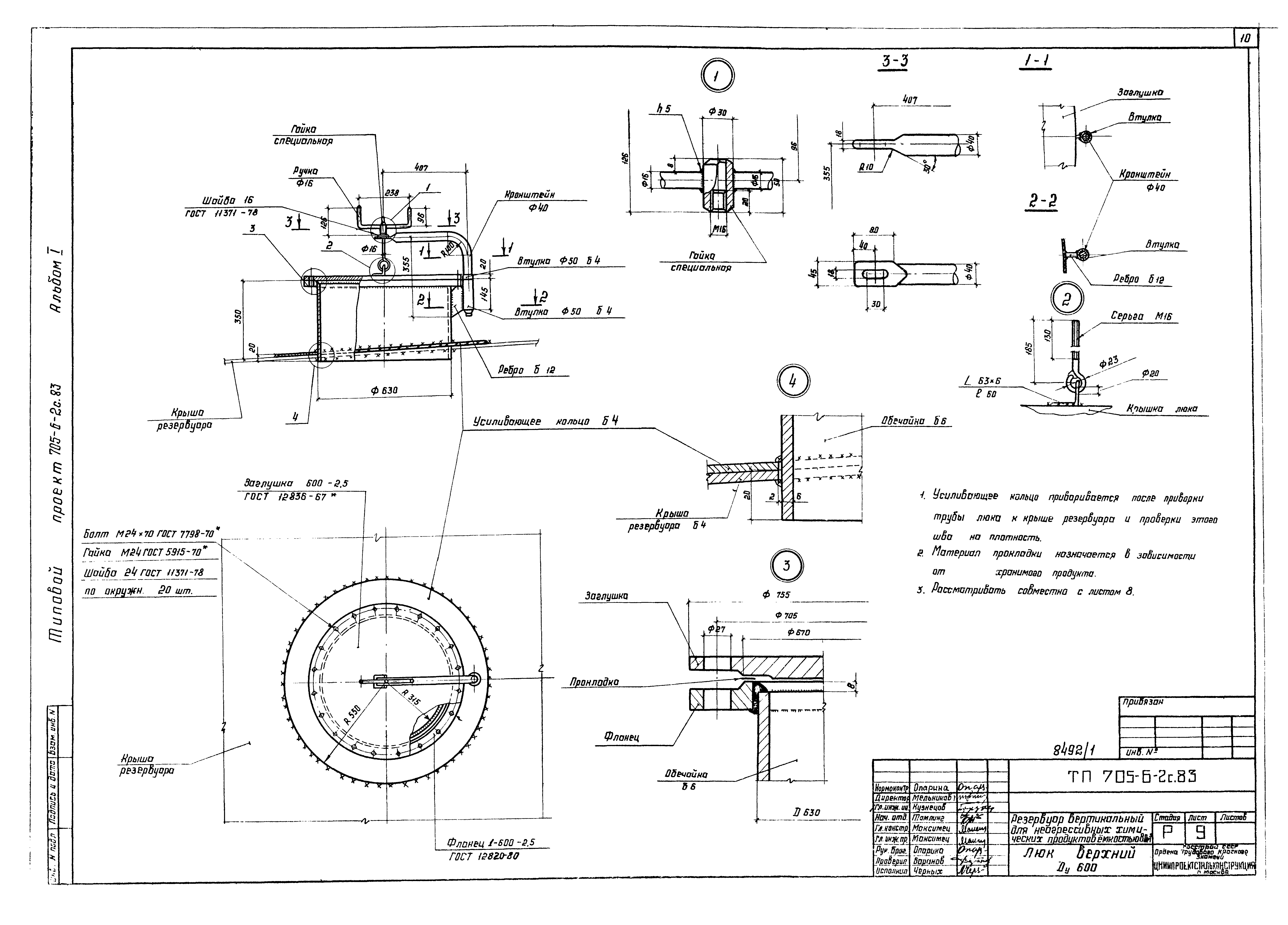
Люк верхний Dy600
Люк верхний Dy800
Каркас для наворачивания
Ведомость металлоконструкций по видам профилей
Разработан: ЦНИИпроектстальконструкция
Утверждён:01.11.1982 Министерство черной металлургии СССР (978)
Расположен в:Техническая документация Строительство Справочные документы Типовые строительные конструкции, изделия и узлы Общероссийский строительный каталог Промышленные предприятия, здания и сооружения Предприятия, здания и сооружения складские Склады и резервуары для химических продуктов Склады химических продуктов
Типовой проект 705-6-2с.83Типовой проект 705-6-2с.83Типовой проект 705-6-2с.83Типовой проект 705-6-2с.83Типовой проект 705-6-2с.83Типовой проект 705-6-2с.83Типовой проект 705-6-2с.83Типовой проект 705-6-2с.83Типовой проект 705-6-2с.83Типовой проект 705-6-2с.83Типовой проект 705-6-2с.83Типовой проект 705-6-2с.83Типовой проект 705-6-2с.83Типовой проект 705-6-2с.83

© 2013 Ёшкин Кот :-) Карта сайта