| ||||||||||||||||||||||||
Скачать Типовые проектные решения 705-5-020.86 Альбом III. Приспособления для монтажа резервуаров объемом 50, 80, 100, 200, 320, 500 куб. м (из ТПР 705-5-018.86)Дата актуализации: 10.08.2017
|
| Обозначение: | Типовые проектные решения 705-5-020.86 |
| Обозначение англ: | 705-5-020.86 |
| Статус: | cправочные материалы, мп, тпр |
| Название рус.: | Альбом III. Приспособления для монтажа резервуаров объемом 50, 80, 100, 200, 320, 500 куб. м (из ТПР 705-5-018.86) |
| Дата добавления в базу: | 01.10.2014 |
| Дата актуализации: | 05.05.2017 |
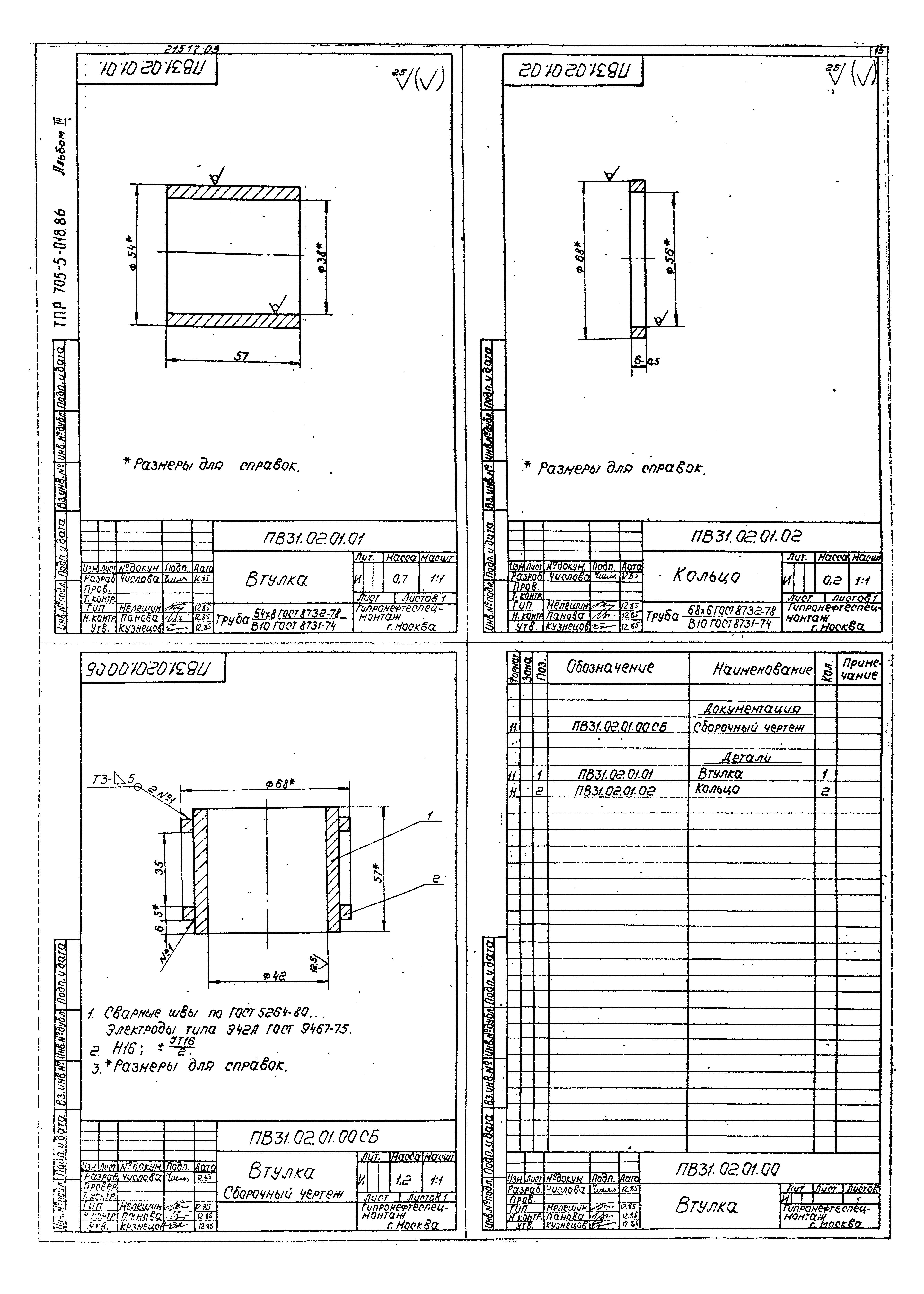
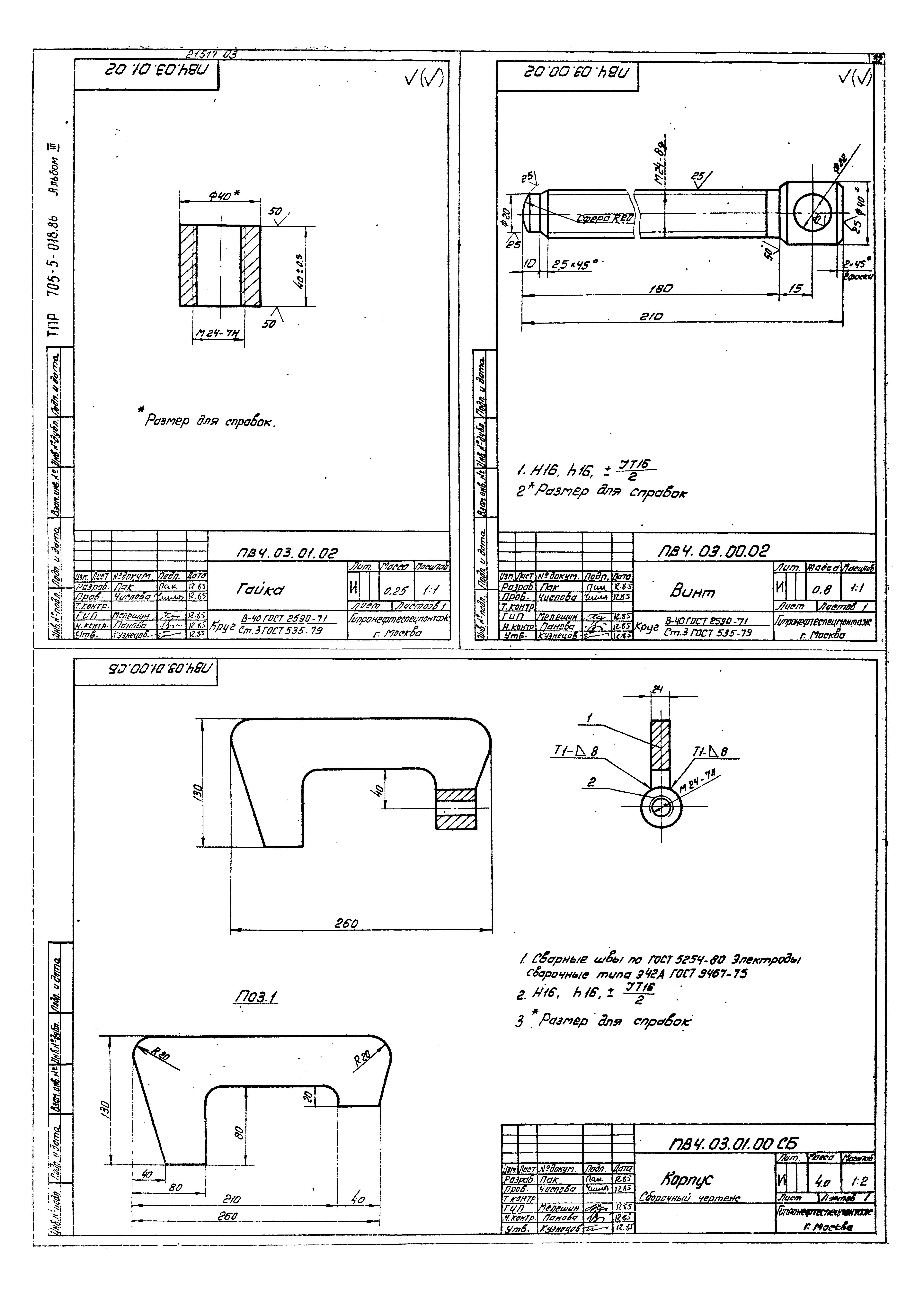
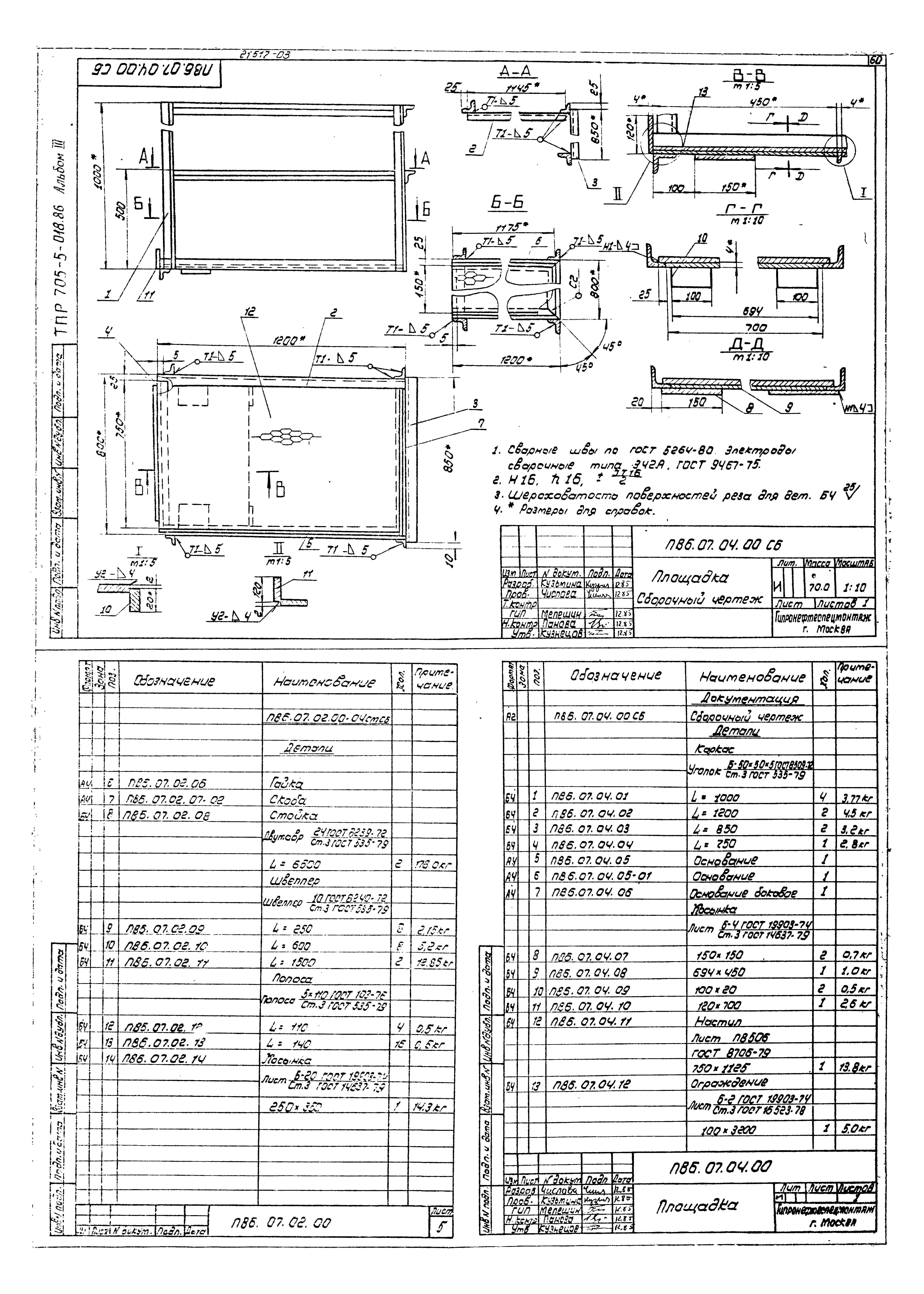
| Оглавление: | 1326.П3.00.00 Штуцер для отводного блока Q = 10 т 1326.П3.00.01 Накладка 1326.П3.00.00СБ Штуцер для отводного блока Q = 10 т. Сборочный чертеж 1326.П4.00.00СБ Площадка на постамент. Сборочный чертеж 1326.П4.00.00 Площадка на постамент ПВ65.07.03.00 Лестница ПВ65.07.00.00СБ Приспособление для замыкания вертикального монтажного стыка. Сборочный чертеж ПВ65.07.02.00СБ Балка. Сборочный чертеж ПВ65.07.02.00 Балка ПВ65.07.00.00 Приспособление для замыкания вертикального монтажного стыка ПВ65.07.01.00СБ Площадка. Сборочный чертеж ПВ65.07.02.06 Гайка ПВ65.07.02.08 Уголок ПВ65.07.02.05 Ловитель ПВ65.07.02.07 Винт ПВ65.07.01.00 Площадка ПВ65.07.02.02 Ухо ПВ65.07.03.00СБ Лестница. Сборочный чертеж ПВ65.07.02.11 Уголок ПВ65.07.02.09 Уголок ПВ31.02.00.00СБ Скоба для развертывания рулона. Сборочный чертеж ПВ31.02.00.00 Скоба для развертывания рулона ПВ31.02.00.01 Палец ПВ31.02.01.01 Втулка ПВ31.02.01.02 Кольцо ПВ31.02.01.00СБ Втулка. Сборочный чертеж ПВ31.02.01.00 Втулка ПВ31.02.00.00СБ Корпус. Сборочный чертеж ПВ31.02.02.02 Щека ПВ31.02.02.00 Корпус ПВ9.20.00.00 Лестница ПВ9.20.00.00СБ Лестница. Сборочный чертеж ПВ9.20.00.00 Лестница ПВ7.11.00.00 Клин ПВ7.11.00.01 Уголок ПВ7.11.00.00СБ Клин. Сборочный чертеж ПВ12.02.00.00 Поддон ПВ81.04.00.00 Кронштейн для расчалок ПВ81.04.00.00СБ Кронштейн для расчалок. Сборочный чертеж ПВ81.04.00.01 Пластина ПВ12.01.00.02 Груз ПВ12.01.00.01 Серьга ПВ12.01.00.00СБ Отвес. Сборочный чертеж ПВ12.01.00.00 Отвес ПВ4.05.00.03 Гайка ПВ4.05.01.01 Уголок ПВ4.05.00.00СБ Стяжное приспособление. Сборочный чертеж ПВ4.05.01.02 Ребро ПВ4.05.01.00 Кронштейн ПВ4.05.00.02 Сухарь ПВ4.05.00.00 Стяжное приспособление ПВ4.05.01.00СБ Кронштейн. Сборочный чертеж ПВ5.64.00.00СБ Кронштейн. Сборочный чертеж ПВ5.64.00.00 Кронштейн ПВ7.07.00.00 Карман ПВ51.64.00.00 Настил ПВ51.64.00.00СБ Настил. Сборочный чертеж ПВ52.64.00.00 Ограждение жесткое ПВ6.04.00.00СБ Приспособление для формообразования. Сборочный чертеж ПВ6.04.00.00 Приспособление для формообразования ПВ6.04.00.02 Ловитель ПВ6.04.00.01 Скоба ПВ6.04.00.07 Пластина ПВ6.04.00.04 Пластина ПВ6.04.00.08 Стойка ПВ6.04.00.03 Косынка ПВ6.04.01.00СБ Раскос. Сборочный чертеж ПВ6.04.00.10 Косынка ПВ6.04.01.00 Раскос ПВ6.04.01.01 Укосина ПВ6.04.00.11 Укосина ПВ4.03.01.00 Корпус ПВ4.03.00.00 Струбцина для прижима обвязочного уголка ПВ4.03.00.00СБ Струбцина для прижима обвязочного уголка. Сборочный чертеж ПВ4.03.01.02 Гайка ПВ4.03.00.02 Винт ПВ4.03.01.00 СБ Корпус. Сборочный чертеж ПВ61.13.00.00СБ Подмости. Сборочный чертеж ПВ61.13.00.00 Подмости ПВ61.13.00.01 Скоба ПВ61.13.02.00СБ Лестница. Сборочный чертеж ПВ61.13.02.00 Лестница ПВ61.13.00.00 Подмости ПВ61.13.01.00СБ Площадка. Сборочный чертеж ПВ61.13.01.00 Площадка ПВ61.13.01.01 Крюк ПВ10.05.02.00СБ Строп 4-х ветвевой Q = 5 т. Сборочный чертеж ПВ10.05.02.00 Строп 4-х ветвевой Q = 5 т ПВ10.04.00.00СБ Строп 3-х ветвевой Q = 3 т. Сборочный чертеж ПВ10.04.00.00 Строп 3-х ветвевой Q = 3 т ПВ10.10.00.00СБ Траверса для подъема рулона стенки. Сборочный чертеж ПВ10.10.00.00 Траверса для подъема рулона стенки ПВ5К.10.00.00 Шарнир для подъема рулонов ПВ5К.10.00.05 Проушина ПВ5К.10.00.00СБ Шарнир для подъема рулонов. Сборочный чертеж ПВ5К.10.00.00 Шарнир для подъема рулонов 1326.П14.00.00СБ Опора. Сборочный чертеж 1326.П14.00.00 Опора ПВ5К.10.00.00 Шарнир для подъема рулонов ПВ8.05.00.00СБ Упор клиновой. Сборочный чертеж ПВ8.05.00.04 Диафрагма ПВ8.05.00.01 Ось ПВ8.05.00.00 Упор клиновой ПВ8.05.00.07 Ручка ПВ8.05.00.09 Уголок ПВ8.05.00.08 Уголок ПВ8.05.00.10 Уголок ПВ8.05.00.11 Уголок ПВ8.05.00.13 Уголок ПВ7.84.03.00СБ Опора ролика. Сборочный чертеж ПВ7.84.00.00СБ Опора роликовая поворотная. Сборочный чертеж ПВ7.84.00.00 Опора роликовая поворотная ПВ7.84.01.00СБ Основание ролика. Сборочный чертеж ПВ7.84.02.00СБ Ролик. Сборочный чертеж ПВ7.84.01.00 Основание ролика ПВ7.84.03.00 Опора ролика ПВ7.84.02.00 Ролик ПВ2.04.00.00 Приспособление для разметки днища ПВ2.04.00.00СБ Приспособление для разметки днища. Сборочный чертеж ПВ2.04.04.03 Бобышка ПВ2.04.00.01 Чертилка ПВ2.04.00.02 Ось ПВ2.04.03.01 Пластина ПВ2.04.03.00СБ Штанга. Сборочный чертеж ПВ2.04.03.00 Штанга ПВ2.04.04.01 Бобышка ПВ2.04.04.00СБ Движок. Сборочный чертеж ПВ2.04.04.00 Движок ПВ2.04.02.01 Пластина ПВ2.04.02.00СБ Кронштейн. Сборочный чертеж ПВ2.04.03.00 Штанга ПВ2.04.02.00 Кронштейн ПВ6.07.00.00СБ Приспособление для замыкания вертикального монтажного стыка. Сборочный чертеж ПВ6.07.00.00 Приспособление для замыкания вертикального монтажного стыка ПВ6.07.01.00СБ Кронштейн. Сборочный чертеж ПВ6.07.01.01 Косынка ПВ6.07.00.02 Винт ПВ6.07.01.00 Кронштейн ПВ6.07.02.00СБ Балка. Сборочный чертеж ПВ6.07.02.00 Балка ПВ6.07.03.00СБ Лестница. Сборочный чертеж ПВ6.07.02.06 Гайка ПВ6.07.02.07 Скоба ПВ6.07.03.00 Лестница. ПВ6.07.02.02 Ловитель ПВ6.07.04.00СБ Площадка. Сборочный чертеж ПВ6.07.04.00 Площадка ПВ6.07.02.00 Балка ПВ6.07.02.01 Кронштейн ПВ6.07.02.03 Пластина ПВ6.07.04.06 Основание боковое ПВ6.07.04.05 Основание ПВ6.07.01.03 Швеллер ПВ6.07.01.02 Швеллер ПВ6.07.01.05 Швеллер ПВ6.07.01.04 Швеллер |
| Разработан: | Гипронефтеспецмонтаж Минмонтажспецстроя СССР (Giproneftespetsmontazh, Minmontazhspetsstroy (USSR) ) |
| Утверждён: | 22.05.1986 Министерство по производству минеральных удобрений СССР (USSR Ministry of Mineral Fertilizer Production 25-128) |
| Расположен в: |































































