Информационная система
«Ёшкин Кот»

Скачать базу одним архивом
Скачать обновления
История создания базы
Карта сайта

Скачать Типовой проект 704-4-30 Альбом I. Общая пояснительная записка. Чертежи

Дата актуализации: 10.08.2017

Типовой проект 704-4-30

Альбом I. Общая пояснительная записка. Чертежи

Обозначение: Типовой проект 704-4-30
Обозначение англ: 704-4-30
Статус:действует
Название рус.:Альбом I. Общая пояснительная записка. Чертежи
Дата добавления в базу:01.10.2014
Дата актуализации:05.05.2017
Оглавление:Общая пояснительная записка
Схема генерального плана
Чертежи основного комплекта марки ТХ
   Общие данные
   План технологического оборудования
   Монтажно-технологическая схема
   Приемно-заправочная площадка. Компоновка оборудования
   Производственно-бытовой корпус. Компоновка оборудования
   Трубопроводы. План. Разрезы
   Спецификация арматуры, трубопроводов и опор
   Тяговое устройство. Установочный чертеж
   Эстакада для светлых нефтепродуктов. Компоновка оборудования
   Стояк для налива дизельного масла. Установочный чертеж
Чертежи основного комплекта марки АР
   Общие данные
   Производственно-бытовой корпус. План полов и кровли
   План на отм. 0.000 и 1.200
   Разрезы 1-1, 2-2, 3-3
   Фасады
   Эстакада для светлых нефтепродуктов. План эстакады. Разрезы 1-1, 2-2
   Приемно-заправочная площадка. План и разрезы
Чертежи основного комплекта марки КЖ
   Общие данные
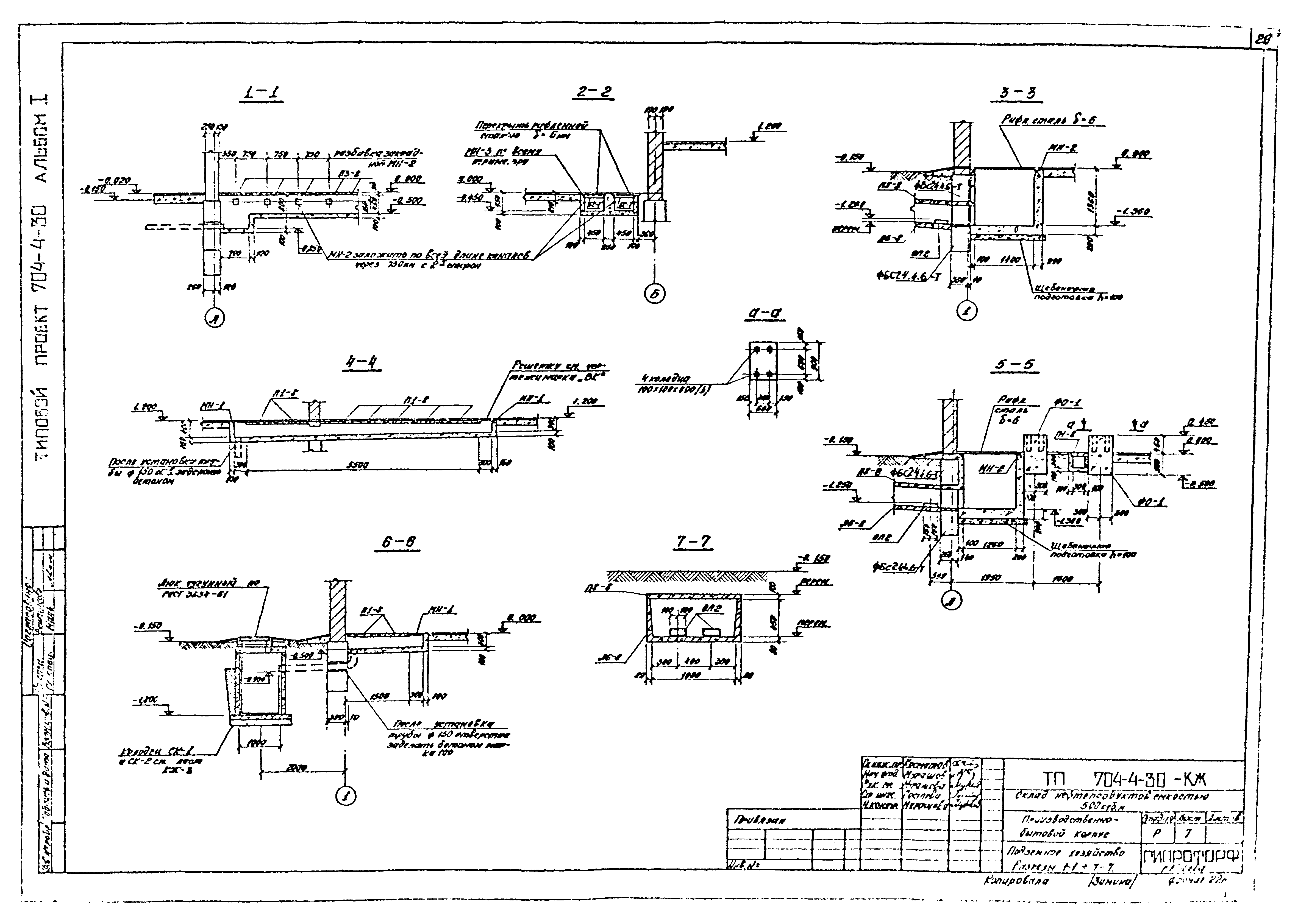
   I. Производственно-бытовой корпус
      План и сечения фундаментов
      Раскладка блоков
      Подземное хозяйство. План
      Подземное хозяйство. Разрезы 1-1 - 7-7
      Подземное хозяйство. Колодцы СК-1 и СК-2. Закладные детали МН-1, МН-2 и МН-3
      Монтажная схема плит покрытия. Плита ПЛIIIв/1,5х6-1-1
      Кронштейны под трубопроводы. Площадка ПМ-1
   II. Резервный парк
      Монтажная схема фундаментов под резервуары
      Переход через обвалование. Элемент плана №1
      Фундаменты под резервуары
      План опор под трубопроводы
      Дождеприемный колодец ДК-1
   III. Эстакада для светлых нефтепродуктов
      Монтажная схема колонн и плит. Монтажная схема металлических балок
      Колонны К-1 и К-2
      Опалубочный и арматурный планы МУ-1 и МУ-1а
      План фундаментов. Фундаменты Ф-1, Ф-2
      Фундаменты Ф-1, Ф-2. Сечения и сетки
      Монтажная схема лестниц и ограждений площадки
   IV. Приемно-заправочная площадка
      План фундаментов под оборудование. Фундамент ФО-1
      План балок и прогонов покрытия. План колонн. План фундаментов
      Фундаменты Ф-1 и ФО-2
   V. Фундаменты под тяговое устройство
      План фундаментов. . Фундамент ФО-1
      Фундамент ФО-2. Анкера А-1 и А-2
   VI. Площадки, колодцы
      Площадка погрузочно-разгрузочная под эстакадой, площадка и фундамент под стояк
      Колодцы РК-1, РК-2, СК-3, СК-4, СК-5, ДК-2. Маслосборный колодец
      Отстойник с бензиномаслоуловителем. План и разрезы
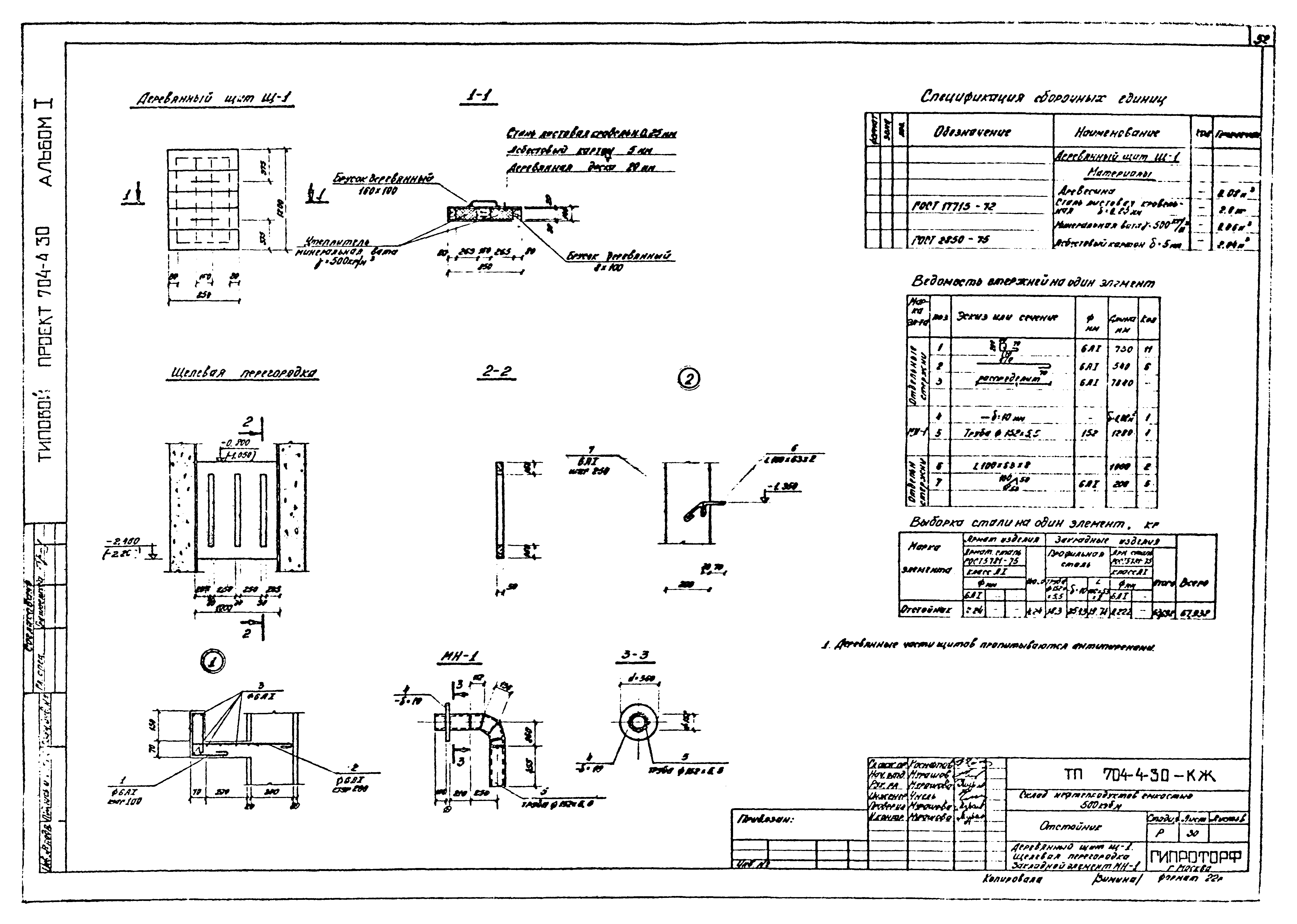
      Деревянный щит Щ-1. Щелевая перегородка. Закладной элемент МН-1
      Монтажная схема ограждения склада
      Щит с пожарным инвентарем, ящик для песка, пожарный водоем
Чертежи основного комплекта марки ОВ
   Общие данные
   Отопление и вентиляция. План и схема
   Отопление. Узел управления
   Обогрев технологических трубопроводов. План
Чертежи основного комплекта марки НВК
   Общие данные
   Примерная схема трассировки. Разрезы по трубопроводам аварийного пролива и ливневой канализации
   Разрезы по трубопроводам аварийного пролива и ливневой канализации
   Производственно-бытовой корпус. Схема водопровода и канализации
   Отстойник с бензомаслоуловителем. Технологические трубопроводы
Чертежи основного комплекта марки ЭЛ
   Общие данные
   Расчетная схема
   Внутриплощадочные силовые сети 380/220 В
   Производственно-бытовой корпус. Силовые сети
   Приемо-заправочная площадка. Эстакада для светлых нефтепродуктов. Силовое электрооборудование. Электроосвещение
   Производственно-бытовой корпус. Электроосвещение
   Наружное и охранное освещение
   План молниезащиты. Заземление
   Молниезащита. Разрезы
   Производственно-бытовой корпус. Сети пожароохранной сигнализации и связи
   Схема электрическая принципиальная управления насосами Ш-40-6
   Схема электрическая принципиальная управления насосами АСВН-8Б
   Схема электрическая принципиальная управления тяговым устройством
   Схемы электрические принципиальные управления нагревателями
   Схема электрическая принципиальная распределительной сети и внешних электрических проводок
   Схема внешних электрических проводок
   План расположения средств автоматизации и проводок
   Спецификация
Разработан: Гипроторф
Утверждён:29.12.1979 Минтоппром РСФСР (Russian Federation Mintopprom 272)
Принят:20.12.1979 Госстрой РСФСР (Russian Federation Gosstroy 14/17-552)
Расположен в:Техническая документация Строительство Справочные документы Типовые строительные конструкции, изделия и узлы Общероссийский строительный каталог Промышленные предприятия, здания и сооружения Предприятия, здания и сооружения складские Резервуары и склады для нефти и нефтепродуктов Склады нефти и нефтепродуктов
Типовой проект 704-4-30Типовой проект 704-4-30Типовой проект 704-4-30Типовой проект 704-4-30Типовой проект 704-4-30Типовой проект 704-4-30Типовой проект 704-4-30Типовой проект 704-4-30Типовой проект 704-4-30Типовой проект 704-4-30Типовой проект 704-4-30Типовой проект 704-4-30Типовой проект 704-4-30Типовой проект 704-4-30Типовой проект 704-4-30Типовой проект 704-4-30Типовой проект 704-4-30Типовой проект 704-4-30Типовой проект 704-4-30Типовой проект 704-4-30Типовой проект 704-4-30Типовой проект 704-4-30Типовой проект 704-4-30Типовой проект 704-4-30Типовой проект 704-4-30Типовой проект 704-4-30Типовой проект 704-4-30Типовой проект 704-4-30Типовой проект 704-4-30Типовой проект 704-4-30Типовой проект 704-4-30Типовой проект 704-4-30Типовой проект 704-4-30Типовой проект 704-4-30Типовой проект 704-4-30Типовой проект 704-4-30Типовой проект 704-4-30Типовой проект 704-4-30Типовой проект 704-4-30Типовой проект 704-4-30Типовой проект 704-4-30Типовой проект 704-4-30Типовой проект 704-4-30Типовой проект 704-4-30Типовой проект 704-4-30Типовой проект 704-4-30Типовой проект 704-4-30Типовой проект 704-4-30Типовой проект 704-4-30Типовой проект 704-4-30Типовой проект 704-4-30Типовой проект 704-4-30Типовой проект 704-4-30Типовой проект 704-4-30Типовой проект 704-4-30Типовой проект 704-4-30Типовой проект 704-4-30Типовой проект 704-4-30Типовой проект 704-4-30Типовой проект 704-4-30Типовой проект 704-4-30Типовой проект 704-4-30Типовой проект 704-4-30Типовой проект 704-4-30Типовой проект 704-4-30Типовой проект 704-4-30Типовой проект 704-4-30Типовой проект 704-4-30Типовой проект 704-4-30Типовой проект 704-4-30Типовой проект 704-4-30Типовой проект 704-4-30Типовой проект 704-4-30Типовой проект 704-4-30Типовой проект 704-4-30Типовой проект 704-4-30Типовой проект 704-4-30Типовой проект 704-4-30Типовой проект 704-4-30Типовой проект 704-4-30Типовой проект 704-4-30Типовой проект 704-4-30Типовой проект 704-4-30Типовой проект 704-4-30Типовой проект 704-4-30Типовой проект 704-4-30Типовой проект 704-4-30Типовой проект 704-4-30Типовой проект 704-4-30Типовой проект 704-4-30Типовой проект 704-4-30

© 2013 Ёшкин Кот :-) Карта сайта