Скачать Типовой проект 503-1-67.87 Альбом II. Части 1, 2. Архитектурные решения. Конструкции железобетонные. Конструкции металлическиеДата актуализации: 10.08.2017 Типовой проект 503-1-67.87
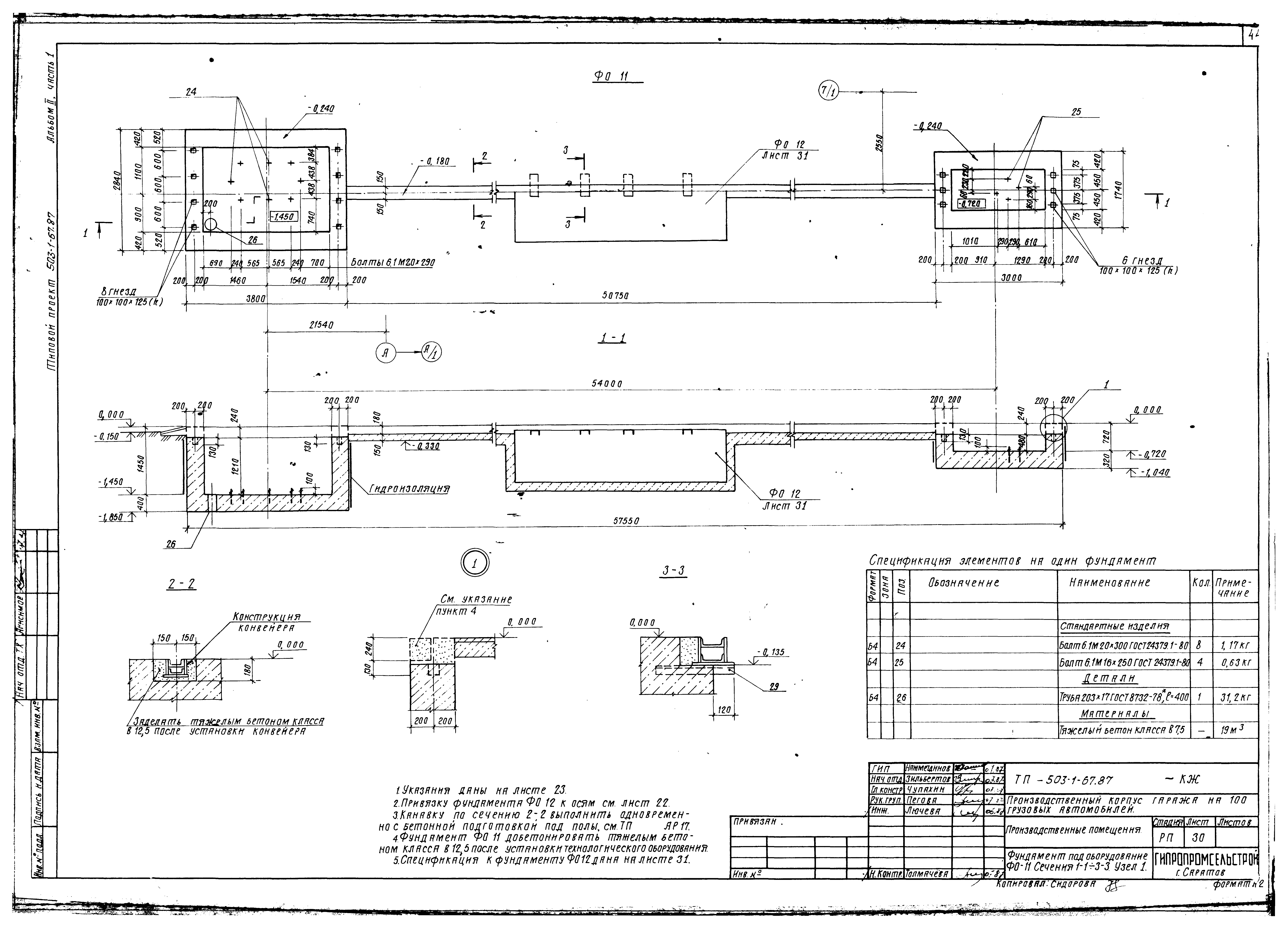
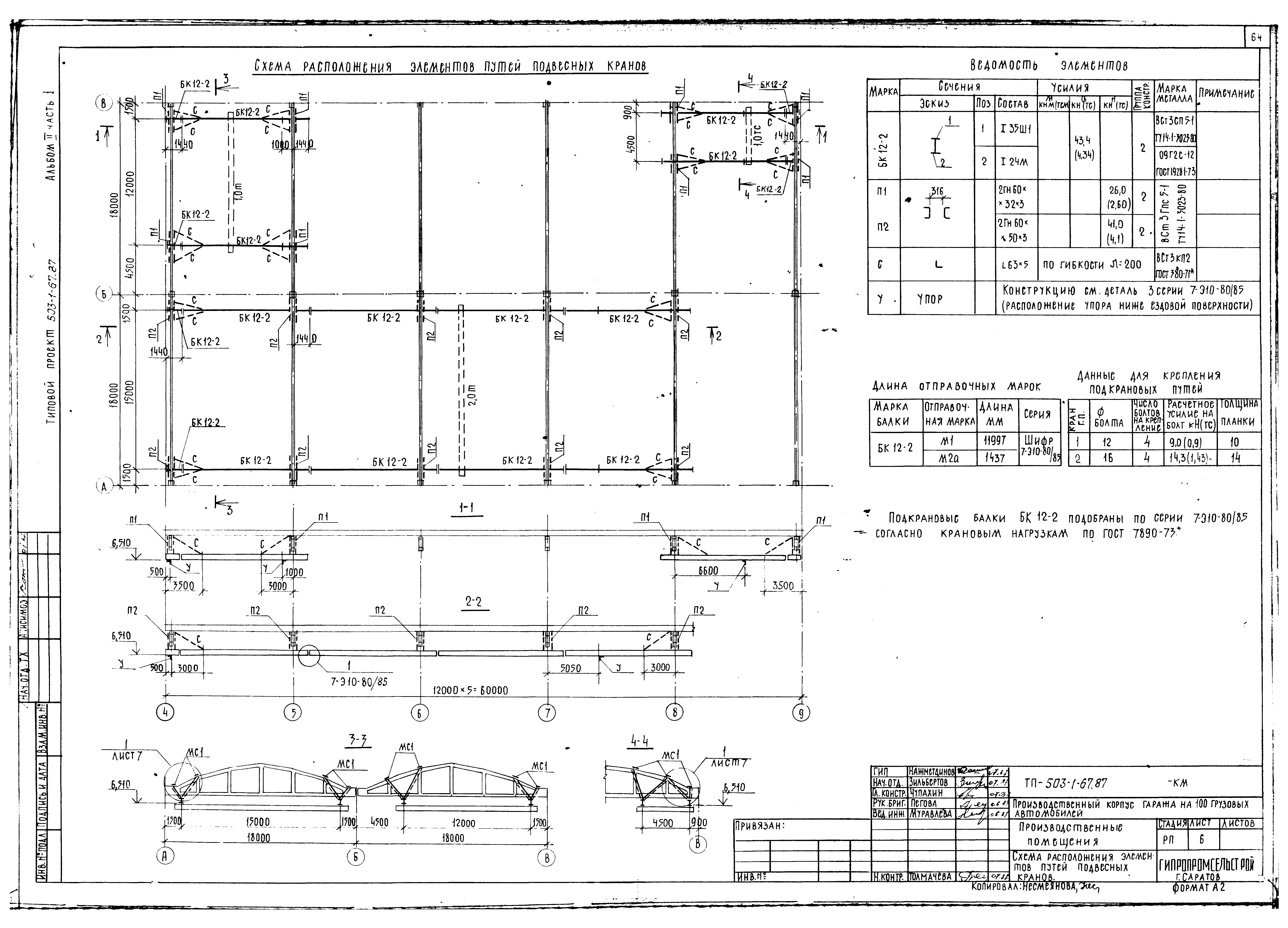
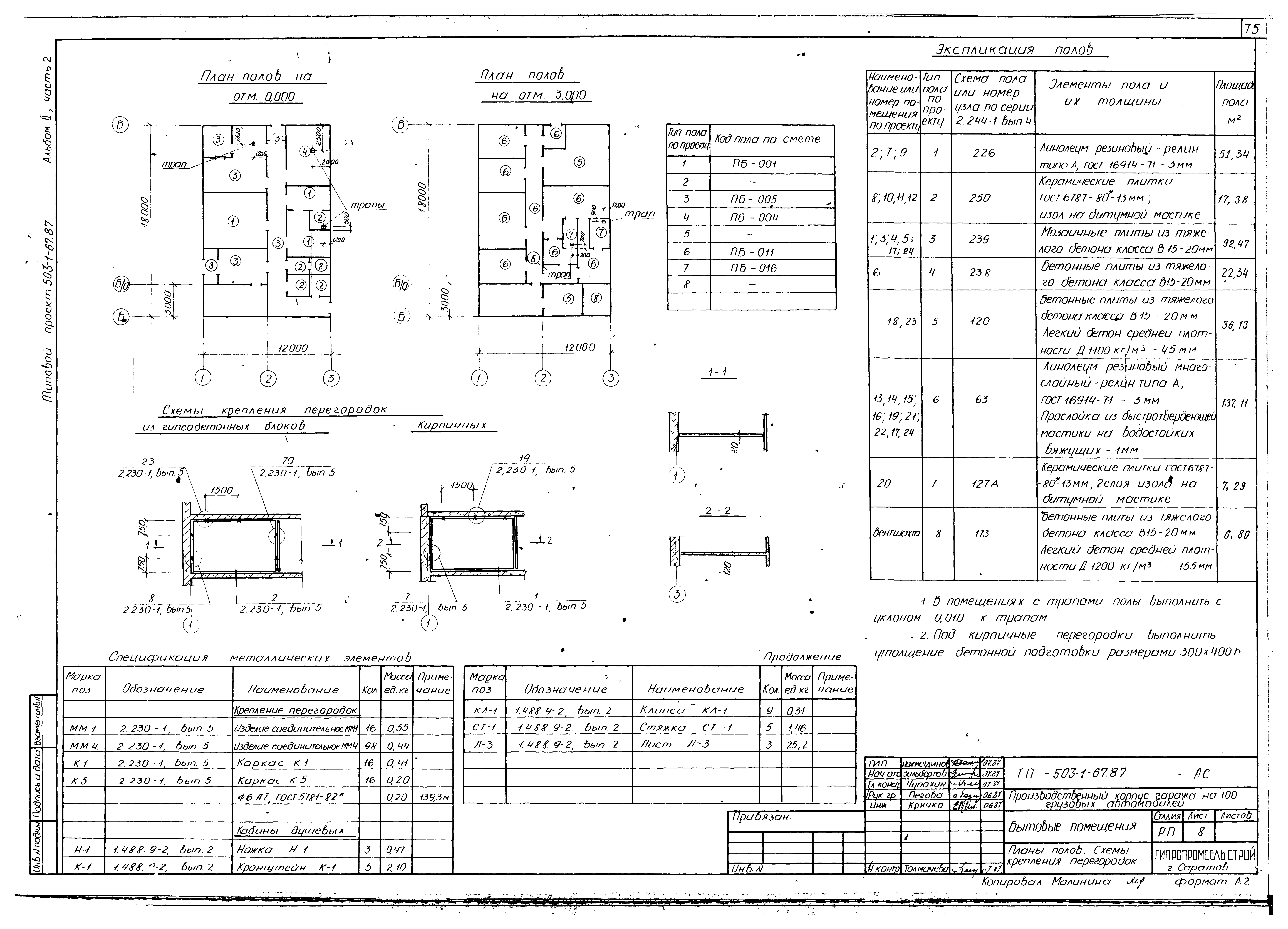
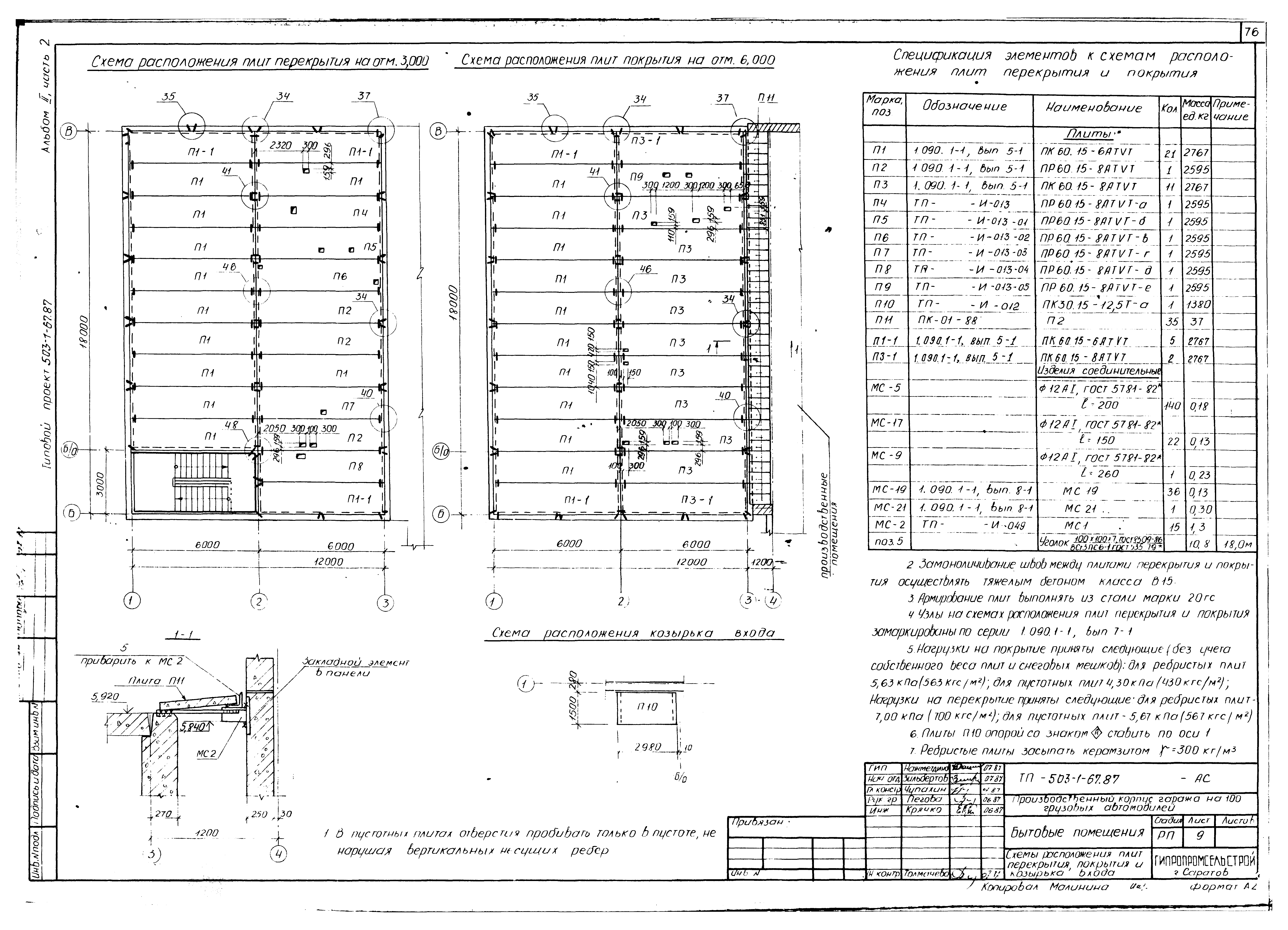
Альбом II. Части 1, 2. Архитектурные решения. Конструкции железобетонные. Конструкции металлическиеОбозначение: | Типовой проект 503-1-67.87 | Обозначение англ: | 503-1-67.87 | Статус: | не определен законодательством | Название рус.: | Альбом II. Части 1, 2. Архитектурные решения. Конструкции железобетонные. Конструкции металлические | Дата добавления в базу: | 01.10.2014 | Дата актуализации: | 05.05.2017 | Дата введения: | 17.08.1987 | Оглавление: | Содержание альбома Часть 1. Производственные помещения Архитектурные решения Общие данные План кровли Фасады 4 - 9; 9 - 4; А - В; В - А План на отм. 0.000 Фрагменты 1, 2, 3 Разрезы 1-1 - 4-4 Узлы 1 - 10 Перегородки сетчатые. Схемы 1, 2. Схемы установки закладных изделий в проемах Кирпичные перегородки. Схемы 1 - 4 Планы венткамер 1, 2, 3 Сечения 1-1 - 10-10 Узлы 1 - 15 Схемы заполнения оконных проемов ОК1 - ОК15 Схемы заполнения оконных проемов ОК16, ОК17. Узлы А, Б Планы полов на 0.000; 3.600; 4.800 Схема расположения отверстий в стенах и перегородках Схемы расположения элементов подвесных потолков, ограждение компрессорной Конструкции железобетонные Общие данные Схема расположения фундаментов и фундаментных балок Узлы 1 - 8 Узлы 9 - 17 Узлы 18 - 21. Сечения 1-1 - 8-8 Узлы А, Б, В. Схемы сборки пространственных каркасов вертикального армирования подколонников Фундамент Фм1 Фундамент Фм2 Фундамент Фм3 Фундамент Фм4 Фундамент Фм5 Фундамент Фм6 Фундамент Фм7 Фундамент Фм8 Фундамент Фм9, Фм14 Фундамент Фм10 Фундамент Фм11 Фундамент Фм12 Фундамент Фм13 Сечения 9-9 - 13-13 Схема расположения элементов подземного хозяйства Общие указания к схеме расположения элементов подземного хозяйства Смотровая канава СК1. Планы на отм. 0.000; - 0.500 Смотровая канава СК1. Сечения 1-1 - 5-5. Узлы 1 - 4 Смотровая канава СК2. Планы. Сечения 6-6, 7-7. Узлы 5 - 8 Фундамент под окрасочную машину ФО1. Узлы 1, 2 Фундамент под окрасочную машину ФО1. Узлы 3 - 7 Фундаменты под оборудование ФО2 - ФО10 Фундамент под оборудование ФО11. Сечения 1-1 - 3-3. Узел 1 Фундаменты под оборудование ФО12, ФО13 Фундаменты ФО14 - ФО17 Подземное хозяйство. Фрагмент 1 План приямков трансформаторной подстанции Каналы 1 - 4 Каналы 5 - 12. Сечения 1-1 - 4-4 Сечения каналов 5-5 - 11-11. Узлы 1, 2, 3 Схемы расположения ферм, колонн, связей. Узлы А, Б, В Узлы Г, Д Схема расположения плит покрытия. Узел А Схема расположения плит покрытия. Фрагмент 1 Схемы расположения панелей стен по осям А и В, металлических стоек и насадок фахверков. Узел А Схемы расположения панелей стен по осям 4 и 9 Схемы расположения плит перекрытия на отм. 3.600; 4.800; 2.920 Конструкции металлические Общие данные Техническая спецификация металла Техническая спецификация металла на лестницы Схемы расположения элементов путей подвесных кранов Узлы 1 - 3 Схемы расположения балок и стоек перекрытий, связей покрытия, площадки на отм. 2.200 Лестницы Л1, Л2, Л3 Часть 2. Бытовые помещения Архитектурно-строительные решения Общие данные Спецификация элементов заполнения проемов. Фрагмент тамбура План кровли. Вентшахта, сечения Фасады В - Б; 3 - 1; 1 - 3. Разрез 1-1 Планы на отм. 0.000; 3.000 Планы полов. Схемы крепления перегородок Схемы расположения плит перекрытия, покрытия и козырька входа Схемы расположения панелей наружных стен Схемы расположения панелей внутренних стен Схемы расположения элементов лестниц и проступей Схема расположения элементов фундаментов и подземного хозяйства Схема расположения элементов лестницы ЛМ1 | Разработан: | Гипропромсельстрой
| Утверждён: | 17.08.1987 Гипропромсельстрой (356)
| Расположен в: |
|
                                                                                
|