| ||||||||||||||||||||||||
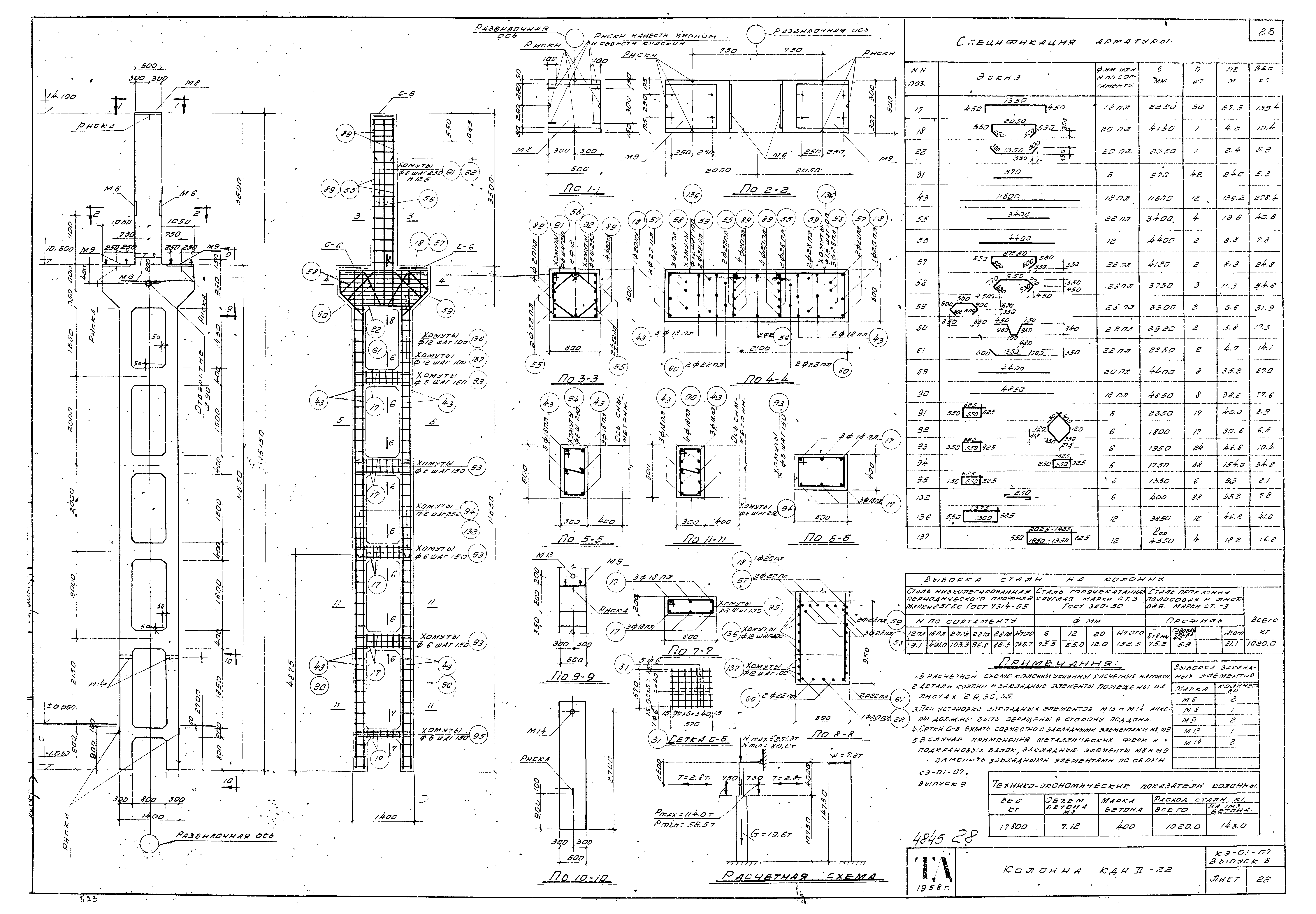
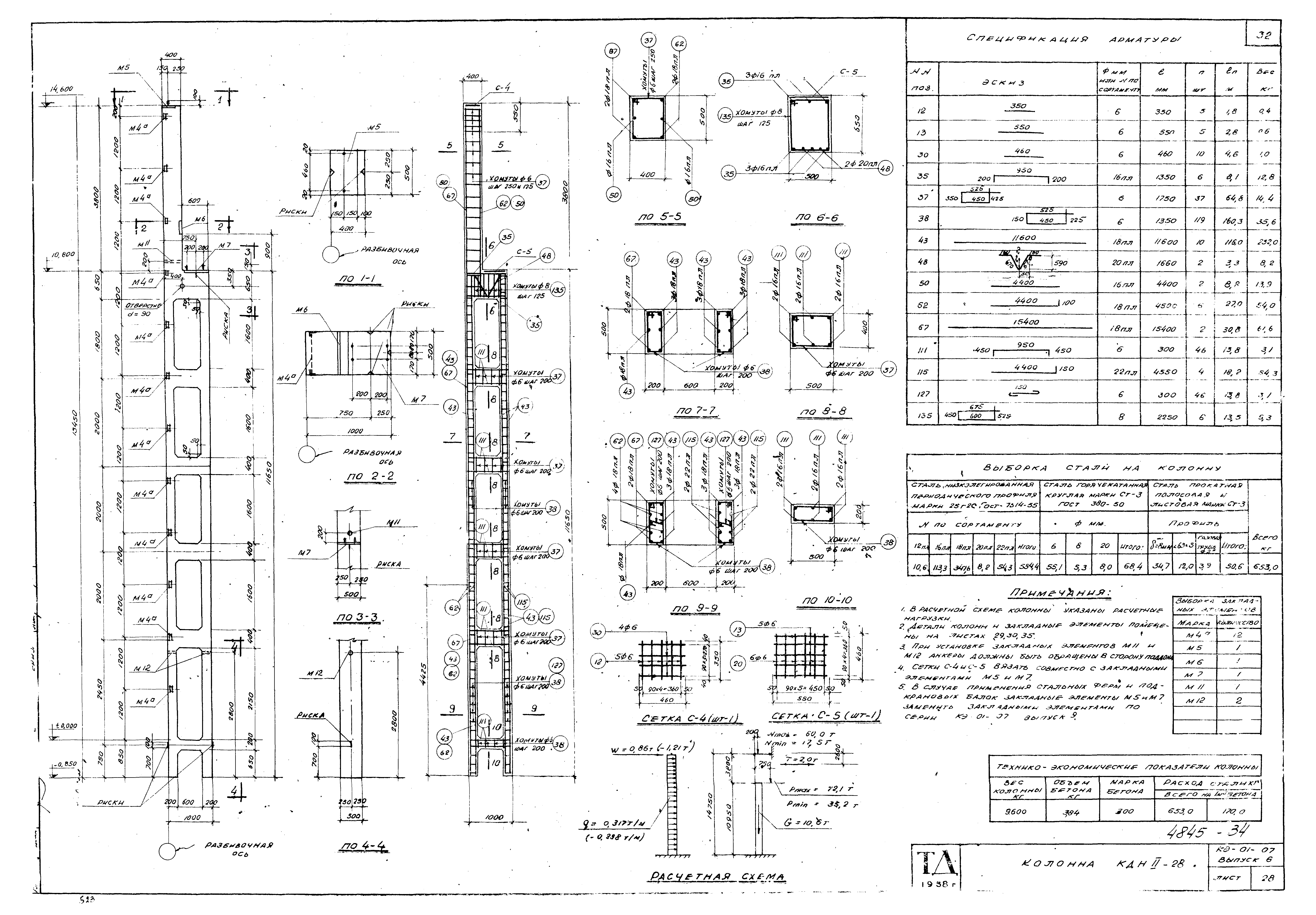
Скачать Серия КЭ-01-07 Выпуск 6. Колонны двухветвевые безраскосные с нагрузкой от кранов 10, 20 и 30 т с шагом для наружных рядов 6 м и для внутренних рядов 12 м при осуществлении нулевого цикла работ до монтажа конструкций (для 2-го географического района ветровой нагрузки)Дата актуализации: 10.08.2017
|
| Обозначение: | Серия КЭ-01-07 |
| Обозначение англ: | Series КЭ-01-07 |
| Статус: | действует |
| Название рус.: | Выпуск 6. Колонны двухветвевые безраскосные с нагрузкой от кранов 10, 20 и 30 т с шагом для наружных рядов 6 м и для внутренних рядов 12 м при осуществлении нулевого цикла работ до монтажа конструкций (для 2-го географического района ветровой нагрузки) |
| Дата добавления в базу: | 01.10.2014 |
| Дата актуализации: | 05.05.2017 |
| Оглавление: | Пояснительная записка Приложение №1 - таблица расходов материалов на колонны Колонны Закладные элементы для вертикальных связей в колоннах Ключ для подбора типовых колонн и нагрузки на фундаменты Детали сопряжения колонн с фундаментами Узлы сопряжения колонн с фермами (балками) покрытия. Схема замены закладных элементов при опирании на колонны стальных конструкций Примерный схематический план цеха с размещением вертикальных связей по колоннам Вертикальная связь по колоннам |
| Разработан: | Проектный институт № 1 Министерства строительства РСФСР |
| Утверждён: | 01.01.1958 Государственный комитет Совета Министров СССР по делам строительства |
| Расположен в: |



















































