Информационная система
«Ёшкин Кот»

Скачать базу одним архивом
Скачать обновления
История создания базы
Карта сайта

Скачать Типовой проект 904-1-85.90 Альбом 5. Архитектурные решения. Конструкции железобетонные. Конструкции металлические. Отопление и вентиляция. Внутренний водопровод и канализация

Дата актуализации: 10.08.2017

Типовой проект 904-1-85.90

Альбом 5. Архитектурные решения. Конструкции железобетонные. Конструкции металлические. Отопление и вентиляция. Внутренний водопровод и канализация

Обозначение: Типовой проект 904-1-85.90
Обозначение англ: 904-1-85.90
Статус:не определен законодательством
Название рус.:Альбом 5. Архитектурные решения. Конструкции железобетонные. Конструкции металлические. Отопление и вентиляция. Внутренний водопровод и канализация
Дата добавления в базу:01.10.2014
Дата актуализации:05.05.2017
Дата введения:18.09.1990
Оглавление:Содержание альбома
Архитектурные решения
   Общие данные
   План на отм. 0.000. Разрезы 1-1 - 4-4
   План на отм. 3.600. Узлы 1 - 14
   Фасады
   План полов. Узлы 15 - 19
   План кровли. План молниезащиты
Конструкции железобетонные
   Общие данные
   Схема расположения элементов фундаментов
   Фундаменты Фм1, Фм2
   Фундаменты Фм3 - Фм5
   Схема расположения элементов каркаса
   Схема расположения стеновых панелей
   Схема расположения подземных конструкций
   Схема расположения элементов каналов КН1, КН2
   Колодец К1
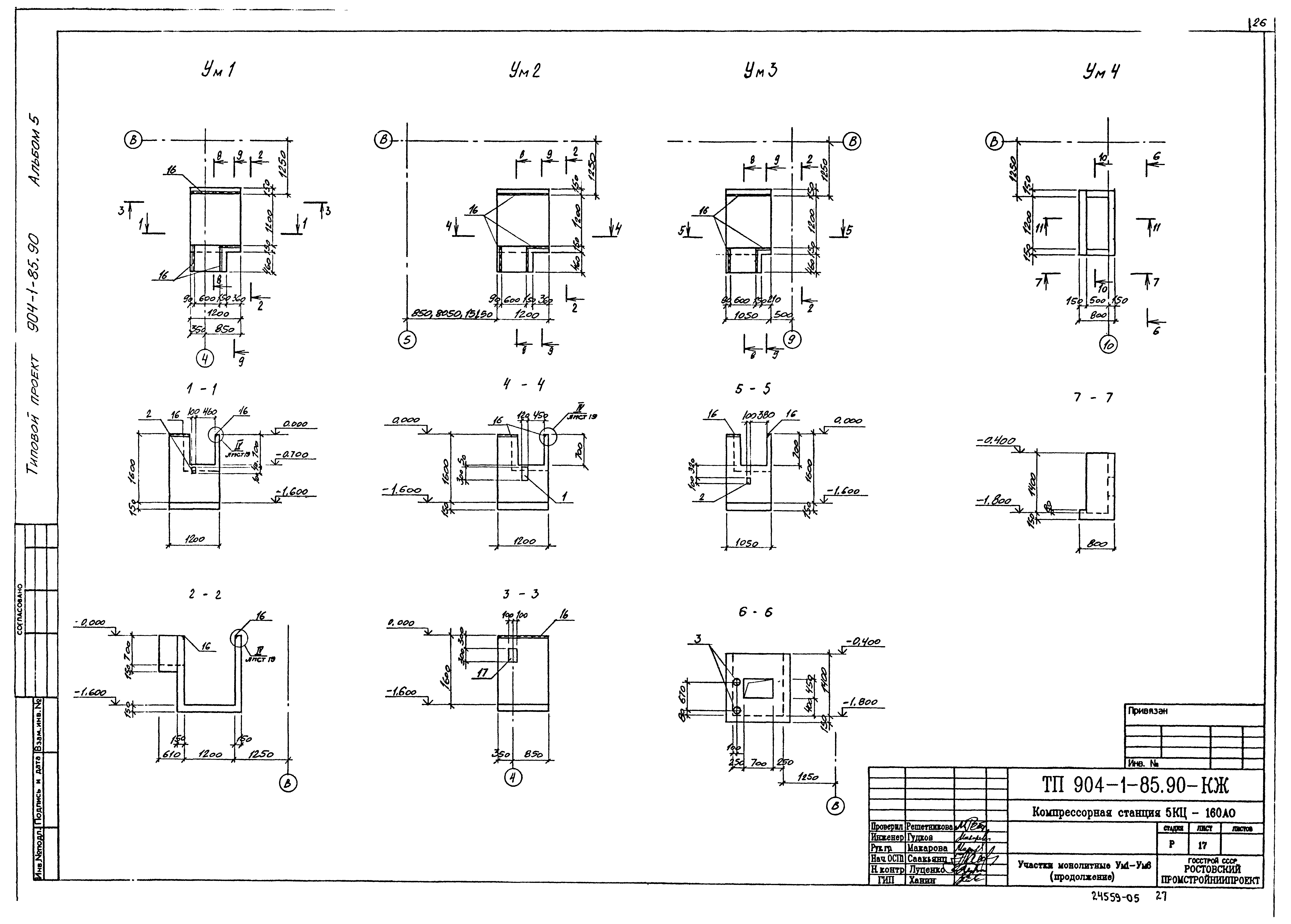
   Участки монолитные Ум1 - Ум6
   Плита монолитная Пм1
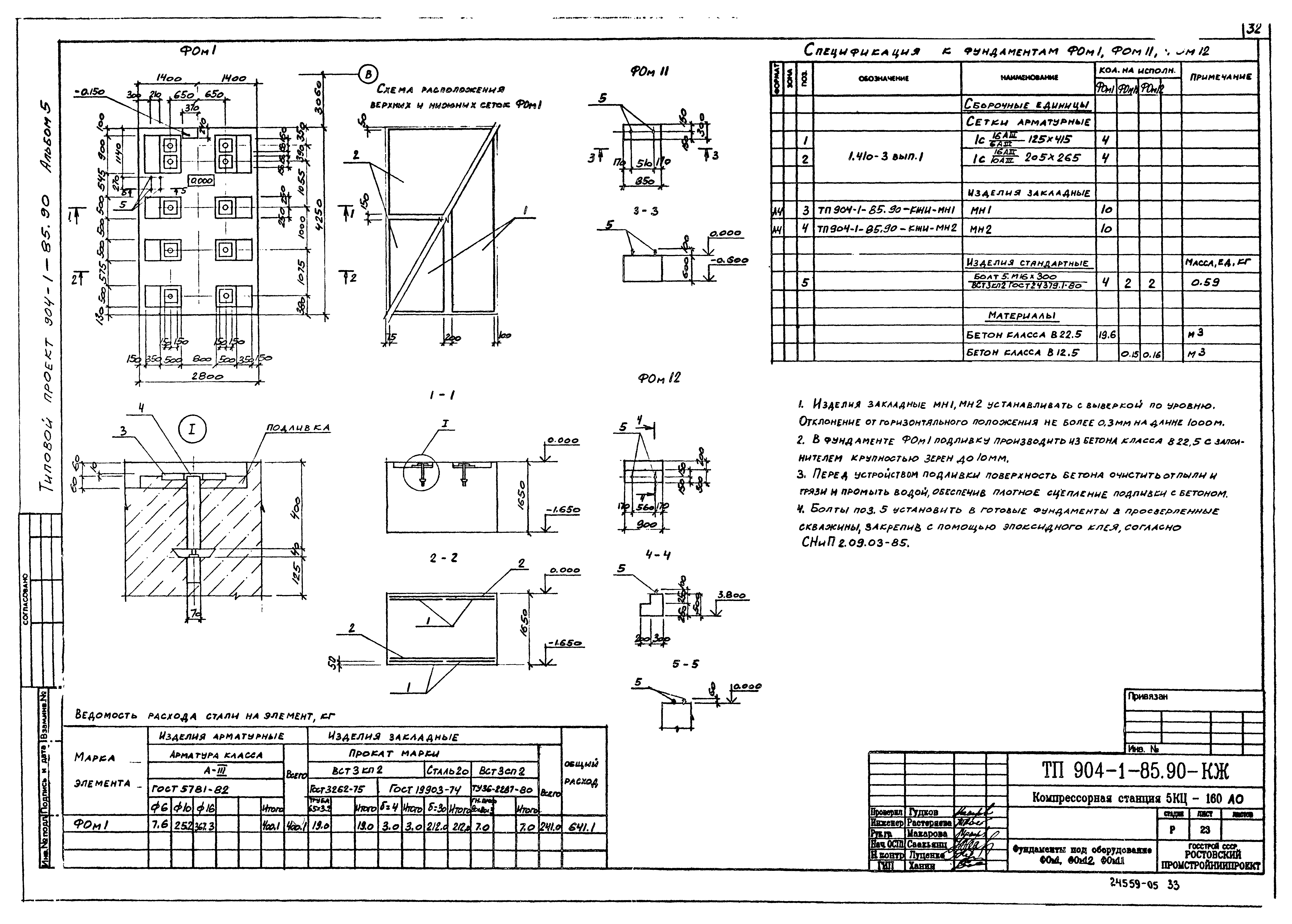
   Фундаменты под оборудование ФОм1, ФОм12, ФОм11
   Фундаменты под оборудование ФОм2 - ФОм10
Конструкции металлические
   Общие данные
   Техническая спецификация металла
   Техническая спецификация металла на лестницы
   Схемы расположения крановых путей и балок
   Схемы расположения площадок, лестниц и ограждения
   Схемы расположения перекрытия каналов, кронштейнов и опор
Отопление и вентиляция
   Общие данные
   План на отм. 0.000
   План на отм. 3.600. Разрез 1-1
   Схемы теплоснабжения. Схема системы отопления. Узел отопления
   Схемы систем воздуховодов П1, П2, В2 - В4, ВЕ1 - ВЕ2
   Установка систем П1, П2, В4
Внутренние водопровод и канализация
   Общие данные
   План на отм. 0.000; 3.600. Сечения 1-1 - 4-4
   Схемы систем В1, Т3, Т4, К1
   Схемы систем В4, В5, К13
   Установка пожарного крана сечением 50 мм в шкафу
   Шкаф для пожарного крана сечением 50 мм. Габаритный чертеж
Разработан: Гипрониистройдормаш
Ростовский Промстройниипроект
Утверждён:13.10.1989 Минстройдормаш (Minstroydormash 411)
Расположен в:Техническая документация Строительство Справочные документы Типовые строительные конструкции, изделия и узлы Общероссийский строительный каталог Промышленные предприятия, здания и сооружения Здания и сооружения санитарно-технические Воздухоснабжение, вентиляция и кондиционирование воздуха Воздухоснабжение
Типовой проект 904-1-85.90Типовой проект 904-1-85.90Типовой проект 904-1-85.90Типовой проект 904-1-85.90Типовой проект 904-1-85.90Типовой проект 904-1-85.90Типовой проект 904-1-85.90Типовой проект 904-1-85.90Типовой проект 904-1-85.90Типовой проект 904-1-85.90Типовой проект 904-1-85.90Типовой проект 904-1-85.90Типовой проект 904-1-85.90Типовой проект 904-1-85.90Типовой проект 904-1-85.90Типовой проект 904-1-85.90Типовой проект 904-1-85.90Типовой проект 904-1-85.90Типовой проект 904-1-85.90Типовой проект 904-1-85.90Типовой проект 904-1-85.90Типовой проект 904-1-85.90Типовой проект 904-1-85.90Типовой проект 904-1-85.90Типовой проект 904-1-85.90Типовой проект 904-1-85.90Типовой проект 904-1-85.90Типовой проект 904-1-85.90Типовой проект 904-1-85.90Типовой проект 904-1-85.90Типовой проект 904-1-85.90Типовой проект 904-1-85.90Типовой проект 904-1-85.90Типовой проект 904-1-85.90Типовой проект 904-1-85.90Типовой проект 904-1-85.90Типовой проект 904-1-85.90Типовой проект 904-1-85.90Типовой проект 904-1-85.90Типовой проект 904-1-85.90Типовой проект 904-1-85.90Типовой проект 904-1-85.90Типовой проект 904-1-85.90Типовой проект 904-1-85.90Типовой проект 904-1-85.90Типовой проект 904-1-85.90Типовой проект 904-1-85.90Типовой проект 904-1-85.90Типовой проект 904-1-85.90Типовой проект 904-1-85.90Типовой проект 904-1-85.90Типовой проект 904-1-85.90Типовой проект 904-1-85.90Типовой проект 904-1-85.90Типовой проект 904-1-85.90

© 2013 Ёшкин Кот :-) Карта сайта