Скачать Типовой проект 903-1-264.88 Альбом 7. Часть 2. Оборудование технологическое. Рабочие чертежи (из ТП 903-1-265.88)Дата актуализации: 10.08.2017 Типовой проект 903-1-264.88
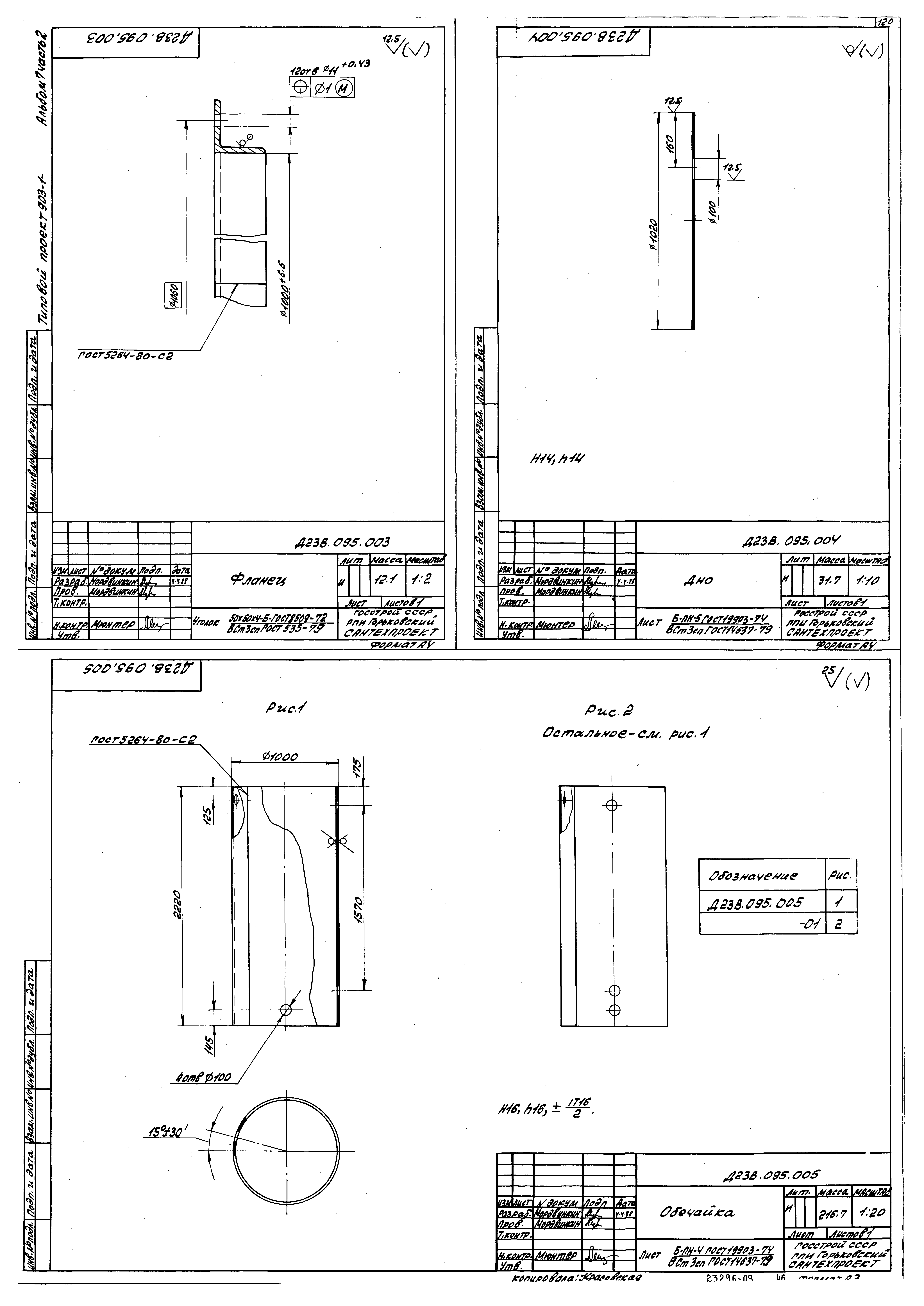
Альбом 7. Часть 2. Оборудование технологическое. Рабочие чертежи (из ТП 903-1-265.88)Обозначение: | Типовой проект 903-1-264.88 | Обозначение англ: | 903-1-264.88 | Статус: | не определен законодательством | Название рус.: | Альбом 7. Часть 2. Оборудование технологическое. Рабочие чертежи (из ТП 903-1-265.88) | Дата добавления в базу: | 01.10.2014 | Дата актуализации: | 05.05.2017 | Дата введения: | 07.07.1988 | Оглавление: | Д22Е.014.030СБ Шкаф Д22Е.014.021 Стенка Д22Е.014.029 Связь Д22Е.014.031 Стенка Д22Е.014.036 Косынка Д22Е.014.045 Связь Д22Е.014.048 Стенка Д22Е.014.049 Стенка Д22Е.014.051 Стенка Д22Е.014.052 Стенка Д22Е.015.001 Обечайка Д22Е.015.000 Шкаф аккумуляторный Д22Е.015.002 Крышка Д22Е.015.004 Фланец Д22Е.015.000СБ Шкаф аккумуляторный Д22Е.015.005 Подкладка Д22Е.015.006 Стойка Д22Е.016.000 Устройство задержания герметика Д22Е.016.000СБ Устройство задержания герметика Д22Е.018.002 Стойка Д22Е.018.000 Помост Д22Е.018.000СБ Помост Д22Е.018.003 Поручень Д22Е.018.004 Связь Д22Е.018.005 Стойка Д22Е.018.007 Настил Д22Е.018.008 Ступень Д22Е.019.000 Насадка сбросного устройства Д22Е.019.000СБ Насадка сбросного устройства Д22Е.019.001 Короб Д22Е.019.002 Ребро Д22Е.019.004 Рассекатель Д22Е.020.000 Тройник сбросного устройства Д22Е.020.000СБ Тройник сбросного устройства Д22Е.020.001 Труба Д22Е.020.002 Патрубок Д22Е.020.003 Заглушка Д23А.027.000 Смеситель воздуха Д23А.027.000СБ Смеситель воздуха Д23А.027.001 Прокладка Д23А.027.010 Переход Д23А.027.010СБ Переход Д23А.027.002 Конус Д23А.027.020 Корпус Д23А.027.020СБ Корпус Д23А.027.006 Диск Д23А.027.030 Разделитель Д23А.027.030СБ Разделитель Д23А.027.007 Стержень Д23Б.019.000 Приспособление для очистки калорифера Д23Б.019.000СБ Приспособление для очистки калорифера Д23Б.019.001 Сопло Д23Б.019.002 Патрубок Д23Б.019.003 Хомут Д23Б.019.004 Вкладыш Д23Б.019.005 Ниппель Д23Б.019.006 Трубка Д23Б.019.010 Смеситель Д23Б.019.010СБ Смеситель Д23Б.019.007 Трубка Д23Б.020.000 Устройство продувочное переносное Д23Б.020.000СБ Устройство продувочное переносное Д23Б.020.001 Гайка Д23Б.020.002 Ниппель Д23Б.020.003 Ушко Д23Б.021.000 Фильтр тонкой очистки мазута Д23Б.021.000СБ Фильтр тонкой очистки мазута Д23Б.021.010 Корпус Д23Б.021.010СБ Корпус Д23Б.021.004 Гильза Д23Б.021.005 Отросток Д23Б.021.020 Фильтр Д23Б.021.020СБ Фильтр Д23Б.021.011 Втулка Д23Б.021.012 Обечайка Д23Б.021.014 Втулка Д23Б.021.030 Патрубок Д23Б.021.030СБ Патрубок Д23Б.021.017 Фланец Д23В.092.000 Бак нижних точек Д23В.092.010 Бак Д23В.092.000СБ Бак нижних точек Д23В.092.001 Обечайка Д23В.092.010СБ Бак Д23В.092.003 Патрубок Д23В.092.020 Крышка бака Д23В.092.020СБ Крышка бака Д23В.092.009 Крышка Д23В.093.000 Бак-газоотделитель V = 2 куб. м Д23В.093.001 Прокладка Д23В.093.010 Крышка бака Д23В.093.000СБ Бак-газоотделитель V = 2 куб. м Д23В.093.010СБ Крышка бака Д23В.093.003 Крышка Д23В.093.004 Связь Д23В.093.020 Бак Д23В.093.008 Фланец Д23В.093.009 Фланец Д23В.093.020СБ Бак Д23В.093.013 Обечайка Д23В.093.014 Патрубок Д23В.093.015 Патрубок Д23В.093.016 Патрубок Д23В.093.017 Перемычка Д23В.093.018 Дно Д23В.094.000 Бак герметика V = 2 куб. м Д23В.094.000СБ Бак герметика V = 2 куб. м Д23В.094.010 Бак Д23В.094.001 Обечайка Д23В.094.002 Дно Д23В.095.000 Бак свежего раствора соли V = 1,5 куб. м Д23В.094.010СБ Бак Д23В.095.000СБ Бак свежего раствора соли V = 1,5 куб. м Д23В.095.001 Фланец Д23В.095.002 Прокладка Д23В.095.010 Бак Д23В.095.010СБ Бак Д23В.095.003 Фланец Д23В.095.004 Дно Д23В.095.005 Обечайка Д23В.095.006 Отвод Д23В.095.020 Отвод Д23В.095.020СБ Отвод Д23В.095.030 Крышка Д23В.095.030СБ Крышка Д23В.095.007 Крышка Д23В.096.000 Бак повторного использования соли V = 1,5 куб. м Д23В.097.000 Бак взрыхления фильтров Ф 700 мм V = 1,5 куб. м Д23В.097.010 Люк Д23В.096.000СБ Бак повторного использования соли V = 1,5 куб. м Д23В.097.000СБ Бак взрыхления фильтров Ф 700 мм V = 1,5 куб. м Д23В.097.001 Крышка Д23В.097.002 Ручка Д23В.097.010СБ Люк Д23В.097.003 Фланец Д23В.097.004 Кронштейн Д23В.097.005 Проушина Д23В.097.006 Ось Д23В.097.007 Прокладка Д23В.097.008 Патрубок Д23В.097.011 Цилиндр Д23В.097.020 Бак Д23В.097.020СБ Бак Д23В.097.012 Дно Д23В.097.013 Крышка Д23В.098.001 Обечайка Д23В.098.000 Бак взрыхления фильтра Ф 1000 V = 4 куб. м Д23В.098.000СБ Бак взрыхления фильтра Ф 1000 V = 4 куб. м Д23В.098.004 Дно Д23В.098.005 Крышка Д23В.099.000 Бак разрыва струи V = 0,5 куб. м Д23В.099.000СБ Бак разрыва струи V = 0,5 куб. м Д23В.099.002 Ось Д23В.099.003 Прокладка Д23В.099.010 Бак Д23В.099.010СБ Бак Д23В.099.004 Корпус Д23В.099.005 Патрубок Д23В.099.006 Труба Д23В.099.007 Дно Д23В.099.009 Фланец Д23В.099.012 Патрубок Д23В.099.013 Проушина Д23В.099.020 Крышка Д23В.099.020СБ Крышка Д23В.099.015 Крышка Д23В.099.030 Клапан поплавковый Д23В.099.016 Петля Д23В.099.017 Втулка Д23В.099.030СБ Клапан поплавковый Д23В.099.018 Поршень Д23В.099.019 Клапан Д23В.099.021 Втулка Д23В.099.024 Рычаг Д23В.099.023 Отражатель Д23В.099.025 Шток Д23В.099.026 Бобышка Д23В.099.027 Пробка Д23В.099.028 Серьга Д23В.099.032 Патрубок Д23В.099.040 Корпус клапана Д23В.099.040СБ Корпус клапана Д23В.099.033 Корпус Д23В.099.034 Ушко Д23В.099.050 Поплавок Д23В.099.050СБ Поплавок Д23В.099.035 Обечайка Д23В.099.037 Крышка Д23В.099.039 Бобышка Д23В.099.041 Муфта Д23В.099.042 Воронка Д23В.099.060 Воронка Д23В.099.060СБ Воронка Д23В.099.043 Труба Д23В.099.044 Труба Д23Д.487.000 Опора экономайзера ЭП2-142 Д23Д.487.010 Опора Д23Д.487.020 Крышка Д23Д.487.000СБ Опора экономайзера ЭП2-142 Д23Д.487.010СБ Опора Д23Д.487.007 Укосина Д23Д.487.008 Стенка Д23Д.487.012 Стенка Д23Д.487.014 Стенка | Разработан: | Горьковский Сантехпроект
| Утверждён: | 07.07.1988 Госстрой СССР (Государственный комитет Совета Министров СССР по делам строительства) (USSR Gosstroy 44)
| Издан: | ЦИТП Госстроя СССР (CITP, Gosstroy (USSR) 1989 г. )
| Расположен в: |
|
                                                                           
|