Информационная система
«Ёшкин Кот»

Скачать базу одним архивом
Скачать обновления
История создания базы
Карта сайта

Скачать Типовой проект 704-1-54 Альбом II. Рабочие чертежи КМ понтона

Дата актуализации: 10.08.2017

Типовой проект 704-1-54

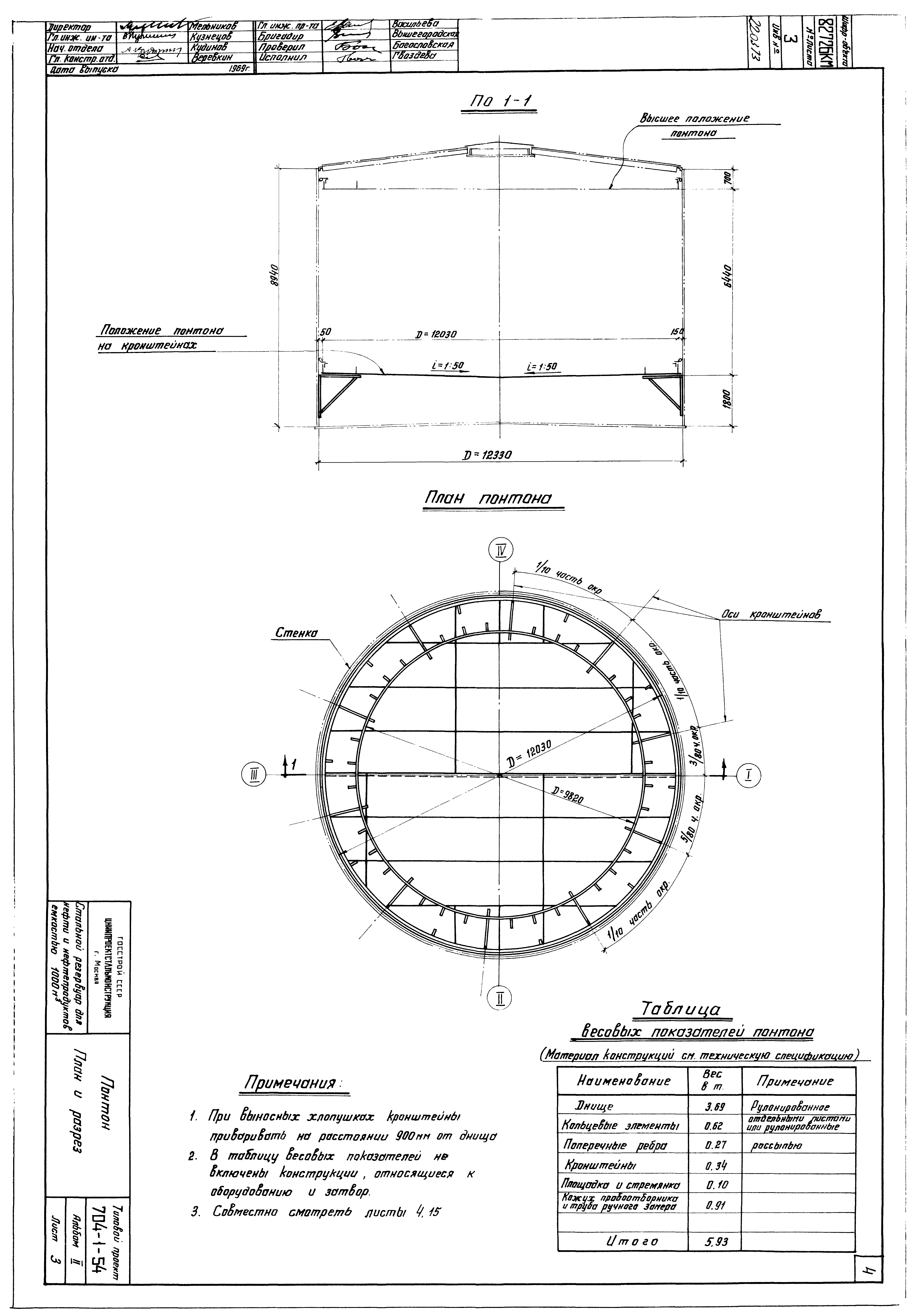
Альбом II. Рабочие чертежи КМ понтона

Обозначение: Типовой проект 704-1-54
Обозначение англ: 704-1-54
Статус:действует
Название рус.:Альбом II. Рабочие чертежи КМ понтона
Дата добавления в базу:01.10.2014
Дата актуализации:05.05.2017
Оглавление:Содержание альбома и пояснительная записка
Техническая спецификация стали и материалов на понтон
Понтон. План и разрез
Понтон. Детали
Кронштейн
Площадка и стремянка у люка-лаза во II поясе стенки
Люк пробоотборника в I поясе стенки Dy250
Люк-лаз во II поясе стенки Dy500
Патрубок в понтоне для УДУ, Dy500
Патрубок в понтоне для кожуха пробоотборника и труба ручного замера, Dy350
Патрубок огневых предохранителей Dy200; Dy250
Кожух пробоотборника Dy200
Труба ручного замера Dy200
Петлевой затвор
Понтон. Днище
Разработан: ЦНИИпроектстальконструкция
Утверждён:25.12.1969 ЦНИИпроектстальконструкция (TsNIIprojectstalkonstruktsiya 221)
Расположен в:Техническая документация Строительство Справочные документы Типовые строительные конструкции, изделия и узлы Общероссийский строительный каталог Промышленные предприятия, здания и сооружения Предприятия, здания и сооружения складские Резервуары и склады для нефти и нефтепродуктов Резервуары стальные для нефти и нефтепродуктов
Типовой проект 704-1-54Типовой проект 704-1-54Типовой проект 704-1-54Типовой проект 704-1-54Типовой проект 704-1-54Типовой проект 704-1-54Типовой проект 704-1-54Типовой проект 704-1-54Типовой проект 704-1-54Типовой проект 704-1-54Типовой проект 704-1-54Типовой проект 704-1-54Типовой проект 704-1-54Типовой проект 704-1-54Типовой проект 704-1-54Типовой проект 704-1-54Типовой проект 704-1-54

© 2013 Ёшкин Кот :-) Карта сайта