Информационная система
«Ёшкин Кот»

Скачать базу одним архивом
Скачать обновления
История создания базы
Карта сайта

Скачать Типовой проект 503-1-65.87 Альбом V. Чертежи индустриальных строительных конструкций и изделий

Дата актуализации: 10.08.2017

Типовой проект 503-1-65.87

Альбом V. Чертежи индустриальных строительных конструкций и изделий

Обозначение: Типовой проект 503-1-65.87
Обозначение англ: 503-1-65.87
Статус:действует
Название рус.:Альбом V. Чертежи индустриальных строительных конструкций и изделий
Дата добавления в базу:01.10.2014
Дата актуализации:05.05.2017
Оглавление:Содержание альбома
Технические требования
Колонна
Панель стеновая
Плита
Плита перекрытия
Балка
Решетка
Съемные щиты
Щит
Жалюзийная решетка
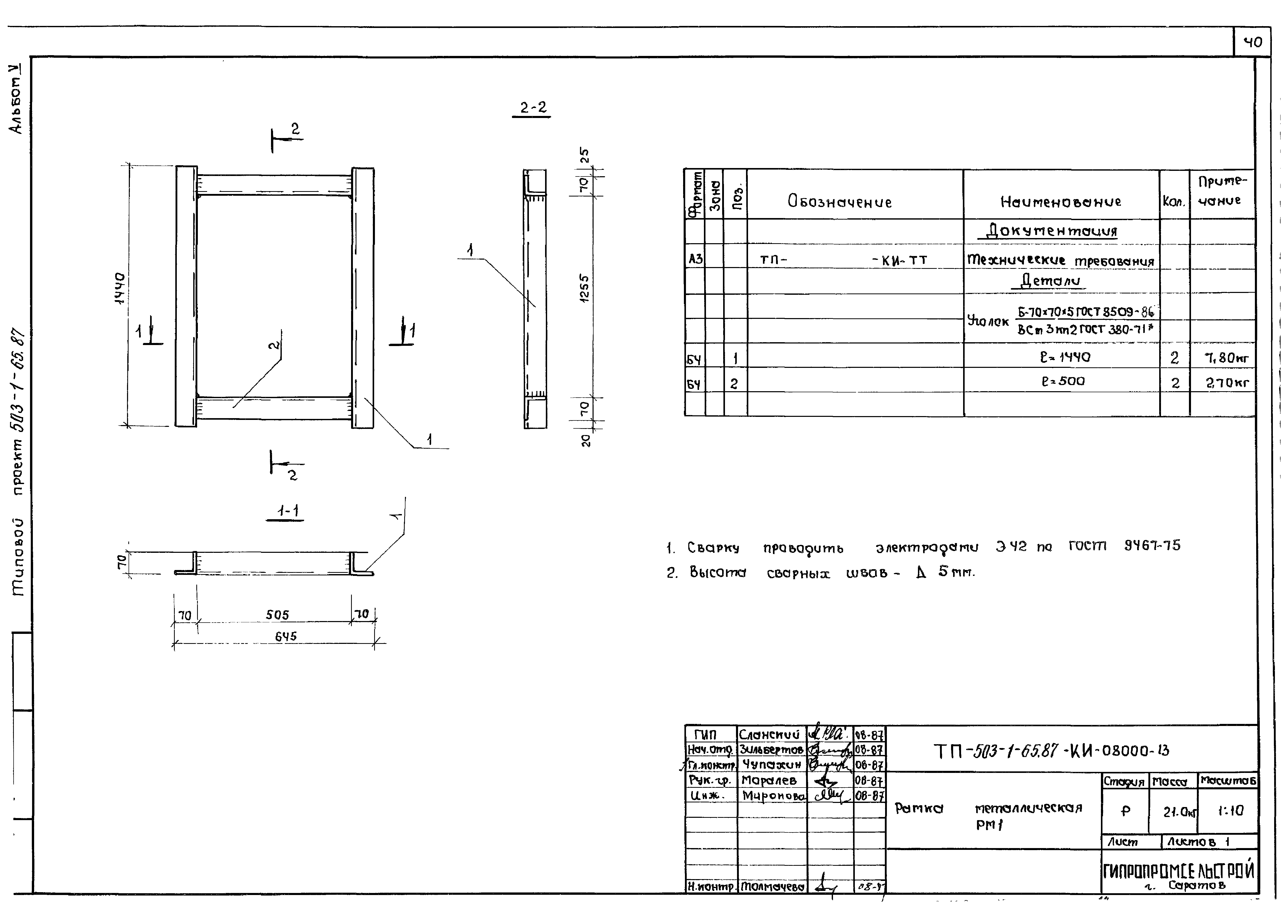
Рамка металлическая
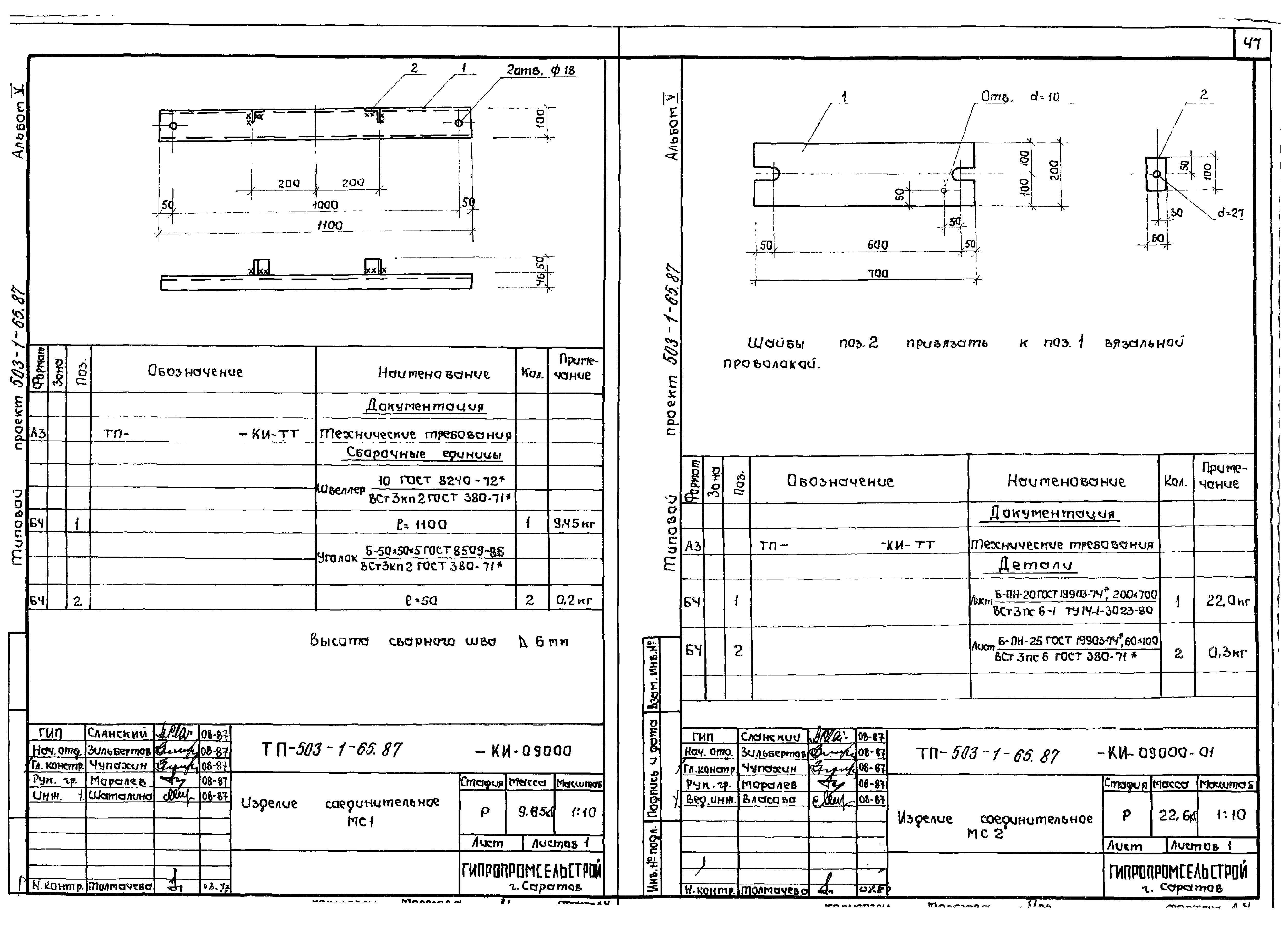
Изделие соединительное
Изделие закладное
Каркас пространственный
Сетка арматурная
Разработан: Гипропромсельстрой
Утверждён:12.09.1985 Госкомсельхозтехника СССР (43-85)
Расположен в:Техническая документация Строительство Справочные документы Типовые строительные конструкции, изделия и узлы Общероссийский строительный каталог Промышленные предприятия, здания и сооружения Предприятия, здания и сооружения транспорта Транспорт автомобильный Предприятия автотранспортные, гаражи и стоянки для грузовых автомобилей и механизмов
Типовой проект 503-1-65.87Типовой проект 503-1-65.87Типовой проект 503-1-65.87Типовой проект 503-1-65.87Типовой проект 503-1-65.87Типовой проект 503-1-65.87Типовой проект 503-1-65.87Типовой проект 503-1-65.87Типовой проект 503-1-65.87Типовой проект 503-1-65.87Типовой проект 503-1-65.87Типовой проект 503-1-65.87Типовой проект 503-1-65.87Типовой проект 503-1-65.87Типовой проект 503-1-65.87Типовой проект 503-1-65.87Типовой проект 503-1-65.87Типовой проект 503-1-65.87Типовой проект 503-1-65.87Типовой проект 503-1-65.87Типовой проект 503-1-65.87Типовой проект 503-1-65.87Типовой проект 503-1-65.87Типовой проект 503-1-65.87Типовой проект 503-1-65.87Типовой проект 503-1-65.87Типовой проект 503-1-65.87Типовой проект 503-1-65.87Типовой проект 503-1-65.87Типовой проект 503-1-65.87Типовой проект 503-1-65.87Типовой проект 503-1-65.87Типовой проект 503-1-65.87Типовой проект 503-1-65.87Типовой проект 503-1-65.87Типовой проект 503-1-65.87Типовой проект 503-1-65.87Типовой проект 503-1-65.87Типовой проект 503-1-65.87Типовой проект 503-1-65.87Типовой проект 503-1-65.87Типовой проект 503-1-65.87Типовой проект 503-1-65.87Типовой проект 503-1-65.87Типовой проект 503-1-65.87Типовой проект 503-1-65.87Типовой проект 503-1-65.87Типовой проект 503-1-65.87Типовой проект 503-1-65.87Типовой проект 503-1-65.87Типовой проект 503-1-65.87

© 2013 Ёшкин Кот :-) Карта сайта