Информационная система
«Ёшкин Кот»

Скачать базу одним архивом
Скачать обновления
История создания базы
Карта сайта

Скачать ГОСТ IEC 61034-1-2011 Измерение плотности дыма при горении кабелей в заданных условиях. Часть 1. Испытательное оборудование

Дата актуализации: 10.08.2017

ГОСТ IEC 61034-1-2011

Измерение плотности дыма при горении кабелей в заданных условиях. Часть 1. Испытательное оборудование

Обозначение: ГОСТ IEC 61034-1-2011
Обозначение англ: 61034-1-2011
Статус:введен впервые
Название рус.:Измерение плотности дыма при горении кабелей в заданных условиях. Часть 1. Испытательное оборудование
Название англ.:Measurement of smoke density of cables burning under defined conditions. Part 1. Test apparatus
Дата добавления в базу:01.10.2014
Дата актуализации:05.05.2017
Дата введения:01.01.2013
Область применения:Стандарт устанавливает требования к испытательному оборудованию, используемому для измерения дымовыделения электрических или оптических кабелей при их горении в определенных условиях, например, при горении нескольких кабелей в горизонтальном положении. Светопроницаемость в условиях горения и тления может быть использована для сравнения различных кабелей или проверки соответствия установленным требованиям.
Оглавление:1 Область применения
2 Нормативные ссылки
3 Термины и определения
4 Испытательная камера
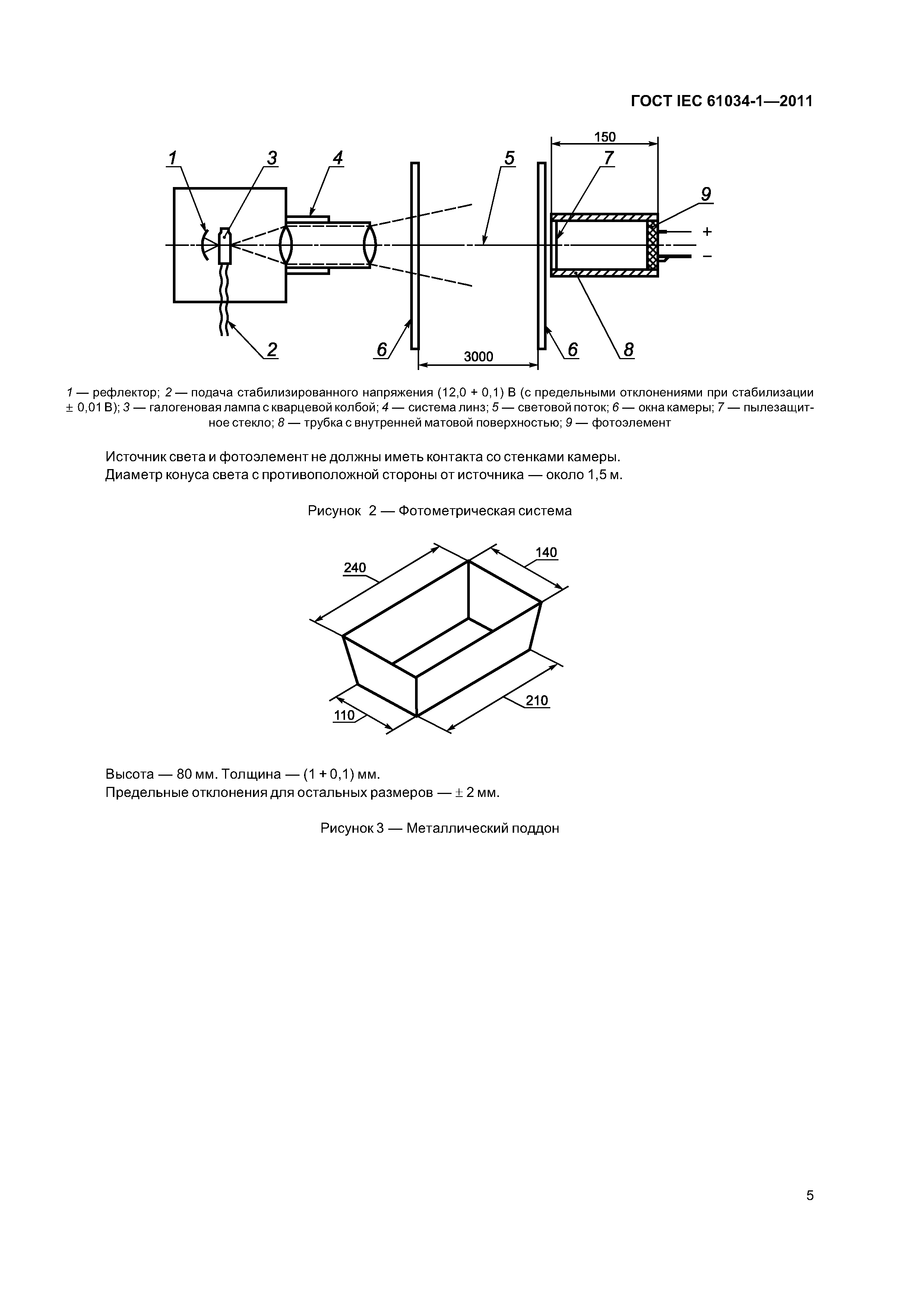
5 Фотометрическая система
6 Стандартный источник пламени
7 Перемешивание дыма
8 Подготовительная процедура
   8.1 Цель
   8.2 Проведение процедуры
9 Проверка испытательного оборудования
10 Квалификационное испытание на горение
   10.1 Цель
   10.2 Подготовка камеры
   10.3 Проверка источников пламени
   10.4 Проведение испытания
   10.5 Проведение вычислений
   10.6 Требования
Приложение А (справочное) Руководство по проведению испытания
Приложение ДА (справочное) Сведения о соответствии межгосударственных стандартов ссылочным международным стандартам
Библиография
Разработан: ФГУП ВНИИНМАШ
Утверждён:29.11.2011 Межгосударственный Совет по стандартизации, метрологии и сертификации (Inter-Governmental Council on Standardization, Metrology, and Certification 40)
13.12.2011 Федеральное агентство по техническому регулированию и метрологии (1454-ст)
Издан: Стандартинформ (2014 г. )
Расположен в:Техническая документация Электроэнергия ЭЛЕКТРОТЕХНИКА Электрические провода и кабели Кабели Электротехника в целом ОХРАНА ОКРУЖАЮЩЕЙ СРЕДЫ, ЗАЩИТА ЧЕЛОВЕКА ОТ ВОЗДЕЙСТВИЯ ОКРУЖАЮЩЕЙ СРЕДЫ. БЕЗОПАСНОСТЬ Защита от пожаров Воспламеняемость, поведение материалов и продуктов при горении Экология ЭЛЕКТРОТЕХНИКА Электрические провода и кабели Кабели Электротехника в целом ОХРАНА ОКРУЖАЮЩЕЙ СРЕДЫ, ЗАЩИТА ЧЕЛОВЕКА ОТ ВОЗДЕЙСТВИЯ ОКРУЖАЮЩЕЙ СРЕДЫ. БЕЗОПАСНОСТЬ Защита от пожаров Воспламеняемость, поведение материалов и продуктов при горении Строительство Стандарты Другие государственные стандарты, применяемые в строительстве Электротехника Охрана окружающей среды, защита человека от воздействия окружающей среды. Безопасность
Список изменений:
ГОСТ IEC 61034-1-2011ГОСТ IEC 61034-1-2011ГОСТ IEC 61034-1-2011ГОСТ IEC 61034-1-2011ГОСТ IEC 61034-1-2011ГОСТ IEC 61034-1-2011ГОСТ IEC 61034-1-2011ГОСТ IEC 61034-1-2011ГОСТ IEC 61034-1-2011ГОСТ IEC 61034-1-2011ГОСТ IEC 61034-1-2011ГОСТ IEC 61034-1-2011ГОСТ IEC 61034-1-2011ГОСТ IEC 61034-1-2011

Текстовое изменение Поправка от 28.04.2015

Поправка

Текстовое изменение Поправка от 06.06.2015

Поправка

© 2013 Ёшкин Кот :-) Карта сайта