Скачать Типовой проект 901-2-62 Альбом II. Электрооборудование, автоматика и технологический контроль. Чертежи монтажной зоныДата актуализации: 10.08.2017 Типовой проект 901-2-62
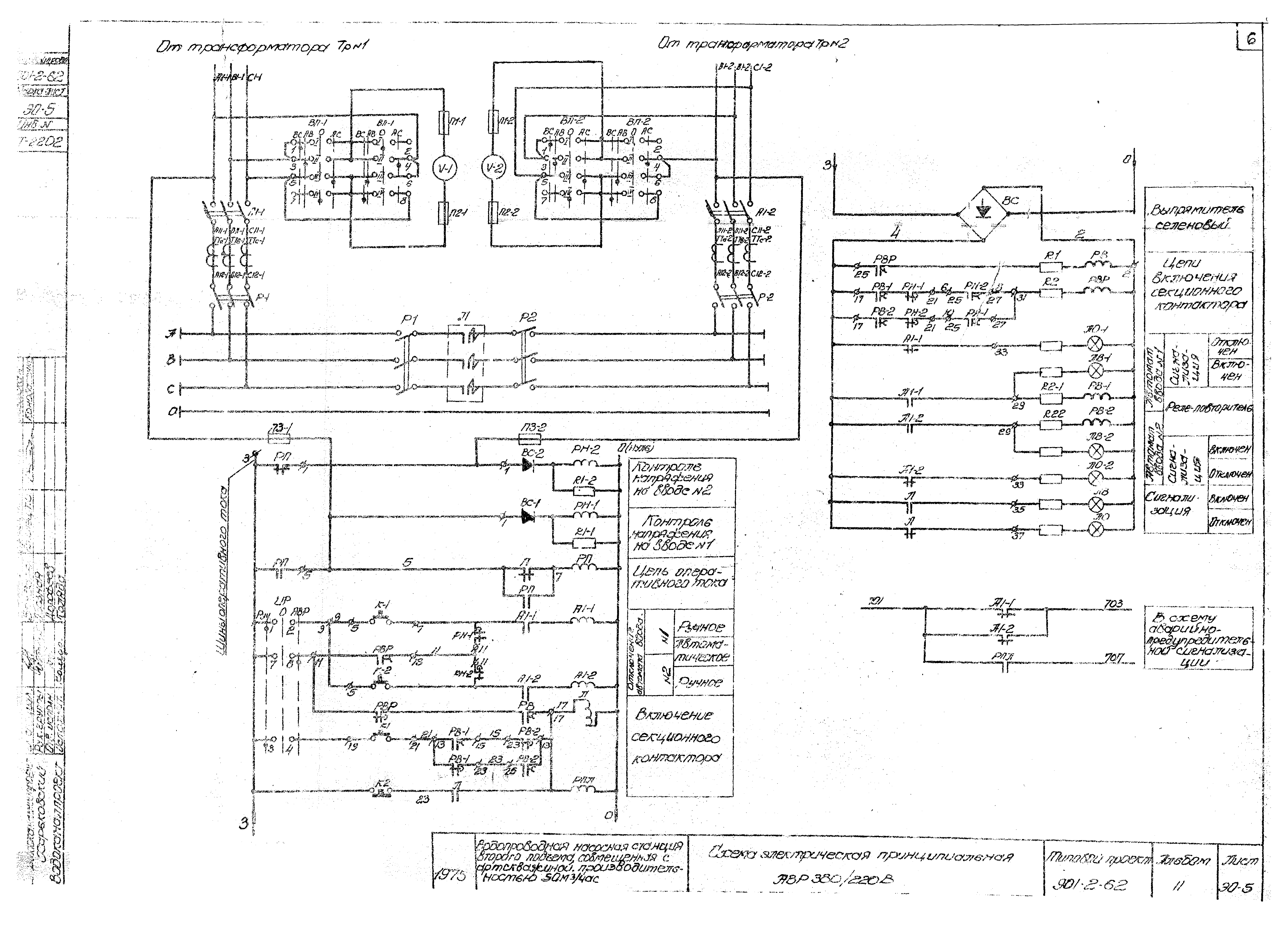
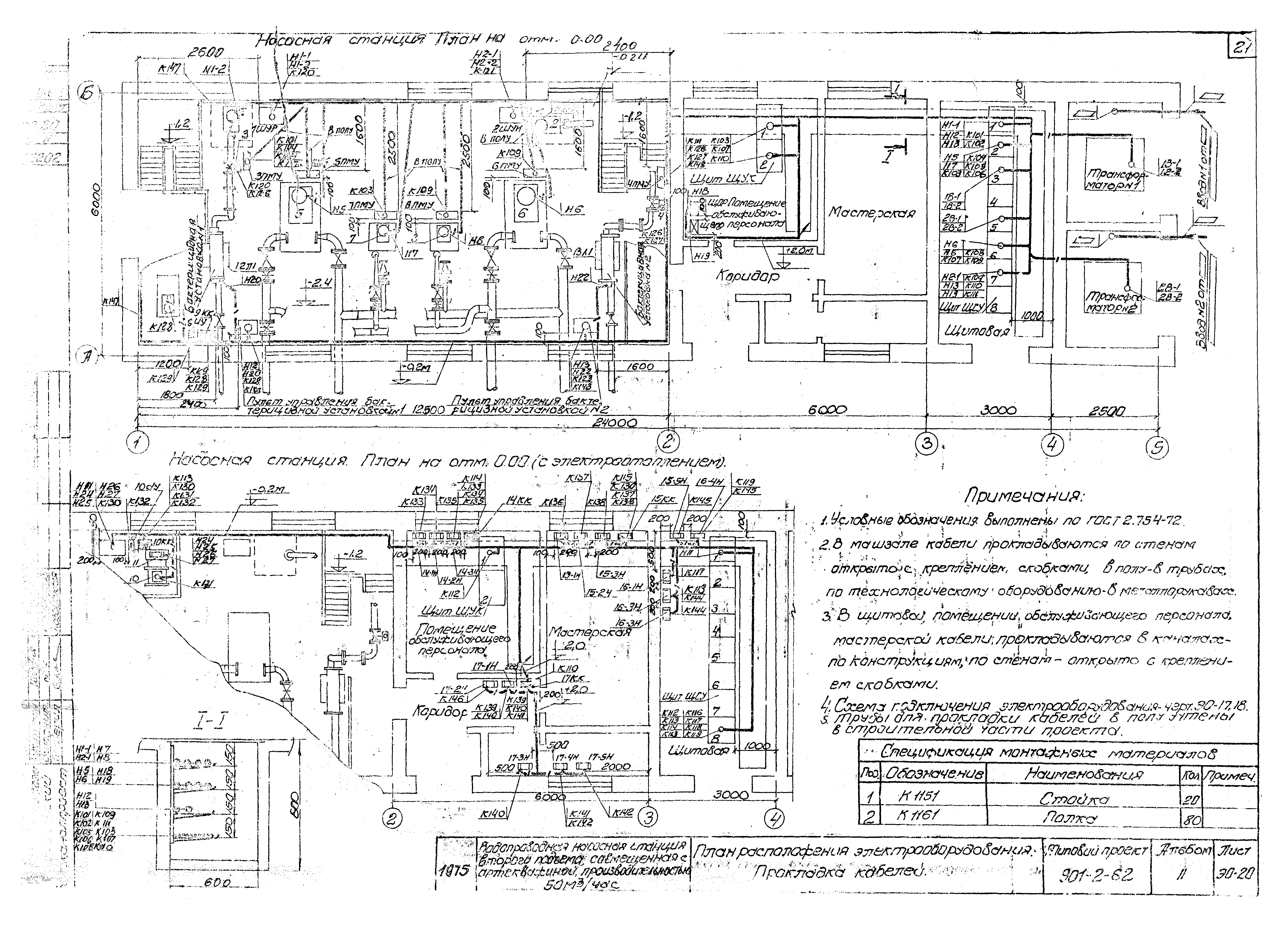
Альбом II. Электрооборудование, автоматика и технологический контроль. Чертежи монтажной зоныОбозначение: | Типовой проект 901-2-62 | Обозначение англ: | 901-2-62 | Статус: | действует | Название рус.: | Альбом II. Электрооборудование, автоматика и технологический контроль. Чертежи монтажной зоны | Дата добавления в базу: | 01.10.2014 | Дата актуализации: | 05.05.2017 | Оглавление: | Раздел I. Силовое электрооборудование и автоматизация Заглавный лист. Содержание раздела I Пояснительная записка Схема электрическая принципиальная однолинейная подстанции 10,4 кВ и распределительной сети 380/220 В Схема электрическая принципиальная АВР 380/220 В Схема электрическая принципиальная управления погружным насосом Схема электрическая принципиальная управления бактерицидной установкой Схема электрическая принципиальная управления напорной задвижкой с электроприводом Схема электрическая принципиальная управления хозпитьевыми пожарными насосами Схема электрическая принципиальная управления дренажным насосом Схема электрическая принципиальная управления калорифером и приточным вентилятором Схема электрическая принципиальная управления электроотоплением Схема электрическая принципиальная аварийно-предупредительной сигнализации Схема подключения электрооборудования Схема подключения электрооборудования (для варианта с электроотоплением) План расположения электрооборудования. Прокладка кабелей Кабельный журнал Пост местного управления насосом 5ПМУ(6ПМУ - 8ПМУ). Общий вид. Схема соединений Пост местного управления задвижкой 3ПМУ(4ПМУ). Общий вид. Схема соединений Электроосвещение Заземление Раздел II. Технологический контроль Содержание раздела II Схема функциональная Схема функциональная (для варианта с электроотоплением). Схема электрическая принципиальная питания приборов Схема электрическая принципиальная измерения давления. Схема электрическая принципиальная измерения расхода Схема подключения электрических и трубных проводок Схема подключения электрических и трубных проводок (вариант с электроотоплением). Схема подключения электрических трубных проводок. Монтажный чертеж (вариант с электроотоплением) Схема подключения электрических и трубных проводок. Монтажный чертеж Установка датчиков уровня в дренажном приямке и машзале. Установка реле давления и манометра | Разработан: | Харьковский Водоканалпроект
| Утверждён: | 26.05.1975 СоюзводоканалНИИпроект (SoyuzvodokanalNIIproject 111)
| Расположен в: |
|
                                 
|