Скачать Типовой проект 901-1-30 Альбом III/3. Строительная часть (глубина подземной части 19 и 21 м)Дата актуализации: 10.08.2017 Типовой проект 901-1-30
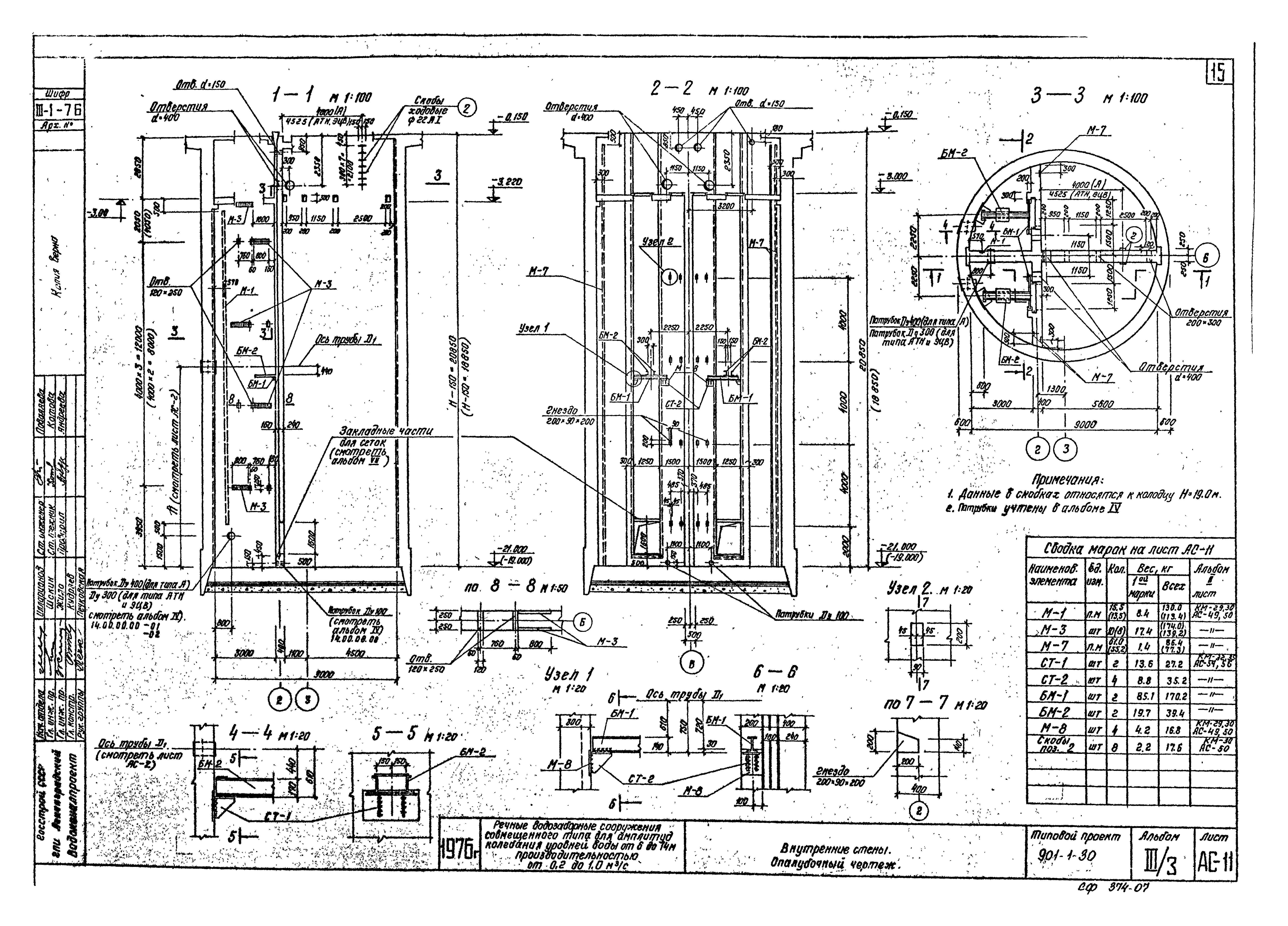
Альбом III/3. Строительная часть (глубина подземной части 19 и 21 м)Обозначение: | Типовой проект 901-1-30 | Обозначение англ: | 901-1-30 | Статус: | заменен | Название рус.: | Альбом III/3. Строительная часть (глубина подземной части 19 и 21 м) | Дата добавления в базу: | 01.10.2014 | Дата актуализации: | 05.05.2017 | Дата введения: | 01.11.1988 | Оглавление: | Содержание альбома Пояснительная записка Опускной колодец. Расчетные схемы Опускной колодец. Опалубочный чертеж Опускной колодец. Арматурный чертеж. План 1-1. Разрез 2-2 Опускной колодец. Арматурный чертеж. Раскладка внутренних, наружных сеток и каркасов. Арматура у патрубков Опускной колодец. Арматурный чертеж. Каркасы К-1, 2, 3, 4, 5 Опускной колодец при Н = 19 м. Арматурный чертеж. Спецификация арматуры к листам АС-2, 3, 4, 5 Опускной колодец при Н = 21 м. Арматурный чертеж. Спецификация арматуры к листам АС-2, 3, 4, 5 Днище. Опалубочный чертеж Днище. Арматурный чертеж №1 Днище. Арматурный чертеж №2 Внутренние стены. Опалубочный чертеж Внутренние стены. Арматурный чертеж №1 Внутренние стены. Арматурный чертеж №2 | Разработан: | Ленинградский Водоканалпроект
| Утверждён: | 12.05.1978 СоюзводоканалНИИпроект (SoyuzvodokanalNIIproject 137)
| Расположен в: |
| Чем заменён: | |
               
|