Информационная система
«Ёшкин Кот»

Скачать базу одним архивом
Скачать обновления
История создания базы
Карта сайта

Скачать Типовой проект 272-12-73.86 Альбом I. Архитектурно-строительные решения. Витражи. Технология. Механизация

Дата актуализации: 10.08.2017

Типовой проект 272-12-73.86

Альбом I. Архитектурно-строительные решения. Витражи. Технология. Механизация

Обозначение: Типовой проект 272-12-73.86
Обозначение англ: 272-12-73.86
Статус:не определен законодательством
Название рус.:Альбом I. Архитектурно-строительные решения. Витражи. Технология. Механизация
Дата добавления в базу:01.10.2014
Дата актуализации:05.05.2017
Дата введения:30.01.1986
Оглавление:Чертежи основного комплекта марки АС1
   Общие данные
   План 1 этажа между осями А - Д
   План 1 этажа между осями Д - Н
   План 2 этажа между осями А - Д
   План 2 этажа между осями Д - Н
   План технического этажа
   Вариант плана 1 этажа с увеличением площади торгового зала
   Фасады 1 - 9; 9 - 1
   Фасады А - Л; Л - А
   Разрезы 1-1, 2-2
   План крыши
   Тамбуры 1, 2
   Витрины 1, 2
   Фрагменты планов 1, 2, 3
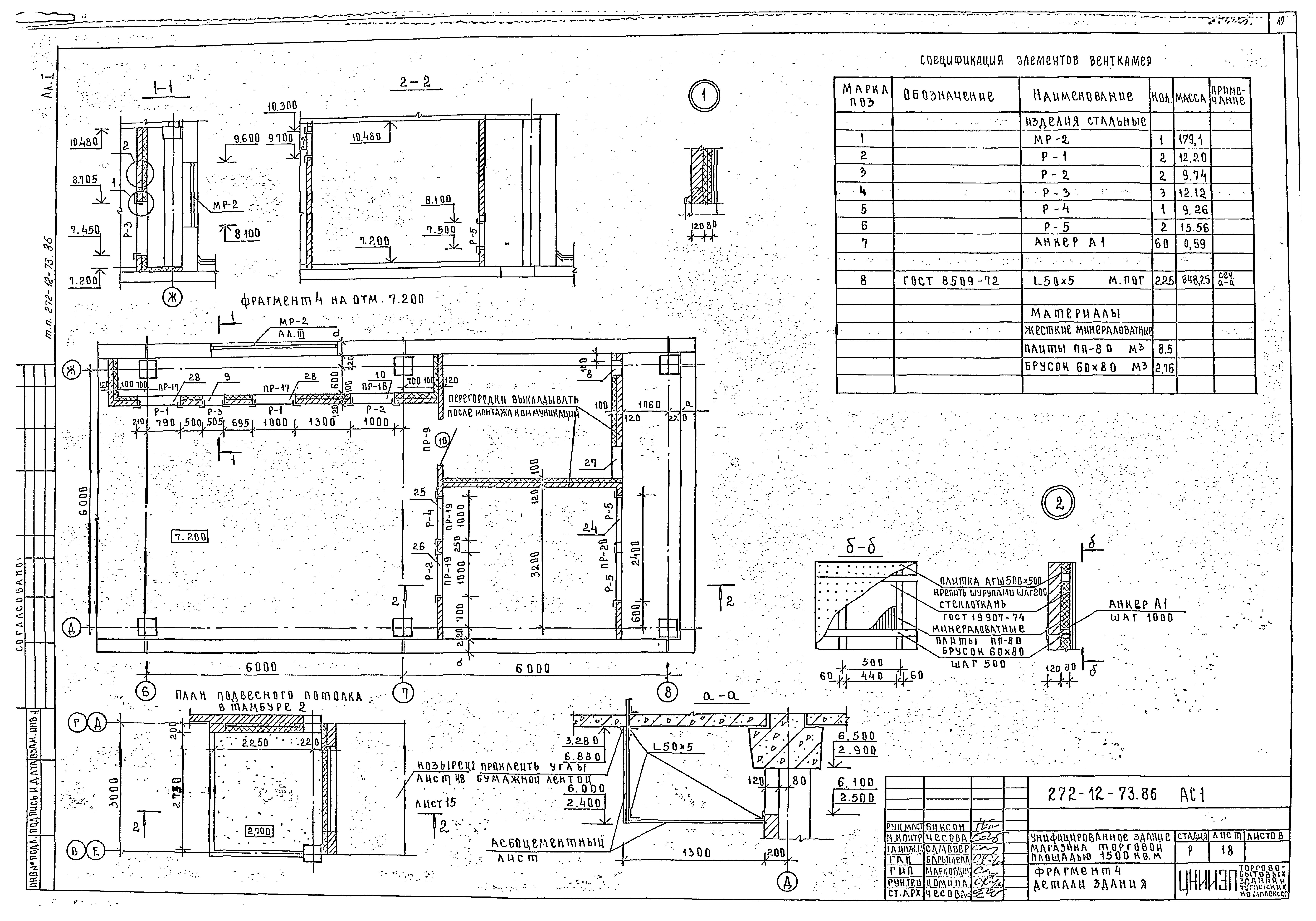
   Фрагмент 4, детали здания
   Планы потолков торгового зала I этажа с расстановкой светильников
   Планы потолков торгового зала II этажа с расстановкой светильников
   Схема нагрузок на фундаменты
   План фундаментов и подпольных каналов в осях А - Д
   План фундаментов и подпольных каналов в осях Д - Н
   Сечение фундаментов и подпольных каналов
   Диафрагмы жесткости ДЖМ-1, ДЖМ-2, ДЖМ-3. Фундаментные плиты ПМ-1, ПМ-2
   План наружных площадок, сечения
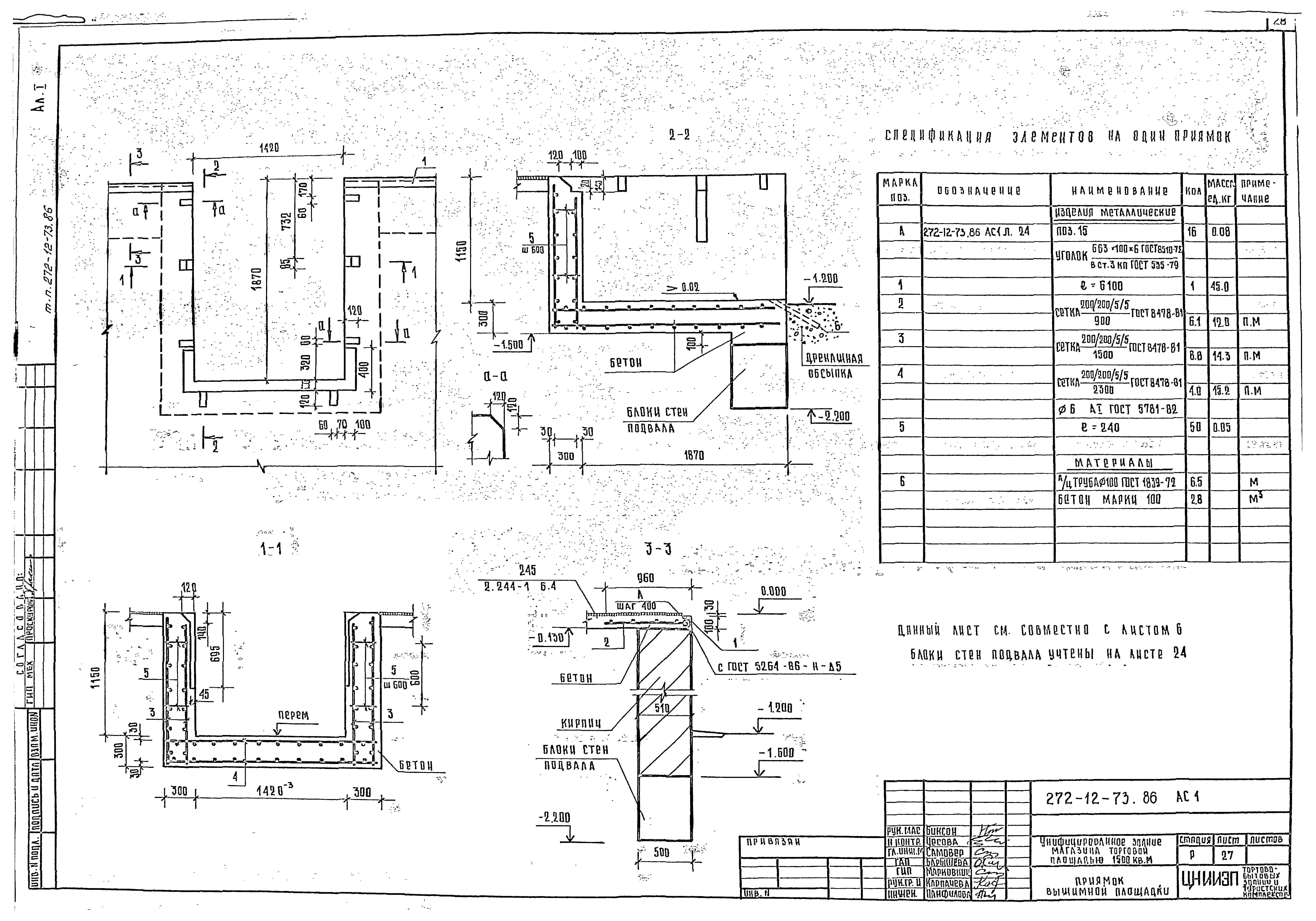
   Приямок выжимной площадки
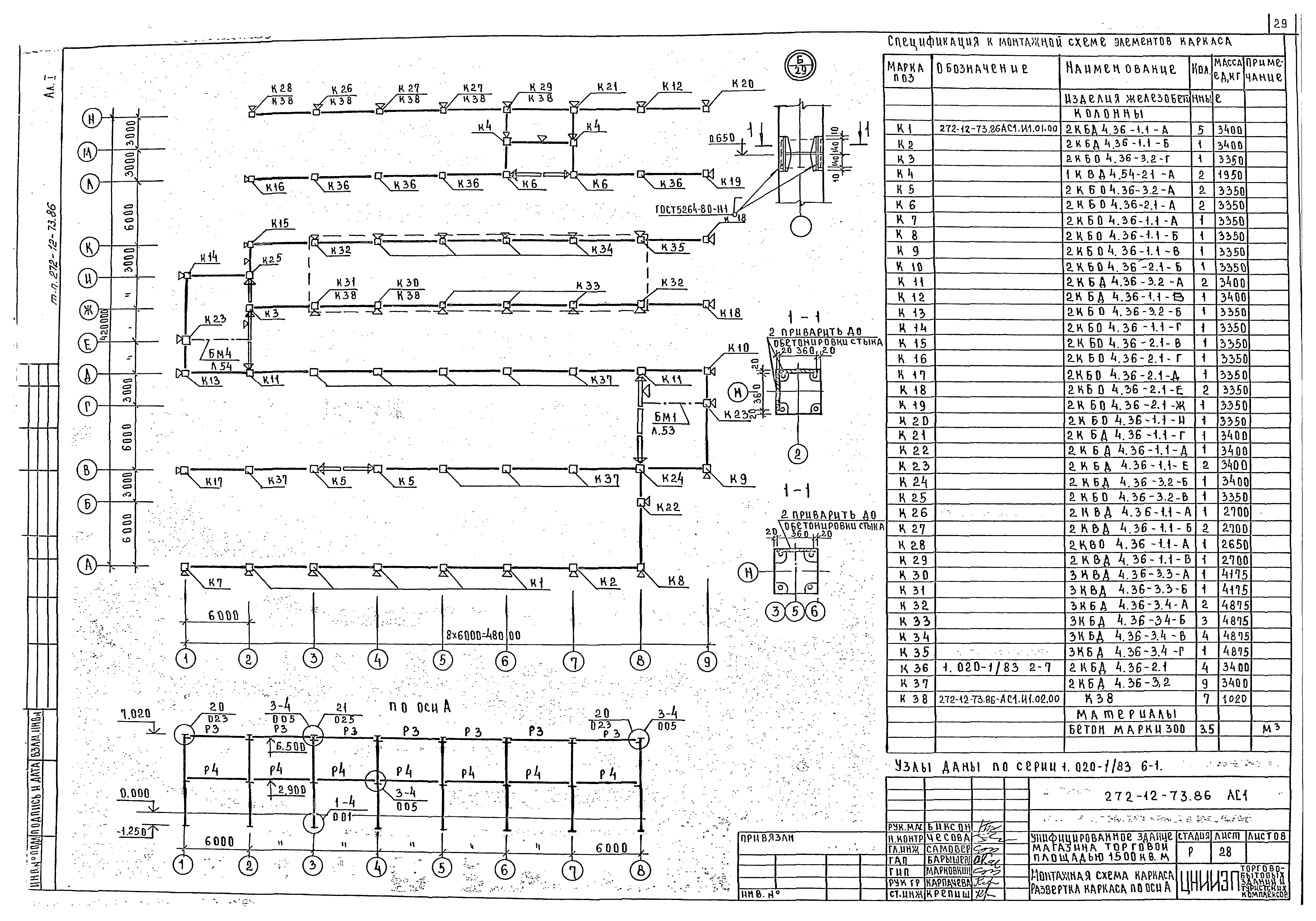
   Монтажная схема каркаса. Развертка каркаса по оси А
   Развертка каркаса по осям 1, 2, 6, 7, 8, 9, 11, М, И
   Развертка каркаса по осям В, Д, Ж, Л, К
   Схемы нагрузок на элементы перекрытий
   Схемы элементов перекрытия над 1 этажом в осях А - Д
   Схемы элементов перекрытия над 1 этажом в осях Д - Н
   Схемы элементов перекрытия над 2 этажом в осях А - Д
   Схемы элементов перекрытия над 2 этажом в осях Д - Н
   Схема элементов покрытия. Сечения
   Спецификация элементов перекрытий и покрытия
   Монолитные участки УМ1, УМ2
   Монолитные участки УМ3, УМ4, УМ5
   Схемы расположения стеновых панелей по осям А, В, И, Ж, Н при t = минус 20; минус 30 градусов Цельсия
   Схемы расположения стеновых панелей по осям К, 1, 2, 3, 8, 9 при t = минус 20; минус 30 градусов Цельсия
   Разрезы панельных стен. Спецификация панелей и соединительных элементов при t = минус 20; минус 30 градусов Цельсия
   Схемы расположения стеновых панелей по осям А, В, И, Ж, Н при t = минус 40 градусов Цельсия
   Схемы расположения стеновых панелей по осям К, 1, 2, 3, 8, 9 при t = минус 40 градусов Цельсия
   Разрезы панельных стен. Спецификация панелей и соединительных элементов при t = минус 40 градусов Цельсия
   Витрина 1. Планы перекрытий на отм. 0.100 и 2.580
   Витрина 2. Планы перекрытий на отм. 0.100 и 2.580
   Козырьки входов
   Лестницы 1, 2, 3
   Лестницы 1, 2. Узлы 1 - 5. Сечения а-а
   Лестница 1. Монтажные схемы балок, монолитных ступеней ПМ1, ПМ2
   Лестница 2. Монтажные схемы балок, монолитных ступеней ПМ3, ПМ4
   Лестница 1. Сечения 1-1 - 3-3. Узлы
   Лестница 2. Сечения 1-1 - 3-3. Узлы
   Лестница 4
   Монтажная схема лифтов
   План машинного помещения. Развертка лифтовых шахт
   Чертеж на заказ лифта грузового общего назначения Q = 1000 кг
   Схемы разбивки закладных деталей под стойки тамбуров и витражей
Чертежи основного комплекта марки АС2
   Общие данные
   Спецификация к схемам расположения оконных блоков, витражей и тамбуров
   Схема расположения оконных блоков, витражей, тамбура в осях 1 - 8 (1 этаж)
   Схема расположения оконных блоков, тамбура и витражей в осях Н - А (1 этаж)
   Схема расположения оконных блоков и тамбуров по осям 8, 9, Н (1 этаж). Входы по осям 8, Д (2 этаж)
   Схема расположения оконных блоков в осях 1 - 9; 9 - 1. Входы у осей 1, 8, Д (2 этаж)
   Схема расположения оконных блоков в осях Н - А; А - Н (2 этаж)
   Узлы 1, 2, 3, 4, 7
   Узлы 5, 6, 8, 9, 10, 11, 12, 13
Чертежи основного комплекта марки ТХМ
   Общие данные
   План 1 этажа в осях 1 - 9; А - Д "Товары для дома"
   План 1 этажа в осях 1 - 9; Д - Н "Товары для дома"
   План 2 этажа в осях 1 - 9; А - Д "Товары для дома"
   План 2 этажа в осях 1 - 9; Д - Н "Товары для дома"
   Экспликация помещений "Товары для дома"
   План 1 этажа в осях 1 - 9; А - Д. Вариант "Товары для спорта и туризма"
   План 1 этажа в осях 1 - 9; Д - Н. Вариант "Товары для спорта и туризма"
   План 2 этажа в осях 1 - 9; А - Д. Вариант "Товары для спорта и туризма"
   План 2 этажа в осях 1 - 9; Д - Н. Вариант "Товары для спорта и туризма"
   Экспликация помещений. Вариант "Товары для спорта и туризма"
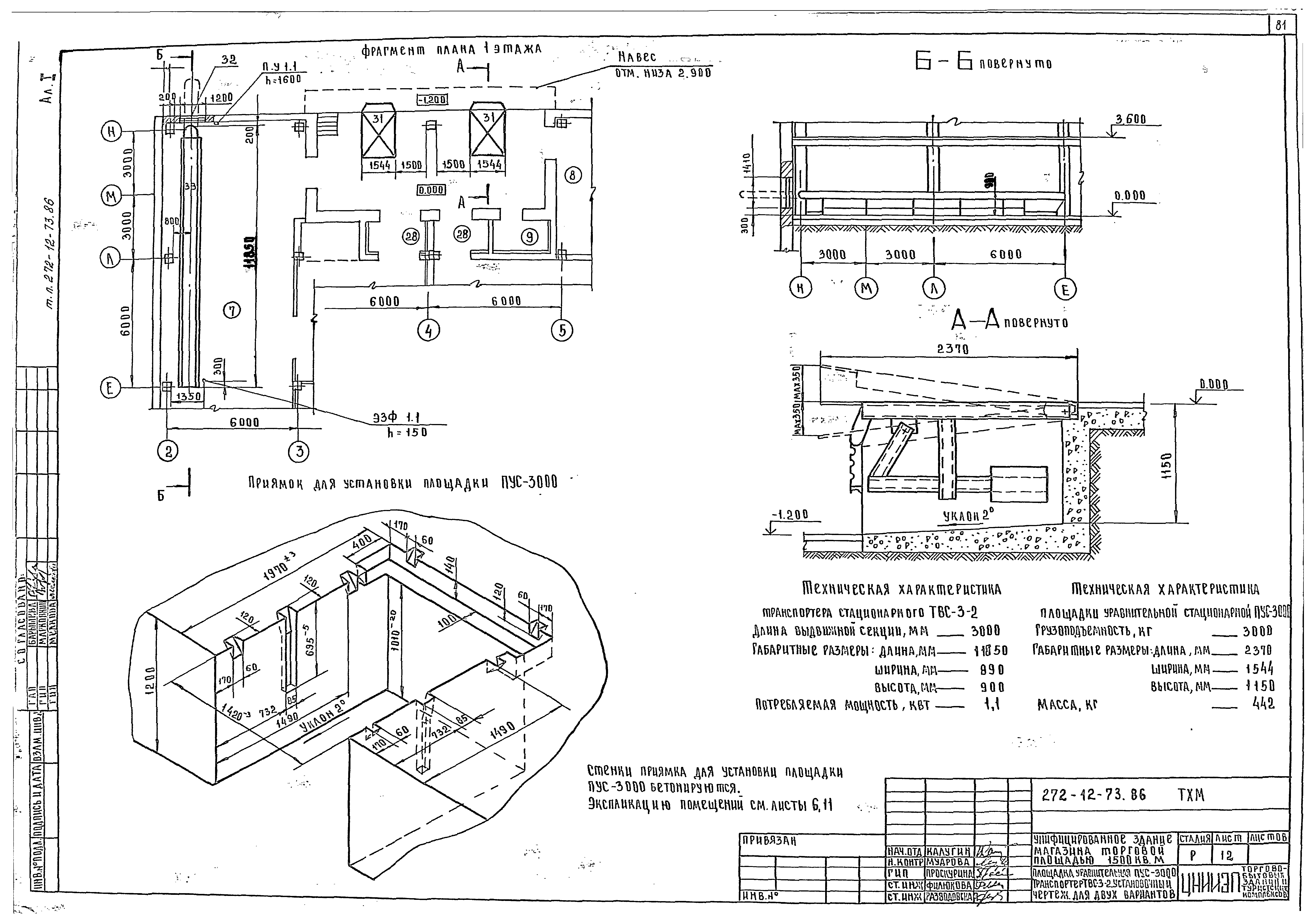
   Площадка уравнительная ПУС-3000. Транспортер ТВС-3-2. Установочный чертеж для двух вариантов
   Вешало конвейерное с опуском. Установочный чертеж. Вариант "Товары для спорта и туризма"
Разработан: ЦНИИЭП торгово-бытовых зданий и туристских комплексов
Утверждён:26.11.1974 Госгражданстрой (Gosgrazhdanstroy 263)
Расположен в:Техническая документация Строительство Справочные документы Типовые строительные конструкции, изделия и узлы Общероссийский строительный каталог Общественные здания в городах и поселках городского типа Предприятия торговли и общественного питания. Общественные центры Предприятия торговли Магазины непродовольственных товаров
Типовой проект 272-12-73.86Типовой проект 272-12-73.86Типовой проект 272-12-73.86Типовой проект 272-12-73.86Типовой проект 272-12-73.86Типовой проект 272-12-73.86Типовой проект 272-12-73.86Типовой проект 272-12-73.86Типовой проект 272-12-73.86Типовой проект 272-12-73.86Типовой проект 272-12-73.86Типовой проект 272-12-73.86Типовой проект 272-12-73.86Типовой проект 272-12-73.86Типовой проект 272-12-73.86Типовой проект 272-12-73.86Типовой проект 272-12-73.86Типовой проект 272-12-73.86Типовой проект 272-12-73.86Типовой проект 272-12-73.86Типовой проект 272-12-73.86Типовой проект 272-12-73.86Типовой проект 272-12-73.86Типовой проект 272-12-73.86Типовой проект 272-12-73.86Типовой проект 272-12-73.86Типовой проект 272-12-73.86Типовой проект 272-12-73.86Типовой проект 272-12-73.86Типовой проект 272-12-73.86Типовой проект 272-12-73.86Типовой проект 272-12-73.86Типовой проект 272-12-73.86Типовой проект 272-12-73.86Типовой проект 272-12-73.86Типовой проект 272-12-73.86Типовой проект 272-12-73.86Типовой проект 272-12-73.86Типовой проект 272-12-73.86Типовой проект 272-12-73.86Типовой проект 272-12-73.86Типовой проект 272-12-73.86Типовой проект 272-12-73.86Типовой проект 272-12-73.86Типовой проект 272-12-73.86Типовой проект 272-12-73.86Типовой проект 272-12-73.86Типовой проект 272-12-73.86Типовой проект 272-12-73.86Типовой проект 272-12-73.86Типовой проект 272-12-73.86Типовой проект 272-12-73.86Типовой проект 272-12-73.86Типовой проект 272-12-73.86Типовой проект 272-12-73.86Типовой проект 272-12-73.86Типовой проект 272-12-73.86Типовой проект 272-12-73.86Типовой проект 272-12-73.86Типовой проект 272-12-73.86Типовой проект 272-12-73.86Типовой проект 272-12-73.86Типовой проект 272-12-73.86Типовой проект 272-12-73.86Типовой проект 272-12-73.86Типовой проект 272-12-73.86Типовой проект 272-12-73.86Типовой проект 272-12-73.86Типовой проект 272-12-73.86Типовой проект 272-12-73.86Типовой проект 272-12-73.86Типовой проект 272-12-73.86Типовой проект 272-12-73.86Типовой проект 272-12-73.86Типовой проект 272-12-73.86Типовой проект 272-12-73.86Типовой проект 272-12-73.86Типовой проект 272-12-73.86Типовой проект 272-12-73.86Типовой проект 272-12-73.86Типовой проект 272-12-73.86Типовой проект 272-12-73.86Типовой проект 272-12-73.86

© 2013 Ёшкин Кот :-) Карта сайта