Информационная система
«Ёшкин Кот»

Скачать базу одним архивом
Скачать обновления
История создания базы
Карта сайта

Скачать Типовой проект 272-11-29.85 Альбом I. Архитектурно-строительные решения. Технология. Механизация. Витражи

Дата актуализации: 10.08.2017

Типовой проект 272-11-29.85

Альбом I. Архитектурно-строительные решения. Технология. Механизация. Витражи

Обозначение: Типовой проект 272-11-29.85
Обозначение англ: 272-11-29.85
Статус:не определен законодательством
Название рус.:Альбом I. Архитектурно-строительные решения. Технология. Механизация. Витражи
Дата добавления в базу:01.10.2014
Дата актуализации:05.05.2017
Дата введения:02.12.1985
Оглавление:Чертежи основного комплекта марки АС1
   Общие данные
   План 1 этажа в осях А - Г; 1 - 5
   План 1 этажа в осях А - Г; 5 - 12
   План 1 этажа в осях Г - К; 1 - 10
   План 1 этажа в осях К - М; 1 - 10
   План 2 этажа в осях А - Г; 1 - 5
   План 2 этажа в осях А - Г; 5 - 12
   План 2 этажа в осях Г - М; 1 - 10
   План технического этажа
   Фрагмент 6
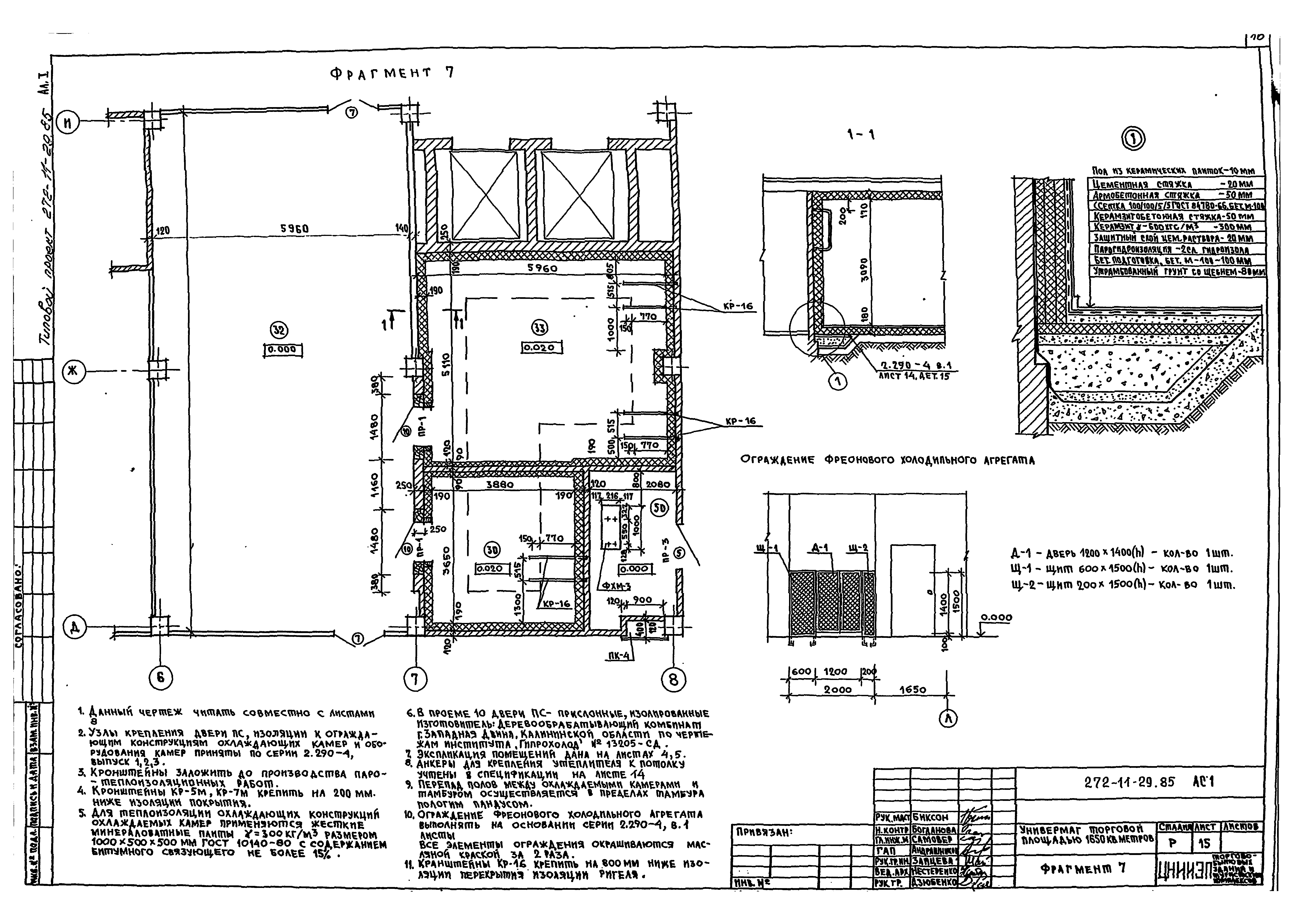
   Фрагмент 7
   Фрагменты 8, 9, 10, 11
   План кровли
   Разрезы 1-1 и 2-2
   Фасады в осях 1 - 12 и 12 - 1
   Фасады в осях А - М и М - А
   Развертки стен торгового зала на отм. 0.000
   План подшивного потолка торгового зала на отм. 3.600
   Лестница Л-3
   Монтажная схема и узлы перегородок марки ДС
   Схема нагрузок на элементы фундаментов
   Схема расположения элементов фундаментов между осями А - Г, 1 - 5
   Схема расположения элементов фундаментов между осями А - Г, 5 - 13
   Схема расположения элементов фундаментов между осями Г - К; 1 - 10
   Схема расположения элементов фундаментов между осями К - М; 1 - 10
   Монолитные фундаменты ФМ1 - ФМ5. Спецификации
   Схема расположения элементов каркаса 1 этажа
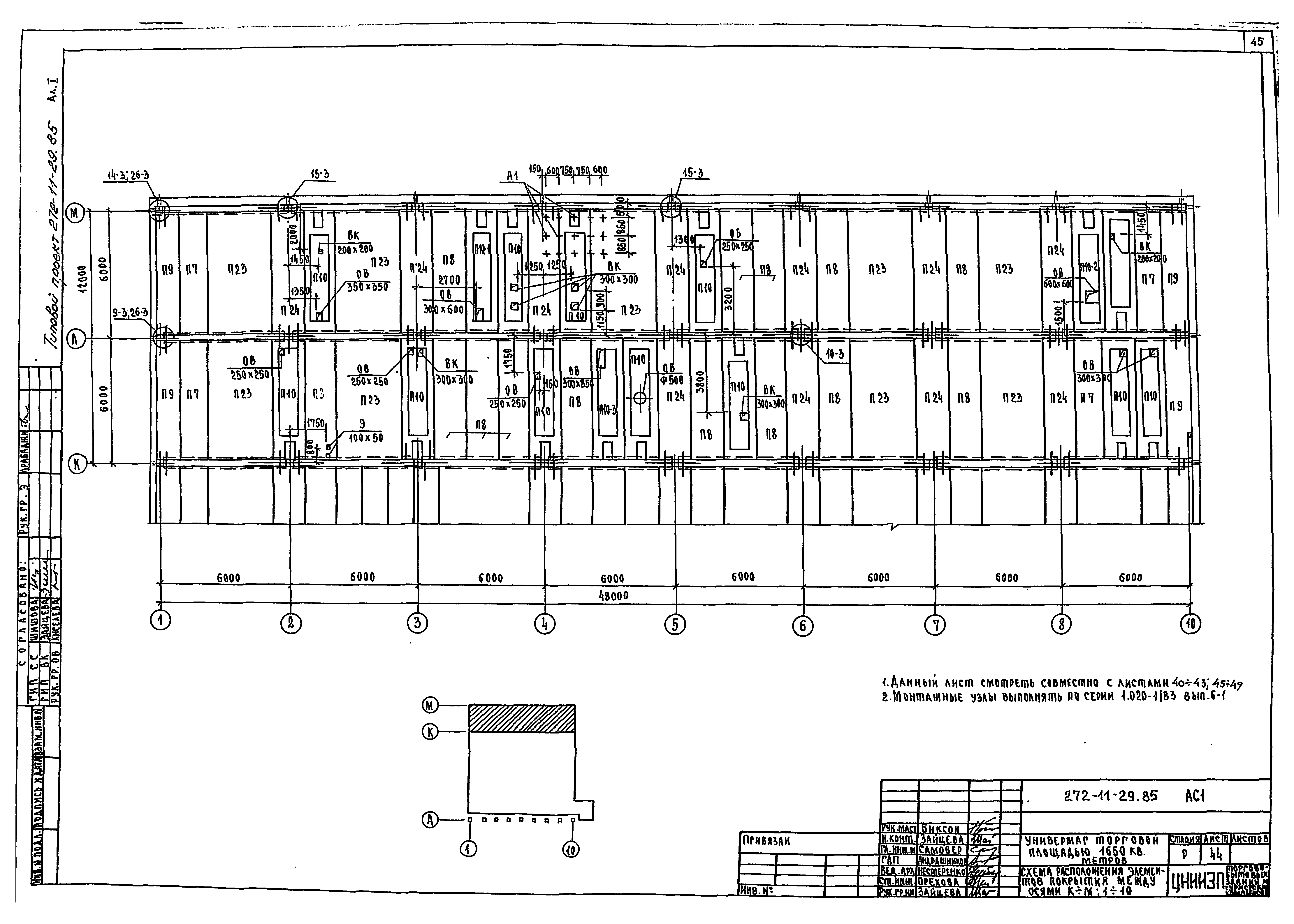
   Схемы расположения элементов каркаса 2 и 3 этажей
   Рамы по осям Ж и Б
   Схемы расположения стеновых панелей по осям 1 и 10
   Схемы расположения стеновых панелей по осям Л, М, А, 13 и 10
   Схемы расположения стеновых панелей по осям И, Г, В, Б и В
   Спецификация к схемам расположения стеновых панелей при толщине стен 300 мм
   Спецификация к схемам расположения стеновых панелей при толщине стен 250 мм
   Спецификация к схемам расположения стеновых панелей (вариант из трехслойных панелей)
   Схема нагрузок на перекрытия и покрытие
   Схема расположения элементов перекрытия над 1 этажом между осями А - Г; 1 - 5
   Схема расположения элементов перекрытия над 1 этажом между осями А - Г, 5 - 13
   Схема расположения элементов перекрытия и покрытия над 1 этажом между осями Г - К; 1 - 10
   Схема расположения элементов покрытия между осями К - М; 1 - 10
   Схема расположения элементов перекрытия и покрытия над 2 этажом между осями Г - И; 1 - 10
   Схема расположения элементов покрытия между осями А - Г; 1 - 5 и Г` - И, 6 - 8
   Схема расположения элементов покрытия между осями А - Г`; 5 - 13
   Спецификация к схемам расположения элементов перекрытий и покрытий
   Монолитные участки УМ1 - УМ7
   Монтажная схема элементов лестниц 1 и 2
   Конструкция лестницы 3
   Монтажная схема лифтов
   Развертки стен лифтовых шахт
   План машинного помещения лифтов
   Чертеж на заказ лифтов
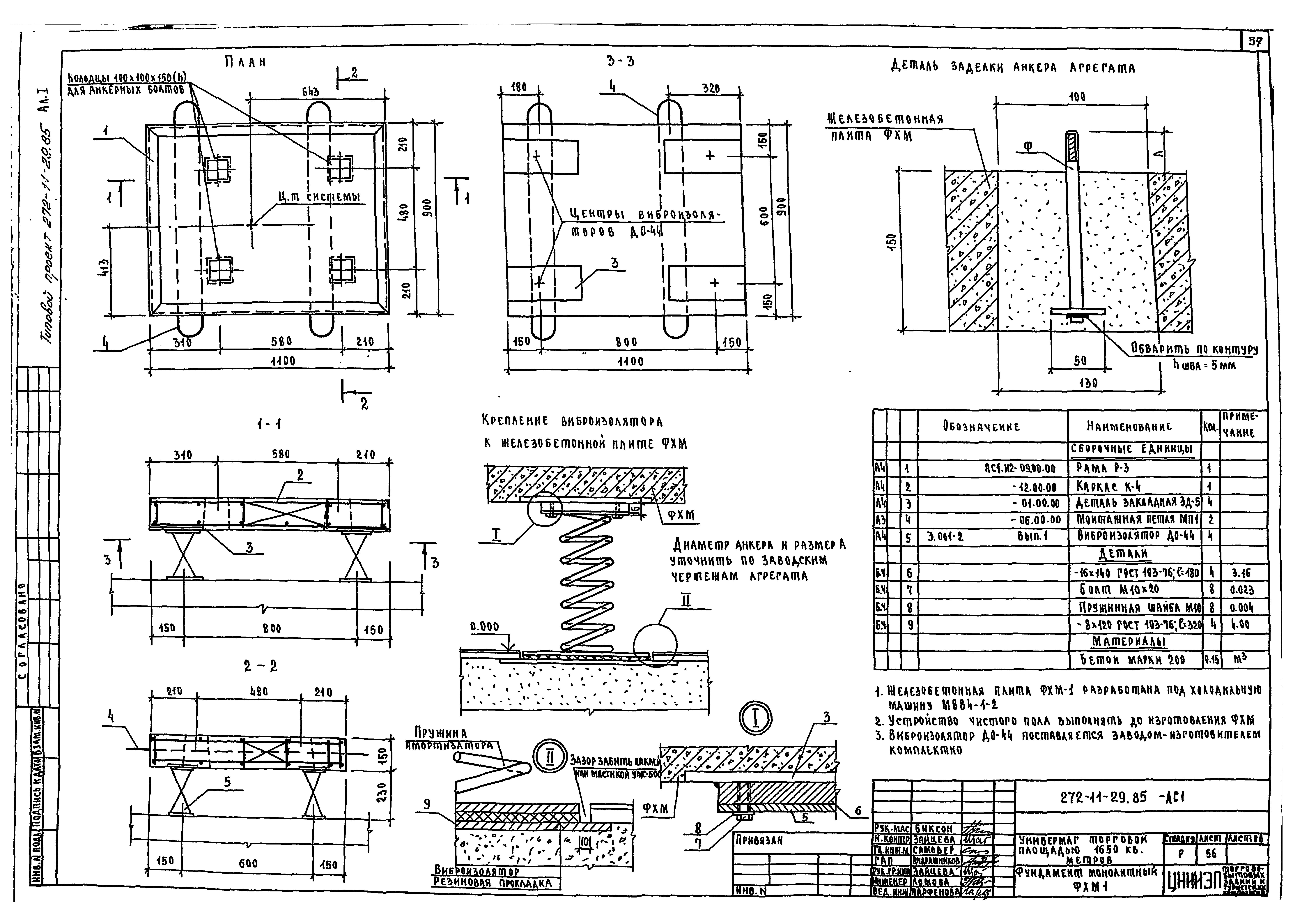
   Фундамент монолитный ФХМ-1
   Фундамент монолитный ФХМ-3
   Фундаменты монолитные (ФХМ-2, ФХМ-7)
   Схема расположения закладных деталей для крепления витражей
   План 1 этажа с вариантом увеличения торговой площади
   План 2 этажа с вариантом увеличения торговой площади
Чертежи основного комплекта марки ТХМ
   Общие данные
   План 1 этажа в осях 1 - 10; А - Д
   План 1 этажа в осях 1 - 10; Д - М
   План 2 этажа в осях 1 - 12; А - Г
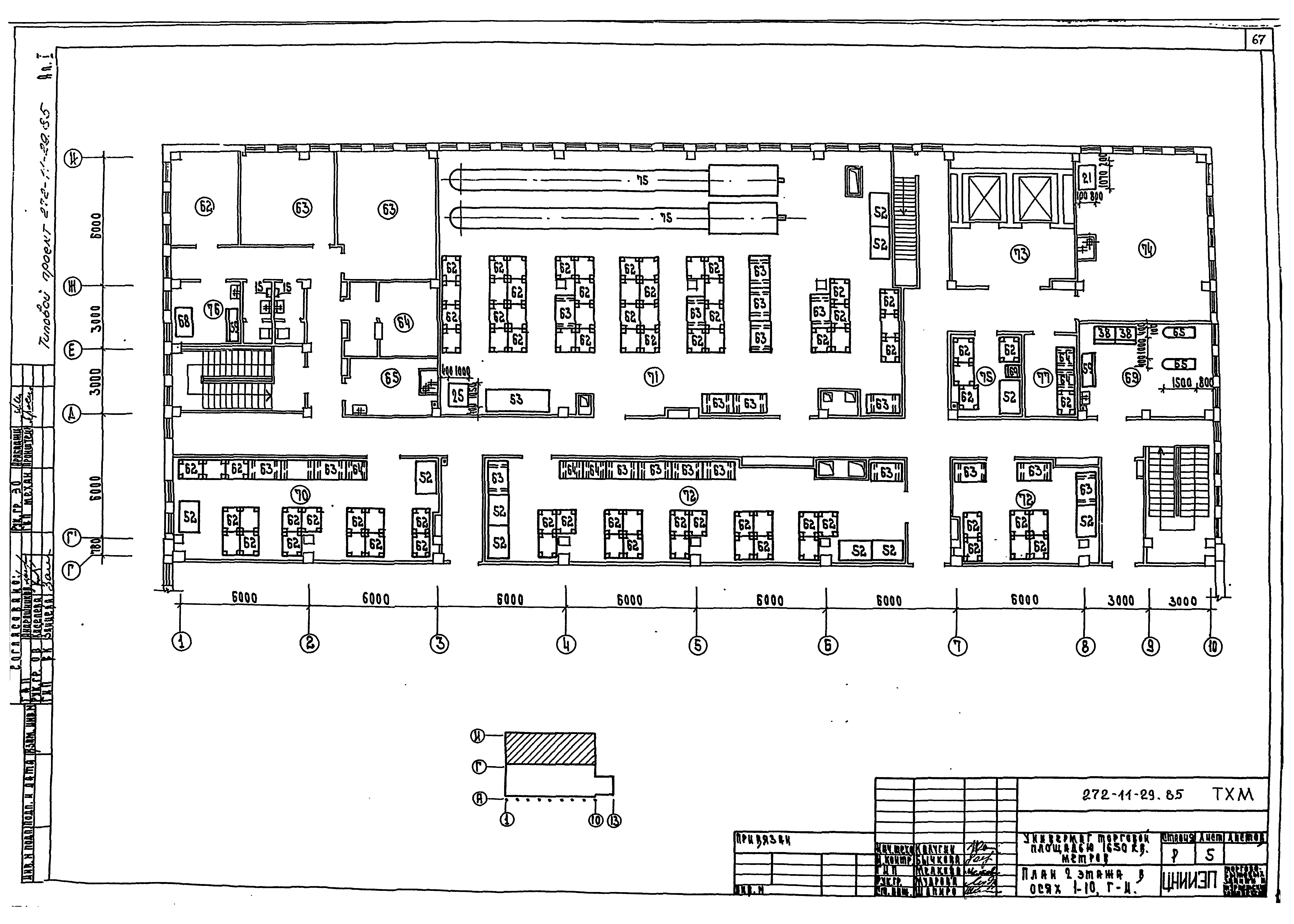
   План 2 этажа в осях 1 - 10; Г - И
   Экспликация помещений
   Площадка уравнительная стационарная ПУС-3000. Установочный чертеж
   Вешало конвейерное с опуском. Установочный чертеж
   Подъемный стол ПС-500. Установочный чертеж
Чертежи основного комплекта марки АС2
   Общие данные
   Спецификация элементов витражей, тамбуров и перегородки
   Схема расположения элементов витража в осях 1 - 7
   Схема расположения элементов витражей в осях Г - А, А - Б и по осям В, А`
   Схема расположения элементов витражей в осях 1 - 10; 12 - 1
   Схема расположения элементов витражей в осях И - А; Г - И; Д - Л
   Схема расположения элементов витражей в осях М - Д; 8 - 1
   Схема расположения элементов тамбура в осях 7 - 10 и остекленных перегородок
   Схема расположения элементов остекленной перегородки. Узлы 19, 20, 21
   Монтажные узлы 1, 2, 3, 4, 6, 7, 8
   Монтажные узлы 13, 16, 17, 18
   Монтажные узлы 5, 9, 10, 11, 12, 14, 15
Разработан: ЦНИИЭП торгово-бытовых зданий и туристских комплексов
Утверждён:11.02.1977 Госгражданстрой (Gosgrazhdanstroy 31)
Расположен в:Техническая документация Строительство Справочные документы Типовые строительные конструкции, изделия и узлы Общероссийский строительный каталог Общественные здания в городах и поселках городского типа Предприятия торговли и общественного питания. Общественные центры Предприятия торговли Универсальные магазины
Типовой проект 272-11-29.85Типовой проект 272-11-29.85Типовой проект 272-11-29.85Типовой проект 272-11-29.85Типовой проект 272-11-29.85Типовой проект 272-11-29.85Типовой проект 272-11-29.85Типовой проект 272-11-29.85Типовой проект 272-11-29.85Типовой проект 272-11-29.85Типовой проект 272-11-29.85Типовой проект 272-11-29.85Типовой проект 272-11-29.85Типовой проект 272-11-29.85Типовой проект 272-11-29.85Типовой проект 272-11-29.85Типовой проект 272-11-29.85Типовой проект 272-11-29.85Типовой проект 272-11-29.85Типовой проект 272-11-29.85Типовой проект 272-11-29.85Типовой проект 272-11-29.85Типовой проект 272-11-29.85Типовой проект 272-11-29.85Типовой проект 272-11-29.85Типовой проект 272-11-29.85Типовой проект 272-11-29.85Типовой проект 272-11-29.85Типовой проект 272-11-29.85Типовой проект 272-11-29.85Типовой проект 272-11-29.85Типовой проект 272-11-29.85Типовой проект 272-11-29.85Типовой проект 272-11-29.85Типовой проект 272-11-29.85Типовой проект 272-11-29.85Типовой проект 272-11-29.85Типовой проект 272-11-29.85Типовой проект 272-11-29.85Типовой проект 272-11-29.85Типовой проект 272-11-29.85Типовой проект 272-11-29.85Типовой проект 272-11-29.85Типовой проект 272-11-29.85Типовой проект 272-11-29.85Типовой проект 272-11-29.85Типовой проект 272-11-29.85Типовой проект 272-11-29.85Типовой проект 272-11-29.85Типовой проект 272-11-29.85Типовой проект 272-11-29.85Типовой проект 272-11-29.85Типовой проект 272-11-29.85Типовой проект 272-11-29.85Типовой проект 272-11-29.85Типовой проект 272-11-29.85Типовой проект 272-11-29.85Типовой проект 272-11-29.85Типовой проект 272-11-29.85Типовой проект 272-11-29.85Типовой проект 272-11-29.85Типовой проект 272-11-29.85Типовой проект 272-11-29.85Типовой проект 272-11-29.85Типовой проект 272-11-29.85Типовой проект 272-11-29.85Типовой проект 272-11-29.85Типовой проект 272-11-29.85Типовой проект 272-11-29.85Типовой проект 272-11-29.85Типовой проект 272-11-29.85Типовой проект 272-11-29.85Типовой проект 272-11-29.85Типовой проект 272-11-29.85Типовой проект 272-11-29.85Типовой проект 272-11-29.85Типовой проект 272-11-29.85Типовой проект 272-11-29.85Типовой проект 272-11-29.85Типовой проект 272-11-29.85Типовой проект 272-11-29.85Типовой проект 272-11-29.85Типовой проект 272-11-29.85Типовой проект 272-11-29.85

© 2013 Ёшкин Кот :-) Карта сайта