Скачать Типовой проект 223-1-419.84 Альбом VIII. Помещения общественного назначения, размещаемые в подвале школыДата актуализации: 10.08.2017 Типовой проект 223-1-419.84
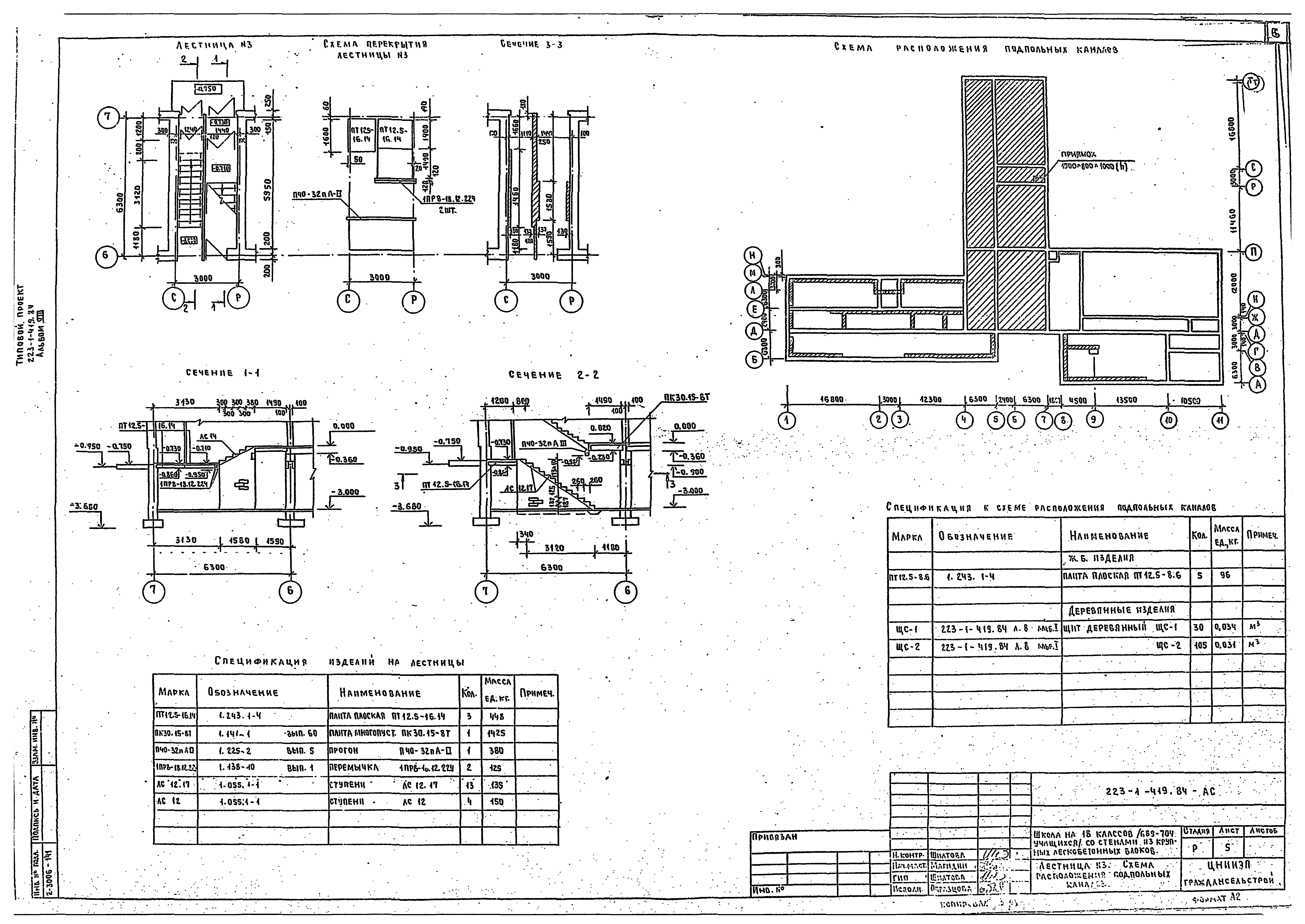
Альбом VIII. Помещения общественного назначения, размещаемые в подвале школыОбозначение: | Типовой проект 223-1-419.84 | Обозначение англ: | 223-1-419.84 | Статус: | не определен законодательством | Название рус.: | Альбом VIII. Помещения общественного назначения, размещаемые в подвале школы | Дата добавления в базу: | 01.10.2014 | Дата актуализации: | 05.05.2017 | Дата введения: | 24.01.1985 | Оглавление: | Архитектурно-строительные чертежи Общие данные План подвала Ведомость перемычек. Спецификации Лестница №3. Схема расположения подпольных каналов Схема расположения фундаментных плит Развертки стен Сечения фундаментов Развертки стен предкамеры. Вентшахты №1, №2 Сборно-монолитное перекрытие Отопление и вентиляция Общие данные План подвала на отм. - 3.000 (блок 2) Схема системы отопления Схемы систем вентиляции П5, П6, В7, В8 Установки систем П5, П6 Установки систем В7, В8 Водопровод и канализация План подвала Схемы систем В1, Т3, Т4 Схемы системы К1 Электрооборудование Общие данные План осветительных и силовых сетей школы Расчетные схемы осветительных и силовых сетей подвала Связь и сигнализация Общие данные Схема расположения устройств связи План подвала Автоматика и вентиляция Общие данные Схема принципиальная электрическая управления задвижкой Схема подключений | Разработан: | ЦНИИЭП граждансельстрой
| Утверждён: | 19.08.1983 Госгражданстрой (Gosgrazhdanstroy 244)
| Расположен в: |
|
                               
|